CATEGORY
野沢
ソサエティ柿の木坂アネックス
パークハイム学芸大学センターコート
FULL HOUSE GAKUGEI DAIGAKU
- 2024年10月30日
- 2025年12月4日
コメント
「FULL HOUSE GAKUGEI DAIGAKU」は、贅沢な生活様式を求めるあなたのために生まれた、洗練された賃貸マンションです。この... もっと読む
| 家賃帯: | 317,000円 〜 352,000円 |
|---|---|
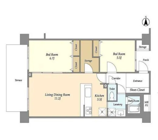
| 間取り: | 2LDK 〜 3LDK |
| 平米数: | 70.3㎡ 〜 75.22㎡ |
部屋情報
仲介手数料無料
初期費用キャッシュバック
仲介手数料無料
礼金ゼロ
初期費用キャッシュバック
野沢ウッド
アーデン駒沢大学
ロイジェント世田谷野沢
スパシエグランス学芸大学
クレヴィア駒沢大学
- 2024年5月28日
- 2025年12月4日
コメント
静謐な世田谷区野沢の住宅街に堂々と佇む「クレヴィア駒沢大学」は、まるで時を忘れさせる美しい景色を背景に、洗練されたライフスタイルを求めるあな... もっと読む
| 所在地: | 東京都世田谷区野沢4-23-12 |
|---|---|
| 交通 | 東京急行電鉄東急田園都市線 駒沢大学駅徒歩5分 東京急行電鉄東急田園都市線 三軒茶屋駅徒歩16分 東京急行電鉄東急世田谷線 三軒茶屋駅徒歩16分 東京急行電鉄東急世田谷線 西太子堂駅徒歩16分 東京急行電鉄東急世田谷線 若林駅徒歩19分 |
| 築年月: | 2012年3月 |
| 家賃帯: | 330,000円 〜 330,000円 |
|---|---|
| 間取り: | 3LDK 〜 3LDK |
| 平米数: | 70.6㎡ 〜 70.6㎡ |
アトラス駒沢大学
- 2024年5月28日
- 2025年12月4日
コメント
東京の中心で、あなたの新しい物語が息づく場所、「アトラス駒沢大学」。世田谷区野沢に位置するこのマンションは、静寂の中に調和を見出し、日常生活... もっと読む
| 家賃帯: | 190,000円 〜 190,000円 |
|---|---|
| 間取り: | 1LDK 〜 1LDK |
| 平米数: | 42.26㎡ 〜 42.26㎡ |






