パークアクシス豊洲
- 2024年5月27日
- 2025年12月4日
コメント
豊洲の地にそびえ立つ、パークアクシス豊洲は、壮大な401戸から成る高級賃貸マンションです。この物件はまるで都市の真ん中に生息するクジラが悠然... もっと読む
| 所在地: | 東京都江東区豊洲1-2-39 |
|---|---|
| 交通 | 東京メトロ有楽町線 豊洲駅 徒歩8分 ゆりかもめ 豊洲駅 徒歩8分 東京メトロ有楽町線 月島駅 徒歩14分 都営地下鉄大江戸線 月島駅 徒歩14分 |
| 築年月: | 2008年3月 |
| 家賃帯: | 177,000円 〜 328,000円 |
|---|---|
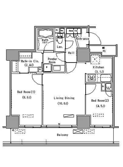
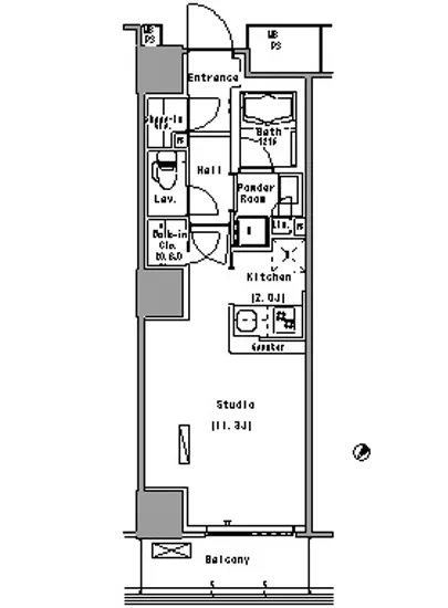
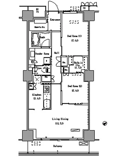
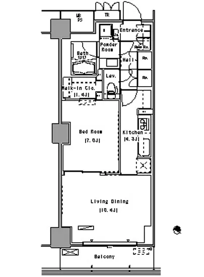
| 間取り: | 1K 〜 2LDK |
| 平米数: | 35.61㎡ 〜 69.74㎡ |
部屋情報
仲介手数料無料
初期費用キャッシュバック
仲介手数料無料
初期費用キャッシュバック




















