オープンレジデンシア清澄白河
- 2024年5月28日
- 2025年12月4日
コメント
オープンレジデンシア清澄白河は、東京都江東区清澄エリアという、まるで美しい風景画の中に描かれたかのような魅力的な場所に佇んでいます。美しさと... もっと読む
| 所在地: | 東京都江東区清澄3-6-14 |
|---|---|
| 交通 | 東京メトロ半蔵門線 清澄白河駅徒歩2分 都営地下鉄大江戸線 清澄白河駅徒歩2分 都営地下鉄大江戸線 森下駅徒歩9分 都営地下鉄新宿線 森下駅徒歩9分 東京メトロ東西線 門前仲町駅徒歩16分 |
| 築年月: | 2020年9月 |
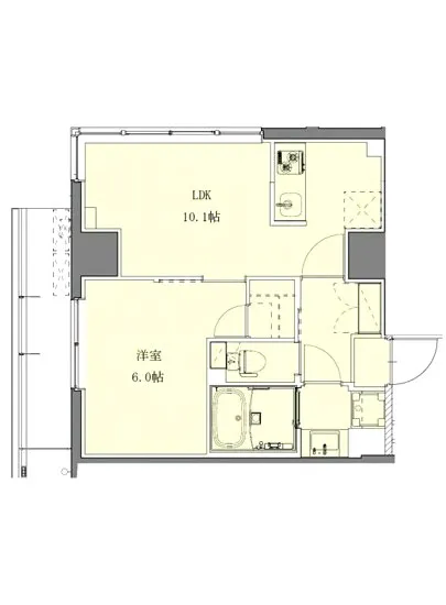
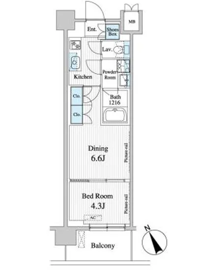
| 家賃帯: | 募集住戸なし |
|---|---|
| 間取り: | 募集住戸なし |
| 平米数: | 募集住戸なし |
検索条件に合う部屋、もしくは現在募集中の部屋情報はありません。














