グランダジュール八丁堀
- 2024年5月28日
- 2025年12月4日
コメント
煌めく都市の真ん中に位置する「グランダジュール八丁堀」は、現代における洗練されたライフスタイルを感じるための洗練された舞台です。まるで繊細な... もっと読む
| 所在地: | 東京都中央区入船1-1-20 |
|---|---|
| 交通 | 東京メトロ日比谷線 八丁堀駅徒歩2分 JR京葉線 八丁堀駅徒歩2分 東京メトロ有楽町線 新富町駅徒歩6分 都営地下鉄浅草線 宝町駅徒歩9分 東京メトロ銀座線 京橋駅徒歩11分 |
| 築年月: | 2007年10月 |
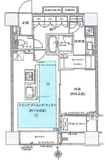
| 家賃帯: | 募集住戸なし |
|---|---|
| 間取り: | 募集住戸なし |
| 平米数: | 募集住戸なし |
検索条件に合う部屋、もしくは現在募集中の部屋情報はありません。











