ラペルラ岩本町
- 2024年5月27日
- 2025年12月4日
コメント
東京都千代田区、まるで都市生活のオアシスのような岩本町に、あなたの新しい日常が待っています。「ラペルラ岩本町」は、この地に巧みに調和したマン... もっと読む
| 所在地: | 東京都千代田区岩本町2-10-12 |
|---|---|
| 交通 | 都営地下鉄新宿線 岩本町駅 徒歩5分 東京メトロ日比谷線 秋葉原駅 徒歩7分 JR京浜東北線 秋葉原駅 徒歩7分 JR総武線 秋葉原駅 徒歩7分 JR山手線 秋葉原駅 徒歩7分 |
| 築年月: | 2021年1月 |
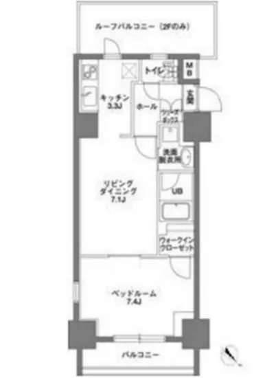
| 家賃帯: | 募集住戸なし |
|---|---|
| 間取り: | 募集住戸なし |
| 平米数: | 募集住戸なし |
検索条件に合う部屋、もしくは現在募集中の部屋情報はありません。















