
| 賃料 | 予想金額:254,000〜274,000円程度 | 管理費 | 予想金額:8,000〜12,000円程度 |
| 礼金/敷金 | 非公開(アーカイブ) | 平米数 | 56.94㎡ |
| 初期費用概算(参考) | 目安:1,261,000〜1,361,000 円 | みなし賃料(月額・参考) | 285,813〜305,813 円 |
| 備考 | 本ページは過去募集のアーカイブです。表示の金額は周辺相場・過去募集を踏まえた参考レンジであり、実際の契約金額・条件ではありません。 | ||
※上記みなし賃料(月額)は仲介手数料割引・無料&キャッシュバックを加味した高級賃貸バイブル限定の金額です。一般的なみなし賃料とは異なります。
【建物ページ】パークホームズ西池袋の詳細・最新空室はこちら▶▶選ばれる理由
仲介手数料無料・キャンペーン情報(毎月15名様限定)
〇仲介手数料割引キャンペーン
パークホームズ西池袋 407の口コミ・レビュー
「パークホームズ西池袋 407」という素晴らしい邸宅が、あなたの新しい生活の舞台となることを心待ちにしています。こちらは東京都豊島区西池袋3-15-3という恵まれた地に位置し、北東の方角に向かって伸びるその佇まいは、まるで大切な宝物のように静かに佇んでいます。407の鍵を手にするあなたを迎え入れるのは、温もりあふれる空間の持つ魅力と、その背後に広がる街の歴史と文化の息吹です。
この2LDK、専有…「パークホームズ西池袋 407」という素晴らしい邸宅が、あなたの新しい生活の舞台となることを心待ちにしています。こちらは東京都豊島区西池袋3-15-3という恵まれた地に位置し、北東の方角に向かって伸びるその佇まいは、まるで大切な宝物のように静かに佇んでいます。407の鍵を手にするあなたを迎え入れるのは、温もりあふれる空間の持つ魅力と、その背後に広がる街の歴史と文化の息吹です。
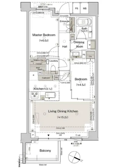
この2LDK、専有面積56.94㎡の空間は、まるで詩の一節のように、あなたの生活を彩るために作られています。15.2帖のLDKは、日の光が優雅に舞い込む場所で、心地よい空気と共にあなたの毎日を囲みます。ここで、朝のコーヒーの香りが漂い、ふわりとしたパンの焼ける音が耳をくすぐることでしょう。仲間との笑顔あふれるひとときや、静かな読書の時間、映画のスクリーンのように美しい景色が目の前に広がります。
あなたのプライベート空間である洋室6帖と4.5帖もまた、特別な存在です。そこに漂う穏やかな空気は、心を癒し、夢を育む場所。暖かな光に包まれたその部屋で、心地よい布団の中に身を委ねる感触、外から聞こえる微かな街の音は、都会の喧騒の中でも心安らぐ瞬間を与えてくれます。夜が訪れれば、窓の外に広がる星空があなたの心に語りかけ、日常の疲れを忘れさせてくれることでしょう。
「パークホームズ西池袋 407」は、ただの住まいではなく、あなたの人生の舞台であり、毎日を特別なものに変える魔法の空間です。エレベーターやオートロック、宅配ボックスなどの便利な設備が、忙しい日常の中でのちょっとしたストレスを和らげてくれます。そして、管理人の温かい笑顔や、いつでも整えられた敷地内のゴミ置場、駐車場や駐輪場といった心遣いは、毎日をより快適に過ごすための大切な要素です。
また、周辺には東京メトロ丸ノ内線の池袋駅が徒歩6分という恵まれたアクセス、さらには文化と歴史が息づく街並みが広がっています。美術館や歴史的な建物が点在し、芸術を愛するあなたの心を刺激し、散策するたびに新たな発見をもたらしてくれるでしょう。西池袋の地にて、物語の続きを書くように、新たな生活が始まることを心からお待ちしております。
「パークホームズ西池袋 407」で、心躍る毎日をお過ごしください。この特別な空間は、あなたの新しい生活の映画のワンシーンとして、永遠に心に残ることでしょう。
この2LDK、専有…「パークホームズ西池袋 407」という素晴らしい邸宅が、あなたの新しい生活の舞台となることを心待ちにしています。こちらは東京都豊島区西池袋3-15-3という恵まれた地に位置し、北東の方角に向かって伸びるその佇まいは、まるで大切な宝物のように静かに佇んでいます。407の鍵を手にするあなたを迎え入れるのは、温もりあふれる空間の持つ魅力と、その背後に広がる街の歴史と文化の息吹です。
この2LDK、専有面積56.94㎡の空間は、まるで詩の一節のように、あなたの生活を彩るために作られています。15.2帖のLDKは、日の光が優雅に舞い込む場所で、心地よい空気と共にあなたの毎日を囲みます。ここで、朝のコーヒーの香りが漂い、ふわりとしたパンの焼ける音が耳をくすぐることでしょう。仲間との笑顔あふれるひとときや、静かな読書の時間、映画のスクリーンのように美しい景色が目の前に広がります。
あなたのプライベート空間である洋室6帖と4.5帖もまた、特別な存在です。そこに漂う穏やかな空気は、心を癒し、夢を育む場所。暖かな光に包まれたその部屋で、心地よい布団の中に身を委ねる感触、外から聞こえる微かな街の音は、都会の喧騒の中でも心安らぐ瞬間を与えてくれます。夜が訪れれば、窓の外に広がる星空があなたの心に語りかけ、日常の疲れを忘れさせてくれることでしょう。
「パークホームズ西池袋 407」は、ただの住まいではなく、あなたの人生の舞台であり、毎日を特別なものに変える魔法の空間です。エレベーターやオートロック、宅配ボックスなどの便利な設備が、忙しい日常の中でのちょっとしたストレスを和らげてくれます。そして、管理人の温かい笑顔や、いつでも整えられた敷地内のゴミ置場、駐車場や駐輪場といった心遣いは、毎日をより快適に過ごすための大切な要素です。
また、周辺には東京メトロ丸ノ内線の池袋駅が徒歩6分という恵まれたアクセス、さらには文化と歴史が息づく街並みが広がっています。美術館や歴史的な建物が点在し、芸術を愛するあなたの心を刺激し、散策するたびに新たな発見をもたらしてくれるでしょう。西池袋の地にて、物語の続きを書くように、新たな生活が始まることを心からお待ちしております。
「パークホームズ西池袋 407」で、心躍る毎日をお過ごしください。この特別な空間は、あなたの新しい生活の映画のワンシーンとして、永遠に心に残ることでしょう。
バイブルスコア
バイブルスコア: 49.5
条件のいい物件です、引っ越しが2か月以内の場合は仮申し込みを検討すべき物件です。
※バイブルスコア詳細はこちら
バイブルスコアとは独自のAI機械学習技術を利用した物件評価システムで、物件のおすすめ度を示します。最高得点は100点で、スコアが高いほど、よりおすすめの物件と評価されています。
写真
契約条件
| 賃料 | 予想金額:254,000〜274,000円程度 | 管理費 | 予想金額:8,000〜12,000円程度 |
| 礼金 | 非公開(アーカイブ) | 敷金 | 非公開(アーカイブ) |
| フリーレント | なし | 平米数 | 56.94㎡ |
| 間取り | 2LDK | 大型収納 | WIC |
| 契約期間 | 2年 | 方角 | 北東 |
| 更新料 | 1ヶ月 | 契約形態 | 普通賃貸借契約 |
| 取引態様 | 媒介 | 内見状況 | 入居中 |
| 入居時期 | 入居中 | SOHO・事務所 | |
| ペット | 間取り内訳 | 洋:6 洋:4.5 LDK:15.2 | |
| キャンペーン情報・備考 | 本情報は賃料改定交渉の資料作成、収益物件の利回り試算、周辺エリアや最寄り駅の坪単価分析、次回募集開始時期の予測などにご活用いただけます。 | ||
※「どの不動産に頼めばいいのか分からない」「信頼できる営業マンの話を聞きたい」「一番親切な会社と契約したい」とお悩みの方におすすめなのが「高級賃貸バイブル」です。
高級賃貸バイブルは業界10年以上の熟練スタッフ群がお客様ファーストで対応します。
下記ボタンから、まずは無料でご相談下さい。
※内覧をご希望の際には、どうぞ物件のエントランス前にてお待ち合わせくださいませ。ご内覧後は、同じ場所でお別れとさせていただきます。お客様のご都合に合わせたスムーズなご案内を心がけておりますので、ご質問等がございましたら何なりとお申し付けください。 物件概要
| 物件名 |
| 築年月 |
|
|---|---|---|---|
| 所在地 | |||
| 交通 | |||
| 総戸数 |
| 総階数 |
|
| 構造 |
| ||
地図
物件までの道のりは、「拡大地図を表示」をクリックしてナビ機能をご利用ください。
部屋設備













建物設備

TVモニターホン

エレベーター

オートロック

宅配ボックス

敷地内ゴミ置場

管理人

駐車場平置き

駐輪場
パークホームズ西池袋の現在募集中のお部屋
- No rooms found for this property.



