
| 賃料 | 予想金額:307,000〜327,000円程度 | 管理費 | 予想金額:8,000〜12,000円程度 |
| 礼金/敷金 | 非公開(アーカイブ) | 平米数 | 71.22㎡ |
| 初期費用概算(参考) | 目安:1,499,500〜1,599,500 円 | みなし賃料(月額・参考) | 342,677〜362,677 円 |
| 備考 | 本ページは過去募集のアーカイブです。表示の金額は周辺相場・過去募集を踏まえた参考レンジであり、実際の契約金額・条件ではありません。 | ||
※上記みなし賃料(月額)は仲介手数料割引・無料&キャッシュバックを加味した高級賃貸バイブル限定の金額です。一般的なみなし賃料とは異なります。
【建物ページ】パークホームズ西池袋の詳細・最新空室はこちら▶▶選ばれる理由
仲介手数料無料・キャンペーン情報(毎月15名様限定)
〇仲介手数料割引キャンペーン
パークホームズ西池袋 504の口コミ・レビュー
パークホームズ西池袋 504。この名は、まるで都会のオアシスからの響きのように、あなたを包み込む温もりを感じさせるでしょう。東京の喧騒を忘れ、静寂の中で贅沢な生活を送るための舞台が、ここに広がっています。南東に面した窓から差し込む柔らかな朝の光が、あなたを優しく迎え入れ、心を穏やかにすることでしょう。
この美しい住まいは、71.22㎡の広さを誇り、3LDKという贅沢な間取りを持っています。17.…パークホームズ西池袋 504。この名は、まるで都会のオアシスからの響きのように、あなたを包み込む温もりを感じさせるでしょう。東京の喧騒を忘れ、静寂の中で贅沢な生活を送るための舞台が、ここに広がっています。南東に面した窓から差し込む柔らかな朝の光が、あなたを優しく迎え入れ、心を穏やかにすることでしょう。
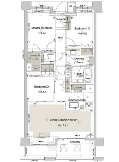
この美しい住まいは、71.22㎡の広さを誇り、3LDKという贅沢な間取りを持っています。17.1帖のLDKは、まさに家族の笑顔が溢れる場所。料理の香ばしい匂いが漂い、家族団らんのひとときを美しいダイニングテーブルで演出します。窓の外からは、優しい風が吹き込み、心地よい音楽のように耳元でささやきます。陽の光に照らされた壁面は、あなたの生活をより一層豊かに彩ります。
洋室はそれぞれ、6.2帖、5帖、4.5帖というゆとりある空間を提供し、各自のプライベートを大切にすることができます。まるで芸術家のアトリエのように、自分色に染め上げることができるこの部屋は、あなたのクリエイティブなインスピレーションを引き出すことでしょう。書斎としても使える洋室で、心を静めて大切な一文を紡ぎ出す瞬間を楽しんでください。
パークホームズ西池袋 504は、歴史深い豊島区に佇んでおり、周囲には文化的な魅力がたくさん詰まっています。東京メトロ丸ノ内線・池袋駅から徒歩6分という利便性も光り、そこから広がる多彩な街の表情に、毎日の生活を彩る驚きが待っていることでしょう。カフェやアートギャラリー、古い町並みが融合した街を散策しながら、あなた自身の物語を紡いでいくことができるのです。
ここでは、オートロックと宅配ボックスを完備し、安心安全な生活をサポートします。管理人が常駐し、居住者の暮らしを見守ってくれる温かさも感じられるでしょう。平置きの駐車場や駐輪場も完備されており、アクセスも快適です。あなたの生活は、まるで映画のワンシーンのように、高級感あふれる美しい背景の中で展開されます。
思い描いてください。パークホームズ西池袋 504の心地よいリビングで、あなたが家族や友人とともに過ごす日々。笑い声が響き渡り、時には静かな瞬間に感謝しながら、人生の喜びを共に分かち合います。この場所には、心が求める温もりと安らぎが詰まっています。あなたの新しい生活が、ここから始まることを心よりお待ち申し上げています。
この美しい住まいは、71.22㎡の広さを誇り、3LDKという贅沢な間取りを持っています。17.…パークホームズ西池袋 504。この名は、まるで都会のオアシスからの響きのように、あなたを包み込む温もりを感じさせるでしょう。東京の喧騒を忘れ、静寂の中で贅沢な生活を送るための舞台が、ここに広がっています。南東に面した窓から差し込む柔らかな朝の光が、あなたを優しく迎え入れ、心を穏やかにすることでしょう。
この美しい住まいは、71.22㎡の広さを誇り、3LDKという贅沢な間取りを持っています。17.1帖のLDKは、まさに家族の笑顔が溢れる場所。料理の香ばしい匂いが漂い、家族団らんのひとときを美しいダイニングテーブルで演出します。窓の外からは、優しい風が吹き込み、心地よい音楽のように耳元でささやきます。陽の光に照らされた壁面は、あなたの生活をより一層豊かに彩ります。
洋室はそれぞれ、6.2帖、5帖、4.5帖というゆとりある空間を提供し、各自のプライベートを大切にすることができます。まるで芸術家のアトリエのように、自分色に染め上げることができるこの部屋は、あなたのクリエイティブなインスピレーションを引き出すことでしょう。書斎としても使える洋室で、心を静めて大切な一文を紡ぎ出す瞬間を楽しんでください。
パークホームズ西池袋 504は、歴史深い豊島区に佇んでおり、周囲には文化的な魅力がたくさん詰まっています。東京メトロ丸ノ内線・池袋駅から徒歩6分という利便性も光り、そこから広がる多彩な街の表情に、毎日の生活を彩る驚きが待っていることでしょう。カフェやアートギャラリー、古い町並みが融合した街を散策しながら、あなた自身の物語を紡いでいくことができるのです。
ここでは、オートロックと宅配ボックスを完備し、安心安全な生活をサポートします。管理人が常駐し、居住者の暮らしを見守ってくれる温かさも感じられるでしょう。平置きの駐車場や駐輪場も完備されており、アクセスも快適です。あなたの生活は、まるで映画のワンシーンのように、高級感あふれる美しい背景の中で展開されます。
思い描いてください。パークホームズ西池袋 504の心地よいリビングで、あなたが家族や友人とともに過ごす日々。笑い声が響き渡り、時には静かな瞬間に感謝しながら、人生の喜びを共に分かち合います。この場所には、心が求める温もりと安らぎが詰まっています。あなたの新しい生活が、ここから始まることを心よりお待ち申し上げています。
バイブルスコア
バイブルスコア: 49.9
条件のいい物件です、引っ越しが2か月以内の場合は仮申し込みを検討すべき物件です。
※バイブルスコア詳細はこちら
バイブルスコアとは独自のAI機械学習技術を利用した物件評価システムで、物件のおすすめ度を示します。最高得点は100点で、スコアが高いほど、よりおすすめの物件と評価されています。
写真
契約条件
| 賃料 | 予想金額:307,000〜327,000円程度 | 管理費 | 予想金額:8,000〜12,000円程度 |
| 礼金 | 非公開(アーカイブ) | 敷金 | 非公開(アーカイブ) |
| フリーレント | なし | 平米数 | 71.22㎡ |
| 間取り | 3LDK | 大型収納 | WIC |
| 契約期間 | 2年 | 方角 | 南東 |
| 更新料 | 1ヶ月 | 契約形態 | 普通賃貸借契約 |
| 取引態様 | 媒介 | 内見状況 | 入居中 |
| 入居時期 | 入居中 | SOHO・事務所 | |
| ペット | 間取り内訳 | 洋:6.2 洋:5 洋:4.5 LDK:17.1 | |
| キャンペーン情報・備考 | 本情報は賃料改定交渉の資料作成、収益物件の利回り試算、周辺エリアや最寄り駅の坪単価分析、次回募集開始時期の予測などにご活用いただけます。 | ||
※「どの不動産に頼めばいいのか分からない」「信頼できる営業マンの話を聞きたい」「一番親切な会社と契約したい」とお悩みの方におすすめなのが「高級賃貸バイブル」です。
高級賃貸バイブルは業界10年以上の熟練スタッフ群がお客様ファーストで対応します。
下記ボタンから、まずは無料でご相談下さい。
※内覧をご希望の際には、どうぞ物件のエントランス前にてお待ち合わせくださいませ。ご内覧後は、同じ場所でお別れとさせていただきます。お客様のご都合に合わせたスムーズなご案内を心がけておりますので、ご質問等がございましたら何なりとお申し付けください。 物件概要
| 物件名 |
| 築年月 |
|
|---|---|---|---|
| 所在地 | |||
| 交通 | |||
| 総戸数 |
| 総階数 |
|
| 構造 |
| ||
地図
物件までの道のりは、「拡大地図を表示」をクリックしてナビ機能をご利用ください。
部屋設備














建物設備

TVモニターホン

エレベーター

オートロック

宅配ボックス

敷地内ゴミ置場

管理人

駐車場平置き

駐輪場
パークホームズ西池袋の現在募集中のお部屋
- No rooms found for this property.



