
| 賃料 | 予想金額:204,000〜224,000円程度 | 管理費 | 予想金額:23,000〜27,000円程度 |
| 礼金/敷金 | 非公開(アーカイブ) | 平米数 | 57.98㎡ |
| 初期費用概算(参考) | 目安:200,100〜300,100 円 | みなし賃料(月額・参考) | 229,752〜249,752 円 |
| 備考 | 本ページは過去募集のアーカイブです。表示の金額は周辺相場・過去募集を踏まえた参考レンジであり、実際の契約金額・条件ではありません。 | ||
※上記みなし賃料(月額)は仲介手数料割引・無料&キャッシュバックを加味した高級賃貸バイブル限定の金額です。一般的なみなし賃料とは異なります。
【建物ページ】ザ・パークハビオ板橋区役所前の詳細・最新空室はこちら▶▶選ばれる理由
仲介手数料無料・キャンペーン情報(毎月15名様限定)
〇引っ越しお祝い金342400円プレゼント(キャッシュバック)
〇仲介手数料無料キャンペーン
ザ・パークハビオ板橋区役所前 302の口コミ・レビュー
ザ・パークハビオ板橋区役所前 302は、まるで優雅な舞踏会のように、洗練された空間が広がる場所です。東京都板橋区大山東町33-1に位置し、あなたを西の太陽が優しく包み込む心地よい環境へと誘います。この特別な物件は、57.98㎡という広さを持ち、心に響く静けさとともに、自由な暮らしの舞台を提供します。
あなたが扉を開くと、まず目に飛び込んでくるのは洗練されたLDK11.3帖の空間です。ここでは、友…ザ・パークハビオ板橋区役所前 302は、まるで優雅な舞踏会のように、洗練された空間が広がる場所です。東京都板橋区大山東町33-1に位置し、あなたを西の太陽が優しく包み込む心地よい環境へと誘います。この特別な物件は、57.98㎡という広さを持ち、心に響く静けさとともに、自由な暮らしの舞台を提供します。
あなたが扉を開くと、まず目に飛び込んでくるのは洗練されたLDK11.3帖の空間です。ここでは、友人や家族と共に過ごす時間が、まるで映画のワンシーンのように美しい光景として映し出されます。カーテンが揺れ、やさしい風が運ぶ外の音色が、あなたの心を穏やかにしてくれるでしょう。
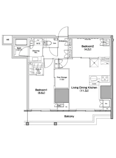
そして、洋室6.6帖と洋室4.2帖は、それぞれの個性を持った居心地の良い場所です。静寂を感じながら、心地良い手触りの布団に包まれ、朝の光が優しく差し込み、一日が始まる期待に満ちた瞬間を迎えるのです。ある日、コーヒーの香ばしい香りが広がる中、窓から見える西日の美しさに思わずため息が出ることでしょう。
「ザ・パークハビオ板橋区役所前 302」は、住む人に語りかけるように、優れた設備を備えています。TVモニターホンやオートロックがあなたを守り、安心感を与えてくれます。宅配ボックスは、日々の忙しさの中で、便利さを提供し、エレベーターでの移動がスムーズに行えるのも嬉しい特典です。駐車場や駐輪場が完備されているため、日常の移動も自由自在です。
周辺には、歴史深い文化と芸術が息づいています。板橋区役所前駅から徒歩2分の距離に位置するこの物件は、周囲に広がる緑あふれる公園や、趣ある商店街が、まるで時が止まったかのようにあなたを取り巻きます。散策するたびに、国の歴史と文化の深さを感じ、あなた自身もそのストーリーの一部となることでしょう。
さあ、「ザ・パークハビオ板橋区役所前 302」で、日常の中にかけがえのない瞬間を見つけてみませんか。そこには、あなた自身の人生の物語が、息を吹き込まれる瞬間が待っています。この特別な空間で、心の豊かさを感じ、日々の生活を映画のように魅力的に彩ってみるのはいかがでしょうか。あなたのご来訪を、心からお待ちしております。
あなたが扉を開くと、まず目に飛び込んでくるのは洗練されたLDK11.3帖の空間です。ここでは、友…ザ・パークハビオ板橋区役所前 302は、まるで優雅な舞踏会のように、洗練された空間が広がる場所です。東京都板橋区大山東町33-1に位置し、あなたを西の太陽が優しく包み込む心地よい環境へと誘います。この特別な物件は、57.98㎡という広さを持ち、心に響く静けさとともに、自由な暮らしの舞台を提供します。
あなたが扉を開くと、まず目に飛び込んでくるのは洗練されたLDK11.3帖の空間です。ここでは、友人や家族と共に過ごす時間が、まるで映画のワンシーンのように美しい光景として映し出されます。カーテンが揺れ、やさしい風が運ぶ外の音色が、あなたの心を穏やかにしてくれるでしょう。
そして、洋室6.6帖と洋室4.2帖は、それぞれの個性を持った居心地の良い場所です。静寂を感じながら、心地良い手触りの布団に包まれ、朝の光が優しく差し込み、一日が始まる期待に満ちた瞬間を迎えるのです。ある日、コーヒーの香ばしい香りが広がる中、窓から見える西日の美しさに思わずため息が出ることでしょう。
「ザ・パークハビオ板橋区役所前 302」は、住む人に語りかけるように、優れた設備を備えています。TVモニターホンやオートロックがあなたを守り、安心感を与えてくれます。宅配ボックスは、日々の忙しさの中で、便利さを提供し、エレベーターでの移動がスムーズに行えるのも嬉しい特典です。駐車場や駐輪場が完備されているため、日常の移動も自由自在です。
周辺には、歴史深い文化と芸術が息づいています。板橋区役所前駅から徒歩2分の距離に位置するこの物件は、周囲に広がる緑あふれる公園や、趣ある商店街が、まるで時が止まったかのようにあなたを取り巻きます。散策するたびに、国の歴史と文化の深さを感じ、あなた自身もそのストーリーの一部となることでしょう。
さあ、「ザ・パークハビオ板橋区役所前 302」で、日常の中にかけがえのない瞬間を見つけてみませんか。そこには、あなた自身の人生の物語が、息を吹き込まれる瞬間が待っています。この特別な空間で、心の豊かさを感じ、日々の生活を映画のように魅力的に彩ってみるのはいかがでしょうか。あなたのご来訪を、心からお待ちしております。
バイブルスコア
バイブルスコア: 97.1
レア物件です、すぐ仮押さえしましょう!
このお部屋は、現在ご入居中のため空室情報はございません。ただし、将来的に募集が開始される際、バイブルスコアにおいて非常に高い評価が期待されます。特にご興味をお持ちの方は、今のうちにブックマークやお気に入りに登録していただくと、募集開始のお知らせをすぐに受け取ることができます。是非ともご検討くださいませ。
※バイブルスコア詳細はこちら
バイブルスコアとは独自のAI機械学習技術を利用した物件評価システムで、物件のおすすめ度を示します。最高得点は100点で、スコアが高いほど、よりおすすめの物件と評価されています。
写真
現在写真が登録されていません契約条件
| 賃料 | 予想金額:204,000〜224,000円程度 | 管理費 | 予想金額:23,000〜27,000円程度 |
| 礼金 | 非公開(アーカイブ) | 敷金 | 非公開(アーカイブ) |
| フリーレント | なし | 平米数 | 57.98㎡ |
| 間取り | 2LDK | 大型収納 | WIC |
| 契約期間 | 2年 | 方角 | 西 |
| 更新料 | 1ヶ月 | 契約形態 | 普通賃貸借契約 |
| 取引態様 | 媒介 | 内見状況 | 入居中 |
| 入居時期 | 入居中 | SOHO・事務所 | 事務所(SOHO)可 |
| ペット | ペット可 | 間取り内訳 | 洋:6.6 洋:4.2 LDK:11.3 |
| キャンペーン情報・備考 | 本情報は賃料改定交渉の資料作成、収益物件の利回り試算、周辺エリアや最寄り駅の坪単価分析、次回募集開始時期の予測などにご活用いただけます。 | ||
※「どの不動産に頼めばいいのか分からない」「信頼できる営業マンの話を聞きたい」「一番親切な会社と契約したい」とお悩みの方におすすめなのが「高級賃貸バイブル」です。
高級賃貸バイブルは業界10年以上の熟練スタッフ群がお客様ファーストで対応します。
下記ボタンから、まずは無料でご相談下さい。
※内覧をご希望の際には、どうぞ物件のエントランス前にてお待ち合わせくださいませ。ご内覧後は、同じ場所でお別れとさせていただきます。お客様のご都合に合わせたスムーズなご案内を心がけておりますので、ご質問等がございましたら何なりとお申し付けください。 物件概要
| 物件名 |
| 築年月 |
|
|---|---|---|---|
| 所在地 |
| ||
| 交通 | |||
| 総戸数 | 総階数 |
| |
| 構造 |
| ||
地図
物件までの道のりは、「拡大地図を表示」をクリックしてナビ機能をご利用ください。
部屋設備


















建物設備

TVモニターホン

エレベーター

オートロック

宅配ボックス

敷地内ゴミ置場

管理人

駐車場平置き

駐車場機械式

駐輪場
ザ・パークハビオ板橋区役所前の現在募集中のお部屋
- ザ・パークハビオ板橋区役所前 902 - 間取り: 2LDK+WIC - 賃料: 23.8万円
- ザ・パークハビオ板橋区役所前 502 - 間取り: 2LDK+WIC - 賃料: 23.2万円
- ザ・パークハビオ板橋区役所前 1102 - 間取り: 2LDK+WIC - 賃料: 24.5万円
