
| 賃料 | 予想金額:73,000〜93,000円程度 | 管理費 | 予想金額:6,000〜10,000円程度 |
| 礼金/敷金 | 非公開(アーカイブ) | 平米数 | 25.65㎡ |
| 初期費用概算(参考) | 目安:56,700〜156,700 円 | みなし賃料(月額・参考) | 81,494〜101,494 円 |
| 備考 | 本ページは過去募集のアーカイブです。表示の金額は周辺相場・過去募集を踏まえた参考レンジであり、実際の契約金額・条件ではありません。 | ||
※上記みなし賃料(月額)は仲介手数料割引・無料&キャッシュバックを加味した高級賃貸バイブル限定の金額です。一般的なみなし賃料とは異なります。
【建物ページ】アルファコート青砥3の詳細・最新空室はこちら▶▶選ばれる理由
仲介手数料無料・キャンペーン情報(毎月15名様限定)
〇引っ越しお祝い金132800円プレゼント(キャッシュバック)
〇仲介手数料無料キャンペーン
アルファコート青砥3 401の口コミ・レビュー
このアルファコート青砥3 401には、洋室8.5帖の広々としたスペースがあり、ここ…アルファコート青砥3 401。この名はただの住所ではなく、あなたの新しい生活の舞台となる、心の拠り所です。南向きの窓から差し込む柔らかな光が、まるで朝の優しい手であなたを起こしてくれるかのよう。専有面積25.65㎡の空間は、あなたの個性を表現するキャンバスとなり、共に生活を築く大切なパートナーとなることでしょう。
このアルファコート青砥3 401には、洋室8.5帖の広々としたスペースがあり、ここでの生活を更に彩ることができます。ふわりとした心地よいカーテンが、風に揺れる様子は、心を穏やかにしてくれるはず。エレガントなデザインのTVモニターホンは、まるであなたを大切に思う家族の見守りのよう。オートロックが、あなたの私生活に安心感を与える一方、宅配ボックスや敷地内ゴミ置場は、現代的な利便性を兼ね備えています。この場所は、単なる住処ではなく、日々の生活を豊かにするための一つのアートなのです。
アルファコート青砥3 401に住むことは、まるで一つの映画の主演を演じるようなもの。京成押上線の青砥駅からの道中では、季節ごとに変わる風景が、あなたの心を高揚させてくれることでしょう。春には桜の花びらが舞い、夏には緑の香りに包まれ、秋には紅葉の鮮やかな色彩が広がり、冬には静寂の中に雪が舞い降ります。地下の生活を支える管理人が、まるで隠れた魔法使いのように、あなたの生活をサポートしてくれます。
この場所に住む毎日は、まるで五感を刺激する旋律のよう。キッチンから漂う料理の香りは、あなたを賢いシェフに変え、心の中で踊るような味覚の冒険へと誘います。窓を開け、風のささやきを聞けば、まるで自然の交響曲を楽しむような感覚に浸れます。触れるもの、それぞれがあなたの物語の一部となり、そして、あなたの想像力を膨らませてくれるのです。
アルファコート青砥3 401は、ただの物件ではなく、あなたの人生の新たなシーンを描く舞台なのです。この場所での日々が、あなたにとって特別な物語となることを心から願っています。さあ、新たな章をここから始めてみてはいかがでしょうか。あなたの物語は、ここ、アルファコート青砥3 401で始まります。
バイブルスコア
バイブルスコア: 53.7
条件のいい物件です、引っ越しが2か月以内の場合は仮申し込みを検討すべき物件です。
このお部屋は、現在ご入居中のため空室情報はございません。ただし、将来的に募集が開始される際、バイブルスコアにおいて非常に高い評価が期待されます。特にご興味をお持ちの方は、今のうちにブックマークやお気に入りに登録していただくと、募集開始のお知らせをすぐに受け取ることができます。是非ともご検討くださいませ。
※バイブルスコア詳細はこちら
バイブルスコアとは独自のAI機械学習技術を利用した物件評価システムで、物件のおすすめ度を示します。最高得点は100点で、スコアが高いほど、よりおすすめの物件と評価されています。
写真
現在写真が登録されていません契約条件
| 賃料 | 予想金額:73,000〜93,000円程度 | 管理費 | 予想金額:6,000〜10,000円程度 |
| 礼金 | 非公開(アーカイブ) | 敷金 | 非公開(アーカイブ) |
| フリーレント | なし | 平米数 | 25.65㎡ |
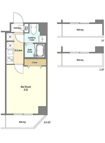
| 間取り | 1K | 大型収納 | |
| 契約期間 | 2年 | 方角 | 南 |
| 更新料 | 1ヶ月 | 契約形態 | 普通賃貸借契約 |
| 取引態様 | 媒介 | 内見状況 | 入居中 |
| 入居時期 | 入居中 | SOHO・事務所 | |
| ペット | 間取り内訳 | 洋:8.5 | |
| キャンペーン情報・備考 | 本情報は賃料改定交渉の資料作成、収益物件の利回り試算、周辺エリアや最寄り駅の坪単価分析、次回募集開始時期の予測などにご活用いただけます。 | ||
※「どの不動産に頼めばいいのか分からない」「信頼できる営業マンの話を聞きたい」「一番親切な会社と契約したい」とお悩みの方におすすめなのが「高級賃貸バイブル」です。
高級賃貸バイブルは業界10年以上の熟練スタッフ群がお客様ファーストで対応します。
下記ボタンから、まずは無料でご相談下さい。
※内覧をご希望の際には、どうぞ物件のエントランス前にてお待ち合わせくださいませ。ご内覧後は、同じ場所でお別れとさせていただきます。お客様のご都合に合わせたスムーズなご案内を心がけておりますので、ご質問等がございましたら何なりとお申し付けください。 物件概要
| 物件名 |
| 築年月 |
|
|---|---|---|---|
| 所在地 |
| ||
| 交通 |
| ||
| 総戸数 |
| 総階数 |
|
| 構造 |
| ||
地図
物件までの道のりは、「拡大地図を表示」をクリックしてナビ機能をご利用ください。
部屋設備














建物設備

TVモニターホン

エレベーター

オートロック

バイク置場

宅配ボックス

敷地内ゴミ置場

管理人

駐輪場
アルファコート青砥3の現在募集中のお部屋
- No rooms found for this property.
