
| 賃料 | 予想金額:213,000〜233,000円程度 | 管理費 | 予想金額:13,000〜17,000円程度 |
| 礼金/敷金 | 非公開(アーカイブ) | 平米数 | 38.87㎡ |
| 初期費用概算(参考) | 目安:861,000〜961,000 円 | みなし賃料(月額・参考) | 242,333〜262,333 円 |
| 備考 | 本ページは過去募集のアーカイブです。表示の金額は周辺相場・過去募集を踏まえた参考レンジであり、実際の契約金額・条件ではありません。 | ||
※上記みなし賃料(月額)は仲介手数料割引・無料&キャッシュバックを加味した高級賃貸バイブル限定の金額です。一般的なみなし賃料とは異なります。
【建物ページ】パークホームズ浜松町の詳細・最新空室はこちら▶▶選ばれる理由
仲介手数料無料・キャンペーン情報(毎月15名様限定)
〇仲介手数料割引キャンペーン
パークホームズ浜松町 10階 38.87㎡の口コミ・レビュー
パークホームズ浜松町 10階 38.87㎡。この美しい居住空間は、まるで洗練された映画の舞台のように、貴方を迎え入れます。北西の眺望からは、穏やかな海の景色が広がり、夕日のまろやかな光が貴方の部屋を温かく照らします。ここは、ただの住まいではなく、心のオアシスです。
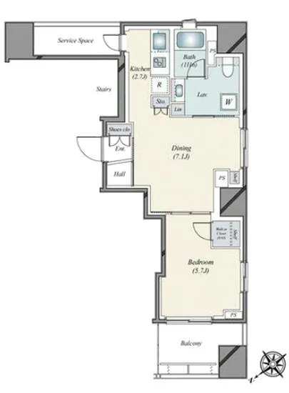
玄関のドアを開けると、まず出迎えてくれるのは、洗練されたデザインのインテリア。5.8帖の洋室は、自然光を優しく引き入れ、その美しさを…パークホームズ浜松町 10階 38.87㎡。この美しい居住空間は、まるで洗練された映画の舞台のように、貴方を迎え入れます。北西の眺望からは、穏やかな海の景色が広がり、夕日のまろやかな光が貴方の部屋を温かく照らします。ここは、ただの住まいではなく、心のオアシスです。
玄関のドアを開けると、まず出迎えてくれるのは、洗練されたデザインのインテリア。5.8帖の洋室は、自然光を優しく引き入れ、その美しさを際立たせます。静寂に包まれたこの空間では、心地よい風が通り抜け、まるで貴方の心の声を耳にするかのようです。しっかりしたクローゼットが佇む洋室で、日々の暮らしをアップグレードするスタイルを楽しんでください。
次に、7.1帖のダイニングルームが貴方を温かく迎え入れ、愛する人たちとともに心に残るひとときを演出します。ここでの食事は、ただの栄養補給ではなく、味わう楽しみ、そして豊かな思い出を彩る瞬間となります。料理の香ばしい匂いが立ち込める中で、笑い声が響き渡る、そんな日常がここには待っています。
そして、2.7帖のキッチンは、まるで貴方のクリエイティブなアイデアを応援するかのように、機能的でありながらスタイリッシュ。料理をしながら、窓の外を見れば、東京の美しい夜景が眼前に広がり、日常が特別なものに変わります。
パークホームズ浜松町は、ただの集合住宅ではありません。オートロックシステムや宅配ボックスなど、安心と便利さを兼ね備えています。特に、ラウンジでのひとときは、隣人との素敵な出会いの場でもあり、心温まる交流がもたらされることでしょう。
周辺には、歴史的な名所や文化的なスポットが点在し、まるで貴方を新しい冒険へと誘うかのようです。ゆりかもめ竹芝駅から徒歩2分というアクセスも、生活を一層豊かにし、東京の彩りを存分に楽しむことを可能にします。
パークホームズ浜松町 10階 38.87㎡では、貴方の日々が映画のワンシーンのように生き生きと映し出されることでしょう。五感を刺激する高級で洗練された空間で、心のゆとりを手に入れてください。ここでの生活は、ただの暮らしではなく、豊かな人生を築くための出発点です。新しい物語が、今ここから始まるのです。
玄関のドアを開けると、まず出迎えてくれるのは、洗練されたデザインのインテリア。5.8帖の洋室は、自然光を優しく引き入れ、その美しさを…パークホームズ浜松町 10階 38.87㎡。この美しい居住空間は、まるで洗練された映画の舞台のように、貴方を迎え入れます。北西の眺望からは、穏やかな海の景色が広がり、夕日のまろやかな光が貴方の部屋を温かく照らします。ここは、ただの住まいではなく、心のオアシスです。
玄関のドアを開けると、まず出迎えてくれるのは、洗練されたデザインのインテリア。5.8帖の洋室は、自然光を優しく引き入れ、その美しさを際立たせます。静寂に包まれたこの空間では、心地よい風が通り抜け、まるで貴方の心の声を耳にするかのようです。しっかりしたクローゼットが佇む洋室で、日々の暮らしをアップグレードするスタイルを楽しんでください。
次に、7.1帖のダイニングルームが貴方を温かく迎え入れ、愛する人たちとともに心に残るひとときを演出します。ここでの食事は、ただの栄養補給ではなく、味わう楽しみ、そして豊かな思い出を彩る瞬間となります。料理の香ばしい匂いが立ち込める中で、笑い声が響き渡る、そんな日常がここには待っています。
そして、2.7帖のキッチンは、まるで貴方のクリエイティブなアイデアを応援するかのように、機能的でありながらスタイリッシュ。料理をしながら、窓の外を見れば、東京の美しい夜景が眼前に広がり、日常が特別なものに変わります。
パークホームズ浜松町は、ただの集合住宅ではありません。オートロックシステムや宅配ボックスなど、安心と便利さを兼ね備えています。特に、ラウンジでのひとときは、隣人との素敵な出会いの場でもあり、心温まる交流がもたらされることでしょう。
周辺には、歴史的な名所や文化的なスポットが点在し、まるで貴方を新しい冒険へと誘うかのようです。ゆりかもめ竹芝駅から徒歩2分というアクセスも、生活を一層豊かにし、東京の彩りを存分に楽しむことを可能にします。
パークホームズ浜松町 10階 38.87㎡では、貴方の日々が映画のワンシーンのように生き生きと映し出されることでしょう。五感を刺激する高級で洗練された空間で、心のゆとりを手に入れてください。ここでの生活は、ただの暮らしではなく、豊かな人生を築くための出発点です。新しい物語が、今ここから始まるのです。
バイブルスコア
バイブルスコア: 48
条件のいい物件です、引っ越しが2か月以内の場合は仮申し込みを検討すべき物件です。
※バイブルスコア詳細はこちら
バイブルスコアとは独自のAI機械学習技術を利用した物件評価システムで、物件のおすすめ度を示します。最高得点は100点で、スコアが高いほど、よりおすすめの物件と評価されています。
写真
現在写真が登録されていません契約条件
| 賃料 | 予想金額:213,000〜233,000円程度 | 管理費 | 予想金額:13,000〜17,000円程度 |
| 礼金 | 非公開(アーカイブ) | 敷金 | 非公開(アーカイブ) |
| フリーレント | なし | 平米数 | 38.87㎡ |
| 間取り | 1DK | 大型収納 | WIC |
| 契約期間 | 2年 | 方角 | 北西 |
| 更新料 | 1ヶ月 | 契約形態 | 普通賃貸借契約 |
| 取引態様 | 媒介 | 内見状況 | 入居中 |
| 入居時期 | 入居中 | SOHO・事務所 | 不可 |
| ペット | 不可 | 間取り内訳 | 洋:5.8 D:7.1 K:2.7 |
| キャンペーン情報・備考 | 本情報は賃料改定交渉の資料作成、収益物件の利回り試算、周辺エリアや最寄り駅の坪単価分析、次回募集開始時期の予測などにご活用いただけます。 | ||
※「どの不動産に頼めばいいのか分からない」「信頼できる営業マンの話を聞きたい」「一番親切な会社と契約したい」とお悩みの方におすすめなのが「高級賃貸バイブル」です。
高級賃貸バイブルは業界10年以上の熟練スタッフ群がお客様ファーストで対応します。
下記ボタンから、まずは無料でご相談下さい。
※内覧をご希望の際には、どうぞ物件のエントランス前にてお待ち合わせくださいませ。ご内覧後は、同じ場所でお別れとさせていただきます。お客様のご都合に合わせたスムーズなご案内を心がけておりますので、ご質問等がございましたら何なりとお申し付けください。 物件概要
| 物件名 |
| 築年月 |
|
|---|---|---|---|
| 所在地 | |||
| 交通 | |||
| 総戸数 |
| 総階数 |
|
| 構造 |
| ||
地図
物件までの道のりは、「拡大地図を表示」をクリックしてナビ機能をご利用ください。
部屋設備













建物設備

TVモニターホン

エレベーター

オートロック

ラウンジ

宅配ボックス

敷地内ゴミ置場

管理人

駐輪場
パークホームズ浜松町の現在募集中のお部屋
- パークホームズ浜松町 14階 57.95㎡ - 間取り: 2LDK+WIC - 賃料: 39万円
