
| 賃料 | 予想金額:88,000〜108,000円程度 | 管理費 | 予想金額:16,000〜20,000円程度 |
| 礼金/敷金 | 非公開(アーカイブ) | 平米数 | 25.34㎡ |
| 初期費用概算(参考) | 目安:85,200〜185,200 円 | みなし賃料(月額・参考) | 106,775〜126,775 円 |
| 備考 | 本ページは過去募集のアーカイブです。表示の金額は周辺相場・過去募集を踏まえた参考レンジであり、実際の契約金額・条件ではありません。 | ||
※上記みなし賃料(月額)は仲介手数料割引・無料&キャッシュバックを加味した高級賃貸バイブル限定の金額です。一般的なみなし賃料とは異なります。
【建物ページ】ブライズ西大井DUEの詳細・最新空室はこちら▶▶選ばれる理由
仲介手数料無料・キャンペーン情報(毎月15名様限定)
〇引っ越しお祝い金58800円プレゼント(キャッシュバック)
〇仲介手数料無料キャンペーン
ブライズ西大井DUE 309の口コミ・レビュー
ブライズ西大井DUE 309は、東京都品川区西大井に佇む、まるで夢の中から抜け出したかのような魅力を持つ高級賃貸物件です。この309号室は、あなたの人生の新たな章を開くための絶好の舞台です。専有面積25.34㎡の中に、無限の可能性が広がります。その扉を開くと、静寂の中にほんのり漂う木の香りが迎えてくれ、どこか懐かしい優しさが心に染み渡ります。
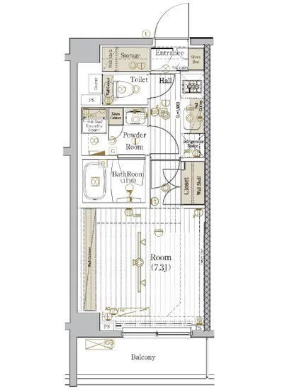
このお部屋の間取りは、洋室7.3帖。まるであなた自身…ブライズ西大井DUE 309は、東京都品川区西大井に佇む、まるで夢の中から抜け出したかのような魅力を持つ高級賃貸物件です。この309号室は、あなたの人生の新たな章を開くための絶好の舞台です。専有面積25.34㎡の中に、無限の可能性が広がります。その扉を開くと、静寂の中にほんのり漂う木の香りが迎えてくれ、どこか懐かしい優しさが心に染み渡ります。
このお部屋の間取りは、洋室7.3帖。まるであなた自身の小宇宙のように、自由にコーディネートできる空間です。自然光が差し込む西向きの窓からは、夕暮れ時のオレンジ色の光が優しく照らし、心和むひとときを演出します。あなたがゆったりとソファに身を委ね、コーヒーの香りとともに本を開く姿が目に浮かびます。その景色は、まるで映画のワンシーンのようです。
ブライズ西大井DUE 309には、単なる居住空間以上の価値があります。オートロックを通り抜け、エレベーターで優雅に自宅へと帰る瞬間、思わず深呼吸をしてしまうほどの安心感に包まれます。宅配ボックスが完備されているため、忙しい毎日の中でも、大切な荷物が自宅に届く喜びを味わえます。そして、管理人による丁寧なサポートも心強い存在です。
この物件は、周辺の文化や歴史とも深いつながりを持っています。西大井という土地は、長い歴史を経て今もなお色褪せることのない魅力を秘めています。近くの公園では、四季折々の花々が咲き誇り、その景色に癒されることができます。散歩がてらに訪れると、風に揺れる木々の音や、鳥のさえずりが、まるで自然のオーケストラのように心を豊かにしてくれます。
そして、夜が訪れると、ブライズ西大井DUE 309の中での過ごし方は一層特別なものになります。ロマンチックな照明のもと、心地よい音楽が流れ、友人を招いてのディナーや、静かに一人で映画を楽しむ時間が待っています。お料理の香ばしい香りが部屋中に広がり、素敵な会話が弾むひととき。そこには、怠惰とも、活気とも違う、特別な空気感が流れています。
ブライズ西大井DUE 309は、あなたにとっての「我が家」となり、心が満たされる瞬間を提供してくれる場所です。新たな生活が始まるその日を心待ちにしながら、あなた自身の物語をこの特別な空間で紡いでみてはいかがでしょうか。ここには、あなたの人生を豊かにするための魔法が、静かに宿っているのです。
このお部屋の間取りは、洋室7.3帖。まるであなた自身…ブライズ西大井DUE 309は、東京都品川区西大井に佇む、まるで夢の中から抜け出したかのような魅力を持つ高級賃貸物件です。この309号室は、あなたの人生の新たな章を開くための絶好の舞台です。専有面積25.34㎡の中に、無限の可能性が広がります。その扉を開くと、静寂の中にほんのり漂う木の香りが迎えてくれ、どこか懐かしい優しさが心に染み渡ります。
このお部屋の間取りは、洋室7.3帖。まるであなた自身の小宇宙のように、自由にコーディネートできる空間です。自然光が差し込む西向きの窓からは、夕暮れ時のオレンジ色の光が優しく照らし、心和むひとときを演出します。あなたがゆったりとソファに身を委ね、コーヒーの香りとともに本を開く姿が目に浮かびます。その景色は、まるで映画のワンシーンのようです。
ブライズ西大井DUE 309には、単なる居住空間以上の価値があります。オートロックを通り抜け、エレベーターで優雅に自宅へと帰る瞬間、思わず深呼吸をしてしまうほどの安心感に包まれます。宅配ボックスが完備されているため、忙しい毎日の中でも、大切な荷物が自宅に届く喜びを味わえます。そして、管理人による丁寧なサポートも心強い存在です。
この物件は、周辺の文化や歴史とも深いつながりを持っています。西大井という土地は、長い歴史を経て今もなお色褪せることのない魅力を秘めています。近くの公園では、四季折々の花々が咲き誇り、その景色に癒されることができます。散歩がてらに訪れると、風に揺れる木々の音や、鳥のさえずりが、まるで自然のオーケストラのように心を豊かにしてくれます。
そして、夜が訪れると、ブライズ西大井DUE 309の中での過ごし方は一層特別なものになります。ロマンチックな照明のもと、心地よい音楽が流れ、友人を招いてのディナーや、静かに一人で映画を楽しむ時間が待っています。お料理の香ばしい香りが部屋中に広がり、素敵な会話が弾むひととき。そこには、怠惰とも、活気とも違う、特別な空気感が流れています。
ブライズ西大井DUE 309は、あなたにとっての「我が家」となり、心が満たされる瞬間を提供してくれる場所です。新たな生活が始まるその日を心待ちにしながら、あなた自身の物語をこの特別な空間で紡いでみてはいかがでしょうか。ここには、あなたの人生を豊かにするための魔法が、静かに宿っているのです。
バイブルスコア
バイブルスコア: 27.3
平均的なスコアです。
※バイブルスコア詳細はこちら
バイブルスコアとは独自のAI機械学習技術を利用した物件評価システムで、物件のおすすめ度を示します。最高得点は100点で、スコアが高いほど、よりおすすめの物件と評価されています。
写真
現在写真が登録されていません契約条件
| 賃料 | 予想金額:88,000〜108,000円程度 | 管理費 | 予想金額:16,000〜20,000円程度 |
| 礼金 | 非公開(アーカイブ) | 敷金 | 非公開(アーカイブ) |
| フリーレント | なし | 平米数 | 25.34㎡ |
| 間取り | 1K | 大型収納 | |
| 契約期間 |
| 方角 | 西 |
| 更新料 | 契約形態 | 普通賃貸借契約 | |
| 取引態様 | 媒介 | 内見状況 | 入居中 |
| 入居時期 | 入居中 | SOHO・事務所 | |
| ペット | ペット可 | 間取り内訳 | 洋:7.3 |
| キャンペーン情報・備考 | 本情報は賃料改定交渉の資料作成、収益物件の利回り試算、周辺エリアや最寄り駅の坪単価分析、次回募集開始時期の予測などにご活用いただけます。 | ||
※「どの不動産に頼めばいいのか分からない」「信頼できる営業マンの話を聞きたい」「一番親切な会社と契約したい」とお悩みの方におすすめなのが「高級賃貸バイブル」です。
高級賃貸バイブルは業界10年以上の熟練スタッフ群がお客様ファーストで対応します。
下記ボタンから、まずは無料でご相談下さい。
※内覧をご希望の際には、どうぞ物件のエントランス前にてお待ち合わせくださいませ。ご内覧後は、同じ場所でお別れとさせていただきます。お客様のご都合に合わせたスムーズなご案内を心がけておりますので、ご質問等がございましたら何なりとお申し付けください。 物件概要
| 物件名 |
| 築年月 |
|
|---|---|---|---|
| 所在地 | |||
| 交通 | |||
| 総戸数 |
| 総階数 |
|
| 構造 |
| ||
地図
物件までの道のりは、「拡大地図を表示」をクリックしてナビ機能をご利用ください。
部屋設備













建物設備

TVモニターホン

エレベーター

オートロック

バイク置場

宅配ボックス

敷地内ゴミ置場

管理人

駐車場平置き

駐輪場
ブライズ西大井DUEの現在募集中のお部屋
- No rooms found for this property.
