
| 賃料 | 予想金額:70,000〜90,000円程度 | 管理費 | 予想金額:8,000〜12,000円程度 |
| 礼金/敷金 | 非公開(アーカイブ) | 平米数 | 25.22㎡ |
| 初期費用概算(参考) | 目安:57,000〜157,000 円 | みなし賃料(月額・参考) | 80,563〜100,563 円 |
| 備考 | 本ページは過去募集のアーカイブです。表示の金額は周辺相場・過去募集を踏まえた参考レンジであり、実際の契約金額・条件ではありません。 | ||
※上記みなし賃料(月額)は仲介手数料割引・無料&キャッシュバックを加味した高級賃貸バイブル限定の金額です。一般的なみなし賃料とは異なります。
【建物ページ】エスレジデンス板橋大山の詳細・最新空室はこちら▶▶選ばれる理由
仲介手数料無料・キャンペーン情報(毎月15名様限定)
〇引っ越しお祝い金128000円プレゼント(キャッシュバック)
〇仲介手数料無料キャンペーン
エスレジデンス板橋大山 605の口コミ・レビュー
エスレジデンス板橋大山 605へようこそ。あなたがこの特別な場所に足を踏み入れた瞬間、まるで映画のワンシーンに迷い込んだかのような感覚に包まれることでしょう。この美しい605号室は、25.22㎡の空間にあなたの日常を特別な物語に変える魔法が詰まっています。
このエスレジデンス板橋大山は、ただの住宅ではありません。温もりを感じる白壁と、柔らかな日差しが注ぎ込む窓は、そのままあなたの生活を見守り、話…エスレジデンス板橋大山 605へようこそ。あなたがこの特別な場所に足を踏み入れた瞬間、まるで映画のワンシーンに迷い込んだかのような感覚に包まれることでしょう。この美しい605号室は、25.22㎡の空間にあなたの日常を特別な物語に変える魔法が詰まっています。
このエスレジデンス板橋大山は、ただの住宅ではありません。温もりを感じる白壁と、柔らかな日差しが注ぎ込む窓は、そのままあなたの生活を見守り、話しかけるかのようです。西を向いた窓からは、沈む夕陽が優雅に街を染め上げ、オレンジ色の光が部屋の中までその温もりを届けてくれます。あなたがこの場所で過ごす一日の終わりに、心が穏やかになる瞬間を約束します。
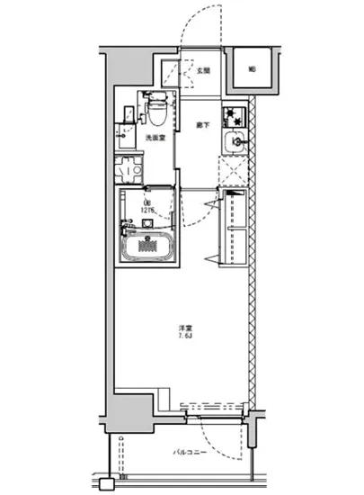
この1Kのお部屋には、7.6帖の洋室が広がり、空間の使い方は無限大。その空間はあなたの夢やアイデアに自由を与えてくれます。朝の光を浴びながら新しい一日を始めるとき、あなただけのアートスタジオとして、あるいは心温まる読書スペースとして、思い思いの使い方を楽しむことができるのです。柔らかいカーペットが足裏を優しく包み込み、心地よい質感がストレスを解きほぐしてくれます。
エスレジデンス板橋大山には、すべての生活を支える設備が整っています。TVモニターホンやオートロック、管理人の存在は、あなたの安心を確かなものにしてくれます。宅配ボックスも完備されており、外出中でも大切な配達物が確実にストックされるので、心配無用です。
周囲には、歴史深い板橋の街並みが広がっており、文化や芸術に触れる機会が豊富です。散策を楽しむ中で見つけた小さなアートギャラリーや、街の歴史を語る神社に立ち寄ると、心が豊かになること請け合いです。板橋の魅力は、住むだけでなく、訪れることで感じることができるのです。
肝心のアクセスは、東武東上線の下板橋駅まで徒歩10分。閑静な環境で過ごしながらも、都心へのアクセスが手軽で、ビジネスにも遊びにも便利です。日常の中で小さな冒険を満喫することができる、その立地はまるで街という大きな舞台の一部であるかのようです。
エスレジデンス板橋大山は、ただの住まいではなく、あなたの新しいストーリーが始まる場所です。ここでの日々は、あなた自身が主人公となり、毎日が映画のように素晴らしい瞬間となることでしょう。どうぞ、この空間で新たな物語を紡いでください。あなたの感性を刺激する環境が、日常を特別なものへと変えてくれることでしょう。
このエスレジデンス板橋大山は、ただの住宅ではありません。温もりを感じる白壁と、柔らかな日差しが注ぎ込む窓は、そのままあなたの生活を見守り、話…エスレジデンス板橋大山 605へようこそ。あなたがこの特別な場所に足を踏み入れた瞬間、まるで映画のワンシーンに迷い込んだかのような感覚に包まれることでしょう。この美しい605号室は、25.22㎡の空間にあなたの日常を特別な物語に変える魔法が詰まっています。
このエスレジデンス板橋大山は、ただの住宅ではありません。温もりを感じる白壁と、柔らかな日差しが注ぎ込む窓は、そのままあなたの生活を見守り、話しかけるかのようです。西を向いた窓からは、沈む夕陽が優雅に街を染め上げ、オレンジ色の光が部屋の中までその温もりを届けてくれます。あなたがこの場所で過ごす一日の終わりに、心が穏やかになる瞬間を約束します。
この1Kのお部屋には、7.6帖の洋室が広がり、空間の使い方は無限大。その空間はあなたの夢やアイデアに自由を与えてくれます。朝の光を浴びながら新しい一日を始めるとき、あなただけのアートスタジオとして、あるいは心温まる読書スペースとして、思い思いの使い方を楽しむことができるのです。柔らかいカーペットが足裏を優しく包み込み、心地よい質感がストレスを解きほぐしてくれます。
エスレジデンス板橋大山には、すべての生活を支える設備が整っています。TVモニターホンやオートロック、管理人の存在は、あなたの安心を確かなものにしてくれます。宅配ボックスも完備されており、外出中でも大切な配達物が確実にストックされるので、心配無用です。
周囲には、歴史深い板橋の街並みが広がっており、文化や芸術に触れる機会が豊富です。散策を楽しむ中で見つけた小さなアートギャラリーや、街の歴史を語る神社に立ち寄ると、心が豊かになること請け合いです。板橋の魅力は、住むだけでなく、訪れることで感じることができるのです。
肝心のアクセスは、東武東上線の下板橋駅まで徒歩10分。閑静な環境で過ごしながらも、都心へのアクセスが手軽で、ビジネスにも遊びにも便利です。日常の中で小さな冒険を満喫することができる、その立地はまるで街という大きな舞台の一部であるかのようです。
エスレジデンス板橋大山は、ただの住まいではなく、あなたの新しいストーリーが始まる場所です。ここでの日々は、あなた自身が主人公となり、毎日が映画のように素晴らしい瞬間となることでしょう。どうぞ、この空間で新たな物語を紡いでください。あなたの感性を刺激する環境が、日常を特別なものへと変えてくれることでしょう。
バイブルスコア
バイブルスコア: 67.6
かなり条件の良い物件です、即仮押さえをおすすめする物件です!
このお部屋は、現在ご入居中のため空室情報はございません。ただし、将来的に募集が開始される際、バイブルスコアにおいて非常に高い評価が期待されます。特にご興味をお持ちの方は、今のうちにブックマークやお気に入りに登録していただくと、募集開始のお知らせをすぐに受け取ることができます。是非ともご検討くださいませ。
※バイブルスコア詳細はこちら
バイブルスコアとは独自のAI機械学習技術を利用した物件評価システムで、物件のおすすめ度を示します。最高得点は100点で、スコアが高いほど、よりおすすめの物件と評価されています。
写真
現在写真が登録されていません契約条件
| 賃料 | 予想金額:70,000〜90,000円程度 | 管理費 | 予想金額:8,000〜12,000円程度 |
| 礼金 | 非公開(アーカイブ) | 敷金 | 非公開(アーカイブ) |
| フリーレント | なし | 平米数 | 25.22㎡ |
| 間取り | 1K | 大型収納 | |
| 契約期間 | 2年 | 方角 | 西 |
| 更新料 | 1ヶ月 | 契約形態 | 普通賃貸借契約 |
| 取引態様 | 媒介 | 内見状況 | 入居中 |
| 入居時期 | 入居中 | SOHO・事務所 | |
| ペット | ペット可 | 間取り内訳 | 洋:7.6 |
| キャンペーン情報・備考 | 本情報は賃料改定交渉の資料作成、収益物件の利回り試算、周辺エリアや最寄り駅の坪単価分析、次回募集開始時期の予測などにご活用いただけます。 | ||
※「どの不動産に頼めばいいのか分からない」「信頼できる営業マンの話を聞きたい」「一番親切な会社と契約したい」とお悩みの方におすすめなのが「高級賃貸バイブル」です。
高級賃貸バイブルは業界10年以上の熟練スタッフ群がお客様ファーストで対応します。
下記ボタンから、まずは無料でご相談下さい。
※内覧をご希望の際には、どうぞ物件のエントランス前にてお待ち合わせくださいませ。ご内覧後は、同じ場所でお別れとさせていただきます。お客様のご都合に合わせたスムーズなご案内を心がけておりますので、ご質問等がございましたら何なりとお申し付けください。 物件概要
地図
物件までの道のりは、「拡大地図を表示」をクリックしてナビ機能をご利用ください。
部屋設備











建物設備

TVモニターホン

エレベーター

オートロック

バイク置場

宅配ボックス

敷地内ゴミ置場

管理人

駐車場平置き

駐輪場
エスレジデンス板橋大山の現在募集中のお部屋
- No rooms found for this property.
