
| 賃料 | 予想金額:134,000〜154,000円程度 | 管理費 | 予想金額:8,000〜12,000円程度 |
| 礼金/敷金 | 非公開(アーカイブ) | 平米数 | 29.13㎡ |
| 初期費用概算(参考) | 目安:185,820〜285,820 円 | みなし賃料(月額・参考) | 145,913〜165,913 円 |
| 備考 | 本ページは過去募集のアーカイブです。表示の金額は周辺相場・過去募集を踏まえた参考レンジであり、実際の契約金額・条件ではありません。 | ||
※上記みなし賃料(月額)は仲介手数料割引・無料&キャッシュバックを加味した高級賃貸バイブル限定の金額です。一般的なみなし賃料とは異なります。
【建物ページ】エスレジデンス新宿御苑の詳細・最新空室はこちら▶▶選ばれる理由
仲介手数料無料・キャンペーン情報(毎月15名様限定)
〇引っ越しお祝い金175680円プレゼント(キャッシュバック)
〇仲介手数料無料キャンペーン
エスレジデンス新宿御苑 203の口コミ・レビュー
エスレジデンス新宿御苑 203。当物件は、優雅なライフスタイルを求める貴方に、洗練された生活の舞台を提供します。東京都新宿区四谷4-31という、歴史と文化が交差する場所に佇むこのレジデンスは、まるで心の隅々まで潤す一つのアートのように、貴方の毎日を彩ります。
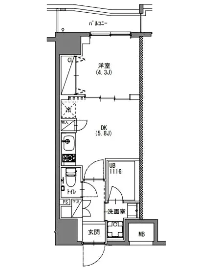
エスレジデンス新宿御苑 203は、専有面積29.13㎡のコンパクトな空間ながら、洋室4.3畳とダイニングキッチン5.8畳という巧妙な間取り…エスレジデンス新宿御苑 203。当物件は、優雅なライフスタイルを求める貴方に、洗練された生活の舞台を提供します。東京都新宿区四谷4-31という、歴史と文化が交差する場所に佇むこのレジデンスは、まるで心の隅々まで潤す一つのアートのように、貴方の毎日を彩ります。
エスレジデンス新宿御苑 203は、専有面積29.13㎡のコンパクトな空間ながら、洋室4.3畳とダイニングキッチン5.8畳という巧妙な間取りが、貴方のライフスタイルに柔軟に寄り添います。日々の生活の中で心地よく感じる陽光が、お部屋を優しく包み込む様子は、まるで自然の光がダンスを踊るかのよう。朝の光で優しく目を覚まし、カーテンの隙間から洩れる光が、貴方の朝食を豊かに照らしてくれます。
新宿御苑前駅から徒歩5分という立地は、まるで時間の流れを変える魔法のよう。周辺には桜の名所や美しい庭園が広がり、春の訪れには見事な桜が貴方を迎えてくれます。その風景は、映画のワンシーンのように、心に深く刻まれることでしょう。エスレジデンス新宿御苑 203の窓から眺める季節の移ろいは、まるで四季折々の詩のよう。新緑の香り、紅葉の舞い、雪の静寂に包まれる瞬間。これらは全て、貴方の生活に深い感動を与えてくれることでしょう。
また、エスレジデンス新宿御苑 203には、スマートな生活を支える魅力的な設備が整っています。オートロックやエレベーター、バイク置場といった設備は、日々の生活をサポートし、管理人が見守る安心感を提供しています。宅配ボックスは、忙しい貴方にぴったりのシステムで、宅配の荷物もスムーズに受け取ることができます。駐車場は平置きと機械式を完備し、便利なライフスタイルを実現します。
生活の香り豊かさを増すのは、エスレジデンス新宿御苑 203の周辺にある多くのカフェやレストランの存在です。朝の一杯のコーヒー、昼下がりのスイーツ、夜の友人とのディナーまで、あらゆるシチュエーションで貴方の五感を刺激します。新たな出会いや発見を楽しむ中で、まるで映画の主人公となり、素敵なストーリーを紡いでいくことでしょう。
エスレジデンス新宿御苑 203は、ただの居住空間ではなく、貴方の物語が始まる場所なのです。歴史と文化が息づくこの土地で、日々の生活を映画のワンシーンのように感じながら、豊かな時間を過ごしていただければと心から願っています。貴方の新たな生活が、エスレジデンス新宿御苑 203で始まることを、楽しみにしております。
エスレジデンス新宿御苑 203は、専有面積29.13㎡のコンパクトな空間ながら、洋室4.3畳とダイニングキッチン5.8畳という巧妙な間取り…エスレジデンス新宿御苑 203。当物件は、優雅なライフスタイルを求める貴方に、洗練された生活の舞台を提供します。東京都新宿区四谷4-31という、歴史と文化が交差する場所に佇むこのレジデンスは、まるで心の隅々まで潤す一つのアートのように、貴方の毎日を彩ります。
エスレジデンス新宿御苑 203は、専有面積29.13㎡のコンパクトな空間ながら、洋室4.3畳とダイニングキッチン5.8畳という巧妙な間取りが、貴方のライフスタイルに柔軟に寄り添います。日々の生活の中で心地よく感じる陽光が、お部屋を優しく包み込む様子は、まるで自然の光がダンスを踊るかのよう。朝の光で優しく目を覚まし、カーテンの隙間から洩れる光が、貴方の朝食を豊かに照らしてくれます。
新宿御苑前駅から徒歩5分という立地は、まるで時間の流れを変える魔法のよう。周辺には桜の名所や美しい庭園が広がり、春の訪れには見事な桜が貴方を迎えてくれます。その風景は、映画のワンシーンのように、心に深く刻まれることでしょう。エスレジデンス新宿御苑 203の窓から眺める季節の移ろいは、まるで四季折々の詩のよう。新緑の香り、紅葉の舞い、雪の静寂に包まれる瞬間。これらは全て、貴方の生活に深い感動を与えてくれることでしょう。
また、エスレジデンス新宿御苑 203には、スマートな生活を支える魅力的な設備が整っています。オートロックやエレベーター、バイク置場といった設備は、日々の生活をサポートし、管理人が見守る安心感を提供しています。宅配ボックスは、忙しい貴方にぴったりのシステムで、宅配の荷物もスムーズに受け取ることができます。駐車場は平置きと機械式を完備し、便利なライフスタイルを実現します。
生活の香り豊かさを増すのは、エスレジデンス新宿御苑 203の周辺にある多くのカフェやレストランの存在です。朝の一杯のコーヒー、昼下がりのスイーツ、夜の友人とのディナーまで、あらゆるシチュエーションで貴方の五感を刺激します。新たな出会いや発見を楽しむ中で、まるで映画の主人公となり、素敵なストーリーを紡いでいくことでしょう。
エスレジデンス新宿御苑 203は、ただの居住空間ではなく、貴方の物語が始まる場所なのです。歴史と文化が息づくこの土地で、日々の生活を映画のワンシーンのように感じながら、豊かな時間を過ごしていただければと心から願っています。貴方の新たな生活が、エスレジデンス新宿御苑 203で始まることを、楽しみにしております。
バイブルスコア
バイブルスコア: 28.9
平均的なスコアです。
※バイブルスコア詳細はこちら
バイブルスコアとは独自のAI機械学習技術を利用した物件評価システムで、物件のおすすめ度を示します。最高得点は100点で、スコアが高いほど、よりおすすめの物件と評価されています。
写真
現在写真が登録されていません契約条件
| 賃料 | 予想金額:134,000〜154,000円程度 | 管理費 | 予想金額:8,000〜12,000円程度 |
| 礼金 | 非公開(アーカイブ) | 敷金 | 非公開(アーカイブ) |
| フリーレント | なし | 平米数 | 29.13㎡ |
| 間取り | 1DK | 大型収納 | |
| 契約期間 |
| 方角 | |
| 更新料 | 契約形態 | 普通賃貸借契約 | |
| 取引態様 | 媒介 | 内見状況 | 入居中 |
| 入居時期 | 入居中 | SOHO・事務所 | |
| ペット | ペット可 | 間取り内訳 | 洋:4.3 DK:5.8 |
| キャンペーン情報・備考 | 本情報は賃料改定交渉の資料作成、収益物件の利回り試算、周辺エリアや最寄り駅の坪単価分析、次回募集開始時期の予測などにご活用いただけます。 | ||
※「どの不動産に頼めばいいのか分からない」「信頼できる営業マンの話を聞きたい」「一番親切な会社と契約したい」とお悩みの方におすすめなのが「高級賃貸バイブル」です。
高級賃貸バイブルは業界10年以上の熟練スタッフ群がお客様ファーストで対応します。
下記ボタンから、まずは無料でご相談下さい。
※内覧をご希望の際には、どうぞ物件のエントランス前にてお待ち合わせくださいませ。ご内覧後は、同じ場所でお別れとさせていただきます。お客様のご都合に合わせたスムーズなご案内を心がけておりますので、ご質問等がございましたら何なりとお申し付けください。 物件概要
| 物件名 |
| 築年月 |
|
|---|---|---|---|
| 所在地 | |||
| 交通 | |||
| 総戸数 |
| 総階数 |
|
| 構造 |
| ||
地図
物件までの道のりは、「拡大地図を表示」をクリックしてナビ機能をご利用ください。
部屋設備












建物設備

TVモニターホン

エレベーター

オートロック

バイク置場

宅配ボックス

敷地内ゴミ置場

管理人

駐車場平置き

駐車場機械式

駐輪場
エスレジデンス新宿御苑の現在募集中のお部屋
- No rooms found for this property.
