
| 賃料 | 予想金額:188,000〜208,000円程度 | 管理費 | 予想金額:10,000〜14,000円程度 |
| 礼金/敷金 | 非公開(アーカイブ) | 平米数 | 40.06㎡ |
| 初期費用概算(参考) | 目安:752,500〜852,500 円 | みなし賃料(月額・参考) | 212,594〜232,594 円 |
| 備考 | 本ページは過去募集のアーカイブです。表示の金額は周辺相場・過去募集を踏まえた参考レンジであり、実際の契約金額・条件ではありません。 | ||
※上記みなし賃料(月額)は仲介手数料割引・無料&キャッシュバックを加味した高級賃貸バイブル限定の金額です。一般的なみなし賃料とは異なります。
【建物ページ】エスセナーリオ目黒花房山の詳細・最新空室はこちら▶▶選ばれる理由
仲介手数料無料・キャンペーン情報(毎月15名様限定)
〇仲介手数料割引キャンペーン
エスセナーリオ目黒花房山 104の口コミ・レビュー
エスセナーリオ目黒花房山 104。この美しい名前を持つ空間は、ただの住まいではなく、あなたの人生の舞台となることでしょう。東京都品川区上大崎3-10に位置するこの物件は、南向きの明るい窓から差し込む光が、まるで春の日差しのように、優しくあなたを包み込みます。日々の疲れを癒すこの特別な場所は、まさに「住む」ことの喜びを感じさせてくれるでしょう。
エスセナーリオ目黒花房山 104に足を踏み入れると、…エスセナーリオ目黒花房山 104。この美しい名前を持つ空間は、ただの住まいではなく、あなたの人生の舞台となることでしょう。東京都品川区上大崎3-10に位置するこの物件は、南向きの明るい窓から差し込む光が、まるで春の日差しのように、優しくあなたを包み込みます。日々の疲れを癒すこの特別な場所は、まさに「住む」ことの喜びを感じさせてくれるでしょう。
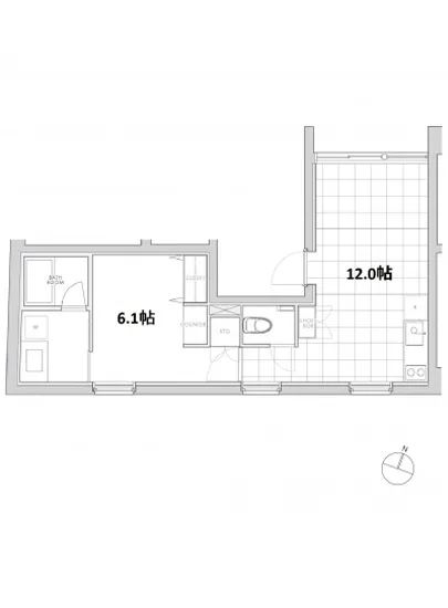
エスセナーリオ目黒花房山 104に足を踏み入れると、まず感じるのは、心地よい温もりとデザインの美しさです。現代的なデザイナーズ空間は、あなた自身の創造力を刺激します。40.06㎡の広々とした専有面積は、まるでキャンバスのようであり、あなたの生活の色を自由に描くことが可能です。6.1畳の洋室と心を和ませるLDKは、日常のシーンを映画のワンシーンのように演出します。友人たちとの楽しい食事、恋人と過ごす静かな夜、すべてがこの空間の中で鮮やかに展開されるのです。
目黒駅から徒歩7分という立地は、都会の喧騒と自然の穏やかさを見事に融合させています。南に開けた光景を眺めると、青空を背景にした街並みが広がり、どこか懐かしい風情を感じさせます。周囲には歴史を感じるスポットも点在し、まるでタイムトリップをしたかのような独特の空気が漂っています。この地に住むことで、あなたは新たな物語の一部となるのです。
エスセナーリオ目黒花房山 104は、ただの住まいではなく、あなたの心のオアシスです。オートロックやTVモニターホンといった最新の設備が、安心感を与えます。また、宅配ボックスや管理人が常駐することで、日常の小さなストレスから解放されることでしょう。細部にまでこだわられたデザインは、まるで一流のブランドのように、品の良さを漂わせます。
この物件は、あなたの五感を刺激する場所です。窓を開けると、心地よい風が髪を撫で、周囲の花々の甘い香りがふわりと漂います。カップに注がれたコーヒーの香ばしい香りが、幸せな朝の始まりを告げるでしょう。優雅に朝食を摂るLDKでは、太陽の光が立体的に踊り、日々のルーチンが特別なものへと変わります。
夜になると、エスセナーリオ目黒花房山 104の窓から見える星々が、まるで親しい友人のようにあなたを見守ります。静寂の中で耳を澄ませば、遠くの街の音が心地よいメロディーのように響き、その瞬間が永遠に続いてほしいと願うでしょう。あなたがこの場所に住んだなら、その瞬間が映画のハイライトシーンとなり、心に刻まれるに違いありません。
エスセナーリオ目黒花房山 104は、そんな魅力的な生活を提供するために、あなたを待っています。この空間が、あなたの新しい人生の舞台となることを心より期待しています。
エスセナーリオ目黒花房山 104に足を踏み入れると、…エスセナーリオ目黒花房山 104。この美しい名前を持つ空間は、ただの住まいではなく、あなたの人生の舞台となることでしょう。東京都品川区上大崎3-10に位置するこの物件は、南向きの明るい窓から差し込む光が、まるで春の日差しのように、優しくあなたを包み込みます。日々の疲れを癒すこの特別な場所は、まさに「住む」ことの喜びを感じさせてくれるでしょう。
エスセナーリオ目黒花房山 104に足を踏み入れると、まず感じるのは、心地よい温もりとデザインの美しさです。現代的なデザイナーズ空間は、あなた自身の創造力を刺激します。40.06㎡の広々とした専有面積は、まるでキャンバスのようであり、あなたの生活の色を自由に描くことが可能です。6.1畳の洋室と心を和ませるLDKは、日常のシーンを映画のワンシーンのように演出します。友人たちとの楽しい食事、恋人と過ごす静かな夜、すべてがこの空間の中で鮮やかに展開されるのです。
目黒駅から徒歩7分という立地は、都会の喧騒と自然の穏やかさを見事に融合させています。南に開けた光景を眺めると、青空を背景にした街並みが広がり、どこか懐かしい風情を感じさせます。周囲には歴史を感じるスポットも点在し、まるでタイムトリップをしたかのような独特の空気が漂っています。この地に住むことで、あなたは新たな物語の一部となるのです。
エスセナーリオ目黒花房山 104は、ただの住まいではなく、あなたの心のオアシスです。オートロックやTVモニターホンといった最新の設備が、安心感を与えます。また、宅配ボックスや管理人が常駐することで、日常の小さなストレスから解放されることでしょう。細部にまでこだわられたデザインは、まるで一流のブランドのように、品の良さを漂わせます。
この物件は、あなたの五感を刺激する場所です。窓を開けると、心地よい風が髪を撫で、周囲の花々の甘い香りがふわりと漂います。カップに注がれたコーヒーの香ばしい香りが、幸せな朝の始まりを告げるでしょう。優雅に朝食を摂るLDKでは、太陽の光が立体的に踊り、日々のルーチンが特別なものへと変わります。
夜になると、エスセナーリオ目黒花房山 104の窓から見える星々が、まるで親しい友人のようにあなたを見守ります。静寂の中で耳を澄ませば、遠くの街の音が心地よいメロディーのように響き、その瞬間が永遠に続いてほしいと願うでしょう。あなたがこの場所に住んだなら、その瞬間が映画のハイライトシーンとなり、心に刻まれるに違いありません。
エスセナーリオ目黒花房山 104は、そんな魅力的な生活を提供するために、あなたを待っています。この空間が、あなたの新しい人生の舞台となることを心より期待しています。
バイブルスコア
バイブルスコア: 23.9
平均的なスコアです。
※バイブルスコア詳細はこちら
バイブルスコアとは独自のAI機械学習技術を利用した物件評価システムで、物件のおすすめ度を示します。最高得点は100点で、スコアが高いほど、よりおすすめの物件と評価されています。
写真
現在写真が登録されていません契約条件
| 賃料 | 予想金額:188,000〜208,000円程度 | 管理費 | 予想金額:10,000〜14,000円程度 |
| 礼金 | 非公開(アーカイブ) | 敷金 | 非公開(アーカイブ) |
| フリーレント | なし | 平米数 | 40.06㎡ |
| 間取り | 1LDK | 大型収納 | |
| 契約期間 |
| 方角 | 南 |
| 更新料 | 契約形態 | 普通賃貸借契約 | |
| 取引態様 | 媒介 | 内見状況 | 入居中 |
| 入居時期 | 入居中 | SOHO・事務所 | 事務所(SOHO)可 |
| ペット | 間取り内訳 | 洋:6.1 LDK:12 | |
| キャンペーン情報・備考 | 本情報は賃料改定交渉の資料作成、収益物件の利回り試算、周辺エリアや最寄り駅の坪単価分析、次回募集開始時期の予測などにご活用いただけます。 | ||
※「どの不動産に頼めばいいのか分からない」「信頼できる営業マンの話を聞きたい」「一番親切な会社と契約したい」とお悩みの方におすすめなのが「高級賃貸バイブル」です。
高級賃貸バイブルは業界10年以上の熟練スタッフ群がお客様ファーストで対応します。
下記ボタンから、まずは無料でご相談下さい。
※内覧をご希望の際には、どうぞ物件のエントランス前にてお待ち合わせくださいませ。ご内覧後は、同じ場所でお別れとさせていただきます。お客様のご都合に合わせたスムーズなご案内を心がけておりますので、ご質問等がございましたら何なりとお申し付けください。 物件概要
| 物件名 |
| 築年月 |
|
|---|---|---|---|
| 所在地 | |||
| 交通 | |||
| 総戸数 |
| 総階数 |
|
| 構造 |
| ||
地図
物件までの道のりは、「拡大地図を表示」をクリックしてナビ機能をご利用ください。
部屋設備
















建物設備

TVモニターホン

オートロック

宅配ボックス

敷地内ゴミ置場

管理人
エスセナーリオ目黒花房山の現在募集中のお部屋
- No rooms found for this property.
