
| 賃料 | 予想金額:97,000〜117,000円程度 | 管理費 | 予想金額:10,000〜14,000円程度 |
| 礼金/敷金 | 非公開(アーカイブ) | 平米数 | 25.55㎡ |
| 初期費用概算(参考) | 目安:327,000〜427,000 円 | みなし賃料(月額・参考) | 114,625〜134,625 円 |
| 備考 | 本ページは過去募集のアーカイブです。表示の金額は周辺相場・過去募集を踏まえた参考レンジであり、実際の契約金額・条件ではありません。 | ||
※上記みなし賃料(月額)は仲介手数料割引・無料&キャッシュバックを加味した高級賃貸バイブル限定の金額です。一般的なみなし賃料とは異なります。
【建物ページ】メイクスデザイン神楽坂の詳細・最新空室はこちら▶▶選ばれる理由
仲介手数料無料・キャンペーン情報(毎月15名様限定)
〇仲介手数料割引キャンペーン
メイクスデザイン神楽坂 801の口コミ・レビュー
メイクスデザイン神楽坂 801は、日常の喧騒を忘れさせてくれる、ひときわ美しい隠れ家です。ここに足を踏み入れると、まるで静謐な森林の中に迷い込んだような心地よさが広がり、都会の喧騒がすっと遠のいてゆきます。専有面積25.55㎡のこの空間は、洗練されたデザインと機能性が見事に融合した、美しい居所です。
この世界に住むあなたは、朝日が西の窓から差し込む瞬間に目を覚まし、優しい光が部屋を包み込むのを感…メイクスデザイン神楽坂 801は、日常の喧騒を忘れさせてくれる、ひときわ美しい隠れ家です。ここに足を踏み入れると、まるで静謐な森林の中に迷い込んだような心地よさが広がり、都会の喧騒がすっと遠のいてゆきます。専有面積25.55㎡のこの空間は、洗練されたデザインと機能性が見事に融合した、美しい居所です。
この世界に住むあなたは、朝日が西の窓から差し込む瞬間に目を覚まし、優しい光が部屋を包み込むのを感じることでしょう。薄明かりの中で耳を澄ませば、窓の外からは街のささやきや、遠くの子どもたちの笑い声が聞こえ、これから始まる一日の期待感が胸を膨らませます。
メイクスデザイン神楽坂 801には、優雅なトーンの壁が居心地の良い空間を作り出し、あなた自身のアートギャラリーのような感覚を呼び起こします。洗練されたインテリアには、まるで作家が描いた画布のような美しさがあり、あなたの生活が一瞬一瞬、映画のワンシーンのように感じられるでしょう。毎朝のコーヒーの香りが、心地よいバルコニーで漂うと、その日1日を豊かに彩る準備が整います。
エレベーターで降りると、そこには歴史的な風情を宿した神楽坂の街並みが広がります。江戸川橋駅まで徒歩5分の距離は、あなたの足元を支える心地よいサポートともなり、散策の楽しさを引き立てます。周囲には、伝統とモダンが交錯する多様なカフェやギャラリーが点在し、芸術の香りを感じさせてくれます。毎日が新たな発見で満たされ、街の一部になっていく感覚を楽しむことでしょう。
オートロックや宅配ボックス、バイク置場も備えたメイクスデザイン神楽坂 801は、あなたのライフスタイルに寄り添い、安心と利便性を提供します。リラックスしたいときは管理人に笑顔で挨拶し、必要なときにはすぐに手を差し伸べてくれる彼らの存在が、あなたの生活をより豊かにしてくれるでしょう。駐輪場に自転車を停め、軽やかな気持ちで街へ飛び出せば、日常のストーリーが次々と繰り広げられていきます。
メイクスデザイン神楽坂 801は、ただの住まいではなく、あなたの人生の物語を紡ぐ舞台であり、毎日が新たなエピソードを添えてくれる場所です。ぜひ、この特別な空間で、心に残る瞬間を数多く刻んでいただきたいと願っています。そして、その瞬間が、あなたにとっての宝物に変わることを、私たちは心から期待しています。あなたの新たな生活が、この場所で始まることを心よりお待ちしております。
この世界に住むあなたは、朝日が西の窓から差し込む瞬間に目を覚まし、優しい光が部屋を包み込むのを感…メイクスデザイン神楽坂 801は、日常の喧騒を忘れさせてくれる、ひときわ美しい隠れ家です。ここに足を踏み入れると、まるで静謐な森林の中に迷い込んだような心地よさが広がり、都会の喧騒がすっと遠のいてゆきます。専有面積25.55㎡のこの空間は、洗練されたデザインと機能性が見事に融合した、美しい居所です。
この世界に住むあなたは、朝日が西の窓から差し込む瞬間に目を覚まし、優しい光が部屋を包み込むのを感じることでしょう。薄明かりの中で耳を澄ませば、窓の外からは街のささやきや、遠くの子どもたちの笑い声が聞こえ、これから始まる一日の期待感が胸を膨らませます。
メイクスデザイン神楽坂 801には、優雅なトーンの壁が居心地の良い空間を作り出し、あなた自身のアートギャラリーのような感覚を呼び起こします。洗練されたインテリアには、まるで作家が描いた画布のような美しさがあり、あなたの生活が一瞬一瞬、映画のワンシーンのように感じられるでしょう。毎朝のコーヒーの香りが、心地よいバルコニーで漂うと、その日1日を豊かに彩る準備が整います。
エレベーターで降りると、そこには歴史的な風情を宿した神楽坂の街並みが広がります。江戸川橋駅まで徒歩5分の距離は、あなたの足元を支える心地よいサポートともなり、散策の楽しさを引き立てます。周囲には、伝統とモダンが交錯する多様なカフェやギャラリーが点在し、芸術の香りを感じさせてくれます。毎日が新たな発見で満たされ、街の一部になっていく感覚を楽しむことでしょう。
オートロックや宅配ボックス、バイク置場も備えたメイクスデザイン神楽坂 801は、あなたのライフスタイルに寄り添い、安心と利便性を提供します。リラックスしたいときは管理人に笑顔で挨拶し、必要なときにはすぐに手を差し伸べてくれる彼らの存在が、あなたの生活をより豊かにしてくれるでしょう。駐輪場に自転車を停め、軽やかな気持ちで街へ飛び出せば、日常のストーリーが次々と繰り広げられていきます。
メイクスデザイン神楽坂 801は、ただの住まいではなく、あなたの人生の物語を紡ぐ舞台であり、毎日が新たなエピソードを添えてくれる場所です。ぜひ、この特別な空間で、心に残る瞬間を数多く刻んでいただきたいと願っています。そして、その瞬間が、あなたにとっての宝物に変わることを、私たちは心から期待しています。あなたの新たな生活が、この場所で始まることを心よりお待ちしております。
バイブルスコア
バイブルスコア: 28.1
平均的なスコアです。
※バイブルスコア詳細はこちら
バイブルスコアとは独自のAI機械学習技術を利用した物件評価システムで、物件のおすすめ度を示します。最高得点は100点で、スコアが高いほど、よりおすすめの物件と評価されています。
写真
契約条件
| 賃料 | 予想金額:97,000〜117,000円程度 | 管理費 | 予想金額:10,000〜14,000円程度 |
| 礼金 | 非公開(アーカイブ) | 敷金 | 非公開(アーカイブ) |
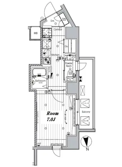
| フリーレント | なし | 平米数 | 25.55㎡ |
| 間取り | 1K | 大型収納 | |
| 契約期間 |
| 方角 | 西 |
| 更新料 | 契約形態 | 普通賃貸借契約 | |
| 取引態様 | 媒介 | 内見状況 | 入居中 |
| 入居時期 | 入居中 | SOHO・事務所 | |
| ペット | ペット可 | 間取り内訳 | 洋:7 |
| キャンペーン情報・備考 | 本情報は賃料改定交渉の資料作成、収益物件の利回り試算、周辺エリアや最寄り駅の坪単価分析、次回募集開始時期の予測などにご活用いただけます。 | ||
※「どの不動産に頼めばいいのか分からない」「信頼できる営業マンの話を聞きたい」「一番親切な会社と契約したい」とお悩みの方におすすめなのが「高級賃貸バイブル」です。
高級賃貸バイブルは業界10年以上の熟練スタッフ群がお客様ファーストで対応します。
下記ボタンから、まずは無料でご相談下さい。
※内覧をご希望の際には、どうぞ物件のエントランス前にてお待ち合わせくださいませ。ご内覧後は、同じ場所でお別れとさせていただきます。お客様のご都合に合わせたスムーズなご案内を心がけておりますので、ご質問等がございましたら何なりとお申し付けください。 物件概要
| 物件名 |
| 築年月 |
|
|---|---|---|---|
| 所在地 | |||
| 交通 | |||
| 総戸数 |
| 総階数 |
|
| 構造 |
| ||
地図
物件までの道のりは、「拡大地図を表示」をクリックしてナビ機能をご利用ください。
部屋設備














建物設備

TVモニターホン

エレベーター

オートロック

バイク置場

宅配ボックス

敷地内ゴミ置場

管理人

駐輪場
メイクスデザイン神楽坂の現在募集中のお部屋
- No rooms found for this property.









