
| 賃料 | 予想金額:106,000〜126,000円程度 | 管理費 | 予想金額:13,000〜17,000円程度 |
| 礼金/敷金 | 非公開(アーカイブ) | 平米数 | 29.17㎡ |
| 初期費用概算(参考) | 目安:238,000〜338,000 円 | みなし賃料(月額・参考) | 124,583〜144,583 円 |
| 備考 | 本ページは過去募集のアーカイブです。表示の金額は周辺相場・過去募集を踏まえた参考レンジであり、実際の契約金額・条件ではありません。 | ||
※上記みなし賃料(月額)は仲介手数料割引・無料&キャッシュバックを加味した高級賃貸バイブル限定の金額です。一般的なみなし賃料とは異なります。
【建物ページ】レガリス月島ベイサイドコートの詳細・最新空室はこちら▶▶選ばれる理由
仲介手数料無料・キャンペーン情報(毎月15名様限定)
〇仲介手数料割引キャンペーン
レガリス月島ベイサイドコート 601の口コミ・レビュー
レガリス月島ベイサイドコート 601は、まるで静かな岬に佇む美しい灯台のように、洗練された美と快適さを兼ね備えた空間です。東京都中央区月島4-4-4に位置するこの物件は、南西の方角から降り注ぐ柔らかな陽光を浴びながら、心に残るひとときを紡いでいきます。あなたの生活の舞台となるこの特別な場所は、ただの住まいではなく、まるで人生のストーリーを彩るためのキャンバスのようです。
レガリス月島ベイサイドコ…レガリス月島ベイサイドコート 601は、まるで静かな岬に佇む美しい灯台のように、洗練された美と快適さを兼ね備えた空間です。東京都中央区月島4-4-4に位置するこの物件は、南西の方角から降り注ぐ柔らかな陽光を浴びながら、心に残るひとときを紡いでいきます。あなたの生活の舞台となるこの特別な場所は、ただの住まいではなく、まるで人生のストーリーを彩るためのキャンバスのようです。
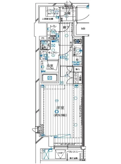
レガリス月島ベイサイドコート 601は、専有面積29.17㎡に凝縮された贅沢なデザインが施されています。思わず引き込まれるような9.3帖の洋室には、自然の光が優しく差し込み、心を癒やしてくれる空間が広がっています。デザイナーズ仕様のこの部屋は、シンプルでありながらも、洗練された美しさを持ち、入居者さまのセンスを映し出す鏡のようです。
自宅の中にある一つ一つの空間は、まるであなたの大切な友人のように語りかけてきます。素敵な夜には、リビングの窓を開け、外から漂う潮の香りを胸いっぱいに吸い込む。静かな夜空を見上げれば、きらめく星々がまるであなたの心の内なる願いを共鳴させているかのようです。
また、レガリス月島ベイサイドコート 601には、TVモニターホンやオートロックなど、暮らしを豊かにするための先進的な設備が整っています。この高い安全性は、まるであなたを守る親しい存在かのように、安心感をもたらします。宅配ボックスや駐輪場も完備されており、利便性の高い生活環境があなたの毎日をサポートしてくれます。
さらに、この物件は東京メトロ有楽町線の月島駅から徒歩4分の立地。都心の喧騒から少し離れたこの場所では、昔ながらの情緒あふれる下町情緒を楽しむことができます。周辺には江戸の面影が残る景色や、アートに心を打たれるカフェが立ち並び、そこに息づく文化が訪れる人々を魅了しています。歴史と現代が交錯する月島で、まるで映画のワンシーンにいるかのような生活を体験していただけます。
レガリス月島ベイサイドコート 601は、ただの住まいではなく、あなたの人生の物語をともに歩むパートナーです。心地よい風を感じながら、この空間で新たな日々を迎え、思い出を紡いでいきませんか。新しい出発の舞台は、あなたの手の中にあります。豊かな生活が待っているレガリス月島ベイサイドコート 601で、心のリズムに合わせた特別な時間をお過ごしください。
レガリス月島ベイサイドコ…レガリス月島ベイサイドコート 601は、まるで静かな岬に佇む美しい灯台のように、洗練された美と快適さを兼ね備えた空間です。東京都中央区月島4-4-4に位置するこの物件は、南西の方角から降り注ぐ柔らかな陽光を浴びながら、心に残るひとときを紡いでいきます。あなたの生活の舞台となるこの特別な場所は、ただの住まいではなく、まるで人生のストーリーを彩るためのキャンバスのようです。
レガリス月島ベイサイドコート 601は、専有面積29.17㎡に凝縮された贅沢なデザインが施されています。思わず引き込まれるような9.3帖の洋室には、自然の光が優しく差し込み、心を癒やしてくれる空間が広がっています。デザイナーズ仕様のこの部屋は、シンプルでありながらも、洗練された美しさを持ち、入居者さまのセンスを映し出す鏡のようです。
自宅の中にある一つ一つの空間は、まるであなたの大切な友人のように語りかけてきます。素敵な夜には、リビングの窓を開け、外から漂う潮の香りを胸いっぱいに吸い込む。静かな夜空を見上げれば、きらめく星々がまるであなたの心の内なる願いを共鳴させているかのようです。
また、レガリス月島ベイサイドコート 601には、TVモニターホンやオートロックなど、暮らしを豊かにするための先進的な設備が整っています。この高い安全性は、まるであなたを守る親しい存在かのように、安心感をもたらします。宅配ボックスや駐輪場も完備されており、利便性の高い生活環境があなたの毎日をサポートしてくれます。
さらに、この物件は東京メトロ有楽町線の月島駅から徒歩4分の立地。都心の喧騒から少し離れたこの場所では、昔ながらの情緒あふれる下町情緒を楽しむことができます。周辺には江戸の面影が残る景色や、アートに心を打たれるカフェが立ち並び、そこに息づく文化が訪れる人々を魅了しています。歴史と現代が交錯する月島で、まるで映画のワンシーンにいるかのような生活を体験していただけます。
レガリス月島ベイサイドコート 601は、ただの住まいではなく、あなたの人生の物語をともに歩むパートナーです。心地よい風を感じながら、この空間で新たな日々を迎え、思い出を紡いでいきませんか。新しい出発の舞台は、あなたの手の中にあります。豊かな生活が待っているレガリス月島ベイサイドコート 601で、心のリズムに合わせた特別な時間をお過ごしください。
バイブルスコア
バイブルスコア: 33.6
平均的なスコアです。
※バイブルスコア詳細はこちら
バイブルスコアとは独自のAI機械学習技術を利用した物件評価システムで、物件のおすすめ度を示します。最高得点は100点で、スコアが高いほど、よりおすすめの物件と評価されています。
写真
契約条件
| 賃料 | 予想金額:106,000〜126,000円程度 | 管理費 | 予想金額:13,000〜17,000円程度 |
| 礼金 | 非公開(アーカイブ) | 敷金 | 非公開(アーカイブ) |
| フリーレント | なし | 平米数 | 29.17㎡ |
| 間取り | 1K | 大型収納 | SIC |
| 契約期間 |
| 方角 | 南西 |
| 更新料 | 契約形態 | 普通賃貸借契約 | |
| 取引態様 | 媒介 | 内見状況 | 入居中 |
| 入居時期 | 入居中 | SOHO・事務所 | |
| ペット | ペット可 | 間取り内訳 | 洋:9.3 |
| キャンペーン情報・備考 | 本情報は賃料改定交渉の資料作成、収益物件の利回り試算、周辺エリアや最寄り駅の坪単価分析、次回募集開始時期の予測などにご活用いただけます。 | ||
※「どの不動産に頼めばいいのか分からない」「信頼できる営業マンの話を聞きたい」「一番親切な会社と契約したい」とお悩みの方におすすめなのが「高級賃貸バイブル」です。
高級賃貸バイブルは業界10年以上の熟練スタッフ群がお客様ファーストで対応します。
下記ボタンから、まずは無料でご相談下さい。
※内覧をご希望の際には、どうぞ物件のエントランス前にてお待ち合わせくださいませ。ご内覧後は、同じ場所でお別れとさせていただきます。お客様のご都合に合わせたスムーズなご案内を心がけておりますので、ご質問等がございましたら何なりとお申し付けください。 物件概要
| 物件名 |
| 築年月 |
|
|---|---|---|---|
| 所在地 | |||
| 交通 | |||
| 総戸数 |
| 総階数 |
|
| 構造 |
| ||
地図
物件までの道のりは、「拡大地図を表示」をクリックしてナビ機能をご利用ください。
部屋設備














建物設備

TVモニターホン

エレベーター

オートロック

宅配ボックス

敷地内ゴミ置場

管理人

駐輪場
レガリス月島ベイサイドコートの現在募集中のお部屋
- レガリス月島ベイサイドコート 902 - 間取り: 2LDK - 賃料: 27.9万円




