
| 賃料 | 予想金額:200,000〜220,000円程度 | 管理費 | 予想金額:18,000〜22,000円程度 |
| 礼金/敷金 | 非公開(アーカイブ) | 平米数 | 51.21㎡ |
| 初期費用概算(参考) | 目安:806,500〜906,500 円 | みなし賃料(月額・参考) | 233,469〜253,469 円 |
| 備考 | 本ページは過去募集のアーカイブです。表示の金額は周辺相場・過去募集を踏まえた参考レンジであり、実際の契約金額・条件ではありません。 | ||
※上記みなし賃料(月額)は仲介手数料割引・無料&キャッシュバックを加味した高級賃貸バイブル限定の金額です。一般的なみなし賃料とは異なります。
【建物ページ】レガリス月島ベイサイドコートの詳細・最新空室はこちら▶▶選ばれる理由
仲介手数料無料・キャンペーン情報(毎月15名様限定)
〇仲介手数料割引キャンペーン
レガリス月島ベイサイドコート 606の口コミ・レビュー
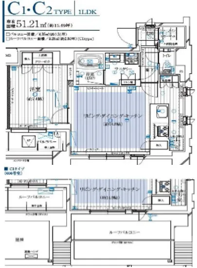
レガリス月島ベイサイドコート 606。ここに住まうことはまるで、穏やかな海に浮かぶ小舟のような贅沢な感覚を味わうことでしょう。東京都中央区月島の静謐な通りに佇むこの物件は、南西の光が優しく包み込む特別な空間を備えています。606号室は、51.21㎡の広々とした1LDKとして、あなたの日常を特別な映画のワンシーンに変えてくれることでしょう。
まず、ドアを開ける瞬間、その風景はまるで映画の幕が上がる…レガリス月島ベイサイドコート 606。ここに住まうことはまるで、穏やかな海に浮かぶ小舟のような贅沢な感覚を味わうことでしょう。東京都中央区月島の静謐な通りに佇むこの物件は、南西の光が優しく包み込む特別な空間を備えています。606号室は、51.21㎡の広々とした1LDKとして、あなたの日常を特別な映画のワンシーンに変えてくれることでしょう。
まず、ドアを開ける瞬間、その風景はまるで映画の幕が上がるかのように広がります。広々としたLDK(14.8J)には、デザイナーズの洗練されたデザインが施され、インテリアにこだわる方にとっては、無限の想像力をかきたてるキャンバスとなります。柔らかな光が木製のフローリングに反射し、まるで朝日が水面に踊る様子のように、心に安らぎをもたらしてくれるのです。
南西の窓からは、やさしい風が吹き抜け、穏やかな台所の香りが漂います。料理の腕をふるうたび、あなたの心が満たされることでしょう。愛情を込めた手料理が食卓に並び、友人や大切な人との会話が弾む瞬間は、まさに至福の時間です。周囲には季節の移ろいを感じられる公園やカフェがあり、賑やかな街の賑わいにも、心が穏やかでいられるのです。
レガリス月島ベイサイドコート 606に住むことで、毎日の生活が素晴らしい物語となり、あなたの五感が刺激されることでしょう。朝の光に包まれて目覚め、窓を開けると聞こえてくる鳥のさえずり。夜の帳が下りると、星空を眺めながら、冷たいワインを一口。毎晩が映画のエンディングのような余韻をもたらすのです。
この物件にはオートロックや宅配ボックス、管理人が常駐する安心感も備わっており、あなたの生活をより安全で快適にサポートします。自転車を駐輪場に停めて、月島駅(東京メトロ有楽町線 徒歩4分)までの快適なアクセスを楽しむことができるのも、生活の満足度を高めてくれる要素です。周辺には、歴史と文化の香りが漂う店舗やアートスペースが点在し、あなたの感受性を刺激する心地よい刺激をもたらしてくれます。
レガリス月島ベイサイドコート 606での生活は、やがて心の宝物となり、日常が特別なものへと変わる旅路の始まりです。この物件があなたの新たな暮らしの舞台となることを、心からお待ちしております。素敵な住まいで、素晴らしい物語を綴っていきましょう。
まず、ドアを開ける瞬間、その風景はまるで映画の幕が上がる…レガリス月島ベイサイドコート 606。ここに住まうことはまるで、穏やかな海に浮かぶ小舟のような贅沢な感覚を味わうことでしょう。東京都中央区月島の静謐な通りに佇むこの物件は、南西の光が優しく包み込む特別な空間を備えています。606号室は、51.21㎡の広々とした1LDKとして、あなたの日常を特別な映画のワンシーンに変えてくれることでしょう。
まず、ドアを開ける瞬間、その風景はまるで映画の幕が上がるかのように広がります。広々としたLDK(14.8J)には、デザイナーズの洗練されたデザインが施され、インテリアにこだわる方にとっては、無限の想像力をかきたてるキャンバスとなります。柔らかな光が木製のフローリングに反射し、まるで朝日が水面に踊る様子のように、心に安らぎをもたらしてくれるのです。
南西の窓からは、やさしい風が吹き抜け、穏やかな台所の香りが漂います。料理の腕をふるうたび、あなたの心が満たされることでしょう。愛情を込めた手料理が食卓に並び、友人や大切な人との会話が弾む瞬間は、まさに至福の時間です。周囲には季節の移ろいを感じられる公園やカフェがあり、賑やかな街の賑わいにも、心が穏やかでいられるのです。
レガリス月島ベイサイドコート 606に住むことで、毎日の生活が素晴らしい物語となり、あなたの五感が刺激されることでしょう。朝の光に包まれて目覚め、窓を開けると聞こえてくる鳥のさえずり。夜の帳が下りると、星空を眺めながら、冷たいワインを一口。毎晩が映画のエンディングのような余韻をもたらすのです。
この物件にはオートロックや宅配ボックス、管理人が常駐する安心感も備わっており、あなたの生活をより安全で快適にサポートします。自転車を駐輪場に停めて、月島駅(東京メトロ有楽町線 徒歩4分)までの快適なアクセスを楽しむことができるのも、生活の満足度を高めてくれる要素です。周辺には、歴史と文化の香りが漂う店舗やアートスペースが点在し、あなたの感受性を刺激する心地よい刺激をもたらしてくれます。
レガリス月島ベイサイドコート 606での生活は、やがて心の宝物となり、日常が特別なものへと変わる旅路の始まりです。この物件があなたの新たな暮らしの舞台となることを、心からお待ちしております。素敵な住まいで、素晴らしい物語を綴っていきましょう。
バイブルスコア
バイブルスコア: 23.9
平均的なスコアです。
※バイブルスコア詳細はこちら
バイブルスコアとは独自のAI機械学習技術を利用した物件評価システムで、物件のおすすめ度を示します。最高得点は100点で、スコアが高いほど、よりおすすめの物件と評価されています。
写真
契約条件
| 賃料 | 予想金額:200,000〜220,000円程度 | 管理費 | 予想金額:18,000〜22,000円程度 |
| 礼金 | 非公開(アーカイブ) | 敷金 | 非公開(アーカイブ) |
| フリーレント | なし | 平米数 | 51.21㎡ |
| 間取り | 1LDK | 大型収納 | SIC |
| 契約期間 |
| 方角 | 南西 |
| 更新料 | 契約形態 | 普通賃貸借契約 | |
| 取引態様 | 媒介 | 内見状況 | 入居中 |
| 入居時期 | 入居中 | SOHO・事務所 | |
| ペット | ペット可 | 間取り内訳 | LDK=14.8J / BR=7.4J |
| キャンペーン情報・備考 | 本情報は賃料改定交渉の資料作成、収益物件の利回り試算、周辺エリアや最寄り駅の坪単価分析、次回募集開始時期の予測などにご活用いただけます。 | ||
※「どの不動産に頼めばいいのか分からない」「信頼できる営業マンの話を聞きたい」「一番親切な会社と契約したい」とお悩みの方におすすめなのが「高級賃貸バイブル」です。
高級賃貸バイブルは業界10年以上の熟練スタッフ群がお客様ファーストで対応します。
下記ボタンから、まずは無料でご相談下さい。
※内覧をご希望の際には、どうぞ物件のエントランス前にてお待ち合わせくださいませ。ご内覧後は、同じ場所でお別れとさせていただきます。お客様のご都合に合わせたスムーズなご案内を心がけておりますので、ご質問等がございましたら何なりとお申し付けください。 物件概要
| 物件名 |
| 築年月 |
|
|---|---|---|---|
| 所在地 | |||
| 交通 | |||
| 総戸数 |
| 総階数 |
|
| 構造 |
| ||
地図
物件までの道のりは、「拡大地図を表示」をクリックしてナビ機能をご利用ください。
部屋設備

















建物設備

TVモニターホン

エレベーター

オートロック

宅配ボックス

敷地内ゴミ置場

管理人

駐輪場
レガリス月島ベイサイドコートの現在募集中のお部屋
- レガリス月島ベイサイドコート 902 - 間取り: 2LDK - 賃料: 27.9万円




