
| 賃料 | 予想金額:89,000〜109,000円程度 | 管理費 | 予想金額:8,000〜12,000円程度 |
| 礼金/敷金 | 非公開(アーカイブ) | 平米数 | 25.76㎡ |
| 初期費用概算(参考) | 目安:305,250〜405,250 円 | みなし賃料(月額・参考) | 104,828〜124,828 円 |
| 備考 | 本ページは過去募集のアーカイブです。表示の金額は周辺相場・過去募集を踏まえた参考レンジであり、実際の契約金額・条件ではありません。 | ||
※上記みなし賃料(月額)は仲介手数料割引・無料&キャッシュバックを加味した高級賃貸バイブル限定の金額です。一般的なみなし賃料とは異なります。
【建物ページ】クレイシアIDZ本所吾妻橋の詳細・最新空室はこちら▶▶選ばれる理由
仲介手数料無料・キャンペーン情報(毎月15名様限定)
〇仲介手数料割引キャンペーン
クレイシアIDZ本所吾妻橋 903の口コミ・レビュー
クレイシアIDZ本所吾妻橋 903は、まるで都会の喧騒から離れた静かなオアシスのように、あなたの人生を彩る特別な場所です。東京都墨田区本所4-23-2の地に佇むこの物件は、まるで緑豊かな庭に囲まれた豪華な邸宅のように、温もりと安らぎを与えてくれるでしょう。903号室の玄関を開ける瞬間、目の前に広がる25.76㎡の空間は、あなたを新たな物語の主人公に変えてくれます。
ここでの生活は、まるで映画のワ…クレイシアIDZ本所吾妻橋 903は、まるで都会の喧騒から離れた静かなオアシスのように、あなたの人生を彩る特別な場所です。東京都墨田区本所4-23-2の地に佇むこの物件は、まるで緑豊かな庭に囲まれた豪華な邸宅のように、温もりと安らぎを与えてくれるでしょう。903号室の玄関を開ける瞬間、目の前に広がる25.76㎡の空間は、あなたを新たな物語の主人公に変えてくれます。
ここでの生活は、まるで映画のワンシーンのように、あなたの想像力をかきたてます。洋室が3帖、DKが5.5帖という少し狭いながらも心地よい空間は、手のひらにしっかりと収まる小さな宇宙のようです。朝、まだ薄暗い日の光がカーテンの隙間から忍び込み、心地よい風とともにあなたの髪を撫でる感覚は、まるで自然が目覚める瞬間を感じさせます。
クレイシアIDZ本所吾妻橋があなたに語りかけるのは、その豊かな設備の数々です。TVモニターホンは、まるで親しい友人が訪れてくれるかのように、あなたを歓迎します。エレベーターに乗るたびに、まるで美術館の展示室へと向かうかのような期待感に包まれるでしょう。オートロックは、あなたの大切なプライベート空間をしっかりと守り、いわば大切に育てられた花のように、守られた環境で育むことができます。
バイク置場や駐輪場の存在は、まるであなたの冒険の相棒を優しく受け入れる家族のようです。宅配ボックスから受け取る贈り物は、心躍るサプライズのように。敷地内のゴミ置場は、自然と共存するエコフレンドリーな生活を実現するためのパートナーとなり、管理人の存在は安心感を高め、あなたの毎日を支えてくれることでしょう。
周囲には歴史と文化が息づいています。都営地下鉄浅草線の本所吾妻橋駅から徒歩7分という絶好のロケーションは、まさに文化の交差点。墨田区の歴史を感じながら、散策するのも一興です。歴史的な背景に触れ、アートな感覚で心豊かな時間を過ごすことができるのが、クレイシアIDZ本所吾妻橋の魅力でもあります。その豊かさは、あなたの五感を刺激し、日々の生活をより素晴らしいものへと導いてくれるでしょう。
クレイシアIDZ本所吾妻橋 903での暮らしは、ただの生活を超えた、人生の宝物となることでしょう。この場所は、あなたの夢を育む土壌であり、無限の可能性が広がる空間です。さあ、新しい物語を始める準備は整いました。あなたの心の奥底で、真新しい生活が動き出す瞬間を待っています。
ここでの生活は、まるで映画のワ…クレイシアIDZ本所吾妻橋 903は、まるで都会の喧騒から離れた静かなオアシスのように、あなたの人生を彩る特別な場所です。東京都墨田区本所4-23-2の地に佇むこの物件は、まるで緑豊かな庭に囲まれた豪華な邸宅のように、温もりと安らぎを与えてくれるでしょう。903号室の玄関を開ける瞬間、目の前に広がる25.76㎡の空間は、あなたを新たな物語の主人公に変えてくれます。
ここでの生活は、まるで映画のワンシーンのように、あなたの想像力をかきたてます。洋室が3帖、DKが5.5帖という少し狭いながらも心地よい空間は、手のひらにしっかりと収まる小さな宇宙のようです。朝、まだ薄暗い日の光がカーテンの隙間から忍び込み、心地よい風とともにあなたの髪を撫でる感覚は、まるで自然が目覚める瞬間を感じさせます。
クレイシアIDZ本所吾妻橋があなたに語りかけるのは、その豊かな設備の数々です。TVモニターホンは、まるで親しい友人が訪れてくれるかのように、あなたを歓迎します。エレベーターに乗るたびに、まるで美術館の展示室へと向かうかのような期待感に包まれるでしょう。オートロックは、あなたの大切なプライベート空間をしっかりと守り、いわば大切に育てられた花のように、守られた環境で育むことができます。
バイク置場や駐輪場の存在は、まるであなたの冒険の相棒を優しく受け入れる家族のようです。宅配ボックスから受け取る贈り物は、心躍るサプライズのように。敷地内のゴミ置場は、自然と共存するエコフレンドリーな生活を実現するためのパートナーとなり、管理人の存在は安心感を高め、あなたの毎日を支えてくれることでしょう。
周囲には歴史と文化が息づいています。都営地下鉄浅草線の本所吾妻橋駅から徒歩7分という絶好のロケーションは、まさに文化の交差点。墨田区の歴史を感じながら、散策するのも一興です。歴史的な背景に触れ、アートな感覚で心豊かな時間を過ごすことができるのが、クレイシアIDZ本所吾妻橋の魅力でもあります。その豊かさは、あなたの五感を刺激し、日々の生活をより素晴らしいものへと導いてくれるでしょう。
クレイシアIDZ本所吾妻橋 903での暮らしは、ただの生活を超えた、人生の宝物となることでしょう。この場所は、あなたの夢を育む土壌であり、無限の可能性が広がる空間です。さあ、新しい物語を始める準備は整いました。あなたの心の奥底で、真新しい生活が動き出す瞬間を待っています。
バイブルスコア
バイブルスコア: 28.9
平均的なスコアです。
※バイブルスコア詳細はこちら
バイブルスコアとは独自のAI機械学習技術を利用した物件評価システムで、物件のおすすめ度を示します。最高得点は100点で、スコアが高いほど、よりおすすめの物件と評価されています。
写真
現在写真が登録されていません契約条件
| 賃料 | 予想金額:89,000〜109,000円程度 | 管理費 | 予想金額:8,000〜12,000円程度 |
| 礼金 | 非公開(アーカイブ) | 敷金 | 非公開(アーカイブ) |
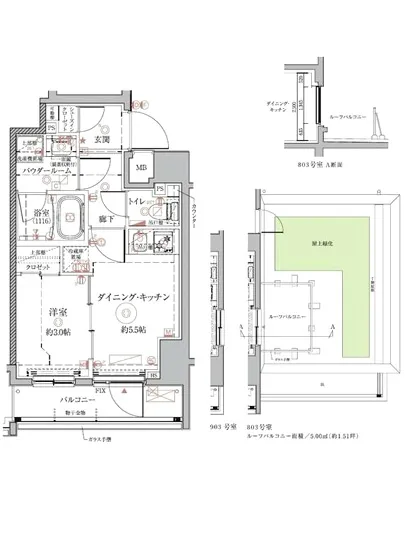
| フリーレント | なし | 平米数 | 25.76㎡ |
| 間取り | 1DK | 大型収納 | SIC |
| 契約期間 |
| 方角 | 東 |
| 更新料 | 契約形態 | 普通賃貸借契約 | |
| 取引態様 | 媒介 | 内見状況 | 入居中 |
| 入居時期 | 入居中 | SOHO・事務所 | |
| ペット | 間取り内訳 | 洋:3 DK:5.5 | |
| キャンペーン情報・備考 | 本情報は賃料改定交渉の資料作成、収益物件の利回り試算、周辺エリアや最寄り駅の坪単価分析、次回募集開始時期の予測などにご活用いただけます。 | ||
※「どの不動産に頼めばいいのか分からない」「信頼できる営業マンの話を聞きたい」「一番親切な会社と契約したい」とお悩みの方におすすめなのが「高級賃貸バイブル」です。
高級賃貸バイブルは業界10年以上の熟練スタッフ群がお客様ファーストで対応します。
下記ボタンから、まずは無料でご相談下さい。
※内覧をご希望の際には、どうぞ物件のエントランス前にてお待ち合わせくださいませ。ご内覧後は、同じ場所でお別れとさせていただきます。お客様のご都合に合わせたスムーズなご案内を心がけておりますので、ご質問等がございましたら何なりとお申し付けください。 物件概要
| 物件名 |
| 築年月 |
|
|---|---|---|---|
| 所在地 | |||
| 交通 |
| ||
| 総戸数 |
| 総階数 |
|
| 構造 |
| ||
地図
物件までの道のりは、「拡大地図を表示」をクリックしてナビ機能をご利用ください。
部屋設備
















建物設備

TVモニターホン

エレベーター

オートロック

バイク置場

宅配ボックス

敷地内ゴミ置場

管理人

駐輪場
クレイシアIDZ本所吾妻橋の現在募集中のお部屋
- No rooms found for this property.
