
| 賃料 | 予想金額:110,000〜130,000円程度 | 管理費 | 予想金額:3,000〜7,000円程度 |
| 礼金/敷金 | 非公開(アーカイブ) | 平米数 | 20.49㎡ |
| 初期費用概算(参考) | 目安:589,000〜689,000 円 | みなし賃料(月額・参考) | 125,813〜145,813 円 |
| 備考 | 本ページは過去募集のアーカイブです。表示の金額は周辺相場・過去募集を踏まえた参考レンジであり、実際の契約金額・条件ではありません。 | ||
※上記みなし賃料(月額)は仲介手数料割引・無料&キャッシュバックを加味した高級賃貸バイブル限定の金額です。一般的なみなし賃料とは異なります。
【建物ページ】リビオレゾン三田の詳細・最新空室はこちら▶▶選ばれる理由
仲介手数料無料・キャンペーン情報(毎月15名様限定)
〇仲介手数料割引キャンペーン
リビオレゾン三田 3階 20.49㎡の口コミ・レビュー
リビオレゾン三田 3階 20.49㎡。この住まいは、まるで都会の真ん中で奏でられるシンフォニーのように、日常の喧騒を優雅に包み込みます。東京・港区芝の地にそびえ立つ真新しい住空間は、あなたのライフスタイルを豊かに彩ることを約束します。3階という穏やかな高さから、西の空に沈む夕陽を望むことができるこの場所は、まるで長い一日の終わりを告げる美しい絵画のように、心を安らげる瞬間を提供してくれます。
玄…リビオレゾン三田 3階 20.49㎡。この住まいは、まるで都会の真ん中で奏でられるシンフォニーのように、日常の喧騒を優雅に包み込みます。東京・港区芝の地にそびえ立つ真新しい住空間は、あなたのライフスタイルを豊かに彩ることを約束します。3階という穏やかな高さから、西の空に沈む夕陽を望むことができるこの場所は、まるで長い一日の終わりを告げる美しい絵画のように、心を安らげる瞬間を提供してくれます。
玄関のドアを開けた瞬間、洗練された空間にあなたを迎え入れます。20.49㎡というコンパクトながらも機能美を追求した間取りは、無駄を省いたスマートな暮らしを可能にします。洋室5帖は、優雅な光が差し込み、あなたの心に温もりをもたらします。朝の光で目を覚まし、窓から入る心地良い風を感じながら、コーヒーの香りに包まれるひとときは、まるで映画のワンシーンのようです。
ロマンティックなひとときを演出するために、リビオレゾン三田にはさまざまな設備も整っています。オートロックや宅配ボックスが、安心して生活を送るための要素となり、管理人のいる安心感は、まるでその背中を押されるような心地よいサポートを感じさせます。エレベーターでの移動は、まるで一瞬にして別世界に飛び込むかのような感覚を味わわせてくれます。
また、この物件は都営地下鉄三田線三田駅から徒歩4分という恵まれた立地。周囲には、歴史的な名所や文化的な雰囲気が漂います。古き良き東京の情緒が息づく場所で、散策しながら街の魅力を発見する楽しみも、日常の一部となるでしょう。アートギャラリーや静謐な公園、エレガントなカフェが点在し、心豊かな時間を過ごせます。
想像してみてください。夕暮れ時、リビオレゾン三田のバルコニーに立ち、西の空がオレンジ色に染まる美しい景色を眺める自分を。風に乗って運ばれる街の音が、あなたの心を癒し、日々のストレスを忘れさせてくれます。生活をさらに特別なものにする起点であり、あなた自身が主人公となる舞台がここに待っています。
リビオレゾン三田 3階 20.49㎡は、ただの住まいではなく、あなたの人生を彩るための大切なパートナーです。日常がまるで映画の一幕のように、感動や発見に満ちた毎日が待っていることでしょう。さあ、あなたの新たな物語をここから始めてみませんか。
玄…リビオレゾン三田 3階 20.49㎡。この住まいは、まるで都会の真ん中で奏でられるシンフォニーのように、日常の喧騒を優雅に包み込みます。東京・港区芝の地にそびえ立つ真新しい住空間は、あなたのライフスタイルを豊かに彩ることを約束します。3階という穏やかな高さから、西の空に沈む夕陽を望むことができるこの場所は、まるで長い一日の終わりを告げる美しい絵画のように、心を安らげる瞬間を提供してくれます。
玄関のドアを開けた瞬間、洗練された空間にあなたを迎え入れます。20.49㎡というコンパクトながらも機能美を追求した間取りは、無駄を省いたスマートな暮らしを可能にします。洋室5帖は、優雅な光が差し込み、あなたの心に温もりをもたらします。朝の光で目を覚まし、窓から入る心地良い風を感じながら、コーヒーの香りに包まれるひとときは、まるで映画のワンシーンのようです。
ロマンティックなひとときを演出するために、リビオレゾン三田にはさまざまな設備も整っています。オートロックや宅配ボックスが、安心して生活を送るための要素となり、管理人のいる安心感は、まるでその背中を押されるような心地よいサポートを感じさせます。エレベーターでの移動は、まるで一瞬にして別世界に飛び込むかのような感覚を味わわせてくれます。
また、この物件は都営地下鉄三田線三田駅から徒歩4分という恵まれた立地。周囲には、歴史的な名所や文化的な雰囲気が漂います。古き良き東京の情緒が息づく場所で、散策しながら街の魅力を発見する楽しみも、日常の一部となるでしょう。アートギャラリーや静謐な公園、エレガントなカフェが点在し、心豊かな時間を過ごせます。
想像してみてください。夕暮れ時、リビオレゾン三田のバルコニーに立ち、西の空がオレンジ色に染まる美しい景色を眺める自分を。風に乗って運ばれる街の音が、あなたの心を癒し、日々のストレスを忘れさせてくれます。生活をさらに特別なものにする起点であり、あなた自身が主人公となる舞台がここに待っています。
リビオレゾン三田 3階 20.49㎡は、ただの住まいではなく、あなたの人生を彩るための大切なパートナーです。日常がまるで映画の一幕のように、感動や発見に満ちた毎日が待っていることでしょう。さあ、あなたの新たな物語をここから始めてみませんか。
バイブルスコア
バイブルスコア: 24.6
平均的なスコアです。
※バイブルスコア詳細はこちら
バイブルスコアとは独自のAI機械学習技術を利用した物件評価システムで、物件のおすすめ度を示します。最高得点は100点で、スコアが高いほど、よりおすすめの物件と評価されています。
写真
契約条件
| 賃料 | 予想金額:110,000〜130,000円程度 | 管理費 | 予想金額:3,000〜7,000円程度 |
| 礼金 | 非公開(アーカイブ) | 敷金 | 非公開(アーカイブ) |
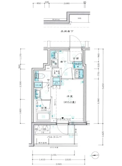
| フリーレント | なし | 平米数 | 20.49㎡ |
| 間取り | 1K | 大型収納 | |
| 契約期間 |
| 方角 | 西 |
| 更新料 | 契約形態 | 普通賃貸借契約 | |
| 取引態様 | 媒介 | 内見状況 | 入居中 |
| 入居時期 | 入居中 | SOHO・事務所 | |
| ペット | 間取り内訳 | 洋:5 | |
| キャンペーン情報・備考 | 本情報は賃料改定交渉の資料作成、収益物件の利回り試算、周辺エリアや最寄り駅の坪単価分析、次回募集開始時期の予測などにご活用いただけます。 | ||
※「どの不動産に頼めばいいのか分からない」「信頼できる営業マンの話を聞きたい」「一番親切な会社と契約したい」とお悩みの方におすすめなのが「高級賃貸バイブル」です。
高級賃貸バイブルは業界10年以上の熟練スタッフ群がお客様ファーストで対応します。
下記ボタンから、まずは無料でご相談下さい。
※内覧をご希望の際には、どうぞ物件のエントランス前にてお待ち合わせくださいませ。ご内覧後は、同じ場所でお別れとさせていただきます。お客様のご都合に合わせたスムーズなご案内を心がけておりますので、ご質問等がございましたら何なりとお申し付けください。 物件概要
| 物件名 |
| 築年月 |
|
|---|---|---|---|
| 所在地 | |||
| 交通 | |||
| 総戸数 |
| 総階数 |
|
| 構造 |
| ||
地図
物件までの道のりは、「拡大地図を表示」をクリックしてナビ機能をご利用ください。
部屋設備













建物設備

TVモニターホン

エレベーター

オートロック

宅配ボックス

敷地内ゴミ置場

管理人

駐車場平置き

駐輪場
リビオレゾン三田の現在募集中のお部屋
- リビオレゾン三田 2階 34.54㎡ - 間取り: 1LDK+SIC - 賃料: 20万円






