
| 賃料 | 予想金額:88,000〜108,000円程度 | 管理費 | 予想金額:8,000〜12,000円程度 |
| 礼金/敷金 | 非公開(アーカイブ) | 平米数 | 26.86㎡ |
| 初期費用概算(参考) | 目安:204,250〜304,250 円 | みなし賃料(月額・参考) | 101,745〜121,745 円 |
| 備考 | 本ページは過去募集のアーカイブです。表示の金額は周辺相場・過去募集を踏まえた参考レンジであり、実際の契約金額・条件ではありません。 | ||
※上記みなし賃料(月額)は仲介手数料割引・無料&キャッシュバックを加味した高級賃貸バイブル限定の金額です。一般的なみなし賃料とは異なります。
【建物ページ】セジョリ東大前の詳細・最新空室はこちら▶▶選ばれる理由
仲介手数料無料・キャンペーン情報(毎月15名様限定)
〇仲介手数料割引キャンペーン
セジョリ東大前 202の口コミ・レビュー
セジョリ東大前 202は、東京都文京区向丘1-13-9に位置する、まるで時を超えたかのような美しい邸宅です。あなたがこの特別な場所に足を踏み入れる瞬間、まるで新しい人生の物語が始まるかのような高鳴りを感じます。この1K、26.86㎡の空間は、ただの住居ではなく、あなたの心を奪う舞台なのです。
この世の喧騒から少し離れた、静寂に包まれた北東向きの窓からは、朝日の光が優しく差し込み、柔らかな影を部屋…セジョリ東大前 202は、東京都文京区向丘1-13-9に位置する、まるで時を超えたかのような美しい邸宅です。あなたがこの特別な場所に足を踏み入れる瞬間、まるで新しい人生の物語が始まるかのような高鳴りを感じます。この1K、26.86㎡の空間は、ただの住居ではなく、あなたの心を奪う舞台なのです。
この世の喧騒から少し離れた、静寂に包まれた北東向きの窓からは、朝日の光が優しく差し込み、柔らかな影を部屋の中に遊ばせます。早朝の新鮮な空気が、まるで生きた絵画のようにあなたの肌に優しく触れ、心を解放してくれるでしょう。リビングの一角では、温かいコーヒーの香りが漂い、静かなひとときに浸る贅沢を楽しむことができます。
セジョリ東大前 202は、ただの空間ではなく、あなたの人生を彩るアート作品です。エレガントなデザインのTVモニターホンや、静かに佇むエレベーターは、まるで静かな時の流れを感じさせ、オートロックのセキュリティは、あなたの大切な空間をしっかりと守ってくれます。日常の中での小さな安心感が、あなたの心を穏やかにしてくれることでしょう。
このマンションの管理人は、まるで心のこもった家族のように温かく、居心地の良い空間を提供します。また、バイク置場や宅配ボックス、敷地内のゴミ置場、駐輪場は、あなたのライフスタイルをサポートするために整えられています。生活の利便性を追求しつつ、上質な生活を提案するセジョリ東大前 202は、まるであなたに寄り添う存在のようです。
周辺には、東京メトロ南北線 東大前駅がわずか徒歩2分の距離にあり、まるで忙しい都市の中心から逃げ出すための絶好の隠れ家です。文化や歴史が息づく文京区に住むということは、ただの生活ではなく、コンテンポラリーなアートの中で生きることを意味します。秋の深まる季節には、周囲の木々が色づき、葉が舞い降りるその瞬間を見逃さないでください。自然の織り成す色彩の美しさと、都会の喧騒の両方を楽しむことができるのです。
セジョリ東大前 202での生活は、まるで映画のワンシーンのように、一瞬の優雅さを感じさせます。日常の中に潜む小さな幸せを見つけることができるこの空間で、あなたの物語を思い描いてください。今、まさに新たな生活が待っています。心を豊かに、感性を磨くための新しい扉が、セジョリ東大前 202には待ち受けています。あなたの人生の舞台がここにあるのです。
この世の喧騒から少し離れた、静寂に包まれた北東向きの窓からは、朝日の光が優しく差し込み、柔らかな影を部屋…セジョリ東大前 202は、東京都文京区向丘1-13-9に位置する、まるで時を超えたかのような美しい邸宅です。あなたがこの特別な場所に足を踏み入れる瞬間、まるで新しい人生の物語が始まるかのような高鳴りを感じます。この1K、26.86㎡の空間は、ただの住居ではなく、あなたの心を奪う舞台なのです。
この世の喧騒から少し離れた、静寂に包まれた北東向きの窓からは、朝日の光が優しく差し込み、柔らかな影を部屋の中に遊ばせます。早朝の新鮮な空気が、まるで生きた絵画のようにあなたの肌に優しく触れ、心を解放してくれるでしょう。リビングの一角では、温かいコーヒーの香りが漂い、静かなひとときに浸る贅沢を楽しむことができます。
セジョリ東大前 202は、ただの空間ではなく、あなたの人生を彩るアート作品です。エレガントなデザインのTVモニターホンや、静かに佇むエレベーターは、まるで静かな時の流れを感じさせ、オートロックのセキュリティは、あなたの大切な空間をしっかりと守ってくれます。日常の中での小さな安心感が、あなたの心を穏やかにしてくれることでしょう。
このマンションの管理人は、まるで心のこもった家族のように温かく、居心地の良い空間を提供します。また、バイク置場や宅配ボックス、敷地内のゴミ置場、駐輪場は、あなたのライフスタイルをサポートするために整えられています。生活の利便性を追求しつつ、上質な生活を提案するセジョリ東大前 202は、まるであなたに寄り添う存在のようです。
周辺には、東京メトロ南北線 東大前駅がわずか徒歩2分の距離にあり、まるで忙しい都市の中心から逃げ出すための絶好の隠れ家です。文化や歴史が息づく文京区に住むということは、ただの生活ではなく、コンテンポラリーなアートの中で生きることを意味します。秋の深まる季節には、周囲の木々が色づき、葉が舞い降りるその瞬間を見逃さないでください。自然の織り成す色彩の美しさと、都会の喧騒の両方を楽しむことができるのです。
セジョリ東大前 202での生活は、まるで映画のワンシーンのように、一瞬の優雅さを感じさせます。日常の中に潜む小さな幸せを見つけることができるこの空間で、あなたの物語を思い描いてください。今、まさに新たな生活が待っています。心を豊かに、感性を磨くための新しい扉が、セジョリ東大前 202には待ち受けています。あなたの人生の舞台がここにあるのです。
バイブルスコア
バイブルスコア: 31.4
平均的なスコアです。
※バイブルスコア詳細はこちら
バイブルスコアとは独自のAI機械学習技術を利用した物件評価システムで、物件のおすすめ度を示します。最高得点は100点で、スコアが高いほど、よりおすすめの物件と評価されています。
写真
契約条件
| 賃料 | 予想金額:88,000〜108,000円程度 | 管理費 | 予想金額:8,000〜12,000円程度 |
| 礼金 | 非公開(アーカイブ) | 敷金 | 非公開(アーカイブ) |
| フリーレント | なし | 平米数 | 26.86㎡ |
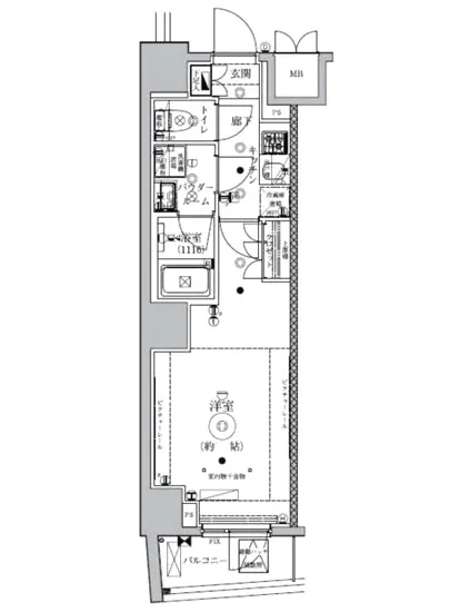
| 間取り | 1K | 大型収納 | |
| 契約期間 |
| 方角 | 北東 |
| 更新料 | 契約形態 | 普通賃貸借契約 | |
| 取引態様 | 媒介 | 内見状況 | 入居中 |
| 入居時期 | 入居中 | SOHO・事務所 | |
| ペット | ペット可 | 間取り内訳 | 洋 |
| キャンペーン情報・備考 | 本情報は賃料改定交渉の資料作成、収益物件の利回り試算、周辺エリアや最寄り駅の坪単価分析、次回募集開始時期の予測などにご活用いただけます。 | ||
※「どの不動産に頼めばいいのか分からない」「信頼できる営業マンの話を聞きたい」「一番親切な会社と契約したい」とお悩みの方におすすめなのが「高級賃貸バイブル」です。
高級賃貸バイブルは業界10年以上の熟練スタッフ群がお客様ファーストで対応します。
下記ボタンから、まずは無料でご相談下さい。
※内覧をご希望の際には、どうぞ物件のエントランス前にてお待ち合わせくださいませ。ご内覧後は、同じ場所でお別れとさせていただきます。お客様のご都合に合わせたスムーズなご案内を心がけておりますので、ご質問等がございましたら何なりとお申し付けください。 物件概要
| 物件名 |
| 築年月 |
|
|---|---|---|---|
| 所在地 | |||
| 交通 | |||
| 総戸数 |
| 総階数 |
|
| 構造 |
| ||
地図
物件までの道のりは、「拡大地図を表示」をクリックしてナビ機能をご利用ください。
部屋設備














建物設備

TVモニターホン

エレベーター

オートロック

バイク置場

宅配ボックス

敷地内ゴミ置場

管理人

駐輪場
セジョリ東大前の現在募集中のお部屋
- No rooms found for this property.









