
| 賃料 | 予想金額:142,000〜162,000円程度 | 管理費 | 予想金額:13,000〜17,000円程度 |
| 礼金/敷金 | 非公開(アーカイブ) | 平米数 | 41.38㎡ |
| 初期費用概算(参考) | 目安:308,500〜408,500 円 | みなし賃料(月額・参考) | 161,302〜181,302 円 |
| 備考 | 本ページは過去募集のアーカイブです。表示の金額は周辺相場・過去募集を踏まえた参考レンジであり、実際の契約金額・条件ではありません。 | ||
※上記みなし賃料(月額)は仲介手数料割引・無料&キャッシュバックを加味した高級賃貸バイブル限定の金額です。一般的なみなし賃料とは異なります。
【建物ページ】セジョリ東大前の詳細・最新空室はこちら▶▶選ばれる理由
仲介手数料無料・キャンペーン情報(毎月15名様限定)
〇仲介手数料割引キャンペーン
セジョリ東大前 801の口コミ・レビュー
セジョリ東大前 801、ここにはまさに都会の喧騒を忘れさせるような安息の場が広がっています。この特別な物件は、あなたの新しい生活を語りかけるかのように、穏やかな北東の風を受ける恵まれた土地に位置し、東京都文京区向丘1-13-9というアドレスにあります。ここからは、東京メトロ南北線の東大前駅まで歩いてわずか2分という、便利でありながらも落ち着いた環境が魅力です。
この801号室に足を踏み入れると、…セジョリ東大前 801、ここにはまさに都会の喧騒を忘れさせるような安息の場が広がっています。この特別な物件は、あなたの新しい生活を語りかけるかのように、穏やかな北東の風を受ける恵まれた土地に位置し、東京都文京区向丘1-13-9というアドレスにあります。ここからは、東京メトロ南北線の東大前駅まで歩いてわずか2分という、便利でありながらも落ち着いた環境が魅力です。
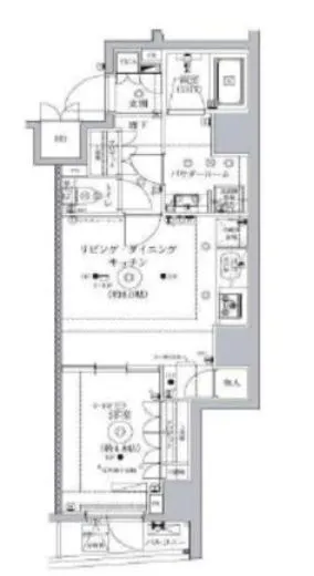
この801号室に足を踏み入れると、まるで映画のワンシーンに飛び込んだかのように、心が躍る瞬間が訪れます。41.38㎡の広々とした空間は、LDK8帖と洋室4.8帖の間取りで、洗練されたデザインと機能性が融合しています。暖かな日差しが差し込むその瞬間、あなたの心に広がるのは、ただの生活空間ではなく、まるでアートのような美しさがそこにあるのです。
リビングの窓から見える景色には、青空と緑が織りなす自然のハーモニーが映し出され、心地よい風が窓から流れ込み、まるで優しい手のひらで背中を押されるような感覚が広がります。ここでは、朝のコーヒーを淹れるその瞬間も、まるで高級カフェで味わう特別なひとときのように、香ばしい豆の香りが立ち昇り、あなたを包み込むでしょう。
さらに、セジョリ東大前 801には、TVモニターホンやオートロック、エレベーターといった現代の生活を彩る便利な設備が整っており、安心と便利さが共存します。さあ、あなたはこの素晴らしい空間で、どのような物語を紡いでいきますか?自分だけのアート作品を描くように、日常を豊かに彩っていくのです。
この地は、文化と歴史の薫り高い、高尚なエリアにあります。東京大学が近くにあることで、知的な刺激を受ける環境が整い、多くのアートや文学が息づく文京区の魅力を日々感じることができるでしょう。歴史ある街並みを散歩しながら、感じる風や匂い、そして人々との交流が、あなたに新たな感動をもたらすことでしょう。
セジョリ東大前 801は、ただの住居ではなく、あなたの人生を豊かにする舞台です。この特別な空間で、日々の生活がまるで映画の一ページのように、心に残る素晴らしい瞬間で満たされることを夢見てください。あなたの新しい物語が、ここから始まります。
この801号室に足を踏み入れると、…セジョリ東大前 801、ここにはまさに都会の喧騒を忘れさせるような安息の場が広がっています。この特別な物件は、あなたの新しい生活を語りかけるかのように、穏やかな北東の風を受ける恵まれた土地に位置し、東京都文京区向丘1-13-9というアドレスにあります。ここからは、東京メトロ南北線の東大前駅まで歩いてわずか2分という、便利でありながらも落ち着いた環境が魅力です。
この801号室に足を踏み入れると、まるで映画のワンシーンに飛び込んだかのように、心が躍る瞬間が訪れます。41.38㎡の広々とした空間は、LDK8帖と洋室4.8帖の間取りで、洗練されたデザインと機能性が融合しています。暖かな日差しが差し込むその瞬間、あなたの心に広がるのは、ただの生活空間ではなく、まるでアートのような美しさがそこにあるのです。
リビングの窓から見える景色には、青空と緑が織りなす自然のハーモニーが映し出され、心地よい風が窓から流れ込み、まるで優しい手のひらで背中を押されるような感覚が広がります。ここでは、朝のコーヒーを淹れるその瞬間も、まるで高級カフェで味わう特別なひとときのように、香ばしい豆の香りが立ち昇り、あなたを包み込むでしょう。
さらに、セジョリ東大前 801には、TVモニターホンやオートロック、エレベーターといった現代の生活を彩る便利な設備が整っており、安心と便利さが共存します。さあ、あなたはこの素晴らしい空間で、どのような物語を紡いでいきますか?自分だけのアート作品を描くように、日常を豊かに彩っていくのです。
この地は、文化と歴史の薫り高い、高尚なエリアにあります。東京大学が近くにあることで、知的な刺激を受ける環境が整い、多くのアートや文学が息づく文京区の魅力を日々感じることができるでしょう。歴史ある街並みを散歩しながら、感じる風や匂い、そして人々との交流が、あなたに新たな感動をもたらすことでしょう。
セジョリ東大前 801は、ただの住居ではなく、あなたの人生を豊かにする舞台です。この特別な空間で、日々の生活がまるで映画の一ページのように、心に残る素晴らしい瞬間で満たされることを夢見てください。あなたの新しい物語が、ここから始まります。
バイブルスコア
バイブルスコア: 56.4
条件のいい物件です、引っ越しが2か月以内の場合は仮申し込みを検討すべき物件です。
このお部屋は、現在ご入居中のため空室情報はございません。ただし、将来的に募集が開始される際、バイブルスコアにおいて非常に高い評価が期待されます。特にご興味をお持ちの方は、今のうちにブックマークやお気に入りに登録していただくと、募集開始のお知らせをすぐに受け取ることができます。是非ともご検討くださいませ。
※バイブルスコア詳細はこちら
バイブルスコアとは独自のAI機械学習技術を利用した物件評価システムで、物件のおすすめ度を示します。最高得点は100点で、スコアが高いほど、よりおすすめの物件と評価されています。
写真
契約条件
| 賃料 | 予想金額:142,000〜162,000円程度 | 管理費 | 予想金額:13,000〜17,000円程度 |
| 礼金 | 非公開(アーカイブ) | 敷金 | 非公開(アーカイブ) |
| フリーレント | なし | 平米数 | 41.38㎡ |
| 間取り | 1LDK | 大型収納 | なし |
| 契約期間 | 2年 | 方角 | 北東 |
| 更新料 | 1ヶ月 | 契約形態 | 普通賃貸借契約 |
| 取引態様 | 媒介 | 内見状況 | 入居中 |
| 入居時期 | 入居中 | SOHO・事務所 | 不可 |
| ペット | 可 | 間取り内訳 | LDK8帖 洋室4.8帖 |
| キャンペーン情報・備考 | 本情報は賃料改定交渉の資料作成、収益物件の利回り試算、周辺エリアや最寄り駅の坪単価分析、次回募集開始時期の予測などにご活用いただけます。 | ||
※「どの不動産に頼めばいいのか分からない」「信頼できる営業マンの話を聞きたい」「一番親切な会社と契約したい」とお悩みの方におすすめなのが「高級賃貸バイブル」です。
高級賃貸バイブルは業界10年以上の熟練スタッフ群がお客様ファーストで対応します。
下記ボタンから、まずは無料でご相談下さい。
※内覧をご希望の際には、どうぞ物件のエントランス前にてお待ち合わせくださいませ。ご内覧後は、同じ場所でお別れとさせていただきます。お客様のご都合に合わせたスムーズなご案内を心がけておりますので、ご質問等がございましたら何なりとお申し付けください。 物件概要
| 物件名 |
| 築年月 |
|
|---|---|---|---|
| 所在地 | |||
| 交通 | |||
| 総戸数 |
| 総階数 |
|
| 構造 |
| ||
地図
物件までの道のりは、「拡大地図を表示」をクリックしてナビ機能をご利用ください。
部屋設備









建物設備

TVモニターホン

エレベーター

オートロック

バイク置場

宅配ボックス

敷地内ゴミ置場

管理人

駐輪場
セジョリ東大前の現在募集中のお部屋
- No rooms found for this property.









