
| 賃料 | 予想金額:136,000〜156,000円程度 | 管理費 | 予想金額:13,000〜17,000円程度 |
| 礼金/敷金 | 非公開(アーカイブ) | 平米数 | 41.38㎡ |
| 初期費用概算(参考) | 目安:299,500〜399,500 円 | みなし賃料(月額・参考) | 155,240〜175,240 円 |
| 備考 | 本ページは過去募集のアーカイブです。表示の金額は周辺相場・過去募集を踏まえた参考レンジであり、実際の契約金額・条件ではありません。 | ||
※上記みなし賃料(月額)は仲介手数料割引・無料&キャッシュバックを加味した高級賃貸バイブル限定の金額です。一般的なみなし賃料とは異なります。
【建物ページ】セジョリ東大前の詳細・最新空室はこちら▶▶選ばれる理由
仲介手数料無料・キャンペーン情報(毎月15名様限定)
〇仲介手数料割引キャンペーン
セジョリ東大前 401の口コミ・レビュー
セジョリ東大前 401。あなたの新しい物語の舞台が、ここにあります。この魅力的な物件は、まるで一冊の古書のように、そのページをめくる度に新たな世界が広がっています。外観はエレガントな佇まいを見せる一方で、内側には生活の温もりが満ちています。そして、この特別な空間には、41.38㎡の広さがあなたを優しく包み込みます。
玄関を開けると、心地よい朝の光がほのぼのと差し込み、北東向きの窓から入る新鮮な風…セジョリ東大前 401。あなたの新しい物語の舞台が、ここにあります。この魅力的な物件は、まるで一冊の古書のように、そのページをめくる度に新たな世界が広がっています。外観はエレガントな佇まいを見せる一方で、内側には生活の温もりが満ちています。そして、この特別な空間には、41.38㎡の広さがあなたを優しく包み込みます。
玄関を開けると、心地よい朝の光がほのぼのと差し込み、北東向きの窓から入る新鮮な風が、あなたの五感を刺激します。嬉しいことに、セジョリ東大前 401には、エレベーターが完備されており、スムーズにアクセスできるのが嬉しいところ。オートロックも装備されておりますので、安心して暮らし始めることができます。まるで自分だけの小さな城にいるかのような感覚です。
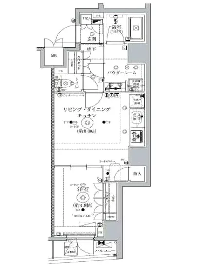
居心地の良いリビングダイニング(LDK:8帖)は、あたたかい色合いの壁に囲まれ、心が和む瞬間を提供してくれます。大切な人と共に過ごすひととき、笑い声が部屋に響き渡ることでしょう。そこでの食事は、まるで特別なレストランのような趣きを与えてくれます。時折漂う香ばしい料理の香りが、食欲をそそります。
その隣には、4.8帖の洋室が広がっています。この部屋は、安らぎを求めるあなたのための隠れ家となることでしょう。柔らかな寝具に身を包み、静かに広がる夢の中での旅が、この場所に待っているのです。目を閉じれば、青い空とともに流れる雲々、風のささやきが耳に心地よく響きます。
セジョリ東大前 401は、あなたのライフスタイルを豊かにするための多彩な設備を兼ね備えています。宅配ボックスや駐輪場、敷地内ゴミ置場など、便利な生活を支える施設が整っています。さらに、管理人が常駐しているため、安心感は言うまでもありません。バイク置場も完備しており、自由な移動が可能です。
そしてこの物件は、東京の歴史的な文京区に位置しています。静かな街並みには文化や芸術の香りが漂い、多くの美術館や書店、カフェが点在しています。周囲には古き良き日本の文化が息づいており、散策するたびに新たな発見があることでしょう。
セジョリ東大前 401は、まるであなたの新しい冒険の始まりを告げるかのように、静かでありながらもどこか特別な存在です。ここでの生活こそが、まるで映画のワンシーンのように、生き生きとした日々を演出してくれることでしょう。あなたの新しい物語が、今、ここから始まります。
玄関を開けると、心地よい朝の光がほのぼのと差し込み、北東向きの窓から入る新鮮な風…セジョリ東大前 401。あなたの新しい物語の舞台が、ここにあります。この魅力的な物件は、まるで一冊の古書のように、そのページをめくる度に新たな世界が広がっています。外観はエレガントな佇まいを見せる一方で、内側には生活の温もりが満ちています。そして、この特別な空間には、41.38㎡の広さがあなたを優しく包み込みます。
玄関を開けると、心地よい朝の光がほのぼのと差し込み、北東向きの窓から入る新鮮な風が、あなたの五感を刺激します。嬉しいことに、セジョリ東大前 401には、エレベーターが完備されており、スムーズにアクセスできるのが嬉しいところ。オートロックも装備されておりますので、安心して暮らし始めることができます。まるで自分だけの小さな城にいるかのような感覚です。
居心地の良いリビングダイニング(LDK:8帖)は、あたたかい色合いの壁に囲まれ、心が和む瞬間を提供してくれます。大切な人と共に過ごすひととき、笑い声が部屋に響き渡ることでしょう。そこでの食事は、まるで特別なレストランのような趣きを与えてくれます。時折漂う香ばしい料理の香りが、食欲をそそります。
その隣には、4.8帖の洋室が広がっています。この部屋は、安らぎを求めるあなたのための隠れ家となることでしょう。柔らかな寝具に身を包み、静かに広がる夢の中での旅が、この場所に待っているのです。目を閉じれば、青い空とともに流れる雲々、風のささやきが耳に心地よく響きます。
セジョリ東大前 401は、あなたのライフスタイルを豊かにするための多彩な設備を兼ね備えています。宅配ボックスや駐輪場、敷地内ゴミ置場など、便利な生活を支える施設が整っています。さらに、管理人が常駐しているため、安心感は言うまでもありません。バイク置場も完備しており、自由な移動が可能です。
そしてこの物件は、東京の歴史的な文京区に位置しています。静かな街並みには文化や芸術の香りが漂い、多くの美術館や書店、カフェが点在しています。周囲には古き良き日本の文化が息づいており、散策するたびに新たな発見があることでしょう。
セジョリ東大前 401は、まるであなたの新しい冒険の始まりを告げるかのように、静かでありながらもどこか特別な存在です。ここでの生活こそが、まるで映画のワンシーンのように、生き生きとした日々を演出してくれることでしょう。あなたの新しい物語が、今、ここから始まります。
バイブルスコア
バイブルスコア: 52.5
条件のいい物件です、引っ越しが2か月以内の場合は仮申し込みを検討すべき物件です。
このお部屋は、現在ご入居中のため空室情報はございません。ただし、将来的に募集が開始される際、バイブルスコアにおいて非常に高い評価が期待されます。特にご興味をお持ちの方は、今のうちにブックマークやお気に入りに登録していただくと、募集開始のお知らせをすぐに受け取ることができます。是非ともご検討くださいませ。
※バイブルスコア詳細はこちら
バイブルスコアとは独自のAI機械学習技術を利用した物件評価システムで、物件のおすすめ度を示します。最高得点は100点で、スコアが高いほど、よりおすすめの物件と評価されています。
写真
契約条件
| 賃料 | 予想金額:136,000〜156,000円程度 | 管理費 | 予想金額:13,000〜17,000円程度 |
| 礼金 | 非公開(アーカイブ) | 敷金 | 非公開(アーカイブ) |
| フリーレント | なし | 平米数 | 41.38㎡ |
| 間取り | 1LDK | 大型収納 | なし |
| 契約期間 | 2年 | 方角 | 北東 |
| 更新料 | 1ヶ月 | 契約形態 | 普通賃貸借契約 |
| 取引態様 | 媒介 | 内見状況 | 入居中 |
| 入居時期 | 入居中 | SOHO・事務所 | 不可 |
| ペット | ペット可 | 間取り内訳 | 洋:4.8 LDK:8 |
| キャンペーン情報・備考 | 本情報は賃料改定交渉の資料作成、収益物件の利回り試算、周辺エリアや最寄り駅の坪単価分析、次回募集開始時期の予測などにご活用いただけます。 | ||
※「どの不動産に頼めばいいのか分からない」「信頼できる営業マンの話を聞きたい」「一番親切な会社と契約したい」とお悩みの方におすすめなのが「高級賃貸バイブル」です。
高級賃貸バイブルは業界10年以上の熟練スタッフ群がお客様ファーストで対応します。
下記ボタンから、まずは無料でご相談下さい。
※内覧をご希望の際には、どうぞ物件のエントランス前にてお待ち合わせくださいませ。ご内覧後は、同じ場所でお別れとさせていただきます。お客様のご都合に合わせたスムーズなご案内を心がけておりますので、ご質問等がございましたら何なりとお申し付けください。 物件概要
| 物件名 |
| 築年月 |
|
|---|---|---|---|
| 所在地 | |||
| 交通 | |||
| 総戸数 |
| 総階数 |
|
| 構造 |
| ||
地図
物件までの道のりは、「拡大地図を表示」をクリックしてナビ機能をご利用ください。
部屋設備















建物設備

TVモニターホン

エレベーター

オートロック

バイク置場

宅配ボックス

敷地内ゴミ置場

管理人

駐輪場
セジョリ東大前の現在募集中のお部屋
- No rooms found for this property.









