
| 賃料 | 予想金額:139,000〜159,000円程度 | 管理費 | 予想金額:13,000〜17,000円程度 |
| 礼金/敷金 | 非公開(アーカイブ) | 平米数 | 41.38㎡ |
| 初期費用概算(参考) | 目安:304,000〜404,000 円 | みなし賃料(月額・参考) | 158,271〜178,271 円 |
| 備考 | 本ページは過去募集のアーカイブです。表示の金額は周辺相場・過去募集を踏まえた参考レンジであり、実際の契約金額・条件ではありません。 | ||
※上記みなし賃料(月額)は仲介手数料割引・無料&キャッシュバックを加味した高級賃貸バイブル限定の金額です。一般的なみなし賃料とは異なります。
【建物ページ】セジョリ東大前の詳細・最新空室はこちら▶▶選ばれる理由
仲介手数料無料・キャンペーン情報(毎月15名様限定)
〇仲介手数料割引キャンペーン
セジョリ東大前 501の口コミ・レビュー
セジョリ東大前 501。この特別な場所は、まるで静かな詩の一篇のように、東京の喧騒から少し離れた文京区向丘に佇んでいます。501という数字には、ただの部屋番号以上の響きが宿ります。それは、あなたの日常の舞台が始まる場所、空間としての心の拠り所なのです。
扉を開けると、広がるのは陽光が心地よく差し込むLDK 8帖。まるで太陽の光が優しい手のひらで包んでくれるかのようです。この空間では、あなたの想像…セジョリ東大前 501。この特別な場所は、まるで静かな詩の一篇のように、東京の喧騒から少し離れた文京区向丘に佇んでいます。501という数字には、ただの部屋番号以上の響きが宿ります。それは、あなたの日常の舞台が始まる場所、空間としての心の拠り所なのです。
扉を開けると、広がるのは陽光が心地よく差し込むLDK 8帖。まるで太陽の光が優しい手のひらで包んでくれるかのようです。この空間では、あなたの想像力が羽ばたき、日々のストーリーを織りなすことができるでしょう。友人との愉快な食事会も、静かな読書のひとときも、全てがこの特別な空間から生まれるのです。
セジョリ東大前 501は、北東の角部屋で、朝の光が穏やかにあなたの目覚めを優しく促します。新鮮な朝の空気を感じながら、窓を開けて外に出ると、近くには東京メトロ南北線の東大前駅が徒歩2分の距離にあります。この利便性は、まるで生活のスパイスのよう。日々の忙しさの中でも、ふとした瞬間に安らぎを感じさせてくれるのです。
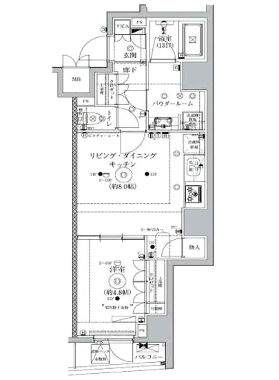
洋室は4.8帖。ここは、ひとつの小宇宙。心の中に溜め込んだ思い出や夢が、生まれる場所。夜、静かな時間に包まれたこのスペースで本を読めば、ページをめくる音がまるで小さなオーケストラの演奏のように響き渡ります。少し柔らかい布団に身を委ねれば、心地よい温もりが身体を包むことでしょう。
この空間には、時折耳にする管理人さんの優しい声や、宅配ボックスの音が心地よく耳に届きます。このような日常は、まるで映画のワンシーンのように流れていき、あなたの生活をより豊かにしてくれるのです。
セジョリ東大前 501の魅力は、ただの住まいを越えています。それは、歴史と文化が息づく文京区に位置し、周囲には大学や美術館、武道館など、知的かつ芸術的な刺激が溢れています。シーズンごとに移り変わる景色の美しさや、文化的な行事は、まるで四季折々の贈り物のよう。あなたはここに住むことで、日常の中に非日常を見出し、毎日を特別なものに変えることができるのです。
この場所に身を置くことで、あなたの日常がどのように彩られるか、その未来を想像するだけで、心が高揚します。あなただけの特別なストーリーが、セジョリ東大前 501で始まるのです。この空間が、あなたの人生に美しい旋律を奏でることを、心から願っています。
扉を開けると、広がるのは陽光が心地よく差し込むLDK 8帖。まるで太陽の光が優しい手のひらで包んでくれるかのようです。この空間では、あなたの想像…セジョリ東大前 501。この特別な場所は、まるで静かな詩の一篇のように、東京の喧騒から少し離れた文京区向丘に佇んでいます。501という数字には、ただの部屋番号以上の響きが宿ります。それは、あなたの日常の舞台が始まる場所、空間としての心の拠り所なのです。
扉を開けると、広がるのは陽光が心地よく差し込むLDK 8帖。まるで太陽の光が優しい手のひらで包んでくれるかのようです。この空間では、あなたの想像力が羽ばたき、日々のストーリーを織りなすことができるでしょう。友人との愉快な食事会も、静かな読書のひとときも、全てがこの特別な空間から生まれるのです。
セジョリ東大前 501は、北東の角部屋で、朝の光が穏やかにあなたの目覚めを優しく促します。新鮮な朝の空気を感じながら、窓を開けて外に出ると、近くには東京メトロ南北線の東大前駅が徒歩2分の距離にあります。この利便性は、まるで生活のスパイスのよう。日々の忙しさの中でも、ふとした瞬間に安らぎを感じさせてくれるのです。
洋室は4.8帖。ここは、ひとつの小宇宙。心の中に溜め込んだ思い出や夢が、生まれる場所。夜、静かな時間に包まれたこのスペースで本を読めば、ページをめくる音がまるで小さなオーケストラの演奏のように響き渡ります。少し柔らかい布団に身を委ねれば、心地よい温もりが身体を包むことでしょう。
この空間には、時折耳にする管理人さんの優しい声や、宅配ボックスの音が心地よく耳に届きます。このような日常は、まるで映画のワンシーンのように流れていき、あなたの生活をより豊かにしてくれるのです。
セジョリ東大前 501の魅力は、ただの住まいを越えています。それは、歴史と文化が息づく文京区に位置し、周囲には大学や美術館、武道館など、知的かつ芸術的な刺激が溢れています。シーズンごとに移り変わる景色の美しさや、文化的な行事は、まるで四季折々の贈り物のよう。あなたはここに住むことで、日常の中に非日常を見出し、毎日を特別なものに変えることができるのです。
この場所に身を置くことで、あなたの日常がどのように彩られるか、その未来を想像するだけで、心が高揚します。あなただけの特別なストーリーが、セジョリ東大前 501で始まるのです。この空間が、あなたの人生に美しい旋律を奏でることを、心から願っています。
バイブルスコア
バイブルスコア: 41.1
条件のいい物件です、引っ越しが2か月以内の場合は仮申し込みを検討すべき物件です。
※バイブルスコア詳細はこちら
バイブルスコアとは独自のAI機械学習技術を利用した物件評価システムで、物件のおすすめ度を示します。最高得点は100点で、スコアが高いほど、よりおすすめの物件と評価されています。
写真
契約条件
| 賃料 | 予想金額:139,000〜159,000円程度 | 管理費 | 予想金額:13,000〜17,000円程度 |
| 礼金 | 非公開(アーカイブ) | 敷金 | 非公開(アーカイブ) |
| フリーレント | なし | 平米数 | 41.38㎡ |
| 間取り | 1LDK | 大型収納 | |
| 契約期間 | 2年 | 方角 | 北東 |
| 更新料 | 1ヶ月 | 契約形態 | 普通賃貸借契約 |
| 取引態様 | 媒介 | 内見状況 | 入居中 |
| 入居時期 | 入居中 | SOHO・事務所 | |
| ペット | ペット可 | 間取り内訳 | 洋:4.8 LDK:8 |
| キャンペーン情報・備考 | 本情報は賃料改定交渉の資料作成、収益物件の利回り試算、周辺エリアや最寄り駅の坪単価分析、次回募集開始時期の予測などにご活用いただけます。 | ||
※「どの不動産に頼めばいいのか分からない」「信頼できる営業マンの話を聞きたい」「一番親切な会社と契約したい」とお悩みの方におすすめなのが「高級賃貸バイブル」です。
高級賃貸バイブルは業界10年以上の熟練スタッフ群がお客様ファーストで対応します。
下記ボタンから、まずは無料でご相談下さい。
※内覧をご希望の際には、どうぞ物件のエントランス前にてお待ち合わせくださいませ。ご内覧後は、同じ場所でお別れとさせていただきます。お客様のご都合に合わせたスムーズなご案内を心がけておりますので、ご質問等がございましたら何なりとお申し付けください。 物件概要
| 物件名 |
| 築年月 |
|
|---|---|---|---|
| 所在地 | |||
| 交通 | |||
| 総戸数 |
| 総階数 |
|
| 構造 |
| ||
地図
物件までの道のりは、「拡大地図を表示」をクリックしてナビ機能をご利用ください。
部屋設備















建物設備

TVモニターホン

エレベーター

オートロック

バイク置場

宅配ボックス

敷地内ゴミ置場

管理人

駐輪場
セジョリ東大前の現在募集中のお部屋
- No rooms found for this property.









