
| 賃料 | 予想金額:440,000〜460,000円程度 | 管理費 | 予想金額:0〜2,000円程度 |
| 礼金/敷金 | 非公開(アーカイブ) | 平米数 | 99.98㎡ |
| 初期費用概算(参考) | 目安:1,616,500〜1,716,500 円 | みなし賃料(月額・参考) | 465,344〜485,344 円 |
| 備考 | 本ページは過去募集のアーカイブです。表示の金額は周辺相場・過去募集を踏まえた参考レンジであり、実際の契約金額・条件ではありません。 | ||
※上記みなし賃料(月額)は仲介手数料割引・無料&キャッシュバックを加味した高級賃貸バイブル限定の金額です。一般的なみなし賃料とは異なります。
【建物ページ】シティハウス池袋の詳細・最新空室はこちら▶▶選ばれる理由
仲介手数料無料・キャンペーン情報(毎月15名様限定)
〇仲介手数料割引キャンペーン
シティハウス池袋 1402の口コミ・レビュー
シティハウス池袋 1402は、まさに都会の喧騒から少し離れた、心のオアシスのような存在です。この物件は、東京都豊島区東池袋に位置し、南東の陽光をたっぷりと浴びることができます。1402号室という数字には、特別な響きが宿り、日常の一瞬一瞬を特別なものに変える力を秘めています。
99.98㎡の広さは、広がりを感じさせる空間を実現しています。ここに足を踏み入れた瞬間、穏やかで上品な雰囲気が漂い、まるで…シティハウス池袋 1402は、まさに都会の喧騒から少し離れた、心のオアシスのような存在です。この物件は、東京都豊島区東池袋に位置し、南東の陽光をたっぷりと浴びることができます。1402号室という数字には、特別な響きが宿り、日常の一瞬一瞬を特別なものに変える力を秘めています。
99.98㎡の広さは、広がりを感じさせる空間を実現しています。ここに足を踏み入れた瞬間、穏やかで上品な雰囲気が漂い、まるで自分が一流の映画の主人公になったかのような感覚に包まれます。リビングダイニング(LDK)は16.5帖と贅沢な広さを持ち、家族や友人と心のこもった会話に花を咲かせる理想的な場所です。ふんわりとかすかな香りが漂う料理の時間や、心に残る音楽が背景に響く空間で、特別なひとときを演出してくれます。
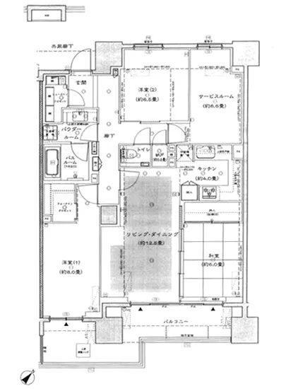
シティハウス池袋 1402には、洋室が三部屋、和室が一部屋、そしてLDKが存在します。8帖の洋室は、穏やかな光を取り込みながら、思わず夢の中へと誘うベッドルームに最適です。6.6帖の洋室と6.5帖の洋室は、それぞれに個性を持ち、贅沢な隠れ家のように感じられます。和室6帖は、和の心を感じる安らぎの空間として、四季の移ろいを感じ取ることができる特権です。
さらに、生活の便利さも兼ね備えています。オートロックやエレベーター、宅配ボックスといった現代の嗜好にマッチした設備が、日常生活の煩雑さを軽減し、心のゆとりをもたらします。忙しい朝に、まるで映画のワンシーンのように颯爽と出かけるための駐輪場や、平置きと機械式の駐車場も完備されているのは、まさに現代のライフスタイルに寄り添った工夫です。
シティハウス池袋 1402の周囲は、歴史と文化に根付いた魅力的なエリア。大塚駅から徒歩8分というアクセスは、まるであなたを名画の中に誘う芸術作品のように感じさせます。地域の名所やアートギャラリー、カフェなどが点在し、日々の生活に彩りを与えてくれることでしょう。
この素晴らしい住まいで、新たな物語を紡いでください。日常の小さな瞬間が、ここシティハウス池袋 1402では映画のワンシーンに変わります。心豊かな生活が、あなたを待っています。
99.98㎡の広さは、広がりを感じさせる空間を実現しています。ここに足を踏み入れた瞬間、穏やかで上品な雰囲気が漂い、まるで…シティハウス池袋 1402は、まさに都会の喧騒から少し離れた、心のオアシスのような存在です。この物件は、東京都豊島区東池袋に位置し、南東の陽光をたっぷりと浴びることができます。1402号室という数字には、特別な響きが宿り、日常の一瞬一瞬を特別なものに変える力を秘めています。
99.98㎡の広さは、広がりを感じさせる空間を実現しています。ここに足を踏み入れた瞬間、穏やかで上品な雰囲気が漂い、まるで自分が一流の映画の主人公になったかのような感覚に包まれます。リビングダイニング(LDK)は16.5帖と贅沢な広さを持ち、家族や友人と心のこもった会話に花を咲かせる理想的な場所です。ふんわりとかすかな香りが漂う料理の時間や、心に残る音楽が背景に響く空間で、特別なひとときを演出してくれます。
シティハウス池袋 1402には、洋室が三部屋、和室が一部屋、そしてLDKが存在します。8帖の洋室は、穏やかな光を取り込みながら、思わず夢の中へと誘うベッドルームに最適です。6.6帖の洋室と6.5帖の洋室は、それぞれに個性を持ち、贅沢な隠れ家のように感じられます。和室6帖は、和の心を感じる安らぎの空間として、四季の移ろいを感じ取ることができる特権です。
さらに、生活の便利さも兼ね備えています。オートロックやエレベーター、宅配ボックスといった現代の嗜好にマッチした設備が、日常生活の煩雑さを軽減し、心のゆとりをもたらします。忙しい朝に、まるで映画のワンシーンのように颯爽と出かけるための駐輪場や、平置きと機械式の駐車場も完備されているのは、まさに現代のライフスタイルに寄り添った工夫です。
シティハウス池袋 1402の周囲は、歴史と文化に根付いた魅力的なエリア。大塚駅から徒歩8分というアクセスは、まるであなたを名画の中に誘う芸術作品のように感じさせます。地域の名所やアートギャラリー、カフェなどが点在し、日々の生活に彩りを与えてくれることでしょう。
この素晴らしい住まいで、新たな物語を紡いでください。日常の小さな瞬間が、ここシティハウス池袋 1402では映画のワンシーンに変わります。心豊かな生活が、あなたを待っています。
バイブルスコア
バイブルスコア: 26.9
平均的なスコアです。
※バイブルスコア詳細はこちら
バイブルスコアとは独自のAI機械学習技術を利用した物件評価システムで、物件のおすすめ度を示します。最高得点は100点で、スコアが高いほど、よりおすすめの物件と評価されています。
写真
現在写真が登録されていません契約条件
| 賃料 | 予想金額:440,000〜460,000円程度 | 管理費 | 予想金額:0〜2,000円程度 |
| 礼金 | 非公開(アーカイブ) | 敷金 | 非公開(アーカイブ) |
| フリーレント | なし | 平米数 | 99.98㎡ |
| 間取り | 4LDK | 大型収納 | WIC+SIC |
| 契約期間 |
| 方角 | 南東 |
| 更新料 | 契約形態 | 普通賃貸借契約 | |
| 取引態様 | 媒介 | 内見状況 | 入居中 |
| 入居時期 | 入居中 | SOHO・事務所 | |
| ペット | 間取り内訳 | 洋:8 洋:6.6 洋:6.5 和:6 LDK:16.5 | |
| キャンペーン情報・備考 | 本情報は賃料改定交渉の資料作成、収益物件の利回り試算、周辺エリアや最寄り駅の坪単価分析、次回募集開始時期の予測などにご活用いただけます。 | ||
※「どの不動産に頼めばいいのか分からない」「信頼できる営業マンの話を聞きたい」「一番親切な会社と契約したい」とお悩みの方におすすめなのが「高級賃貸バイブル」です。
高級賃貸バイブルは業界10年以上の熟練スタッフ群がお客様ファーストで対応します。
下記ボタンから、まずは無料でご相談下さい。
※内覧をご希望の際には、どうぞ物件のエントランス前にてお待ち合わせくださいませ。ご内覧後は、同じ場所でお別れとさせていただきます。お客様のご都合に合わせたスムーズなご案内を心がけておりますので、ご質問等がございましたら何なりとお申し付けください。 物件概要
| 物件名 |
| 築年月 |
|
|---|---|---|---|
| 所在地 | |||
| 交通 | |||
| 総戸数 |
| 総階数 |
|
| 構造 |
| ||
地図
物件までの道のりは、「拡大地図を表示」をクリックしてナビ機能をご利用ください。
部屋設備















建物設備

TVモニターホン

エレベーター

オートロック

バイク置場

宅配ボックス

敷地内ゴミ置場

管理人

駐車場平置き

駐車場機械式

駐輪場
シティハウス池袋の現在募集中のお部屋
- シティハウス池袋 13階 67.7㎡ - 間取り: 3LDK+WIC - 賃料: 32万円
