
| 賃料 | 予想金額:440,000〜460,000円程度 | 管理費 | 予想金額:0〜2,000円程度 |
| 礼金/敷金 | 非公開(アーカイブ) | 平米数 | 99.98㎡ |
| 初期費用概算(参考) | 目安:1,616,500〜1,716,500 円 | みなし賃料(月額・参考) | 465,344〜485,344 円 |
| 備考 | 本ページは過去募集のアーカイブです。表示の金額は周辺相場・過去募集を踏まえた参考レンジであり、実際の契約金額・条件ではありません。 | ||
※上記みなし賃料(月額)は仲介手数料割引・無料&キャッシュバックを加味した高級賃貸バイブル限定の金額です。一般的なみなし賃料とは異なります。
【建物ページ】シティハウス池袋の詳細・最新空室はこちら▶▶選ばれる理由
仲介手数料無料・キャンペーン情報(毎月15名様限定)
〇仲介手数料割引キャンペーン
シティハウス池袋 1404の口コミ・レビュー
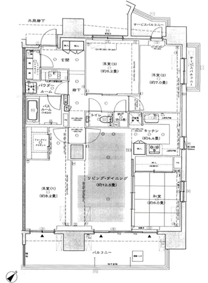
シティハウス池袋 1404。この名は、ただの住所を超えた、心の故郷を提供する特別な場です。あなたがこの1414階に足を踏み入れる瞬間、南東からの朝日が柔らかな光を放ち、広がる視界に新たな息吹を与えてくれるでしょう。専有面積99.98㎡の中に、あなたの生活を豊かに彩る、4LDKの世界が広がっています。
ここ、シティハウス池袋 1404では、まるで優雅なオーケストラのように、生活の全てが調和を持ち、…シティハウス池袋 1404。この名は、ただの住所を超えた、心の故郷を提供する特別な場です。あなたがこの1414階に足を踏み入れる瞬間、南東からの朝日が柔らかな光を放ち、広がる視界に新たな息吹を与えてくれるでしょう。専有面積99.98㎡の中に、あなたの生活を豊かに彩る、4LDKの世界が広がっています。
ここ、シティハウス池袋 1404では、まるで優雅なオーケストラのように、生活の全てが調和を持ち、さまざまな感覚が刺激されます。LDK12.5帖のスペースは、ゆったりとした社交の場となり、友人や家族との歓談が美しいメロディーを奏でるでしょう。柔らかなカーペットの感触、窓から差し込む光の粒が、あなたの心に安らぎを与えるひととき。これが日常の一コマであることに、思わず微笑みがこぼれます。
洋室はそれぞれに特別なストーリーを持っています。8.2帖の洋室では、静かな読書の時間を楽しみながら、時折香るコーヒーの香りと共に心落ち着く瞬間。7帖の洋室では、仄かに響く音楽が心を癒し、まるで小さなコンサートホールのように、あなたの感性を刺激します。6.2帖の洋室は、夢の世界へ誘う静けさに包まれ、6帖の和室は、日本の美を感じさせる和の心を宿しています。
シティハウス池袋 1404は、ただの住まいではありません。それは、あなたの人生を豊かにし、毎日を特別にするパートナーです。宅配ボックスや駐輪場、エレベーターにオートロックといった充実した設備は、あなたの日常をより快適に、さらに安全にサポートします。また、管理人の存在が、まるで優しい叱咤激励のように、この場所をより特別なものにしてくれます。
周囲には、豊島区の豊かな文化や歴史が息づいています。大塚駅からのアクセスも良く、都会の喧騒の中にありながら、どこか懐かしいような温かみが感じられます。夜の街は、まるで映画の1シーンのように色彩豊かで、多様な人々が集い、あたたかな雰囲気を醸し出しています。
シティハウス池袋 1404。ここでの生活は、毎日が新しい発見の連続。朝日が差し込む瞬間に、新たな一日が始まり、夕焼けに染まる空と共に、あなたの心もまた色づいていくのです。ここは、ただの住まいではなく、あなたの夢と希望が息づく場所。あなたの新しい生活の舞台であり、すべての瞬間が劇的な出会いを演出します。心の琴線に触れる、この特別な場所で、ぜひ、あなたの物語を紡いでみてはいかがでしょうか。
ここ、シティハウス池袋 1404では、まるで優雅なオーケストラのように、生活の全てが調和を持ち、…シティハウス池袋 1404。この名は、ただの住所を超えた、心の故郷を提供する特別な場です。あなたがこの1414階に足を踏み入れる瞬間、南東からの朝日が柔らかな光を放ち、広がる視界に新たな息吹を与えてくれるでしょう。専有面積99.98㎡の中に、あなたの生活を豊かに彩る、4LDKの世界が広がっています。
ここ、シティハウス池袋 1404では、まるで優雅なオーケストラのように、生活の全てが調和を持ち、さまざまな感覚が刺激されます。LDK12.5帖のスペースは、ゆったりとした社交の場となり、友人や家族との歓談が美しいメロディーを奏でるでしょう。柔らかなカーペットの感触、窓から差し込む光の粒が、あなたの心に安らぎを与えるひととき。これが日常の一コマであることに、思わず微笑みがこぼれます。
洋室はそれぞれに特別なストーリーを持っています。8.2帖の洋室では、静かな読書の時間を楽しみながら、時折香るコーヒーの香りと共に心落ち着く瞬間。7帖の洋室では、仄かに響く音楽が心を癒し、まるで小さなコンサートホールのように、あなたの感性を刺激します。6.2帖の洋室は、夢の世界へ誘う静けさに包まれ、6帖の和室は、日本の美を感じさせる和の心を宿しています。
シティハウス池袋 1404は、ただの住まいではありません。それは、あなたの人生を豊かにし、毎日を特別にするパートナーです。宅配ボックスや駐輪場、エレベーターにオートロックといった充実した設備は、あなたの日常をより快適に、さらに安全にサポートします。また、管理人の存在が、まるで優しい叱咤激励のように、この場所をより特別なものにしてくれます。
周囲には、豊島区の豊かな文化や歴史が息づいています。大塚駅からのアクセスも良く、都会の喧騒の中にありながら、どこか懐かしいような温かみが感じられます。夜の街は、まるで映画の1シーンのように色彩豊かで、多様な人々が集い、あたたかな雰囲気を醸し出しています。
シティハウス池袋 1404。ここでの生活は、毎日が新しい発見の連続。朝日が差し込む瞬間に、新たな一日が始まり、夕焼けに染まる空と共に、あなたの心もまた色づいていくのです。ここは、ただの住まいではなく、あなたの夢と希望が息づく場所。あなたの新しい生活の舞台であり、すべての瞬間が劇的な出会いを演出します。心の琴線に触れる、この特別な場所で、ぜひ、あなたの物語を紡いでみてはいかがでしょうか。
バイブルスコア
バイブルスコア: 26.9
平均的なスコアです。
※バイブルスコア詳細はこちら
バイブルスコアとは独自のAI機械学習技術を利用した物件評価システムで、物件のおすすめ度を示します。最高得点は100点で、スコアが高いほど、よりおすすめの物件と評価されています。
写真
現在写真が登録されていません契約条件
| 賃料 | 予想金額:440,000〜460,000円程度 | 管理費 | 予想金額:0〜2,000円程度 |
| 礼金 | 非公開(アーカイブ) | 敷金 | 非公開(アーカイブ) |
| フリーレント | なし | 平米数 | 99.98㎡ |
| 間取り | 4LDK | 大型収納 | WIC+SIC |
| 契約期間 |
| 方角 | 南東 |
| 更新料 | 契約形態 | 普通賃貸借契約 | |
| 取引態様 | 媒介 | 内見状況 | 入居中 |
| 入居時期 | 入居中 | SOHO・事務所 | |
| ペット | 間取り内訳 | 洋:8.2 洋:7 洋:6.2 和:6 LD:12.5 K:4.4 | |
| キャンペーン情報・備考 | 本情報は賃料改定交渉の資料作成、収益物件の利回り試算、周辺エリアや最寄り駅の坪単価分析、次回募集開始時期の予測などにご活用いただけます。 | ||
※「どの不動産に頼めばいいのか分からない」「信頼できる営業マンの話を聞きたい」「一番親切な会社と契約したい」とお悩みの方におすすめなのが「高級賃貸バイブル」です。
高級賃貸バイブルは業界10年以上の熟練スタッフ群がお客様ファーストで対応します。
下記ボタンから、まずは無料でご相談下さい。
※内覧をご希望の際には、どうぞ物件のエントランス前にてお待ち合わせくださいませ。ご内覧後は、同じ場所でお別れとさせていただきます。お客様のご都合に合わせたスムーズなご案内を心がけておりますので、ご質問等がございましたら何なりとお申し付けください。 物件概要
| 物件名 |
| 築年月 |
|
|---|---|---|---|
| 所在地 | |||
| 交通 | |||
| 総戸数 |
| 総階数 |
|
| 構造 |
| ||
地図
物件までの道のりは、「拡大地図を表示」をクリックしてナビ機能をご利用ください。
部屋設備
















建物設備

TVモニターホン

エレベーター

オートロック

バイク置場

宅配ボックス

敷地内ゴミ置場

管理人

駐車場平置き

駐車場機械式

駐輪場
シティハウス池袋の現在募集中のお部屋
- シティハウス池袋 13階 67.7㎡ - 間取り: 3LDK+WIC - 賃料: 32万円
