
| 賃料 | 予想金額:130,000〜150,000円程度 | 管理費 | 予想金額:0〜2,000円程度 |
| 礼金/敷金 | 非公開(アーカイブ) | 平米数 | 40.18㎡ |
| 初期費用概算(参考) | 目安:531,500〜631,500 円 | みなし賃料(月額・参考) | 139,198〜159,198 円 |
| 備考 | 本ページは過去募集のアーカイブです。表示の金額は周辺相場・過去募集を踏まえた参考レンジであり、実際の契約金額・条件ではありません。 | ||
※上記みなし賃料(月額)は仲介手数料割引・無料&キャッシュバックを加味した高級賃貸バイブル限定の金額です。一般的なみなし賃料とは異なります。
【建物ページ】パークホームズ上野の詳細・最新空室はこちら▶▶選ばれる理由
仲介手数料無料・キャンペーン情報(毎月15名様限定)
〇仲介手数料割引キャンペーン
パークホームズ上野 2階 40.18㎡の口コミ・レビュー
パークホームズ上野 2階 40.18㎡。この言葉が耳に響くと、まるで運命を感じるかのように、あなたの新しい生活の幕が開くことでしょう。東京都台東区東上野の中心に佇むこの物件は、歴史と現代が交差する魅力的な街並みに包まれています。東の空が朝日を通して金色に染まるように、あなたの日常もまた、新たな光に満ちたものへと変わる予感がします。
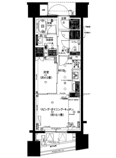
この一部屋は、洋室4帖とLDK12.1帖という洗練された1LDK…パークホームズ上野 2階 40.18㎡。この言葉が耳に響くと、まるで運命を感じるかのように、あなたの新しい生活の幕が開くことでしょう。東京都台東区東上野の中心に佇むこの物件は、歴史と現代が交差する魅力的な街並みに包まれています。東の空が朝日を通して金色に染まるように、あなたの日常もまた、新たな光に満ちたものへと変わる予感がします。
この一部屋は、洋室4帖とLDK12.1帖という洗練された1LDKの設計で、まるでアーティストが描いた美しいキャンバスのようです。足を踏み入れると、どこか温かみのある空気が漂い、ふんわりとした香りがあなたを包み込みます。窓の外から差し込む柔らかな光が、家具や装飾品に優しく触れ、その影を踊らせる様子は、まるで映画のワンシーンのよう。日々の暮らしがどれほど特別な瞬間であるかを教えてくれることでしょう。
パークホームズ上野の心地よさは、さまざまな感覚を刺激します。キッチンから漂う香ばしい料理の香り、リビングに広がるさまざまな色合いのインテリア、そして静かな時を刻むコーヒーの湯気。独創的なレイアウトは、あなたの想像力をかき立て、訪れる人々にとっても心に残る空間を創り出します。大切な友人と共に過ごす素敵なディナーや、ゆったりとした読書の時間が、ここでは特別なものとなることでしょう。
さらに、パークホームズ上野は利便性と快適さを兼ね備えています。東京メトロ銀座線の稲荷町駅から徒歩5分という立地は、あなたの生活をスムーズに彩ります。忙しい日常の中で、この場所が提供する安らぎは、まるで美しい楽曲のように心に響きます。エレベーターやオートロック、宅配ボックスといった設備も整っており、快適な暮らしをサポートします。
周辺の歴史や文化も、あなたの日常に彩りを加える要素です。上野恩賜公園やアメ横といったスポットは、まるで心の旅路を提供するように、日々の生活に歓びをもたらしてくれます。感動的なアート展や美味しいグルメ、歴史的な名所に思わず足を運びたくなることでしょう。
このパークホームズ上野は、単なる住まい以上の存在です。それはまるで、あなたを迎え入れる親しい友人のように、優しく語りかけてきます。ここでの日々が、どのように新たな可能性を創造するのか、あなたの心はわくわくとした期待に満ちていくことでしょう。心地よさと洗練された空間が織りなすこの特別な場所で、あなた自身を再発見する旅に出てみませんか。パークホームズ上野 2階 40.18㎡、それはまさにあなたの新しい物語の始まりです。
この一部屋は、洋室4帖とLDK12.1帖という洗練された1LDK…パークホームズ上野 2階 40.18㎡。この言葉が耳に響くと、まるで運命を感じるかのように、あなたの新しい生活の幕が開くことでしょう。東京都台東区東上野の中心に佇むこの物件は、歴史と現代が交差する魅力的な街並みに包まれています。東の空が朝日を通して金色に染まるように、あなたの日常もまた、新たな光に満ちたものへと変わる予感がします。
この一部屋は、洋室4帖とLDK12.1帖という洗練された1LDKの設計で、まるでアーティストが描いた美しいキャンバスのようです。足を踏み入れると、どこか温かみのある空気が漂い、ふんわりとした香りがあなたを包み込みます。窓の外から差し込む柔らかな光が、家具や装飾品に優しく触れ、その影を踊らせる様子は、まるで映画のワンシーンのよう。日々の暮らしがどれほど特別な瞬間であるかを教えてくれることでしょう。
パークホームズ上野の心地よさは、さまざまな感覚を刺激します。キッチンから漂う香ばしい料理の香り、リビングに広がるさまざまな色合いのインテリア、そして静かな時を刻むコーヒーの湯気。独創的なレイアウトは、あなたの想像力をかき立て、訪れる人々にとっても心に残る空間を創り出します。大切な友人と共に過ごす素敵なディナーや、ゆったりとした読書の時間が、ここでは特別なものとなることでしょう。
さらに、パークホームズ上野は利便性と快適さを兼ね備えています。東京メトロ銀座線の稲荷町駅から徒歩5分という立地は、あなたの生活をスムーズに彩ります。忙しい日常の中で、この場所が提供する安らぎは、まるで美しい楽曲のように心に響きます。エレベーターやオートロック、宅配ボックスといった設備も整っており、快適な暮らしをサポートします。
周辺の歴史や文化も、あなたの日常に彩りを加える要素です。上野恩賜公園やアメ横といったスポットは、まるで心の旅路を提供するように、日々の生活に歓びをもたらしてくれます。感動的なアート展や美味しいグルメ、歴史的な名所に思わず足を運びたくなることでしょう。
このパークホームズ上野は、単なる住まい以上の存在です。それはまるで、あなたを迎え入れる親しい友人のように、優しく語りかけてきます。ここでの日々が、どのように新たな可能性を創造するのか、あなたの心はわくわくとした期待に満ちていくことでしょう。心地よさと洗練された空間が織りなすこの特別な場所で、あなた自身を再発見する旅に出てみませんか。パークホームズ上野 2階 40.18㎡、それはまさにあなたの新しい物語の始まりです。
バイブルスコア
バイブルスコア: 30.6
平均的なスコアです。
※バイブルスコア詳細はこちら
バイブルスコアとは独自のAI機械学習技術を利用した物件評価システムで、物件のおすすめ度を示します。最高得点は100点で、スコアが高いほど、よりおすすめの物件と評価されています。
写真
現在写真が登録されていません契約条件
| 賃料 | 予想金額:130,000〜150,000円程度 | 管理費 | 予想金額:0〜2,000円程度 |
| 礼金 | 非公開(アーカイブ) | 敷金 | 非公開(アーカイブ) |
| フリーレント | なし | 平米数 | 40.18㎡ |
| 間取り | 1LDK | 大型収納 | |
| 契約期間 |
| 方角 | 東 |
| 更新料 | 契約形態 | 普通賃貸借契約 | |
| 取引態様 | 媒介 | 内見状況 | 入居中 |
| 入居時期 | 入居中 | SOHO・事務所 | |
| ペット | 間取り内訳 | 洋:4 LDK:12.1 | |
| キャンペーン情報・備考 | 本情報は賃料改定交渉の資料作成、収益物件の利回り試算、周辺エリアや最寄り駅の坪単価分析、次回募集開始時期の予測などにご活用いただけます。 | ||
※「どの不動産に頼めばいいのか分からない」「信頼できる営業マンの話を聞きたい」「一番親切な会社と契約したい」とお悩みの方におすすめなのが「高級賃貸バイブル」です。
高級賃貸バイブルは業界10年以上の熟練スタッフ群がお客様ファーストで対応します。
下記ボタンから、まずは無料でご相談下さい。
※内覧をご希望の際には、どうぞ物件のエントランス前にてお待ち合わせくださいませ。ご内覧後は、同じ場所でお別れとさせていただきます。お客様のご都合に合わせたスムーズなご案内を心がけておりますので、ご質問等がございましたら何なりとお申し付けください。 物件概要
| 物件名 |
| 築年月 |
|
|---|---|---|---|
| 所在地 | |||
| 交通 | |||
| 総戸数 |
| 総階数 |
|
| 構造 |
| ||
地図
物件までの道のりは、「拡大地図を表示」をクリックしてナビ機能をご利用ください。
部屋設備










建物設備

TVモニターホン

エレベーター

オートロック

宅配ボックス

敷地内ゴミ置場

管理人

駐輪場
パークホームズ上野の現在募集中のお部屋
- No rooms found for this property.
