
| 賃料 | 予想金額:203,000〜223,000円程度 | 管理費 | 予想金額:13,000〜17,000円程度 |
| 礼金/敷金 | 非公開(アーカイブ) | 平米数 | 60.08㎡ |
| 初期費用概算(参考) | 目安:596,500〜696,500 円 | みなし賃料(月額・参考) | 227,031〜247,031 円 |
| 備考 | 本ページは過去募集のアーカイブです。表示の金額は周辺相場・過去募集を踏まえた参考レンジであり、実際の契約金額・条件ではありません。 | ||
※上記みなし賃料(月額)は仲介手数料割引・無料&キャッシュバックを加味した高級賃貸バイブル限定の金額です。一般的なみなし賃料とは異なります。
【建物ページ】クリオ東新宿壱番館の詳細・最新空室はこちら▶▶選ばれる理由
仲介手数料無料・キャンペーン情報(毎月15名様限定)
〇仲介手数料割引キャンペーン
クリオ東新宿壱番館 503の口コミ・レビュー
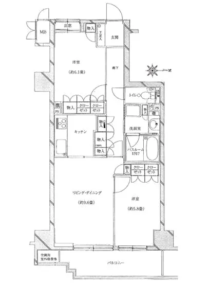
クリオ東新宿壱番館 503。これがあなたの新しい家です。503という数字はまるで特別な魔法のように、心の奥底にある期待と希望を呼び起こします。この素晴らしい2LDKの空間は、広々とした60.08㎡の専有面積を誇り、朝日が穏やかに差し込む東向きの部屋からは、まるで新しい一日の始まりを祝福するかのように、活気あるエネルギーが溢れています。
玄関を一歩踏み出せば、豊かな生活があなたを待っています。約9…クリオ東新宿壱番館 503。これがあなたの新しい家です。503という数字はまるで特別な魔法のように、心の奥底にある期待と希望を呼び起こします。この素晴らしい2LDKの空間は、広々とした60.08㎡の専有面積を誇り、朝日が穏やかに差し込む東向きの部屋からは、まるで新しい一日の始まりを祝福するかのように、活気あるエネルギーが溢れています。
玄関を一歩踏み出せば、豊かな生活があなたを待っています。約9.6帖のLDが、友人や家族との温かな絆を育む舞台となり、笑い声やおしゃべりが響き渡ります。それはまるで映画のワンシーンのように、心に残る瞬間を数多く生み出すことでしょう。大切な人のために、あつあつの料理をテーブルに並べる時、その香りが部屋中に広がり、皆の期待を高めることでしょう。
洋室6.1帖と5.8帖は、穏やかな安らぎを感じるための隠れ家です。自然光がさわやかなカーテン越しに流れ込み、まるで優しいハグを受けているかのような心地よさ。時には本を広げ、コーヒーの香りに包まれながら静かな時間を楽しむ、そんな優雅なひとときがここにはあります。ゆっくりと流れる時間の中で、自分自身を再発見する瞬間が待っています。
クリオ東新宿壱番館 503は、ただの住まいではなく、まるでアートのように生活を彩る空間です。光と影の中で、あなたの五感が目覚めるでしょう。エレガントなTVモニターホンが響き、オートロックの安心感が日々を守ります。宅配ボックスから届く贈り物に心躍らせ、駐車場や駐輪場の便利さに感謝を感じることでしょう。
さらに、この物件は便利な立地にも恵まれています。東京メトロ副都心線の東新宿駅まで徒歩1分。まるで街の中心に息づく芸術そのもののように、周囲には歴史と文化が息づいています。新宿の賑わいを楽しみながら、ふと立ち寄るカフェで香る焙煎コーヒーの香りや、通りがかりに見かける華麗なストリートアートに目を奪われることでしょう。
クリオ東新宿壱番館 503があなたを迎え入れる準備は整いました。その扉を開け、新しい物語の幕を開けるのは、あなた自身です。心地よい生活を手に入れ、あなたの人生を豊かにするこの場所で、日々の歓びをかみしめてください。新宿の中心で、あなたの夢を実現するチャンスが待っています。
玄関を一歩踏み出せば、豊かな生活があなたを待っています。約9…クリオ東新宿壱番館 503。これがあなたの新しい家です。503という数字はまるで特別な魔法のように、心の奥底にある期待と希望を呼び起こします。この素晴らしい2LDKの空間は、広々とした60.08㎡の専有面積を誇り、朝日が穏やかに差し込む東向きの部屋からは、まるで新しい一日の始まりを祝福するかのように、活気あるエネルギーが溢れています。
玄関を一歩踏み出せば、豊かな生活があなたを待っています。約9.6帖のLDが、友人や家族との温かな絆を育む舞台となり、笑い声やおしゃべりが響き渡ります。それはまるで映画のワンシーンのように、心に残る瞬間を数多く生み出すことでしょう。大切な人のために、あつあつの料理をテーブルに並べる時、その香りが部屋中に広がり、皆の期待を高めることでしょう。
洋室6.1帖と5.8帖は、穏やかな安らぎを感じるための隠れ家です。自然光がさわやかなカーテン越しに流れ込み、まるで優しいハグを受けているかのような心地よさ。時には本を広げ、コーヒーの香りに包まれながら静かな時間を楽しむ、そんな優雅なひとときがここにはあります。ゆっくりと流れる時間の中で、自分自身を再発見する瞬間が待っています。
クリオ東新宿壱番館 503は、ただの住まいではなく、まるでアートのように生活を彩る空間です。光と影の中で、あなたの五感が目覚めるでしょう。エレガントなTVモニターホンが響き、オートロックの安心感が日々を守ります。宅配ボックスから届く贈り物に心躍らせ、駐車場や駐輪場の便利さに感謝を感じることでしょう。
さらに、この物件は便利な立地にも恵まれています。東京メトロ副都心線の東新宿駅まで徒歩1分。まるで街の中心に息づく芸術そのもののように、周囲には歴史と文化が息づいています。新宿の賑わいを楽しみながら、ふと立ち寄るカフェで香る焙煎コーヒーの香りや、通りがかりに見かける華麗なストリートアートに目を奪われることでしょう。
クリオ東新宿壱番館 503があなたを迎え入れる準備は整いました。その扉を開け、新しい物語の幕を開けるのは、あなた自身です。心地よい生活を手に入れ、あなたの人生を豊かにするこの場所で、日々の歓びをかみしめてください。新宿の中心で、あなたの夢を実現するチャンスが待っています。
バイブルスコア
バイブルスコア: 22.8
平均的なスコアです。
※バイブルスコア詳細はこちら
バイブルスコアとは独自のAI機械学習技術を利用した物件評価システムで、物件のおすすめ度を示します。最高得点は100点で、スコアが高いほど、よりおすすめの物件と評価されています。
写真
契約条件
| 賃料 | 予想金額:203,000〜223,000円程度 | 管理費 | 予想金額:13,000〜17,000円程度 |
| 礼金 | 非公開(アーカイブ) | 敷金 | 非公開(アーカイブ) |
| フリーレント | なし | 平米数 | 60.08㎡ |
| 間取り | 2LDK | 大型収納 | |
| 契約期間 |
| 方角 | 東 |
| 更新料 | 契約形態 | 普通賃貸借契約 | |
| 取引態様 | 媒介 | 内見状況 | 入居中 |
| 入居時期 | 入居中 | SOHO・事務所 | |
| ペット | 間取り内訳 | 洋:6.1 洋:5.8 LD:9.6 | |
| キャンペーン情報・備考 | 本情報は賃料改定交渉の資料作成、収益物件の利回り試算、周辺エリアや最寄り駅の坪単価分析、次回募集開始時期の予測などにご活用いただけます。 | ||
※「どの不動産に頼めばいいのか分からない」「信頼できる営業マンの話を聞きたい」「一番親切な会社と契約したい」とお悩みの方におすすめなのが「高級賃貸バイブル」です。
高級賃貸バイブルは業界10年以上の熟練スタッフ群がお客様ファーストで対応します。
下記ボタンから、まずは無料でご相談下さい。
※内覧をご希望の際には、どうぞ物件のエントランス前にてお待ち合わせくださいませ。ご内覧後は、同じ場所でお別れとさせていただきます。お客様のご都合に合わせたスムーズなご案内を心がけておりますので、ご質問等がございましたら何なりとお申し付けください。 物件概要
| 物件名 |
| 築年月 |
|
|---|---|---|---|
| 所在地 | |||
| 交通 | |||
| 総戸数 |
| 総階数 |
|
| 構造 |
| ||
地図
物件までの道のりは、「拡大地図を表示」をクリックしてナビ機能をご利用ください。
部屋設備











建物設備

TVモニターホン

エレベーター

オートロック

宅配ボックス

敷地内ゴミ置場

管理人

駐車場平置き

駐車場機械式

駐輪場
クリオ東新宿壱番館の現在募集中のお部屋
- No rooms found for this property.






















