
| 賃料 | 予想金額:262,000〜282,000円程度 | 管理費 | 予想金額:16,000〜20,000円程度 |
| 礼金/敷金 | 非公開(アーカイブ) | 平米数 | 70.94㎡ |
| 初期費用概算(参考) | 目安:1,037,000〜1,137,000 円 | みなし賃料(月額・参考) | 296,979〜316,979 円 |
| 備考 | 本ページは過去募集のアーカイブです。表示の金額は周辺相場・過去募集を踏まえた参考レンジであり、実際の契約金額・条件ではありません。 | ||
※上記みなし賃料(月額)は仲介手数料割引・無料&キャッシュバックを加味した高級賃貸バイブル限定の金額です。一般的なみなし賃料とは異なります。
【建物ページ】クレヴィア錦糸公園の詳細・最新空室はこちら▶▶選ばれる理由
仲介手数料無料・キャンペーン情報(毎月15名様限定)
〇仲介手数料割引キャンペーン
クレヴィア錦糸公園 5階 70.94㎡の口コミ・レビュー
クレヴィア錦糸公園 5階 70.94㎡。この場所は、まるで都市の中心にある隠れ家のように、あなたを待ち構えています。南西に開けたその窓からは、心地よい日差しが華やかに舞い込み、まるで金色の絨毯を広げてくれるかのよう。初春の温かな風がふわりと漂い、周囲の桜がほころぶ瞬間を、一緒に見守ることができるでしょう。
クレヴィア錦糸公園は、ただのマンションではありません。あなたの物語が始まる舞台なのです。5…クレヴィア錦糸公園 5階 70.94㎡。この場所は、まるで都市の中心にある隠れ家のように、あなたを待ち構えています。南西に開けたその窓からは、心地よい日差しが華やかに舞い込み、まるで金色の絨毯を広げてくれるかのよう。初春の温かな風がふわりと漂い、周囲の桜がほころぶ瞬間を、一緒に見守ることができるでしょう。
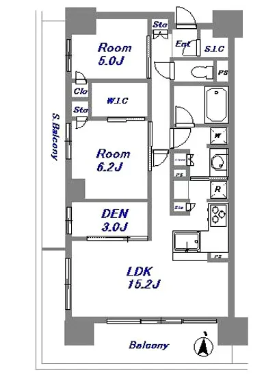
クレヴィア錦糸公園は、ただのマンションではありません。あなたの物語が始まる舞台なのです。5階という高みに身を置くことで、日常の喧騒を忘れ、天空を仰ぐ感覚を楽しむことができます。広さ70.94㎡のスペースは、あなたの創造力を自由に羽ばたかせるためのキャンバス。リビングダイニング(LDK 15.2帖)では、家族や友人と共に笑い声を響かせながら、特別な時間を過ごすことができます。柔らかな光に包まれたその空間で、思い出を紡ぎ、心温まる美味しい料理を囲む情景が目に浮かびます。
そして、クレヴィア錦糸公園の優雅さは、キッチンや寝室(洋室6.2帖、洋室5帖)においても変わることはありません。静寂に包まれたこれらの空間は、心の安らぎをもたらす安息の場。ここにいると、まるで何もかもが整った完璧なシンフォニーのように感じられることでしょう。サンシャインの下で交わすお茶の香り、バラの花の優美な甘さが漂い、あなたの生活をさらに充実させます。
クレヴィア錦糸公園は、たった4分の徒歩でアクセスすることができる東京メトロ半蔵門線 錦糸町駅に近接しています。忙しい日常を送る中で、この利便性はまるで列車の音楽のように、あなたの生活をリズミカルに彩ることでしょう。足を一歩踏み入れるたび、喧騒を超えて新たな発見が待っていることに気が付くはずです。
また、周辺には歴史が薫る場所が点在しています。昔ながらの街並みの合間から、現代のアートが溢れ出ているこの墨田区は、まるで時空を超えた文化の交差点。美術館やギャラリー巡りがあなたの週末の楽しみとなり、心を豊かに育んでくれることでしょう。
オートロックや宅配ボックスといった先進的な設備も整ったクレヴィア錦糸公園では、まるで美しい音楽の中で心地よく過ごすかのように、安全で快適な生活が約束されています。管理人の温かい見守りが安心感を添え、あなたの新生活の一歩をしっかりと支えてくれることでしょう。
クレヴィア錦糸公園 5階 70.94㎡で、あなたの新しい人生の物語を描いてみませんか?この特別な場所で、毎日を特別な映画のワンシーンのように過ごすことができるのです。どんな風景があなたを待ち構えているのか、一緒に歩んでいくその瞬間を楽しみにしています。
クレヴィア錦糸公園は、ただのマンションではありません。あなたの物語が始まる舞台なのです。5…クレヴィア錦糸公園 5階 70.94㎡。この場所は、まるで都市の中心にある隠れ家のように、あなたを待ち構えています。南西に開けたその窓からは、心地よい日差しが華やかに舞い込み、まるで金色の絨毯を広げてくれるかのよう。初春の温かな風がふわりと漂い、周囲の桜がほころぶ瞬間を、一緒に見守ることができるでしょう。
クレヴィア錦糸公園は、ただのマンションではありません。あなたの物語が始まる舞台なのです。5階という高みに身を置くことで、日常の喧騒を忘れ、天空を仰ぐ感覚を楽しむことができます。広さ70.94㎡のスペースは、あなたの創造力を自由に羽ばたかせるためのキャンバス。リビングダイニング(LDK 15.2帖)では、家族や友人と共に笑い声を響かせながら、特別な時間を過ごすことができます。柔らかな光に包まれたその空間で、思い出を紡ぎ、心温まる美味しい料理を囲む情景が目に浮かびます。
そして、クレヴィア錦糸公園の優雅さは、キッチンや寝室(洋室6.2帖、洋室5帖)においても変わることはありません。静寂に包まれたこれらの空間は、心の安らぎをもたらす安息の場。ここにいると、まるで何もかもが整った完璧なシンフォニーのように感じられることでしょう。サンシャインの下で交わすお茶の香り、バラの花の優美な甘さが漂い、あなたの生活をさらに充実させます。
クレヴィア錦糸公園は、たった4分の徒歩でアクセスすることができる東京メトロ半蔵門線 錦糸町駅に近接しています。忙しい日常を送る中で、この利便性はまるで列車の音楽のように、あなたの生活をリズミカルに彩ることでしょう。足を一歩踏み入れるたび、喧騒を超えて新たな発見が待っていることに気が付くはずです。
また、周辺には歴史が薫る場所が点在しています。昔ながらの街並みの合間から、現代のアートが溢れ出ているこの墨田区は、まるで時空を超えた文化の交差点。美術館やギャラリー巡りがあなたの週末の楽しみとなり、心を豊かに育んでくれることでしょう。
オートロックや宅配ボックスといった先進的な設備も整ったクレヴィア錦糸公園では、まるで美しい音楽の中で心地よく過ごすかのように、安全で快適な生活が約束されています。管理人の温かい見守りが安心感を添え、あなたの新生活の一歩をしっかりと支えてくれることでしょう。
クレヴィア錦糸公園 5階 70.94㎡で、あなたの新しい人生の物語を描いてみませんか?この特別な場所で、毎日を特別な映画のワンシーンのように過ごすことができるのです。どんな風景があなたを待ち構えているのか、一緒に歩んでいくその瞬間を楽しみにしています。
バイブルスコア
バイブルスコア: 50.7
条件のいい物件です、引っ越しが2か月以内の場合は仮申し込みを検討すべき物件です。
このお部屋は、現在ご入居中のため空室情報はございません。ただし、将来的に募集が開始される際、バイブルスコアにおいて非常に高い評価が期待されます。特にご興味をお持ちの方は、今のうちにブックマークやお気に入りに登録していただくと、募集開始のお知らせをすぐに受け取ることができます。是非ともご検討くださいませ。
※バイブルスコア詳細はこちら
バイブルスコアとは独自のAI機械学習技術を利用した物件評価システムで、物件のおすすめ度を示します。最高得点は100点で、スコアが高いほど、よりおすすめの物件と評価されています。
写真
契約条件
| 賃料 | 予想金額:262,000〜282,000円程度 | 管理費 | 予想金額:16,000〜20,000円程度 |
| 礼金 | 非公開(アーカイブ) | 敷金 | 非公開(アーカイブ) |
| フリーレント | なし | 平米数 | 70.94㎡ |
| 間取り | 2LDK | 大型収納 | WIC+SIC+S |
| 契約期間 | 2年 | 方角 | 南西 |
| 更新料 | 1ヶ月 | 契約形態 | 普通賃貸借契約 |
| 取引態様 | 媒介 | 内見状況 | 入居中 |
| 入居時期 | 入居中 | SOHO・事務所 | 不可 |
| ペット | 不可 | 間取り内訳 | 洋:6.2 洋:5 S:3 LDK:15.2 |
| キャンペーン情報・備考 | 本情報は賃料改定交渉の資料作成、収益物件の利回り試算、周辺エリアや最寄り駅の坪単価分析、次回募集開始時期の予測などにご活用いただけます。 | ||
※「どの不動産に頼めばいいのか分からない」「信頼できる営業マンの話を聞きたい」「一番親切な会社と契約したい」とお悩みの方におすすめなのが「高級賃貸バイブル」です。
高級賃貸バイブルは業界10年以上の熟練スタッフ群がお客様ファーストで対応します。
下記ボタンから、まずは無料でご相談下さい。
※内覧をご希望の際には、どうぞ物件のエントランス前にてお待ち合わせくださいませ。ご内覧後は、同じ場所でお別れとさせていただきます。お客様のご都合に合わせたスムーズなご案内を心がけておりますので、ご質問等がございましたら何なりとお申し付けください。 物件概要
| 物件名 |
| 築年月 |
|
|---|---|---|---|
| 所在地 | |||
| 交通 | |||
| 総戸数 |
| 総階数 |
|
| 構造 |
| ||
地図
物件までの道のりは、「拡大地図を表示」をクリックしてナビ機能をご利用ください。
部屋設備
















建物設備

TVモニターホン

エレベーター

オートロック

宅配ボックス

敷地内ゴミ置場

管理人

駐車場平置き

駐車場機械式

駐輪場
クレヴィア錦糸公園の現在募集中のお部屋
- No rooms found for this property.

























