
| 賃料 | 予想金額:153,000〜173,000円程度 | 管理費 | 予想金額:20,650〜24,650円程度 |
| 礼金/敷金 | 非公開(アーカイブ) | 平米数 | 37.71㎡ |
| 初期費用概算(参考) | 目安:808,975〜908,975 円 | みなし賃料(月額・参考) | 190,149〜210,149 円 |
| 備考 | 本ページは過去募集のアーカイブです。表示の金額は周辺相場・過去募集を踏まえた参考レンジであり、実際の契約金額・条件ではありません。 | ||
※上記みなし賃料(月額)は仲介手数料割引・無料&キャッシュバックを加味した高級賃貸バイブル限定の金額です。一般的なみなし賃料とは異なります。
【建物ページ】ルジェンテ池袋立教通りの詳細・最新空室はこちら▶▶選ばれる理由
仲介手数料無料・キャンペーン情報(毎月15名様限定)
〇仲介手数料割引キャンペーン
ルジェンテ池袋立教通り 7階 37.71㎡の口コミ・レビュー
ルジェンテ池袋立教通り 7階 37.71㎡は、まるで芸術作品のように、洗練された空間が広がる場所です。この物件は、あなたをただの住まいではなく、生活の舞台へと誘います。美しい北西の眺望が、日々の喧騒を忘れさせ、心に余裕をもたらすことでしょう。
この魅力的な物件に足を踏み入れた瞬間、まず目に飛び込んでくるのは、広々としたLDK10.7帖の空間です。柔らかな光が優しく差し込み、心地よい香りが漂うのは…ルジェンテ池袋立教通り 7階 37.71㎡は、まるで芸術作品のように、洗練された空間が広がる場所です。この物件は、あなたをただの住まいではなく、生活の舞台へと誘います。美しい北西の眺望が、日々の喧騒を忘れさせ、心に余裕をもたらすことでしょう。
この魅力的な物件に足を踏み入れた瞬間、まず目に飛び込んでくるのは、広々としたLDK10.7帖の空間です。柔らかな光が優しく差し込み、心地よい香りが漂うのは、居心地の良さの証。ふかふかのラグの上に座り、手にしたアロマキャンドルを灯せば、リラックスした瞬間が訪れます。このLDKは、友人を招いてのティーパーティーや、家族と過ごす温かい夜の食卓を彩る、あなたの生活の中心となることでしょう。
続いては、洋室4.3帖の魅力が待っています。窓の外の風景を眺めながら、心地よい柔らかさのベッドに身を預ければ、まるで絵画の中にいるかのような夢の中へと誘われます。朝の光がカーテン越しに射し込むと、あなたを優しく包み込む感覚が広がります。ここは、あなたの秘密の隠れ家であり、新たな創造力を引き出す場所。夢にふける夜、静寂に包まれる時間があなたの心を満たします。
そして、ルジェンテ池袋立教通り 7階 37.71㎡の便利さも忘れてはなりません。オートロックや宅配ボックス、管理人の存在は、心の平穏をもたらし、安心して生活を楽しむための裏方となります。バイク置場や駐輪場も完備されており、あなたのライフスタイルを全力でサポートします。生活の忙しさから解放された時間を、思い切り満喫できるのです。
周囲の風景もこの物件の魅力を深めます。東京都豊島区西池袋3-36-22は、歴史と現代が交錯する地域であり、常に新しい文化が生まれています。近くには、落ち着いたカフェやアートギャラリーが点在し、毎日の散歩はまるで美術館巡りのよう。各所で香ばしいコーヒーの香りに包まれ、目に映る色彩豊かなアートが、日々の疲れを癒してくれるでしょう。
ルジェンテ池袋立教通り 7階 37.71㎡は、ただの住処ではなく、あなたの人生のステージです。この場所での生活は、毎日が新しい冒険の始まり。美しい景色、心地よい空間、そして文化に囲まれた生活が、あなたを待っています。今この瞬間から、特別なストーリーを紡いでいきましょう。ここから、あなたの新しい生活が始まるのです。
この魅力的な物件に足を踏み入れた瞬間、まず目に飛び込んでくるのは、広々としたLDK10.7帖の空間です。柔らかな光が優しく差し込み、心地よい香りが漂うのは…ルジェンテ池袋立教通り 7階 37.71㎡は、まるで芸術作品のように、洗練された空間が広がる場所です。この物件は、あなたをただの住まいではなく、生活の舞台へと誘います。美しい北西の眺望が、日々の喧騒を忘れさせ、心に余裕をもたらすことでしょう。
この魅力的な物件に足を踏み入れた瞬間、まず目に飛び込んでくるのは、広々としたLDK10.7帖の空間です。柔らかな光が優しく差し込み、心地よい香りが漂うのは、居心地の良さの証。ふかふかのラグの上に座り、手にしたアロマキャンドルを灯せば、リラックスした瞬間が訪れます。このLDKは、友人を招いてのティーパーティーや、家族と過ごす温かい夜の食卓を彩る、あなたの生活の中心となることでしょう。
続いては、洋室4.3帖の魅力が待っています。窓の外の風景を眺めながら、心地よい柔らかさのベッドに身を預ければ、まるで絵画の中にいるかのような夢の中へと誘われます。朝の光がカーテン越しに射し込むと、あなたを優しく包み込む感覚が広がります。ここは、あなたの秘密の隠れ家であり、新たな創造力を引き出す場所。夢にふける夜、静寂に包まれる時間があなたの心を満たします。
そして、ルジェンテ池袋立教通り 7階 37.71㎡の便利さも忘れてはなりません。オートロックや宅配ボックス、管理人の存在は、心の平穏をもたらし、安心して生活を楽しむための裏方となります。バイク置場や駐輪場も完備されており、あなたのライフスタイルを全力でサポートします。生活の忙しさから解放された時間を、思い切り満喫できるのです。
周囲の風景もこの物件の魅力を深めます。東京都豊島区西池袋3-36-22は、歴史と現代が交錯する地域であり、常に新しい文化が生まれています。近くには、落ち着いたカフェやアートギャラリーが点在し、毎日の散歩はまるで美術館巡りのよう。各所で香ばしいコーヒーの香りに包まれ、目に映る色彩豊かなアートが、日々の疲れを癒してくれるでしょう。
ルジェンテ池袋立教通り 7階 37.71㎡は、ただの住処ではなく、あなたの人生のステージです。この場所での生活は、毎日が新しい冒険の始まり。美しい景色、心地よい空間、そして文化に囲まれた生活が、あなたを待っています。今この瞬間から、特別なストーリーを紡いでいきましょう。ここから、あなたの新しい生活が始まるのです。
バイブルスコア
バイブルスコア: 24.2
平均的なスコアです。
※バイブルスコア詳細はこちら
バイブルスコアとは独自のAI機械学習技術を利用した物件評価システムで、物件のおすすめ度を示します。最高得点は100点で、スコアが高いほど、よりおすすめの物件と評価されています。
写真
現在写真が登録されていません契約条件
| 賃料 | 予想金額:153,000〜173,000円程度 | 管理費 | 予想金額:20,650〜24,650円程度 |
| 礼金 | 非公開(アーカイブ) | 敷金 | 非公開(アーカイブ) |
| フリーレント | なし | 平米数 | 37.71㎡ |
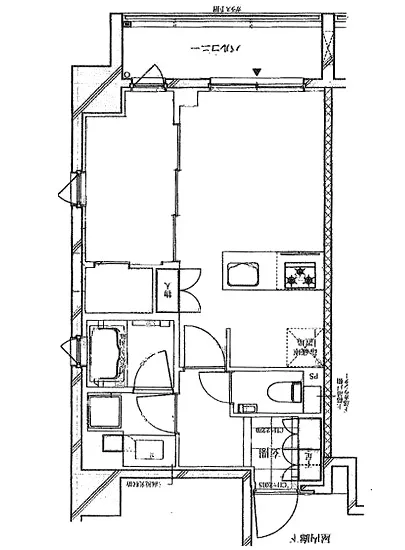
| 間取り | 1LDK | 大型収納 | WIC |
| 契約期間 |
| 方角 | 北西 |
| 更新料 | 契約形態 | 普通賃貸借契約 | |
| 取引態様 | 媒介 | 内見状況 | 入居中 |
| 入居時期 | 入居中 | SOHO・事務所 | |
| ペット | 間取り内訳 | 洋:4.3 LDK:10.7 | |
| キャンペーン情報・備考 | 本情報は賃料改定交渉の資料作成、収益物件の利回り試算、周辺エリアや最寄り駅の坪単価分析、次回募集開始時期の予測などにご活用いただけます。 | ||
※「どの不動産に頼めばいいのか分からない」「信頼できる営業マンの話を聞きたい」「一番親切な会社と契約したい」とお悩みの方におすすめなのが「高級賃貸バイブル」です。
高級賃貸バイブルは業界10年以上の熟練スタッフ群がお客様ファーストで対応します。
下記ボタンから、まずは無料でご相談下さい。
※内覧をご希望の際には、どうぞ物件のエントランス前にてお待ち合わせくださいませ。ご内覧後は、同じ場所でお別れとさせていただきます。お客様のご都合に合わせたスムーズなご案内を心がけておりますので、ご質問等がございましたら何なりとお申し付けください。 物件概要
| 物件名 |
| 築年月 |
|
|---|---|---|---|
| 所在地 | |||
| 交通 | |||
| 総戸数 |
| 総階数 |
|
| 構造 |
| ||
地図
物件までの道のりは、「拡大地図を表示」をクリックしてナビ機能をご利用ください。
部屋設備
















建物設備

TVモニターホン

エレベーター

オートロック

バイク置場

宅配ボックス

敷地内ゴミ置場

管理人

駐輪場
ルジェンテ池袋立教通りの現在募集中のお部屋
- No rooms found for this property.
