
| 賃料 | 予想金額:220,000〜240,000円程度 | 管理費 | 予想金額:8,000〜12,000円程度 |
| 礼金/敷金 | 非公開(アーカイブ) | 平米数 | 56.11㎡ |
| 初期費用概算(参考) | 目安:1,091,500〜1,191,500 円 | みなし賃料(月額・参考) | 248,990〜268,990 円 |
| 備考 | 本ページは過去募集のアーカイブです。表示の金額は周辺相場・過去募集を踏まえた参考レンジであり、実際の契約金額・条件ではありません。 | ||
※上記みなし賃料(月額)は仲介手数料割引・無料&キャッシュバックを加味した高級賃貸バイブル限定の金額です。一般的なみなし賃料とは異なります。
【建物ページ】オープンレジデンシア武蔵小山の詳細・最新空室はこちら▶▶選ばれる理由
仲介手数料無料・キャンペーン情報(毎月15名様限定)
〇仲介手数料割引キャンペーン
オープンレジデンシア武蔵小山 5階 56.11㎡の口コミ・レビュー
オープンレジデンシア武蔵小山 5階 56.11㎡、それはまるで都市の喧騒の中に静寂を見つけたかのような、特別な場所にございます。心躍る武蔵小山駅からわずか徒歩8分の距離に佇むこの高級賃貸物件は、南向きの窓から柔らかい日差しを浴びながら、あなたを穏やかに迎え入れます。ここでは、日常がまるで映画のワンシーンのように展開されていくことでしょう。
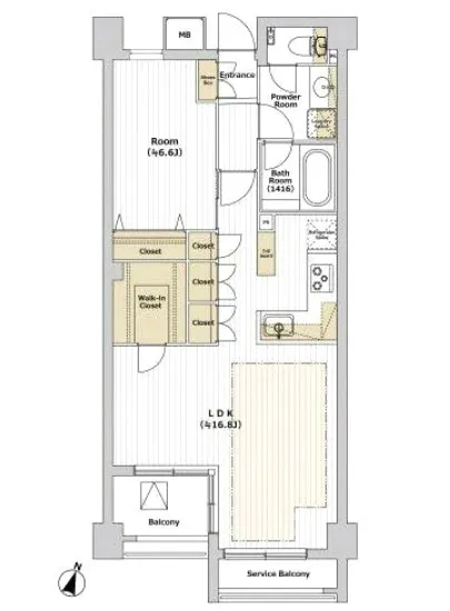
このお住まいの魅力は、心地よいLDK16.8帖と、安らぎ…オープンレジデンシア武蔵小山 5階 56.11㎡、それはまるで都市の喧騒の中に静寂を見つけたかのような、特別な場所にございます。心躍る武蔵小山駅からわずか徒歩8分の距離に佇むこの高級賃貸物件は、南向きの窓から柔らかい日差しを浴びながら、あなたを穏やかに迎え入れます。ここでは、日常がまるで映画のワンシーンのように展開されていくことでしょう。
このお住まいの魅力は、心地よいLDK16.8帖と、安らぎを提供する洋室6.6帖のバランスにあります。LDKでは、家族や友人とともに過ごす幸せなひとときを描いてみてください。美しい木の温もりが漂うフローリングを踏みしめると、思わず心が開放的になり、会話が弾む音が響きます。料理の香りが漂う中、食卓を囲む笑顔がその空間を彩り、人生の豊かさを感じる瞬間が訪れます。
さらに、オープンレジデンシア武蔵小山には、暮らしの利便性を高める設備が整っています。TVモニターホンで安心を感じ、オートロックでセキュリティが守られる中、宅配ボックスは忙しい日常でも快適さを提供します。エレベーターで軽やかに5階へと進むと、日常の忙しさから一歩離れた空間が待っています。ここでは、地上の喧騒を忘れ、静かに自分自身と向き合う時間が大切にされるのです。
この物件の周辺には、歴史や文化が息づいています。武蔵小山地域は、昔から続く伝統的な商店やカフェ、アートスペースが点在し、心を豊かにしてくれるでしょう。地元の人々と触れ合いながら、日々の生活が色鮮やかになることでしょう。周囲の景色を眺めると、緑豊かな公園や歴史的な建物が姿を見せ、都会の中でのオアシスを感じさせてくれます。
あなたがオープンレジデンシア武蔵小山に住むことで、新しい日常が生まれ、心と身体が喜ぶ瞬間が増えていくことでしょう。朝日が差し込む窓辺でのコーヒー、夕暮れ時の窓際で聴く鳥のさえずり、そして夜の帳が下りるときの静けさ。ここでの生活は、全ての感覚を刺激し、日常を特別なものに変えてくれます。
この物件は、ただの住まいではなく、あなたの人生の舞台です。その舞台で繰り広げられるストーリーは、あなた自身が描くもの。オープンレジデンシア武蔵小山 5階 56.11㎡で、そうした特別な瞬間を体験してみてはいかがでしょうか。あなたの人生に新たな色彩を加える、そんな魅力的な場所であることを、自信をもってお伝えいたします。
このお住まいの魅力は、心地よいLDK16.8帖と、安らぎ…オープンレジデンシア武蔵小山 5階 56.11㎡、それはまるで都市の喧騒の中に静寂を見つけたかのような、特別な場所にございます。心躍る武蔵小山駅からわずか徒歩8分の距離に佇むこの高級賃貸物件は、南向きの窓から柔らかい日差しを浴びながら、あなたを穏やかに迎え入れます。ここでは、日常がまるで映画のワンシーンのように展開されていくことでしょう。
このお住まいの魅力は、心地よいLDK16.8帖と、安らぎを提供する洋室6.6帖のバランスにあります。LDKでは、家族や友人とともに過ごす幸せなひとときを描いてみてください。美しい木の温もりが漂うフローリングを踏みしめると、思わず心が開放的になり、会話が弾む音が響きます。料理の香りが漂う中、食卓を囲む笑顔がその空間を彩り、人生の豊かさを感じる瞬間が訪れます。
さらに、オープンレジデンシア武蔵小山には、暮らしの利便性を高める設備が整っています。TVモニターホンで安心を感じ、オートロックでセキュリティが守られる中、宅配ボックスは忙しい日常でも快適さを提供します。エレベーターで軽やかに5階へと進むと、日常の忙しさから一歩離れた空間が待っています。ここでは、地上の喧騒を忘れ、静かに自分自身と向き合う時間が大切にされるのです。
この物件の周辺には、歴史や文化が息づいています。武蔵小山地域は、昔から続く伝統的な商店やカフェ、アートスペースが点在し、心を豊かにしてくれるでしょう。地元の人々と触れ合いながら、日々の生活が色鮮やかになることでしょう。周囲の景色を眺めると、緑豊かな公園や歴史的な建物が姿を見せ、都会の中でのオアシスを感じさせてくれます。
あなたがオープンレジデンシア武蔵小山に住むことで、新しい日常が生まれ、心と身体が喜ぶ瞬間が増えていくことでしょう。朝日が差し込む窓辺でのコーヒー、夕暮れ時の窓際で聴く鳥のさえずり、そして夜の帳が下りるときの静けさ。ここでの生活は、全ての感覚を刺激し、日常を特別なものに変えてくれます。
この物件は、ただの住まいではなく、あなたの人生の舞台です。その舞台で繰り広げられるストーリーは、あなた自身が描くもの。オープンレジデンシア武蔵小山 5階 56.11㎡で、そうした特別な瞬間を体験してみてはいかがでしょうか。あなたの人生に新たな色彩を加える、そんな魅力的な場所であることを、自信をもってお伝えいたします。
バイブルスコア
バイブルスコア: 21.1
平均的なスコアです。
※バイブルスコア詳細はこちら
バイブルスコアとは独自のAI機械学習技術を利用した物件評価システムで、物件のおすすめ度を示します。最高得点は100点で、スコアが高いほど、よりおすすめの物件と評価されています。
写真
現在写真が登録されていません契約条件
| 賃料 | 予想金額:220,000〜240,000円程度 | 管理費 | 予想金額:8,000〜12,000円程度 |
| 礼金 | 非公開(アーカイブ) | 敷金 | 非公開(アーカイブ) |
| フリーレント | なし | 平米数 | 56.11㎡ |
| 間取り | 1LDK | 大型収納 | WIC |
| 契約期間 |
| 方角 | 南 |
| 更新料 | 契約形態 | 普通賃貸借契約 | |
| 取引態様 | 媒介 | 内見状況 | 入居中 |
| 入居時期 | 入居中 | SOHO・事務所 | |
| ペット | 間取り内訳 | 洋:6.6 LDK:16.8 | |
| キャンペーン情報・備考 | 本情報は賃料改定交渉の資料作成、収益物件の利回り試算、周辺エリアや最寄り駅の坪単価分析、次回募集開始時期の予測などにご活用いただけます。 | ||
※「どの不動産に頼めばいいのか分からない」「信頼できる営業マンの話を聞きたい」「一番親切な会社と契約したい」とお悩みの方におすすめなのが「高級賃貸バイブル」です。
高級賃貸バイブルは業界10年以上の熟練スタッフ群がお客様ファーストで対応します。
下記ボタンから、まずは無料でご相談下さい。
※内覧をご希望の際には、どうぞ物件のエントランス前にてお待ち合わせくださいませ。ご内覧後は、同じ場所でお別れとさせていただきます。お客様のご都合に合わせたスムーズなご案内を心がけておりますので、ご質問等がございましたら何なりとお申し付けください。 物件概要
| 物件名 |
| 築年月 |
|
|---|---|---|---|
| 所在地 | |||
| 交通 | |||
| 総戸数 |
| 総階数 |
|
| 構造 |
| ||
地図
物件までの道のりは、「拡大地図を表示」をクリックしてナビ機能をご利用ください。
部屋設備















建物設備

TVモニターホン

エレベーター

オートロック

宅配ボックス

敷地内ゴミ置場

管理人

駐車場平置き

駐車場機械式

駐輪場
オープンレジデンシア武蔵小山の現在募集中のお部屋
- No rooms found for this property.
