
| 賃料 | 予想金額:135,000〜155,000円程度 | 管理費 | 予想金額:13,000〜17,000円程度 |
| 礼金/敷金 | 非公開(アーカイブ) | 平米数 | 25.34㎡ |
| 初期費用概算(参考) | 目安:194,600〜294,600 円 | みなし賃料(月額・参考) | 152,075〜172,075 円 |
| 備考 | 本ページは過去募集のアーカイブです。表示の金額は周辺相場・過去募集を踏まえた参考レンジであり、実際の契約金額・条件ではありません。 | ||
※上記みなし賃料(月額)は仲介手数料割引・無料&キャッシュバックを加味した高級賃貸バイブル限定の金額です。一般的なみなし賃料とは異なります。
【建物ページ】アーバネックス西新宿2の詳細・最新空室はこちら▶▶選ばれる理由
仲介手数料無料・キャンペーン情報(毎月15名様限定)
〇引っ越しお祝い金176900円プレゼント(キャッシュバック)
〇仲介手数料無料キャンペーン
アーバネックス西新宿2 1103の口コミ・レビュー
アーバネックス西新宿2 1103、それはまるで都会のオアシスのような存在です。東京都新宿区北新宿1-2-17に佇むこの物件は、南向きの窓から降り注ぐ日差しが心地よく、毎日の生活に彩りを添えます。あなたがこの場所に足を踏み入れると、まるで新たな物語の幕が上がるかのような感覚に包まれます。
アーバネックス西新宿2 1103は、たった25.34㎡という限られたスペースの中に、贅沢な夢が詰まっています。…アーバネックス西新宿2 1103、それはまるで都会のオアシスのような存在です。東京都新宿区北新宿1-2-17に佇むこの物件は、南向きの窓から降り注ぐ日差しが心地よく、毎日の生活に彩りを添えます。あなたがこの場所に足を踏み入れると、まるで新たな物語の幕が上がるかのような感覚に包まれます。
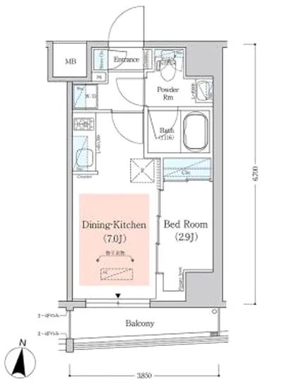
アーバネックス西新宿2 1103は、たった25.34㎡という限られたスペースの中に、贅沢な夢が詰まっています。間取りは1DK、洋室2.9帖とダイニングキッチン7帖の組み合わせは、シンプルでありながらも機能的。お料理の香りが立ち込めるダイニングキッチンで、友人と語らうひとときは、まるで映画のワンシーンのように心温まるものとなるでしょう。窓を開ければ、都会の喧騒の音が微かに聞こえるものの、まるで遠い国の物語の中にいるかのような静けさも感じます。
想像してみてください。朝日の中でコーヒーの香りに包まれ、窓から入る軽やかな風が頬を撫でる瞬間。アーバネックス西新宿2 1103のバルコニーに足を運ぶと、少しだけ身をかがめ、周囲の景色をじっくり楽しむことができます。やわらかな緑が点在する中に、都会のビルがそびえ立ち、まさに「自然と都市の調和」を感じることができるのです。
この物件には、TVモニターホンやオートロックといった設備が整っており、安心のセキュリティがございます。エレベーターでの移動も快適で、バイク置場や宅配ボックス、駐車場も完備されていますから、ストレスなく暮らせることでしょう。さらに、敷地内に設けられたゴミ置場や管理人の存在は、まるであなたの生活のサポーターのように感じられます。
このアーバネックス西新宿2 1103での生活は、歴史ある新宿の文化に溶け込むことができる特別な体験とも言えるでしょう。周囲には数多くの美術館やギャラリーが点在しており、アートに触れる機会も豊富です。夕暮れの散歩道では、芸術の香りが漂い、感性が刺激されることでしょう。新宿の賑わいを楽しみながらも、生活の拠点はこのアーバネックス西新宿2 1103で静寂を感じられる場所。まさに、あなたが求める理想の生活空間がここにあります。
アーバネックス西新宿2 1103での新たな生活は、日常の中に非日常を見出すことができる、そんな特別な舞台です。この場所で、あなたの新しい物語を紡いでみませんか?それは、自分だけの映画のように、格別な思い出を創造する旅の始まりです。
アーバネックス西新宿2 1103は、たった25.34㎡という限られたスペースの中に、贅沢な夢が詰まっています。…アーバネックス西新宿2 1103、それはまるで都会のオアシスのような存在です。東京都新宿区北新宿1-2-17に佇むこの物件は、南向きの窓から降り注ぐ日差しが心地よく、毎日の生活に彩りを添えます。あなたがこの場所に足を踏み入れると、まるで新たな物語の幕が上がるかのような感覚に包まれます。
アーバネックス西新宿2 1103は、たった25.34㎡という限られたスペースの中に、贅沢な夢が詰まっています。間取りは1DK、洋室2.9帖とダイニングキッチン7帖の組み合わせは、シンプルでありながらも機能的。お料理の香りが立ち込めるダイニングキッチンで、友人と語らうひとときは、まるで映画のワンシーンのように心温まるものとなるでしょう。窓を開ければ、都会の喧騒の音が微かに聞こえるものの、まるで遠い国の物語の中にいるかのような静けさも感じます。
想像してみてください。朝日の中でコーヒーの香りに包まれ、窓から入る軽やかな風が頬を撫でる瞬間。アーバネックス西新宿2 1103のバルコニーに足を運ぶと、少しだけ身をかがめ、周囲の景色をじっくり楽しむことができます。やわらかな緑が点在する中に、都会のビルがそびえ立ち、まさに「自然と都市の調和」を感じることができるのです。
この物件には、TVモニターホンやオートロックといった設備が整っており、安心のセキュリティがございます。エレベーターでの移動も快適で、バイク置場や宅配ボックス、駐車場も完備されていますから、ストレスなく暮らせることでしょう。さらに、敷地内に設けられたゴミ置場や管理人の存在は、まるであなたの生活のサポーターのように感じられます。
このアーバネックス西新宿2 1103での生活は、歴史ある新宿の文化に溶け込むことができる特別な体験とも言えるでしょう。周囲には数多くの美術館やギャラリーが点在しており、アートに触れる機会も豊富です。夕暮れの散歩道では、芸術の香りが漂い、感性が刺激されることでしょう。新宿の賑わいを楽しみながらも、生活の拠点はこのアーバネックス西新宿2 1103で静寂を感じられる場所。まさに、あなたが求める理想の生活空間がここにあります。
アーバネックス西新宿2 1103での新たな生活は、日常の中に非日常を見出すことができる、そんな特別な舞台です。この場所で、あなたの新しい物語を紡いでみませんか?それは、自分だけの映画のように、格別な思い出を創造する旅の始まりです。
バイブルスコア
バイブルスコア: 21.8
平均的なスコアです。
※バイブルスコア詳細はこちら
バイブルスコアとは独自のAI機械学習技術を利用した物件評価システムで、物件のおすすめ度を示します。最高得点は100点で、スコアが高いほど、よりおすすめの物件と評価されています。
写真
現在写真が登録されていません契約条件
| 賃料 | 予想金額:135,000〜155,000円程度 | 管理費 | 予想金額:13,000〜17,000円程度 |
| 礼金 | 非公開(アーカイブ) | 敷金 | 非公開(アーカイブ) |
| フリーレント | なし | 平米数 | 25.34㎡ |
| 間取り | 1DK | 大型収納 | |
| 契約期間 |
| 方角 | 南 |
| 更新料 | 契約形態 | 普通賃貸借契約 | |
| 取引態様 | 媒介 | 内見状況 | 入居中 |
| 入居時期 | 入居中 | SOHO・事務所 | |
| ペット | 間取り内訳 | 洋:2.9 DK:7 | |
| キャンペーン情報・備考 | 本情報は賃料改定交渉の資料作成、収益物件の利回り試算、周辺エリアや最寄り駅の坪単価分析、次回募集開始時期の予測などにご活用いただけます。 | ||
※「どの不動産に頼めばいいのか分からない」「信頼できる営業マンの話を聞きたい」「一番親切な会社と契約したい」とお悩みの方におすすめなのが「高級賃貸バイブル」です。
高級賃貸バイブルは業界10年以上の熟練スタッフ群がお客様ファーストで対応します。
下記ボタンから、まずは無料でご相談下さい。
※内覧をご希望の際には、どうぞ物件のエントランス前にてお待ち合わせくださいませ。ご内覧後は、同じ場所でお別れとさせていただきます。お客様のご都合に合わせたスムーズなご案内を心がけておりますので、ご質問等がございましたら何なりとお申し付けください。 物件概要
| 物件名 |
| 築年月 |
|
|---|---|---|---|
| 所在地 | |||
| 交通 | |||
| 総戸数 |
| 総階数 |
|
| 構造 |
| ||
地図
物件までの道のりは、「拡大地図を表示」をクリックしてナビ機能をご利用ください。
部屋設備















建物設備

TVモニターホン

エレベーター

オートロック

バイク置場

宅配ボックス

敷地内ゴミ置場

管理人

駐車場平置き

駐車場機械式

駐輪場
アーバネックス西新宿2の現在募集中のお部屋
- アーバネックス西新宿Ⅱ 305 - 間取り: 1DK - 賃料: 15.2万円
