
| 賃料 | 予想金額:115,000〜135,000円程度 | 管理費 | 予想金額:2,000〜6,000円程度 |
| 礼金/敷金 | 非公開(アーカイブ) | 平米数 | 30.73㎡ |
| 初期費用概算(参考) | 目安:485,000〜585,000 円 | みなし賃料(月額・参考) | 127,542〜147,542 円 |
| 備考 | 本ページは過去募集のアーカイブです。表示の金額は周辺相場・過去募集を踏まえた参考レンジであり、実際の契約金額・条件ではありません。 | ||
※上記みなし賃料(月額)は仲介手数料割引・無料&キャッシュバックを加味した高級賃貸バイブル限定の金額です。一般的なみなし賃料とは異なります。
【建物ページ】エミリブ池袋の詳細・最新空室はこちら▶▶選ばれる理由
仲介手数料無料・キャンペーン情報(毎月15名様限定)
〇仲介手数料割引キャンペーン
エミリブ池袋 302の口コミ・レビュー
エミリブ池袋 302。都会の喧騒から逃れ、南東に広がる日の出の光が優しく導いてくれる、まるで秘密の隠れ家のような存在。ここに足を踏み入れた瞬間、あなたの心は静けさと安らぎに包まれることでしょう。専有面積30.73㎡のこの物件は、ただの住まいではなく、日々の生活がまるで映画のワンシーンのように彩られる舞台なのです。
エミリブ池袋 302のドアを開けると、心地よい空気が迎え入れてくれます。ダイニング…エミリブ池袋 302。都会の喧騒から逃れ、南東に広がる日の出の光が優しく導いてくれる、まるで秘密の隠れ家のような存在。ここに足を踏み入れた瞬間、あなたの心は静けさと安らぎに包まれることでしょう。専有面積30.73㎡のこの物件は、ただの住まいではなく、日々の生活がまるで映画のワンシーンのように彩られる舞台なのです。
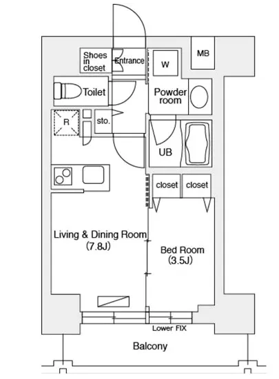
エミリブ池袋 302のドアを開けると、心地よい空気が迎え入れてくれます。ダイニングキッチン7.8帖は、温かみのある木目調の床が、柔らかな光を受けて輝いています。その隣に広がる洋室3.5帖は、まるで小さなアトリエのように心の自由を与えてくれます。日常の雑多な思考が、窓辺から差し込む光の中で踊り出すような感覚を味わえることでしょう。
この住まいの魅力は、ただのレイアウトにとどまりません。エミリブ池袋 302は、五感を刺激する特別な空間を提供します。新鮮な朝の香りが漂うキッチンでは、毎朝簡単なブランチを作りながら、窓の外で聞こえる都会の鼓動を感じることができます。エレベーターで上がる際のわずかなひと時さえも、心が躍る瞬間に変わります。オートロックの扉は、あなたが特別な場所に住んでいることを思い起こさせ、安心感を与えてくれるのです。
この屋敷の周囲には、歴史と文化に包まれた魅力的な街が広がっています。池袋の活気あふれるストリートは、たくさんのアートやエンターテイメントの源泉。休日には、近くのアートギャラリーを訪れ、心を豊かにする作品に触れたり、池袋のカフェで甘い香りに包まれながら、ほっと一息つくのも素敵です。
また、エミリブ池袋 302では、宅配ボックスや駐輪場、さらには平置きの駐車場も完備されており、ライフスタイルに合わせた便利さが満ちています。これらの設備は、日々の生活をより快適に、そして豊かにしてくれることでしょう。まるで、あなたの生活を支える小さな執事のような存在なのです。
エミリブ池袋 302での生活は、何気ない日常を特別なものに変えてくれるでしょう。朝が来るたびに、新たなインスピレーションを与えてくれるこの空間で、ぜひ心豊かな日々を紡いでください。あなたの物語は、ここから始まります。お待ちしています、エミリブ池袋 302で。
エミリブ池袋 302のドアを開けると、心地よい空気が迎え入れてくれます。ダイニング…エミリブ池袋 302。都会の喧騒から逃れ、南東に広がる日の出の光が優しく導いてくれる、まるで秘密の隠れ家のような存在。ここに足を踏み入れた瞬間、あなたの心は静けさと安らぎに包まれることでしょう。専有面積30.73㎡のこの物件は、ただの住まいではなく、日々の生活がまるで映画のワンシーンのように彩られる舞台なのです。
エミリブ池袋 302のドアを開けると、心地よい空気が迎え入れてくれます。ダイニングキッチン7.8帖は、温かみのある木目調の床が、柔らかな光を受けて輝いています。その隣に広がる洋室3.5帖は、まるで小さなアトリエのように心の自由を与えてくれます。日常の雑多な思考が、窓辺から差し込む光の中で踊り出すような感覚を味わえることでしょう。
この住まいの魅力は、ただのレイアウトにとどまりません。エミリブ池袋 302は、五感を刺激する特別な空間を提供します。新鮮な朝の香りが漂うキッチンでは、毎朝簡単なブランチを作りながら、窓の外で聞こえる都会の鼓動を感じることができます。エレベーターで上がる際のわずかなひと時さえも、心が躍る瞬間に変わります。オートロックの扉は、あなたが特別な場所に住んでいることを思い起こさせ、安心感を与えてくれるのです。
この屋敷の周囲には、歴史と文化に包まれた魅力的な街が広がっています。池袋の活気あふれるストリートは、たくさんのアートやエンターテイメントの源泉。休日には、近くのアートギャラリーを訪れ、心を豊かにする作品に触れたり、池袋のカフェで甘い香りに包まれながら、ほっと一息つくのも素敵です。
また、エミリブ池袋 302では、宅配ボックスや駐輪場、さらには平置きの駐車場も完備されており、ライフスタイルに合わせた便利さが満ちています。これらの設備は、日々の生活をより快適に、そして豊かにしてくれることでしょう。まるで、あなたの生活を支える小さな執事のような存在なのです。
エミリブ池袋 302での生活は、何気ない日常を特別なものに変えてくれるでしょう。朝が来るたびに、新たなインスピレーションを与えてくれるこの空間で、ぜひ心豊かな日々を紡いでください。あなたの物語は、ここから始まります。お待ちしています、エミリブ池袋 302で。
バイブルスコア
バイブルスコア: 42.1
条件のいい物件です、引っ越しが2か月以内の場合は仮申し込みを検討すべき物件です。
※バイブルスコア詳細はこちら
バイブルスコアとは独自のAI機械学習技術を利用した物件評価システムで、物件のおすすめ度を示します。最高得点は100点で、スコアが高いほど、よりおすすめの物件と評価されています。
写真
契約条件
| 賃料 | 予想金額:115,000〜135,000円程度 | 管理費 | 予想金額:2,000〜6,000円程度 |
| 礼金 | 非公開(アーカイブ) | 敷金 | 非公開(アーカイブ) |
| フリーレント | なし | 平米数 | 30.73㎡ |
| 間取り | 1DK | 大型収納 | |
| 契約期間 | 方角 | 南東 | |
| 更新料 | 契約形態 | 定期借家契約 | |
| 取引態様 | 媒介 | 内見状況 | 入居中 |
| 入居時期 | 入居中 | SOHO・事務所 | |
| ペット | 間取り内訳 | 洋:3.5 DK:7.8 | |
| キャンペーン情報・備考 | 本情報は賃料改定交渉の資料作成、収益物件の利回り試算、周辺エリアや最寄り駅の坪単価分析、次回募集開始時期の予測などにご活用いただけます。 | ||
※「どの不動産に頼めばいいのか分からない」「信頼できる営業マンの話を聞きたい」「一番親切な会社と契約したい」とお悩みの方におすすめなのが「高級賃貸バイブル」です。
高級賃貸バイブルは業界10年以上の熟練スタッフ群がお客様ファーストで対応します。
下記ボタンから、まずは無料でご相談下さい。
※内覧をご希望の際には、どうぞ物件のエントランス前にてお待ち合わせくださいませ。ご内覧後は、同じ場所でお別れとさせていただきます。お客様のご都合に合わせたスムーズなご案内を心がけておりますので、ご質問等がございましたら何なりとお申し付けください。 物件概要
| 物件名 |
| 築年月 |
|
|---|---|---|---|
| 所在地 | |||
| 交通 | |||
| 総戸数 |
| 総階数 |
|
| 構造 |
| ||
地図
物件までの道のりは、「拡大地図を表示」をクリックしてナビ機能をご利用ください。
部屋設備















建物設備

TVモニターホン

エレベーター

オートロック

バイク置場

宅配ボックス

敷地内ゴミ置場

管理人

駐車場平置き

駐車場機械式

駐輪場
エミリブ池袋の現在募集中のお部屋
- エミリブ池袋 1003 - 間取り: 1LDK+SIC - 賃料: 20.8万円
























