
| 賃料 | 予想金額:114,000〜134,000円程度 | 管理費 | 予想金額:2,000〜6,000円程度 |
| 礼金/敷金 | 非公開(アーカイブ) | 平米数 | 30.73㎡ |
| 初期費用概算(参考) | 目安:481,500〜581,500 円 | みなし賃料(月額・参考) | 126,490〜146,490 円 |
| 備考 | 本ページは過去募集のアーカイブです。表示の金額は周辺相場・過去募集を踏まえた参考レンジであり、実際の契約金額・条件ではありません。 | ||
※上記みなし賃料(月額)は仲介手数料割引・無料&キャッシュバックを加味した高級賃貸バイブル限定の金額です。一般的なみなし賃料とは異なります。
【建物ページ】エミリブ池袋の詳細・最新空室はこちら▶▶選ばれる理由
仲介手数料無料・キャンペーン情報(毎月15名様限定)
〇仲介手数料割引キャンペーン
エミリブ池袋 201の口コミ・レビュー
エミリブ池袋 201、都会の喧騒をやわらげる静謐なオアシスでございます。この素晴らしい住まいは、東京都豊島区南池袋1-15-16という立地にあり、南東の温かな日差しがふんわりと降り注ぎます。最寄りの東京メトロ丸ノ内線池袋駅までは徒歩3分というアクセスの良さも魅力の一つです。
エミリブ池袋 201は、まるで心の友のように、あなたを迎え入れる準備が整っています。自宅に帰る度、その優雅な佇まいに心を癒…エミリブ池袋 201、都会の喧騒をやわらげる静謐なオアシスでございます。この素晴らしい住まいは、東京都豊島区南池袋1-15-16という立地にあり、南東の温かな日差しがふんわりと降り注ぎます。最寄りの東京メトロ丸ノ内線池袋駅までは徒歩3分というアクセスの良さも魅力の一つです。
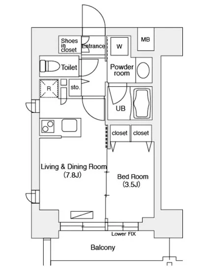
エミリブ池袋 201は、まるで心の友のように、あなたを迎え入れる準備が整っています。自宅に帰る度、その優雅な佇まいに心を癒されることでしょう。専有面積は30.73㎡、1DKの間取りは、まさにキューピッドの矢のように、心の奥深くに響く贅沢さをもたらします。洋室は3.5帖、ダイニングキッチンは7.8帖というコンパクトさが、逆に居心地の良さを醸し出し、あなたの生活を温かく包み込んでくれます。
エミリブ池袋 201では、日々の暮らしがまるで映画の一場面のように演出されます。朝、カーテンを開けると、優しい陽光が部屋を満たし、フレッシュな空気が心地よく身体を包みます。台所では、コーヒーが煎れられるサクッとした音が響き、香ばしい香りが広がります。食卓を囲む際には、あなたの笑顔と家族や友人の笑い声が、まるでリズムを刻む音楽のように響き渡ることでしょう。
このエミリブ池袋 201の特徴の一つに、生活を支えるための設備が整っていることが挙げられます。TVモニターホンやオートロック、宅配ボックスなど、現代のライフスタイルに欠かせない便利さを提供しつつも、バイク置場や駐輪場があることで、アクティブなあなたのセカンドライフもサポートします。また、管理人の温かい心遣いが、まるで優雅なホテルのような雰囲気を演出し、日常のストレスを軽減させてくれます。
周辺には、豊かな文化と歴史が息づいています。池袋はいわば、東京のハートビートとも言える街。アートの香りを感じる場所が数多く点在し、美術館や劇場があなたを待っています。エミリブ池袋 201に住むことで、アートを身近に感じながら、日常の中に豊かな感性を取り入れることができるでしょう。
エミリブ池袋 201は、ただの住まいではなく、あなたの人生そのものを彩るキャンバスです。この場所での生活は、毎日が特別な瞬間に満ち溢れています。目を閉じれば、あなたがここで過ごす様々な瞬間が浮かび上がることでしょう。自宅での安らぎ、友との楽しいひととき、そして新たな出会いを求めて旅に出ることも、すべてがこのエミリブ池袋 201がもたらす贈り物です。
魅力的な生活空間があなたを待っています。さあ、エミリブ池袋 201で新たな物語を始めてみてはいかがでしょうか。あなたの新しい毎日が、ここから始まります。
エミリブ池袋 201は、まるで心の友のように、あなたを迎え入れる準備が整っています。自宅に帰る度、その優雅な佇まいに心を癒…エミリブ池袋 201、都会の喧騒をやわらげる静謐なオアシスでございます。この素晴らしい住まいは、東京都豊島区南池袋1-15-16という立地にあり、南東の温かな日差しがふんわりと降り注ぎます。最寄りの東京メトロ丸ノ内線池袋駅までは徒歩3分というアクセスの良さも魅力の一つです。
エミリブ池袋 201は、まるで心の友のように、あなたを迎え入れる準備が整っています。自宅に帰る度、その優雅な佇まいに心を癒されることでしょう。専有面積は30.73㎡、1DKの間取りは、まさにキューピッドの矢のように、心の奥深くに響く贅沢さをもたらします。洋室は3.5帖、ダイニングキッチンは7.8帖というコンパクトさが、逆に居心地の良さを醸し出し、あなたの生活を温かく包み込んでくれます。
エミリブ池袋 201では、日々の暮らしがまるで映画の一場面のように演出されます。朝、カーテンを開けると、優しい陽光が部屋を満たし、フレッシュな空気が心地よく身体を包みます。台所では、コーヒーが煎れられるサクッとした音が響き、香ばしい香りが広がります。食卓を囲む際には、あなたの笑顔と家族や友人の笑い声が、まるでリズムを刻む音楽のように響き渡ることでしょう。
このエミリブ池袋 201の特徴の一つに、生活を支えるための設備が整っていることが挙げられます。TVモニターホンやオートロック、宅配ボックスなど、現代のライフスタイルに欠かせない便利さを提供しつつも、バイク置場や駐輪場があることで、アクティブなあなたのセカンドライフもサポートします。また、管理人の温かい心遣いが、まるで優雅なホテルのような雰囲気を演出し、日常のストレスを軽減させてくれます。
周辺には、豊かな文化と歴史が息づいています。池袋はいわば、東京のハートビートとも言える街。アートの香りを感じる場所が数多く点在し、美術館や劇場があなたを待っています。エミリブ池袋 201に住むことで、アートを身近に感じながら、日常の中に豊かな感性を取り入れることができるでしょう。
エミリブ池袋 201は、ただの住まいではなく、あなたの人生そのものを彩るキャンバスです。この場所での生活は、毎日が特別な瞬間に満ち溢れています。目を閉じれば、あなたがここで過ごす様々な瞬間が浮かび上がることでしょう。自宅での安らぎ、友との楽しいひととき、そして新たな出会いを求めて旅に出ることも、すべてがこのエミリブ池袋 201がもたらす贈り物です。
魅力的な生活空間があなたを待っています。さあ、エミリブ池袋 201で新たな物語を始めてみてはいかがでしょうか。あなたの新しい毎日が、ここから始まります。
バイブルスコア
バイブルスコア: 43.5
条件のいい物件です、引っ越しが2か月以内の場合は仮申し込みを検討すべき物件です。
※バイブルスコア詳細はこちら
バイブルスコアとは独自のAI機械学習技術を利用した物件評価システムで、物件のおすすめ度を示します。最高得点は100点で、スコアが高いほど、よりおすすめの物件と評価されています。
写真
契約条件
| 賃料 | 予想金額:114,000〜134,000円程度 | 管理費 | 予想金額:2,000〜6,000円程度 |
| 礼金 | 非公開(アーカイブ) | 敷金 | 非公開(アーカイブ) |
| フリーレント | なし | 平米数 | 30.73㎡ |
| 間取り | 1DK | 大型収納 | |
| 契約期間 | 方角 | 南東 | |
| 更新料 | 契約形態 | 定期借家契約 | |
| 取引態様 | 媒介 | 内見状況 | 入居中 |
| 入居時期 | 入居中 | SOHO・事務所 | |
| ペット | 間取り内訳 | 洋:3.5 DK:7.8 | |
| キャンペーン情報・備考 | 本情報は賃料改定交渉の資料作成、収益物件の利回り試算、周辺エリアや最寄り駅の坪単価分析、次回募集開始時期の予測などにご活用いただけます。 | ||
※「どの不動産に頼めばいいのか分からない」「信頼できる営業マンの話を聞きたい」「一番親切な会社と契約したい」とお悩みの方におすすめなのが「高級賃貸バイブル」です。
高級賃貸バイブルは業界10年以上の熟練スタッフ群がお客様ファーストで対応します。
下記ボタンから、まずは無料でご相談下さい。
※内覧をご希望の際には、どうぞ物件のエントランス前にてお待ち合わせくださいませ。ご内覧後は、同じ場所でお別れとさせていただきます。お客様のご都合に合わせたスムーズなご案内を心がけておりますので、ご質問等がございましたら何なりとお申し付けください。 物件概要
| 物件名 |
| 築年月 |
|
|---|---|---|---|
| 所在地 | |||
| 交通 | |||
| 総戸数 |
| 総階数 |
|
| 構造 |
| ||
地図
物件までの道のりは、「拡大地図を表示」をクリックしてナビ機能をご利用ください。
部屋設備
















建物設備

TVモニターホン

エレベーター

オートロック

バイク置場

宅配ボックス

敷地内ゴミ置場

管理人

駐車場平置き

駐車場機械式

駐輪場
エミリブ池袋の現在募集中のお部屋
- エミリブ池袋 1003 - 間取り: 1LDK+SIC - 賃料: 20.8万円
























