
| 賃料 | 予想金額:235,000〜255,000円程度 | 管理費 | 予想金額:13,000〜17,000円程度 |
| 礼金/敷金 | 非公開(アーカイブ) | 平米数 | 51.81㎡ |
| 初期費用概算(参考) | 目安:938,000〜1,038,000 円 | みなし賃料(月額・参考) | 265,479〜285,479 円 |
| 備考 | 本ページは過去募集のアーカイブです。表示の金額は周辺相場・過去募集を踏まえた参考レンジであり、実際の契約金額・条件ではありません。 | ||
※上記みなし賃料(月額)は仲介手数料割引・無料&キャッシュバックを加味した高級賃貸バイブル限定の金額です。一般的なみなし賃料とは異なります。
【建物ページ】アドニスの詳細・最新空室はこちら▶▶選ばれる理由
仲介手数料無料・キャンペーン情報(毎月15名様限定)
〇仲介手数料割引キャンペーン
アドニス 8002の口コミ・レビュー
アドニス 8002は、あなたを特別な世界へと誘います。この高級賃貸物件は、東京都文京区本郷2-30-15という静かな街の中心に位置し、まるで時を超えた美しさを持つアート作品のようです。こちらの物件からは、柔らかな西日が差し込み、心地よい光が部屋を包み込みます。あなたがこの「アドニス 8002」に足を踏み入れるその瞬間、高級感と洗練された空間に心が高鳴ることでしょう。
アドニス 8002は、51.…アドニス 8002は、あなたを特別な世界へと誘います。この高級賃貸物件は、東京都文京区本郷2-30-15という静かな街の中心に位置し、まるで時を超えた美しさを持つアート作品のようです。こちらの物件からは、柔らかな西日が差し込み、心地よい光が部屋を包み込みます。あなたがこの「アドニス 8002」に足を踏み入れるその瞬間、高級感と洗練された空間に心が高鳴ることでしょう。
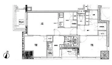
アドニス 8002は、51.81㎡の広さに、LDK9.4帖、洋室5.7帖、洋室4.6帖という心地よい間取りを持ち、まるで生活の舞台が広がるようです。ここでは、日常生活が映画の一場面として演じられるかのように感じられます。朝の光が優しくカーテンを撫でる中、あなたは優雅な朝食をテーブルに並べ、ふわりと漂う香ばしいトーストの香りが、心を満たしてくれることでしょう。
「アドニス 8002」に住むことは、ただの暮らしではなく、文化と歴史が息づく文京区での新たな物語の始まりです。徒歩3分の距離には東京メトロ丸ノ内線 本郷三丁目駅があり、都心の喧騒から離れた静寂の中で、あなたは自分のペースで生きることができます。周囲には、歴史を感じる美しい建物と文化施設が点在し、まるで時空を超えた旅をするかのように、あなたの心を豊かにしてくれます。
この物件では、贅沢な生活に欠かせない設備も充実しています。オートロックやTVモニターホンが備わり、安全で安心な暮らしが手に入ります。また、宅配ボックスにより、忙しい日々の中でさえ、快適さと便利さを両立させることができます。アドニス 8002の敷地内には、管理人が常駐し、あなたの生活を手厚くサポートいたします。駐輪場も完備されており、自由に街を散策するための手段も整っています。
日々の生活が営まれる中、アドニス 8002はあなたの感覚を刺激し、心の奥底にある情熱を呼び覚まします。ここでの生活は、柔らかなカーテン越しに夕陽が差し込む瞬間や、静寂の中に響く風の音、そして友人との楽しい語らいが彩ります。毎日が喜びに満ちた映画の一シーンとして、あなたの心に刻まれていくでしょう。
アドニス 8002は、まさに生活の芸術作品、その存在自体が贅沢な体験を提供する場所です。あなたの新たな生活はここから始まります。歴史と文化に育まれたこの地で、アドニス 8002と共に、心に残る毎日を描いていきましょう。どの瞬間も、特別な物語として生きていける、そんな魅力溢れる空間が待っているのです。あなたの帰る場所として、アドニス 8002はいつもそこにあります。
アドニス 8002は、51.…アドニス 8002は、あなたを特別な世界へと誘います。この高級賃貸物件は、東京都文京区本郷2-30-15という静かな街の中心に位置し、まるで時を超えた美しさを持つアート作品のようです。こちらの物件からは、柔らかな西日が差し込み、心地よい光が部屋を包み込みます。あなたがこの「アドニス 8002」に足を踏み入れるその瞬間、高級感と洗練された空間に心が高鳴ることでしょう。
アドニス 8002は、51.81㎡の広さに、LDK9.4帖、洋室5.7帖、洋室4.6帖という心地よい間取りを持ち、まるで生活の舞台が広がるようです。ここでは、日常生活が映画の一場面として演じられるかのように感じられます。朝の光が優しくカーテンを撫でる中、あなたは優雅な朝食をテーブルに並べ、ふわりと漂う香ばしいトーストの香りが、心を満たしてくれることでしょう。
「アドニス 8002」に住むことは、ただの暮らしではなく、文化と歴史が息づく文京区での新たな物語の始まりです。徒歩3分の距離には東京メトロ丸ノ内線 本郷三丁目駅があり、都心の喧騒から離れた静寂の中で、あなたは自分のペースで生きることができます。周囲には、歴史を感じる美しい建物と文化施設が点在し、まるで時空を超えた旅をするかのように、あなたの心を豊かにしてくれます。
この物件では、贅沢な生活に欠かせない設備も充実しています。オートロックやTVモニターホンが備わり、安全で安心な暮らしが手に入ります。また、宅配ボックスにより、忙しい日々の中でさえ、快適さと便利さを両立させることができます。アドニス 8002の敷地内には、管理人が常駐し、あなたの生活を手厚くサポートいたします。駐輪場も完備されており、自由に街を散策するための手段も整っています。
日々の生活が営まれる中、アドニス 8002はあなたの感覚を刺激し、心の奥底にある情熱を呼び覚まします。ここでの生活は、柔らかなカーテン越しに夕陽が差し込む瞬間や、静寂の中に響く風の音、そして友人との楽しい語らいが彩ります。毎日が喜びに満ちた映画の一シーンとして、あなたの心に刻まれていくでしょう。
アドニス 8002は、まさに生活の芸術作品、その存在自体が贅沢な体験を提供する場所です。あなたの新たな生活はここから始まります。歴史と文化に育まれたこの地で、アドニス 8002と共に、心に残る毎日を描いていきましょう。どの瞬間も、特別な物語として生きていける、そんな魅力溢れる空間が待っているのです。あなたの帰る場所として、アドニス 8002はいつもそこにあります。
バイブルスコア
バイブルスコア: 43.9
条件のいい物件です、引っ越しが2か月以内の場合は仮申し込みを検討すべき物件です。
※バイブルスコア詳細はこちら
バイブルスコアとは独自のAI機械学習技術を利用した物件評価システムで、物件のおすすめ度を示します。最高得点は100点で、スコアが高いほど、よりおすすめの物件と評価されています。
写真
契約条件
| 賃料 | 予想金額:235,000〜255,000円程度 | 管理費 | 予想金額:13,000〜17,000円程度 |
| 礼金 | 非公開(アーカイブ) | 敷金 | 非公開(アーカイブ) |
| フリーレント | なし | 平米数 | 51.81㎡ |
| 間取り | 2LDK | 大型収納 | なし |
| 契約期間 | 2年 | 方角 | 西 |
| 更新料 | 1ヶ月 | 契約形態 | 普通賃貸借契約 |
| 取引態様 | 媒介 | 内見状況 | 入居中 |
| 入居時期 | 入居中 | SOHO・事務所 | 不可 |
| ペット | 不可 | 間取り内訳 | LDK9.4帖 洋室5.7帖 洋室4.6帖 |
| キャンペーン情報・備考 | 本情報は賃料改定交渉の資料作成、収益物件の利回り試算、周辺エリアや最寄り駅の坪単価分析、次回募集開始時期の予測などにご活用いただけます。 | ||
※「どの不動産に頼めばいいのか分からない」「信頼できる営業マンの話を聞きたい」「一番親切な会社と契約したい」とお悩みの方におすすめなのが「高級賃貸バイブル」です。
高級賃貸バイブルは業界10年以上の熟練スタッフ群がお客様ファーストで対応します。
下記ボタンから、まずは無料でご相談下さい。
※内覧をご希望の際には、どうぞ物件のエントランス前にてお待ち合わせくださいませ。ご内覧後は、同じ場所でお別れとさせていただきます。お客様のご都合に合わせたスムーズなご案内を心がけておりますので、ご質問等がございましたら何なりとお申し付けください。 物件概要
| 物件名 |
| 築年月 |
|
|---|---|---|---|
| 所在地 | |||
| 交通 | |||
| 総戸数 |
| 総階数 |
|
| 構造 |
| ||
地図
物件までの道のりは、「拡大地図を表示」をクリックしてナビ機能をご利用ください。
部屋設備











建物設備

TVモニターホン

オートロック

宅配ボックス

敷地内ゴミ置場

管理人

駐輪場
アドニスの現在募集中のお部屋
- No rooms found for this property.
















