
| 賃料 | 予想金額:250,000〜270,000円程度 | 管理費 | 予想金額:6,000〜10,000円程度 |
| 礼金/敷金 | 非公開(アーカイブ) | 平米数 | 62.66㎡ |
| 初期費用概算(参考) | 目安:963,500〜1,063,500 円 | みなし賃料(月額・参考) | 273,698〜293,698 円 |
| 備考 | 本ページは過去募集のアーカイブです。表示の金額は周辺相場・過去募集を踏まえた参考レンジであり、実際の契約金額・条件ではありません。 | ||
※上記みなし賃料(月額)は仲介手数料割引・無料&キャッシュバックを加味した高級賃貸バイブル限定の金額です。一般的なみなし賃料とは異なります。
【建物ページ】ディアナコート小石川竹早の詳細・最新空室はこちら▶▶選ばれる理由
仲介手数料無料・キャンペーン情報(毎月15名様限定)
〇仲介手数料割引キャンペーン
ディアナコート小石川竹早 3階 62.66㎡の口コミ・レビュー
ディアナコート小石川竹早 3階 62.66㎡は、まるで未だ見ぬ夢の世界への扉を静かに開くかのような特別な空間です。東京都文京区小石川の街に佇むこの物件は、北西の風を優雅に受け止めながら、穏やかな日常にささやかな贅沢を添えます。一歩中に足を踏み入れた瞬間、その空間が持つ独特の雰囲気に心を奪われることでしょう。約62.66㎡の広々とした空間は、まるで贈られたキャンバスのように、日々の生活に美しいストー…ディアナコート小石川竹早 3階 62.66㎡は、まるで未だ見ぬ夢の世界への扉を静かに開くかのような特別な空間です。東京都文京区小石川の街に佇むこの物件は、北西の風を優雅に受け止めながら、穏やかな日常にささやかな贅沢を添えます。一歩中に足を踏み入れた瞬間、その空間が持つ独特の雰囲気に心を奪われることでしょう。約62.66㎡の広々とした空間は、まるで贈られたキャンバスのように、日々の生活に美しいストーリーを描くことができるのです。
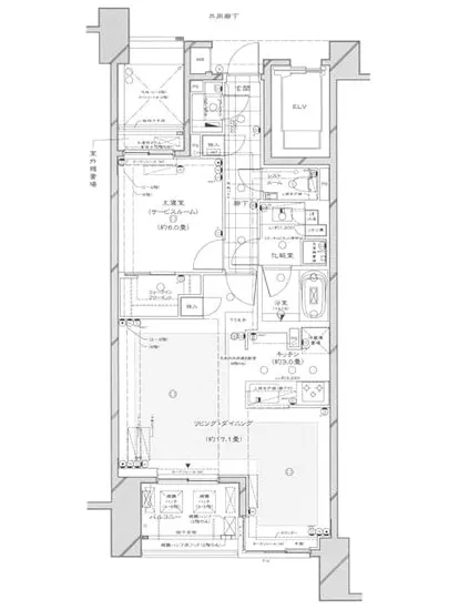
どこか優雅なリズムで流れる時間の中、リビングダイニングは17.1帖という広さを誇ります。大きな窓から差し込む柔らかな光が、まるで朝のヴァイオリンの音色のように心地よく響いてきます。新鮮な風が吹き込み、春の花々の香りが漂ってくる瞬間、あなたの日常が特別なものに変わります。また、キッチンは3帖とコンパクトながらも、料理の楽しさを引き立てる素晴らしい工夫が施されており、まるで特別なレシピを持つ魔法の部屋のようです。大切な人と共に、心温まる料理を囲むひとときは、まるで映画のシーンのような幸せな瞬間を生み出します。
ディアナコート小石川竹早には、住む方の安心と快適さを考えた設備が整っています。エレベーターやオートロック、宅配ボックスは、まるで大切な家族を守る騎士のように、あなたの生活をサポートします。管理人の温かな眼差しが、さらなる安心感を与え、まるで心の拠り所になることでしょう。バイク置場や駐車場も完備されており、自由な日常を思い描くことができます。
周辺には歴史と文化が息づく街並みが広がり、ディアナコート小石川竹早から徒歩8分のところにある茗荷谷駅は、知の探求を続ける人々の足元を支えています。東京大学のキャンパスが近くにあり、学問の香りが漂うこの地域で、あなたはインスピレーションを得て、新たな思考の旅に出かけることができるのです。
夜が訪れ、窓から見える星空が艶やかに輝く時、あなたの心は静かに満たされていきます。ディアナコート小石川竹早は、ただの住まいではなく、あなたの人生を豊かに彩る舞台となることでしょう。日々の暮らしが洗練されたアートのように感じられ、心の中に静かなリズムを刻む場所。この物件での生活は、あなたの五感を刺激し、人生の美しい瞬間を再発見させることでしょう。是非、この特別な場所での新しい物語を始めてみませんか。
どこか優雅なリズムで流れる時間の中、リビングダイニングは17.1帖という広さを誇ります。大きな窓から差し込む柔らかな光が、まるで朝のヴァイオリンの音色のように心地よく響いてきます。新鮮な風が吹き込み、春の花々の香りが漂ってくる瞬間、あなたの日常が特別なものに変わります。また、キッチンは3帖とコンパクトながらも、料理の楽しさを引き立てる素晴らしい工夫が施されており、まるで特別なレシピを持つ魔法の部屋のようです。大切な人と共に、心温まる料理を囲むひとときは、まるで映画のシーンのような幸せな瞬間を生み出します。
ディアナコート小石川竹早には、住む方の安心と快適さを考えた設備が整っています。エレベーターやオートロック、宅配ボックスは、まるで大切な家族を守る騎士のように、あなたの生活をサポートします。管理人の温かな眼差しが、さらなる安心感を与え、まるで心の拠り所になることでしょう。バイク置場や駐車場も完備されており、自由な日常を思い描くことができます。
周辺には歴史と文化が息づく街並みが広がり、ディアナコート小石川竹早から徒歩8分のところにある茗荷谷駅は、知の探求を続ける人々の足元を支えています。東京大学のキャンパスが近くにあり、学問の香りが漂うこの地域で、あなたはインスピレーションを得て、新たな思考の旅に出かけることができるのです。
夜が訪れ、窓から見える星空が艶やかに輝く時、あなたの心は静かに満たされていきます。ディアナコート小石川竹早は、ただの住まいではなく、あなたの人生を豊かに彩る舞台となることでしょう。日々の暮らしが洗練されたアートのように感じられ、心の中に静かなリズムを刻む場所。この物件での生活は、あなたの五感を刺激し、人生の美しい瞬間を再発見させることでしょう。是非、この特別な場所での新しい物語を始めてみませんか。
バイブルスコア
バイブルスコア: 24.6
平均的なスコアです。
※バイブルスコア詳細はこちら
バイブルスコアとは独自のAI機械学習技術を利用した物件評価システムで、物件のおすすめ度を示します。最高得点は100点で、スコアが高いほど、よりおすすめの物件と評価されています。
写真
現在写真が登録されていません契約条件
| 賃料 | 予想金額:250,000〜270,000円程度 | 管理費 | 予想金額:6,000〜10,000円程度 |
| 礼金 | 非公開(アーカイブ) | 敷金 | 非公開(アーカイブ) |
| フリーレント | なし | 平米数 | 62.66㎡ |
| 間取り | 1LDK | 大型収納 | WIC+SIC |
| 契約期間 | 方角 | 北西 | |
| 更新料 | 契約形態 | 定期借家契約 | |
| 取引態様 | 媒介 | 内見状況 | 入居中 |
| 入居時期 | 入居中 | SOHO・事務所 | |
| ペット | 間取り内訳 | 洋:6 LD:17.1 K:3 | |
| キャンペーン情報・備考 | 本情報は賃料改定交渉の資料作成、収益物件の利回り試算、周辺エリアや最寄り駅の坪単価分析、次回募集開始時期の予測などにご活用いただけます。 | ||
※「どの不動産に頼めばいいのか分からない」「信頼できる営業マンの話を聞きたい」「一番親切な会社と契約したい」とお悩みの方におすすめなのが「高級賃貸バイブル」です。
高級賃貸バイブルは業界10年以上の熟練スタッフ群がお客様ファーストで対応します。
下記ボタンから、まずは無料でご相談下さい。
※内覧をご希望の際には、どうぞ物件のエントランス前にてお待ち合わせくださいませ。ご内覧後は、同じ場所でお別れとさせていただきます。お客様のご都合に合わせたスムーズなご案内を心がけておりますので、ご質問等がございましたら何なりとお申し付けください。 物件概要
| 物件名 |
| 築年月 |
|
|---|---|---|---|
| 所在地 | |||
| 交通 | |||
| 総戸数 |
| 総階数 |
|
| 構造 |
| ||
地図
物件までの道のりは、「拡大地図を表示」をクリックしてナビ機能をご利用ください。
部屋設備












建物設備

TVモニターホン

エレベーター

オートロック

バイク置場

宅配ボックス

敷地内ゴミ置場

管理人

駐車場平置き

駐車場機械式

駐輪場
ディアナコート小石川竹早の現在募集中のお部屋
- No rooms found for this property.
