
| 賃料 | 予想金額:990,000〜1,010,000円程度 | 管理費 | 予想金額:0〜2,000円程度 |
| 礼金/敷金 | 非公開(アーカイブ) | 平米数 | 208.63㎡ |
| 初期費用概算(参考) | 目安:5,541,500〜5,641,500 円 | みなし賃料(月額・参考) | 1,085,656〜1,105,656 円 |
| 備考 | 本ページは過去募集のアーカイブです。表示の金額は周辺相場・過去募集を踏まえた参考レンジであり、実際の契約金額・条件ではありません。 | ||
※上記みなし賃料(月額)は仲介手数料割引・無料&キャッシュバックを加味した高級賃貸バイブル限定の金額です。一般的なみなし賃料とは異なります。
【建物ページ】テレサハウスの詳細・最新空室はこちら▶▶選ばれる理由
仲介手数料無料・キャンペーン情報(毎月15名様限定)
〇仲介手数料割引キャンペーン
テレサハウス 3階 208.63㎡の口コミ・レビュー
テレサハウス 3階 208.63㎡、それはまるで豊かな物語が織り成される舞台のようです。都心の喧騒を離れ、南向きの窓から注ぎ込むやわらかな陽射しが、住まうあなたの心を温めます。これから、テレサハウスがあなたに語りかけてくれるのは、日常の中に潜む特別な瞬間です。
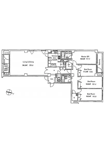
この邸宅は、贅を尽くした4LDKの空間です。LDKの35.9帖は、どこか映画のセットのように広がり、友人を招いてのディナーや静かな読書の…テレサハウス 3階 208.63㎡、それはまるで豊かな物語が織り成される舞台のようです。都心の喧騒を離れ、南向きの窓から注ぎ込むやわらかな陽射しが、住まうあなたの心を温めます。これから、テレサハウスがあなたに語りかけてくれるのは、日常の中に潜む特別な瞬間です。
この邸宅は、贅を尽くした4LDKの空間です。LDKの35.9帖は、どこか映画のセットのように広がり、友人を招いてのディナーや静かな読書の時間を楽しむことができます。クッキングの音に耳を澄ませると、キッチン8.2帖から伝わる香ばしい香りが、あなたを誘惑します。素材の持つ風味を活かし、目の前に広がる美味の世界を指先で感じながら、心を弾ませながら料理を楽しむ時間は、まるで一つの芸術作品のようです。
テレサハウスの各寝室は、まさに安息の地。12.1帖、10.2帖、10.1帖、6.8帖といった広々とした空間が、心を柔らかく包み込みます。夜の帳が下りると、静けさの中に身を沈め、ゆっくりと夢の世界へと誘われるのです。まるでそっと語りかけるように、優しい風が窓を通り抜け、思い出を胸に刻みます。
また、テレサハウスの魅力は内部だけに留まらず、周辺にも広がっています。東京メトロ半蔵門線 青山一丁目駅からわずか5分の立地は、人生の舞台をより豊かにします。赤坂という土地は、歴史に裏打ちされた文化の香りが漂い、ここに住むことであなたもその一部となるのです。アートギャラリーや洒落たカフェが点在する街並みを散策すれば、感性が磨かれていくのを感じられるでしょう。
テレサハウスのエレベーターで上がり、オートロックを通り抜け、宅配ボックスに届いた特別な品々を受け取る、その瞬間があなたの心を躍らせます。住まうことが、特別な体験となるのです。ここでは、日々の暮らしこそがあなたの作品であり、生活のリズムが詩的に展開していきます。
駐車場や駐輪場が完備されていることで、自由な移動が可能となり、あなたの生活スタイルをより豊かに演出します。管理人が常駐しているので、安心感も得られ、いつでもあなたを見守ってくれています。思い描いた理想の生活が、ここテレサハウス 3階 208.63㎡で開花するのです。
テレサハウスは、かけがえのないあなたの日常を、まるで映画のワンシーンのように彩ります。特別な空間で、特別な時を過ごすことができるこの場所は、あなたを待っています。あなたの物語を、ぜひここで紡いでみませんか。
この邸宅は、贅を尽くした4LDKの空間です。LDKの35.9帖は、どこか映画のセットのように広がり、友人を招いてのディナーや静かな読書の…テレサハウス 3階 208.63㎡、それはまるで豊かな物語が織り成される舞台のようです。都心の喧騒を離れ、南向きの窓から注ぎ込むやわらかな陽射しが、住まうあなたの心を温めます。これから、テレサハウスがあなたに語りかけてくれるのは、日常の中に潜む特別な瞬間です。
この邸宅は、贅を尽くした4LDKの空間です。LDKの35.9帖は、どこか映画のセットのように広がり、友人を招いてのディナーや静かな読書の時間を楽しむことができます。クッキングの音に耳を澄ませると、キッチン8.2帖から伝わる香ばしい香りが、あなたを誘惑します。素材の持つ風味を活かし、目の前に広がる美味の世界を指先で感じながら、心を弾ませながら料理を楽しむ時間は、まるで一つの芸術作品のようです。
テレサハウスの各寝室は、まさに安息の地。12.1帖、10.2帖、10.1帖、6.8帖といった広々とした空間が、心を柔らかく包み込みます。夜の帳が下りると、静けさの中に身を沈め、ゆっくりと夢の世界へと誘われるのです。まるでそっと語りかけるように、優しい風が窓を通り抜け、思い出を胸に刻みます。
また、テレサハウスの魅力は内部だけに留まらず、周辺にも広がっています。東京メトロ半蔵門線 青山一丁目駅からわずか5分の立地は、人生の舞台をより豊かにします。赤坂という土地は、歴史に裏打ちされた文化の香りが漂い、ここに住むことであなたもその一部となるのです。アートギャラリーや洒落たカフェが点在する街並みを散策すれば、感性が磨かれていくのを感じられるでしょう。
テレサハウスのエレベーターで上がり、オートロックを通り抜け、宅配ボックスに届いた特別な品々を受け取る、その瞬間があなたの心を躍らせます。住まうことが、特別な体験となるのです。ここでは、日々の暮らしこそがあなたの作品であり、生活のリズムが詩的に展開していきます。
駐車場や駐輪場が完備されていることで、自由な移動が可能となり、あなたの生活スタイルをより豊かに演出します。管理人が常駐しているので、安心感も得られ、いつでもあなたを見守ってくれています。思い描いた理想の生活が、ここテレサハウス 3階 208.63㎡で開花するのです。
テレサハウスは、かけがえのないあなたの日常を、まるで映画のワンシーンのように彩ります。特別な空間で、特別な時を過ごすことができるこの場所は、あなたを待っています。あなたの物語を、ぜひここで紡いでみませんか。
バイブルスコア
バイブルスコア: 26.9
平均的なスコアです。
※バイブルスコア詳細はこちら
バイブルスコアとは独自のAI機械学習技術を利用した物件評価システムで、物件のおすすめ度を示します。最高得点は100点で、スコアが高いほど、よりおすすめの物件と評価されています。
写真
現在写真が登録されていません契約条件
| 賃料 | 予想金額:990,000〜1,010,000円程度 | 管理費 | 予想金額:0〜2,000円程度 |
| 礼金 | 非公開(アーカイブ) | 敷金 | 非公開(アーカイブ) |
| フリーレント | なし | 平米数 | 208.63㎡ |
| 間取り | 4LDK | 大型収納 | WIC+Sto |
| 契約期間 |
| 方角 | 南 |
| 更新料 | 契約形態 | 普通賃貸借契約 | |
| 取引態様 | 媒介 | 内見状況 | 入居中 |
| 入居時期 | 入居中 | SOHO・事務所 | |
| ペット | ペット可 | 間取り内訳 | LD=35.9J / K=8.2J / BR=12.1J , 10.2J , 10.1J , 6.8J |
| キャンペーン情報・備考 | 本情報は賃料改定交渉の資料作成、収益物件の利回り試算、周辺エリアや最寄り駅の坪単価分析、次回募集開始時期の予測などにご活用いただけます。 | ||
※「どの不動産に頼めばいいのか分からない」「信頼できる営業マンの話を聞きたい」「一番親切な会社と契約したい」とお悩みの方におすすめなのが「高級賃貸バイブル」です。
高級賃貸バイブルは業界10年以上の熟練スタッフ群がお客様ファーストで対応します。
下記ボタンから、まずは無料でご相談下さい。
※内覧をご希望の際には、どうぞ物件のエントランス前にてお待ち合わせくださいませ。ご内覧後は、同じ場所でお別れとさせていただきます。お客様のご都合に合わせたスムーズなご案内を心がけておりますので、ご質問等がございましたら何なりとお申し付けください。 物件概要
| 物件名 |
| 築年月 |
|
|---|---|---|---|
| 所在地 | |||
| 交通 | |||
| 総戸数 | 総階数 |
| |
| 構造 |
| ||
地図
物件までの道のりは、「拡大地図を表示」をクリックしてナビ機能をご利用ください。
部屋設備











建物設備

TVモニターホン

エレベーター

オートロック

宅配ボックス

敷地内ゴミ置場

管理人

駐車場平置き

駐輪場
テレサハウスの現在募集中のお部屋
- No rooms found for this property.
