
| 賃料 | 予想金額:160,000〜180,000円程度 | 管理費 | 予想金額:8,000〜12,000円程度 |
| 礼金/敷金 | 非公開(アーカイブ) | 平米数 | 32.34㎡ |
| 初期費用概算(参考) | 目安:651,500〜751,500 円 | みなし賃料(月額・参考) | 181,073〜201,073 円 |
| 備考 | 本ページは過去募集のアーカイブです。表示の金額は周辺相場・過去募集を踏まえた参考レンジであり、実際の契約金額・条件ではありません。 | ||
※上記みなし賃料(月額)は仲介手数料割引・無料&キャッシュバックを加味した高級賃貸バイブル限定の金額です。一般的なみなし賃料とは異なります。
【建物ページ】クリオ神田の詳細・最新空室はこちら▶▶選ばれる理由
仲介手数料無料・キャンペーン情報(毎月15名様限定)
〇仲介手数料割引キャンペーン
クリオ神田 1001の口コミ・レビュー
クリオ神田 1001へようこそ。この高級賃貸物件は、東京都千代田区鍛冶町2-14-9という歴史あるエリアに位置し、まるで時を超えた旅人がたどり着く秘密の隠れ家のように、住む人々に安らぎと優雅さを提供します。西側に広がる大きな窓から差し込む夕陽の美しさは、心を落ち着かせるゴールドのカーテンが優しく包み込み、日々の小さな幸せを感じさせてくれることでしょう。
クリオ神田 1001の内部は、32.34㎡…クリオ神田 1001へようこそ。この高級賃貸物件は、東京都千代田区鍛冶町2-14-9という歴史あるエリアに位置し、まるで時を超えた旅人がたどり着く秘密の隠れ家のように、住む人々に安らぎと優雅さを提供します。西側に広がる大きな窓から差し込む夕陽の美しさは、心を落ち着かせるゴールドのカーテンが優しく包み込み、日々の小さな幸せを感じさせてくれることでしょう。
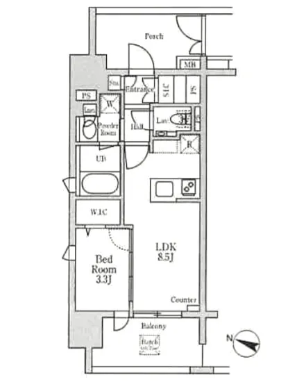
クリオ神田 1001の内部は、32.34㎡という巧妙なレイアウトによって、まるで小さな舞台に立つ俳優のように、住む人の生活を華やかに演出します。1LDKの贅沢な間取りでは、リビングダイニングキッチン(LDK)が8.5畳の広さを誇り、あなたのクリエイティブな心を刺激するスペースを提供します。この場所で繰り広げられる会話や笑い声は、まるで甘い音楽のように響き渡り、かけがえのない思い出を刻んでいくでしょう。
洗練されたデザインのキッチンは、料理の香ばしい匂いが漂う中、あなたをシェフへと変身させます。新鮮な素材たちが、まるで舞踏会を開くかのように、あなたの手の中で踊り、一皿一皿がまるでアートのように仕上がります。ベルが鳴ることなく、静かに響くエレベーターの音が、あなたを日常の喧騒から解き放ち、リラックスしたひとときをもたらします。
クリオ神田 1001には、温もりのあるエントランスがあり、オートロックの心強いセキュリティがあなたを見守ります。宅配ボックスも完備されているため、忙しい日々の中でも、ちょっとした贅沢を感じることができます。周到に配置された管理人が、あなたの生活をサポートし、つかの間の安寧を与えてくれることでしょう。
周囲には、東京都千代田区の風情が残る街並みが広がり、神田駅から徒歩2分という好立地は、まるでストーリーの中の主人公が大都会の喧騒をものともせずに進む姿を思わせます。銀座線での短い旅は、まるで新たな冒険へ羽ばたく旅券のようです。歴史的な古書店や美味しい飲食店が並ぶこの地区は、文化や芸術が息づく場所として、住む人に常に新たなインスピレーションを与えてくれます。
想像してみてください。1日の終わりに、クリオ神田 1001のバルコニーで赤ワインを片手に、ゆっくりと夕焼けに染まる街を眺める瞬間を。遠くに見える東京の灯りが、一つ一つの星のようにあなたの心をつかみ、日々の忙しさを忘れさせてくれます。この物件は、まさに生活そのものをアートに変える場所です。クリオ神田 1001は、あなたにとって特別な居場所となることでしょう。是非、この魅力を実際に感じてみてください。あなたの新たな物語がここから始まります。
クリオ神田 1001の内部は、32.34㎡…クリオ神田 1001へようこそ。この高級賃貸物件は、東京都千代田区鍛冶町2-14-9という歴史あるエリアに位置し、まるで時を超えた旅人がたどり着く秘密の隠れ家のように、住む人々に安らぎと優雅さを提供します。西側に広がる大きな窓から差し込む夕陽の美しさは、心を落ち着かせるゴールドのカーテンが優しく包み込み、日々の小さな幸せを感じさせてくれることでしょう。
クリオ神田 1001の内部は、32.34㎡という巧妙なレイアウトによって、まるで小さな舞台に立つ俳優のように、住む人の生活を華やかに演出します。1LDKの贅沢な間取りでは、リビングダイニングキッチン(LDK)が8.5畳の広さを誇り、あなたのクリエイティブな心を刺激するスペースを提供します。この場所で繰り広げられる会話や笑い声は、まるで甘い音楽のように響き渡り、かけがえのない思い出を刻んでいくでしょう。
洗練されたデザインのキッチンは、料理の香ばしい匂いが漂う中、あなたをシェフへと変身させます。新鮮な素材たちが、まるで舞踏会を開くかのように、あなたの手の中で踊り、一皿一皿がまるでアートのように仕上がります。ベルが鳴ることなく、静かに響くエレベーターの音が、あなたを日常の喧騒から解き放ち、リラックスしたひとときをもたらします。
クリオ神田 1001には、温もりのあるエントランスがあり、オートロックの心強いセキュリティがあなたを見守ります。宅配ボックスも完備されているため、忙しい日々の中でも、ちょっとした贅沢を感じることができます。周到に配置された管理人が、あなたの生活をサポートし、つかの間の安寧を与えてくれることでしょう。
周囲には、東京都千代田区の風情が残る街並みが広がり、神田駅から徒歩2分という好立地は、まるでストーリーの中の主人公が大都会の喧騒をものともせずに進む姿を思わせます。銀座線での短い旅は、まるで新たな冒険へ羽ばたく旅券のようです。歴史的な古書店や美味しい飲食店が並ぶこの地区は、文化や芸術が息づく場所として、住む人に常に新たなインスピレーションを与えてくれます。
想像してみてください。1日の終わりに、クリオ神田 1001のバルコニーで赤ワインを片手に、ゆっくりと夕焼けに染まる街を眺める瞬間を。遠くに見える東京の灯りが、一つ一つの星のようにあなたの心をつかみ、日々の忙しさを忘れさせてくれます。この物件は、まさに生活そのものをアートに変える場所です。クリオ神田 1001は、あなたにとって特別な居場所となることでしょう。是非、この魅力を実際に感じてみてください。あなたの新たな物語がここから始まります。
バイブルスコア
バイブルスコア: 17.7
高級な物件でない場合は割高な物件です。。
※バイブルスコア詳細はこちら
バイブルスコアとは独自のAI機械学習技術を利用した物件評価システムで、物件のおすすめ度を示します。最高得点は100点で、スコアが高いほど、よりおすすめの物件と評価されています。
写真
契約条件
| 賃料 | 予想金額:160,000〜180,000円程度 | 管理費 | 予想金額:8,000〜12,000円程度 |
| 礼金 | 非公開(アーカイブ) | 敷金 | 非公開(アーカイブ) |
| フリーレント | なし | 平米数 | 32.34㎡ |
| 間取り | 1LDK | 大型収納 | WIC+SIC |
| 契約期間 |
| 方角 | 西 |
| 更新料 | 契約形態 | 普通賃貸借契約 | |
| 取引態様 | 媒介 | 内見状況 | 入居中 |
| 入居時期 | 入居中 | SOHO・事務所 | |
| ペット | ペット可 | 間取り内訳 | 洋:3.3 LDK:8.5 |
| キャンペーン情報・備考 | 本情報は賃料改定交渉の資料作成、収益物件の利回り試算、周辺エリアや最寄り駅の坪単価分析、次回募集開始時期の予測などにご活用いただけます。 | ||
※「どの不動産に頼めばいいのか分からない」「信頼できる営業マンの話を聞きたい」「一番親切な会社と契約したい」とお悩みの方におすすめなのが「高級賃貸バイブル」です。
高級賃貸バイブルは業界10年以上の熟練スタッフ群がお客様ファーストで対応します。
下記ボタンから、まずは無料でご相談下さい。
※内覧をご希望の際には、どうぞ物件のエントランス前にてお待ち合わせくださいませ。ご内覧後は、同じ場所でお別れとさせていただきます。お客様のご都合に合わせたスムーズなご案内を心がけておりますので、ご質問等がございましたら何なりとお申し付けください。 物件概要
| 物件名 |
| 築年月 |
|
|---|---|---|---|
| 所在地 | |||
| 交通 | |||
| 総戸数 | 総階数 |
| |
| 構造 |
| ||
地図
物件までの道のりは、「拡大地図を表示」をクリックしてナビ機能をご利用ください。
部屋設備
















建物設備

TVモニターホン

エレベーター

オートロック

宅配ボックス

敷地内ゴミ置場

管理人

駐輪場
クリオ神田の現在募集中のお部屋
- No rooms found for this property.









