
| 賃料 | 予想金額:263,000〜283,000円程度 | 管理費 | 予想金額:13,000〜17,000円程度 |
| 礼金/敷金 | 非公開(アーカイブ) | 平米数 | 54.42㎡ |
| 初期費用概算(参考) | 目安:1,019,500〜1,119,500 円 | みなし賃料(月額・参考) | 294,594〜314,594 円 |
| 備考 | 本ページは過去募集のアーカイブです。表示の金額は周辺相場・過去募集を踏まえた参考レンジであり、実際の契約金額・条件ではありません。 | ||
※上記みなし賃料(月額)は仲介手数料割引・無料&キャッシュバックを加味した高級賃貸バイブル限定の金額です。一般的なみなし賃料とは異なります。
【建物ページ】クリオ神田の詳細・最新空室はこちら▶▶選ばれる理由
仲介手数料無料・キャンペーン情報(毎月15名様限定)
〇仲介手数料割引キャンペーン
クリオ神田 203の口コミ・レビュー
クリオ神田 203は、まるで都会の真ん中にひっそりと佇むオアシスのような存在です。東京都千代田区鍛冶町2-14-9という地に身を置き、あなたを待つこの空間は、南と西に広がる明るい陽射しを受け、日々の生活に温かな光を注ぎ込みます。203号室の扉を開ければ、あなたの新たな物語が始まります。
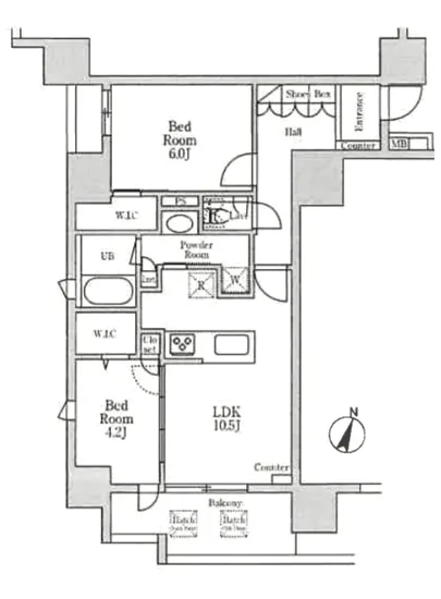
この美しい2LDKの間取りは、54.42㎡という洗練された広さを持ち、心地よさと機能性が絶妙に融合しています。…クリオ神田 203は、まるで都会の真ん中にひっそりと佇むオアシスのような存在です。東京都千代田区鍛冶町2-14-9という地に身を置き、あなたを待つこの空間は、南と西に広がる明るい陽射しを受け、日々の生活に温かな光を注ぎ込みます。203号室の扉を開ければ、あなたの新たな物語が始まります。
この美しい2LDKの間取りは、54.42㎡という洗練された広さを持ち、心地よさと機能性が絶妙に融合しています。リビングダイニングキッチン(LDK)は10.5帖の広さを誇り、友人や家族と過ごす穏やかな時間を演出します。大きな窓から入る光が、木製のフローリングを優しく照らし、まるで自然の一部がその中に息づいているかのようです。新鮮なコーヒーの香りが漂う朝、白いカーテンが軽やかに揺れる中で、あなたの一日の幕が上がります。
それぞれの居室も個性的で、6帖の洋室は、まるで自分自身を解放できるプライベートな隠れ家。4.2帖の洋室は、ちょっとした趣味のスペースや書斎としても活用でき、あなたのクリエイティブな感性を刺激します。静寂の中にこだまする筆の音やページをめくる音が、生活のリズムを優雅に奏でることでしょう。
また、クリオ神田 203には、TVモニターホンやオートロック、宅配ボックスなど、高級感と安心感に満ちた設備が整っています。エレベーターで上がれば、まるで特別なエンターテイメントのステージに立っているかのような気分に浸れます。地元の人々に愛される神田駅から徒歩2分という立地は、まさに快適さと便利さの象徴。周辺には歴史ある神田明神や、個性的なカフェが点在し、日常がまるで映画のワンシーンのように彩られます。
クリオ神田 203の周辺には、古き良き時代の風情と現代の文化が息づく町並みが広がり、街の隅々に歴史の息遣いを感じさせます。文化的なイベントやアートの発信地も多く、あなたの感性を豊かにしてくれることでしょう。夕暮れ時、窓を開ければ、心地よい夜風とともに街の喧騒が耳に届き、その中に自分の存在を感じることができるのです。
この物件は、ただの住まいではなく、あなたの心に寄り添う存在です。毎日の生活が、あなた自身の物語の一部となり、特別な時間と空間を提供します。クリオ神田 203で、心温まる新たな生活が待っています。あなたの新しい冒険が、ここから始まります。
この美しい2LDKの間取りは、54.42㎡という洗練された広さを持ち、心地よさと機能性が絶妙に融合しています。…クリオ神田 203は、まるで都会の真ん中にひっそりと佇むオアシスのような存在です。東京都千代田区鍛冶町2-14-9という地に身を置き、あなたを待つこの空間は、南と西に広がる明るい陽射しを受け、日々の生活に温かな光を注ぎ込みます。203号室の扉を開ければ、あなたの新たな物語が始まります。
この美しい2LDKの間取りは、54.42㎡という洗練された広さを持ち、心地よさと機能性が絶妙に融合しています。リビングダイニングキッチン(LDK)は10.5帖の広さを誇り、友人や家族と過ごす穏やかな時間を演出します。大きな窓から入る光が、木製のフローリングを優しく照らし、まるで自然の一部がその中に息づいているかのようです。新鮮なコーヒーの香りが漂う朝、白いカーテンが軽やかに揺れる中で、あなたの一日の幕が上がります。
それぞれの居室も個性的で、6帖の洋室は、まるで自分自身を解放できるプライベートな隠れ家。4.2帖の洋室は、ちょっとした趣味のスペースや書斎としても活用でき、あなたのクリエイティブな感性を刺激します。静寂の中にこだまする筆の音やページをめくる音が、生活のリズムを優雅に奏でることでしょう。
また、クリオ神田 203には、TVモニターホンやオートロック、宅配ボックスなど、高級感と安心感に満ちた設備が整っています。エレベーターで上がれば、まるで特別なエンターテイメントのステージに立っているかのような気分に浸れます。地元の人々に愛される神田駅から徒歩2分という立地は、まさに快適さと便利さの象徴。周辺には歴史ある神田明神や、個性的なカフェが点在し、日常がまるで映画のワンシーンのように彩られます。
クリオ神田 203の周辺には、古き良き時代の風情と現代の文化が息づく町並みが広がり、街の隅々に歴史の息遣いを感じさせます。文化的なイベントやアートの発信地も多く、あなたの感性を豊かにしてくれることでしょう。夕暮れ時、窓を開ければ、心地よい夜風とともに街の喧騒が耳に届き、その中に自分の存在を感じることができるのです。
この物件は、ただの住まいではなく、あなたの心に寄り添う存在です。毎日の生活が、あなた自身の物語の一部となり、特別な時間と空間を提供します。クリオ神田 203で、心温まる新たな生活が待っています。あなたの新しい冒険が、ここから始まります。
バイブルスコア
バイブルスコア: 21.8
平均的なスコアです。
※バイブルスコア詳細はこちら
バイブルスコアとは独自のAI機械学習技術を利用した物件評価システムで、物件のおすすめ度を示します。最高得点は100点で、スコアが高いほど、よりおすすめの物件と評価されています。
写真
契約条件
| 賃料 | 予想金額:263,000〜283,000円程度 | 管理費 | 予想金額:13,000〜17,000円程度 |
| 礼金 | 非公開(アーカイブ) | 敷金 | 非公開(アーカイブ) |
| フリーレント | なし | 平米数 | 54.42㎡ |
| 間取り | 2LDK | 大型収納 | 2WIC |
| 契約期間 |
| 方角 | 南 / 西向き |
| 更新料 | 契約形態 | 普通賃貸借契約 | |
| 取引態様 | 媒介 | 内見状況 | 入居中 |
| 入居時期 | 入居中 | SOHO・事務所 | |
| ペット | ペット可 | 間取り内訳 | 洋:6 洋:4.2 LDK:10.5 |
| キャンペーン情報・備考 | 本情報は賃料改定交渉の資料作成、収益物件の利回り試算、周辺エリアや最寄り駅の坪単価分析、次回募集開始時期の予測などにご活用いただけます。 | ||
※「どの不動産に頼めばいいのか分からない」「信頼できる営業マンの話を聞きたい」「一番親切な会社と契約したい」とお悩みの方におすすめなのが「高級賃貸バイブル」です。
高級賃貸バイブルは業界10年以上の熟練スタッフ群がお客様ファーストで対応します。
下記ボタンから、まずは無料でご相談下さい。
※内覧をご希望の際には、どうぞ物件のエントランス前にてお待ち合わせくださいませ。ご内覧後は、同じ場所でお別れとさせていただきます。お客様のご都合に合わせたスムーズなご案内を心がけておりますので、ご質問等がございましたら何なりとお申し付けください。 物件概要
| 物件名 |
| 築年月 |
|
|---|---|---|---|
| 所在地 | |||
| 交通 | |||
| 総戸数 | 総階数 |
| |
| 構造 |
| ||
地図
物件までの道のりは、「拡大地図を表示」をクリックしてナビ機能をご利用ください。
部屋設備
















建物設備

TVモニターホン

エレベーター

オートロック

宅配ボックス

敷地内ゴミ置場

管理人

駐輪場
クリオ神田の現在募集中のお部屋
- No rooms found for this property.









