
| 賃料 | 予想金額:300,000〜320,000円程度 | 管理費 | 予想金額:0〜2,000円程度 |
| 礼金/敷金 | 非公開(アーカイブ) | 平米数 | 68.67㎡ |
| 初期費用概算(参考) | 目安:1,453,000〜1,553,000 円 | みなし賃料(月額・参考) | 324,854〜344,854 円 |
| 備考 | 本ページは過去募集のアーカイブです。表示の金額は周辺相場・過去募集を踏まえた参考レンジであり、実際の契約金額・条件ではありません。 | ||
※上記みなし賃料(月額)は仲介手数料割引・無料&キャッシュバックを加味した高級賃貸バイブル限定の金額です。一般的なみなし賃料とは異なります。
【建物ページ】パークホームズ月島二丁目の詳細・最新空室はこちら▶▶選ばれる理由
仲介手数料無料・キャンペーン情報(毎月15名様限定)
〇仲介手数料割引キャンペーン
パークホームズ月島二丁目 10階 68.67㎡の口コミ・レビュー
パークホームズ月島二丁目 10階 68.67㎡は、まるで心が躍る映画の一シーンのように、住まう人を優雅な空間へと招待します。東京都中央区の美しい街並みに溶け込み、北西の空から差し込む穏やかな光が、あなたの毎日をやさしく包み込むのです。エレベーターで10階に上がると、眼前に広がるのは、まるで絵画のような景色。窓の向こうに広がる都市の息遣いを感じながら、心の奥底から湧き上がる感動に浸ることでしょう。
…パークホームズ月島二丁目 10階 68.67㎡は、まるで心が躍る映画の一シーンのように、住まう人を優雅な空間へと招待します。東京都中央区の美しい街並みに溶け込み、北西の空から差し込む穏やかな光が、あなたの毎日をやさしく包み込むのです。エレベーターで10階に上がると、眼前に広がるのは、まるで絵画のような景色。窓の向こうに広がる都市の息遣いを感じながら、心の奥底から湧き上がる感動に浸ることでしょう。
この物件は、あなたの静かな日常の背景音となり、生活に潤いを与えてくれることでしょう。TVモニターホンやオートロックは、まるで忠実な番犬のように、安心感をもたらしてくれます。宅配ボックスも設置されており、忙しい日常の合間に訪れる贈り物の期待を育んでくれるのです。敷地内のゴミ置場や駐輪場も、あなたの生活をスムーズにサポートし、それぞれの瞬間がより豊かに彩られます。
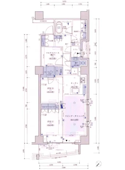
間取りは2LDKという心地よい空間が、あなたの生活を包み込みます。14.5帖のLDKは、家族や友人との楽しい時間を過ごすための広々とした舞台であり、6帖の洋室は、ひとときの静寂を得るための特別な場所。4.5帖の洋室は自分だけの隠れ家となり、3.2帖のSはクリエイティブな発想が息づくアトリエとなります。どの空間も、日々の生活を豊かにするためのステージとして、あなたの感性を刺激します。
ここは月島という歴史あるエリアに位置し、周囲には文化と芸術が息づいています。都内でも特に味わい深い月島の下町風情は、あなたの心に温もりをもたらします。毎日の散歩が、まるで古い映画のワンシーンのように、心地よい風を感じながら、街の小道を歩くことになるでしょう。周囲の飲食店やカフェは、あなたの味覚を刺激し、旬の素材を生かした料理が待っています。ここでは、食が芸術となり、あなたの生活に華やかな彩りを加えることでしょう。
パークホームズ月島二丁目 10階 68.67㎡は、単なる住まいという枠を超え、生活そのものがアートであることを教えてくれます。五感を刺激する空間で、あなた自身の物語を紡いでいくことができるのです。この特別な場所で、毎日が映画のように輝く瞬間を心ゆくまで楽しんでください。あなたの新たな人生の舞台が、ここに待っています。
…パークホームズ月島二丁目 10階 68.67㎡は、まるで心が躍る映画の一シーンのように、住まう人を優雅な空間へと招待します。東京都中央区の美しい街並みに溶け込み、北西の空から差し込む穏やかな光が、あなたの毎日をやさしく包み込むのです。エレベーターで10階に上がると、眼前に広がるのは、まるで絵画のような景色。窓の向こうに広がる都市の息遣いを感じながら、心の奥底から湧き上がる感動に浸ることでしょう。
この物件は、あなたの静かな日常の背景音となり、生活に潤いを与えてくれることでしょう。TVモニターホンやオートロックは、まるで忠実な番犬のように、安心感をもたらしてくれます。宅配ボックスも設置されており、忙しい日常の合間に訪れる贈り物の期待を育んでくれるのです。敷地内のゴミ置場や駐輪場も、あなたの生活をスムーズにサポートし、それぞれの瞬間がより豊かに彩られます。
間取りは2LDKという心地よい空間が、あなたの生活を包み込みます。14.5帖のLDKは、家族や友人との楽しい時間を過ごすための広々とした舞台であり、6帖の洋室は、ひとときの静寂を得るための特別な場所。4.5帖の洋室は自分だけの隠れ家となり、3.2帖のSはクリエイティブな発想が息づくアトリエとなります。どの空間も、日々の生活を豊かにするためのステージとして、あなたの感性を刺激します。
ここは月島という歴史あるエリアに位置し、周囲には文化と芸術が息づいています。都内でも特に味わい深い月島の下町風情は、あなたの心に温もりをもたらします。毎日の散歩が、まるで古い映画のワンシーンのように、心地よい風を感じながら、街の小道を歩くことになるでしょう。周囲の飲食店やカフェは、あなたの味覚を刺激し、旬の素材を生かした料理が待っています。ここでは、食が芸術となり、あなたの生活に華やかな彩りを加えることでしょう。
パークホームズ月島二丁目 10階 68.67㎡は、単なる住まいという枠を超え、生活そのものがアートであることを教えてくれます。五感を刺激する空間で、あなた自身の物語を紡いでいくことができるのです。この特別な場所で、毎日が映画のように輝く瞬間を心ゆくまで楽しんでください。あなたの新たな人生の舞台が、ここに待っています。
バイブルスコア
バイブルスコア: 50.7
条件のいい物件です、引っ越しが2か月以内の場合は仮申し込みを検討すべき物件です。
このお部屋は、現在ご入居中のため空室情報はございません。ただし、将来的に募集が開始される際、バイブルスコアにおいて非常に高い評価が期待されます。特にご興味をお持ちの方は、今のうちにブックマークやお気に入りに登録していただくと、募集開始のお知らせをすぐに受け取ることができます。是非ともご検討くださいませ。
※バイブルスコア詳細はこちら
バイブルスコアとは独自のAI機械学習技術を利用した物件評価システムで、物件のおすすめ度を示します。最高得点は100点で、スコアが高いほど、よりおすすめの物件と評価されています。
写真
契約条件
| 賃料 | 予想金額:300,000〜320,000円程度 | 管理費 | 予想金額:0〜2,000円程度 |
| 礼金 | 非公開(アーカイブ) | 敷金 | 非公開(アーカイブ) |
| フリーレント | なし | 平米数 | 68.67㎡ |
| 間取り | 2LDK | 大型収納 | WIC |
| 契約期間 | 備考を参照 | 方角 | 北西 |
| 更新料 | 備考を参照 | 契約形態 | 定期借家契約 |
| 取引態様 | 媒介 | 内見状況 | 入居中 |
| 入居時期 | 入居中 | SOHO・事務所 | 不可 |
| ペット | ペット可 | 間取り内訳 | 洋:6 洋:4.5 LDK:14.5 S:3.2 |
| キャンペーン情報・備考 | 本情報は賃料改定交渉の資料作成、収益物件の利回り試算、周辺エリアや最寄り駅の坪単価分析、次回募集開始時期の予測などにご活用いただけます。 | ||
※「どの不動産に頼めばいいのか分からない」「信頼できる営業マンの話を聞きたい」「一番親切な会社と契約したい」とお悩みの方におすすめなのが「高級賃貸バイブル」です。
高級賃貸バイブルは業界10年以上の熟練スタッフ群がお客様ファーストで対応します。
下記ボタンから、まずは無料でご相談下さい。
※内覧をご希望の際には、どうぞ物件のエントランス前にてお待ち合わせくださいませ。ご内覧後は、同じ場所でお別れとさせていただきます。お客様のご都合に合わせたスムーズなご案内を心がけておりますので、ご質問等がございましたら何なりとお申し付けください。 物件概要
| 物件名 |
| 築年月 |
|
|---|---|---|---|
| 所在地 | |||
| 交通 | |||
| 総戸数 |
| 総階数 |
|
| 構造 |
| ||
地図
物件までの道のりは、「拡大地図を表示」をクリックしてナビ機能をご利用ください。
部屋設備















建物設備

TVモニターホン

エレベーター

オートロック

宅配ボックス

敷地内ゴミ置場

管理人

駐輪場
パークホームズ月島二丁目の現在募集中のお部屋
- No rooms found for this property.








