
| 賃料 | 予想金額:180,000〜200,000円程度 | 管理費 | 予想金額:8,000〜12,000円程度 |
| 礼金/敷金 | 非公開(アーカイブ) | 平米数 | 59.11㎡ |
| 初期費用概算(参考) | 目安:721,500〜821,500 円 | みなし賃料(月額・参考) | 202,115〜222,115 円 |
| 備考 | 本ページは過去募集のアーカイブです。表示の金額は周辺相場・過去募集を踏まえた参考レンジであり、実際の契約金額・条件ではありません。 | ||
※上記みなし賃料(月額)は仲介手数料割引・無料&キャッシュバックを加味した高級賃貸バイブル限定の金額です。一般的なみなし賃料とは異なります。
【建物ページ】マークフロントタワー曳舟の詳細・最新空室はこちら▶▶選ばれる理由
仲介手数料無料・キャンペーン情報(毎月15名様限定)
〇仲介手数料割引キャンペーン
マークフロントタワー曳舟 19階 59.11㎡の口コミ・レビュー
マークフロントタワー曳舟 19階 59.11㎡は、まるで一枚の絵画のように、あなたを新たな生活の舞台へと誘います。高層に位置するこの素敵な居場所は、陽射しが優しく差し込み、南西向きの窓からは、四季折々の自然と街の喧騒を感じることができます。眺望は、まさに一流のアート。まるで都会のシンフォニーの中にいるかのように、日常の喧騒が高揚感に包まれる瞬間を迎えることでしょう。
この18帖に及ぶ心地よい空間…マークフロントタワー曳舟 19階 59.11㎡は、まるで一枚の絵画のように、あなたを新たな生活の舞台へと誘います。高層に位置するこの素敵な居場所は、陽射しが優しく差し込み、南西向きの窓からは、四季折々の自然と街の喧騒を感じることができます。眺望は、まさに一流のアート。まるで都会のシンフォニーの中にいるかのように、日常の喧騒が高揚感に包まれる瞬間を迎えることでしょう。
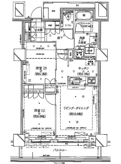
この18帖に及ぶ心地よい空間は、人生を彩る舞台としての役割を果たします。リビングのLDK10.6帖は、気持ちを落ち着かせる温かい色合いの壁紙で囲まれ、柔らかな光が包み込むように広がります。ここでは、友人を招いての笑い声が響き渡り、家族との団欒が心温まる瞬間を作り出すことでしょう。
さらに、洋室6帖と洋室5.1帖はそれぞれ、あなたの夢を広げるために設計されています。清々しい空気が流れるこの部屋は、心地よい眠りへと導く隠れ家のような存在。目を閉じて思い描くと、柔らかな羽毛布団に包まれた朝、太陽の光が優しく顔を撫でる感触が思い起こされます。そして、その後の一日の始まりに、キッチンの3.3帖があなたの料理の腕を試す場として、まさに舞台の主役となるのです。香ばしいパンの焼ける音や、フレッシュな野菜を切る刃の音が、穏やかな朝の風景を演出します。
マークフロントタワー曳舟には、洗練された設備が整い、生活を彩る大きなサポートとなります。24時間管理の安心感と、便利な宅配ボックス、心安らぐラウンジでのひとときなど、毎日が特別なものに変わります。それはまるで、美しい音楽が流れる静かなカフェの一角で、穏やかな時間を過ごすような幸福感を与えてくれるのです。
周辺には、墨田区の歴史を感じる静かな路地と、文化が息づくアートスポットが点在しており、毎日が新たな発見の連続です。近くの押上駅からは、東京の名所へとすぐにアクセスでき、旅人の心をくすぐる街の面影を感じることができます。マークフロントタワー曳舟が、あなたの生活を、旅の一ページにすることをお約束します。
この空間は、ただの住まいではなく、あなた自身が主人公となる舞台です。どうぞ、ここで新しい物語を紡いでください。マークフロントタワー曳舟 19階 59.11㎡は、あなたの生活に深い愛着と色彩を添え、永遠の記憶となることでしょう。あなたの訪れを心よりお待ちしております。
この18帖に及ぶ心地よい空間…マークフロントタワー曳舟 19階 59.11㎡は、まるで一枚の絵画のように、あなたを新たな生活の舞台へと誘います。高層に位置するこの素敵な居場所は、陽射しが優しく差し込み、南西向きの窓からは、四季折々の自然と街の喧騒を感じることができます。眺望は、まさに一流のアート。まるで都会のシンフォニーの中にいるかのように、日常の喧騒が高揚感に包まれる瞬間を迎えることでしょう。
この18帖に及ぶ心地よい空間は、人生を彩る舞台としての役割を果たします。リビングのLDK10.6帖は、気持ちを落ち着かせる温かい色合いの壁紙で囲まれ、柔らかな光が包み込むように広がります。ここでは、友人を招いての笑い声が響き渡り、家族との団欒が心温まる瞬間を作り出すことでしょう。
さらに、洋室6帖と洋室5.1帖はそれぞれ、あなたの夢を広げるために設計されています。清々しい空気が流れるこの部屋は、心地よい眠りへと導く隠れ家のような存在。目を閉じて思い描くと、柔らかな羽毛布団に包まれた朝、太陽の光が優しく顔を撫でる感触が思い起こされます。そして、その後の一日の始まりに、キッチンの3.3帖があなたの料理の腕を試す場として、まさに舞台の主役となるのです。香ばしいパンの焼ける音や、フレッシュな野菜を切る刃の音が、穏やかな朝の風景を演出します。
マークフロントタワー曳舟には、洗練された設備が整い、生活を彩る大きなサポートとなります。24時間管理の安心感と、便利な宅配ボックス、心安らぐラウンジでのひとときなど、毎日が特別なものに変わります。それはまるで、美しい音楽が流れる静かなカフェの一角で、穏やかな時間を過ごすような幸福感を与えてくれるのです。
周辺には、墨田区の歴史を感じる静かな路地と、文化が息づくアートスポットが点在しており、毎日が新たな発見の連続です。近くの押上駅からは、東京の名所へとすぐにアクセスでき、旅人の心をくすぐる街の面影を感じることができます。マークフロントタワー曳舟が、あなたの生活を、旅の一ページにすることをお約束します。
この空間は、ただの住まいではなく、あなた自身が主人公となる舞台です。どうぞ、ここで新しい物語を紡いでください。マークフロントタワー曳舟 19階 59.11㎡は、あなたの生活に深い愛着と色彩を添え、永遠の記憶となることでしょう。あなたの訪れを心よりお待ちしております。
バイブルスコア
バイブルスコア: 44.5
条件のいい物件です、引っ越しが2か月以内の場合は仮申し込みを検討すべき物件です。
※バイブルスコア詳細はこちら
バイブルスコアとは独自のAI機械学習技術を利用した物件評価システムで、物件のおすすめ度を示します。最高得点は100点で、スコアが高いほど、よりおすすめの物件と評価されています。
写真
現在写真が登録されていません契約条件
| 賃料 | 予想金額:180,000〜200,000円程度 | 管理費 | 予想金額:8,000〜12,000円程度 |
| 礼金 | 非公開(アーカイブ) | 敷金 | 非公開(アーカイブ) |
| フリーレント | なし | 平米数 | 59.11㎡ |
| 間取り | 2LDK | 大型収納 | |
| 契約期間 |
| 方角 | 南西 |
| 更新料 | 契約形態 | 普通賃貸借契約 | |
| 取引態様 | 媒介 | 内見状況 | 入居中 |
| 入居時期 | 入居中 | SOHO・事務所 | |
| ペット | 間取り内訳 | 洋:6 洋:5.1 LD:10.6 K:3.3 | |
| キャンペーン情報・備考 | 本情報は賃料改定交渉の資料作成、収益物件の利回り試算、周辺エリアや最寄り駅の坪単価分析、次回募集開始時期の予測などにご活用いただけます。 | ||
※「どの不動産に頼めばいいのか分からない」「信頼できる営業マンの話を聞きたい」「一番親切な会社と契約したい」とお悩みの方におすすめなのが「高級賃貸バイブル」です。
高級賃貸バイブルは業界10年以上の熟練スタッフ群がお客様ファーストで対応します。
下記ボタンから、まずは無料でご相談下さい。
※内覧をご希望の際には、どうぞ物件のエントランス前にてお待ち合わせくださいませ。ご内覧後は、同じ場所でお別れとさせていただきます。お客様のご都合に合わせたスムーズなご案内を心がけておりますので、ご質問等がございましたら何なりとお申し付けください。 物件概要
| 物件名 |
| 築年月 |
|
|---|---|---|---|
| 所在地 | |||
| 交通 |
| ||
| 総戸数 |
| 総階数 |
|
| 構造 |
| ||
地図
物件までの道のりは、「拡大地図を表示」をクリックしてナビ機能をご利用ください。
部屋設備















建物設備

24時間管理

TVモニターホン

エレベーター

オートロック

バイク置場

ラウンジ

宅配ボックス

敷地内ゴミ置場

管理人

駐車場平置き

駐車場機械式

駐輪場
マークフロントタワー曳舟の現在募集中のお部屋
- マークフロントタワー曳舟 5階 60.9㎡ - 間取り: 2LDK+WIC - 賃料: 23万円
