
| 賃料 | 予想金額:81,000〜101,000円程度 | 管理費 | 予想金額:13,000〜17,000円程度 |
| 礼金/敷金 | 非公開(アーカイブ) | 平米数 | 20.13㎡ |
| 初期費用概算(参考) | 目安:308,000〜408,000 円 | みなし賃料(月額・参考) | 101,563〜121,563 円 |
| 備考 | 本ページは過去募集のアーカイブです。表示の金額は周辺相場・過去募集を踏まえた参考レンジであり、実際の契約金額・条件ではありません。 | ||
※上記みなし賃料(月額)は仲介手数料割引・無料&キャッシュバックを加味した高級賃貸バイブル限定の金額です。一般的なみなし賃料とは異なります。
【建物ページ】プレミアムキューブ新中野の詳細・最新空室はこちら▶▶選ばれる理由
仲介手数料無料・キャンペーン情報(毎月15名様限定)
〇仲介手数料割引キャンペーン
プレミアムキューブ新中野 1階 20.13㎡の口コミ・レビュー
プレミアムキューブ新中野 1階 20.13㎡。あなたの新たな生活の舞台がここにございます。マンションがまるで心優しい友人のように、あなたを温かく迎え入れてくれる様子を想像してください。古き良き文化と新しい風が交差する中野の街。その中心に佇むプレミアムキューブ新中野は、まるで人々の思い出を包み込む柔らかいシルクの布のように、あなたの日常を彩ってくれることでしょう。
北西の方向に広がる窓からは、淡い…プレミアムキューブ新中野 1階 20.13㎡。あなたの新たな生活の舞台がここにございます。マンションがまるで心優しい友人のように、あなたを温かく迎え入れてくれる様子を想像してください。古き良き文化と新しい風が交差する中野の街。その中心に佇むプレミアムキューブ新中野は、まるで人々の思い出を包み込む柔らかいシルクの布のように、あなたの日常を彩ってくれることでしょう。
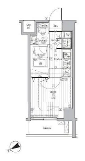
北西の方向に広がる窓からは、淡い陽光が差し込み、心地よい影と光が相まって、まるで自然が描く絵画のような情景が生まれます。20.13㎡の空間には、洋室5.3帖の華やかな舞台が広がり、あなたの生活という名の物語が始まります。エレガントなインテリアは、心の奥深くに響く優雅なメロディを奏で、日常の生活を特別なものへと変えてくれます。
新中野駅から徒歩1分という立地は、まるで時間を操る魔法の道具のよう。仕事や遊び、さらには家族や友人との交流に至るまで、すぐ目の前に広がる便利な世界は、あなたの自由を引き立てます。プレミアムキューブ新中野の中に足を踏み入れると、まるで新しい章が開かれるように感じることでしょう。
また、TVモニターホンやオートロック完備の安全性は、まるで温かい家庭のようにあなたを包み込むもので、安心感をもたらします。宅配ボックスは、待ち望んだ品々が届く瞬間を楽しむための舞台装置。日々の生活に小さな幸せをもたらす存在です。敷地内のゴミ置場や駐輪場も、生活の煩わしさを軽減してくれる頼もしい仲間となります。
想像してみてください。朝起きて、優しい光に照らされながら、香ばしいコーヒーの匂いに包まれる瞬間。薄明るい洋室5.3帖で、心地よい空気と共に、ゆっくりと過ごす朝食のひとときは、まるで映画のワンシーンのようです。プレミアムキューブ新中野は、そのような瞬間を大切にする方にふさわしい場所なのです。
周辺には多くの文化や歴史が息づいており、中野はアートや音楽の発信地としても知られています。プレミアムキューブ新中野に住むことで、その豊かな文化を日常的に感じることができ、まるで毎日が新しい発見の連続であるかのような生活が展開されることでしょう。
この物件はただの居住空間ではありません。プレミアムキューブ新中野 1階 20.13㎡は、人生の新たな章を紡ぐための特別なステージです。ぜひ、この物件であなたの人生の物語を描いてみませんか?新しい体験が待っています。あなたの暮らしが、ここから始まります。
北西の方向に広がる窓からは、淡い…プレミアムキューブ新中野 1階 20.13㎡。あなたの新たな生活の舞台がここにございます。マンションがまるで心優しい友人のように、あなたを温かく迎え入れてくれる様子を想像してください。古き良き文化と新しい風が交差する中野の街。その中心に佇むプレミアムキューブ新中野は、まるで人々の思い出を包み込む柔らかいシルクの布のように、あなたの日常を彩ってくれることでしょう。
北西の方向に広がる窓からは、淡い陽光が差し込み、心地よい影と光が相まって、まるで自然が描く絵画のような情景が生まれます。20.13㎡の空間には、洋室5.3帖の華やかな舞台が広がり、あなたの生活という名の物語が始まります。エレガントなインテリアは、心の奥深くに響く優雅なメロディを奏で、日常の生活を特別なものへと変えてくれます。
新中野駅から徒歩1分という立地は、まるで時間を操る魔法の道具のよう。仕事や遊び、さらには家族や友人との交流に至るまで、すぐ目の前に広がる便利な世界は、あなたの自由を引き立てます。プレミアムキューブ新中野の中に足を踏み入れると、まるで新しい章が開かれるように感じることでしょう。
また、TVモニターホンやオートロック完備の安全性は、まるで温かい家庭のようにあなたを包み込むもので、安心感をもたらします。宅配ボックスは、待ち望んだ品々が届く瞬間を楽しむための舞台装置。日々の生活に小さな幸せをもたらす存在です。敷地内のゴミ置場や駐輪場も、生活の煩わしさを軽減してくれる頼もしい仲間となります。
想像してみてください。朝起きて、優しい光に照らされながら、香ばしいコーヒーの匂いに包まれる瞬間。薄明るい洋室5.3帖で、心地よい空気と共に、ゆっくりと過ごす朝食のひとときは、まるで映画のワンシーンのようです。プレミアムキューブ新中野は、そのような瞬間を大切にする方にふさわしい場所なのです。
周辺には多くの文化や歴史が息づいており、中野はアートや音楽の発信地としても知られています。プレミアムキューブ新中野に住むことで、その豊かな文化を日常的に感じることができ、まるで毎日が新しい発見の連続であるかのような生活が展開されることでしょう。
この物件はただの居住空間ではありません。プレミアムキューブ新中野 1階 20.13㎡は、人生の新たな章を紡ぐための特別なステージです。ぜひ、この物件であなたの人生の物語を描いてみませんか?新しい体験が待っています。あなたの暮らしが、ここから始まります。
バイブルスコア
バイブルスコア: 48.3
条件のいい物件です、引っ越しが2か月以内の場合は仮申し込みを検討すべき物件です。
※バイブルスコア詳細はこちら
バイブルスコアとは独自のAI機械学習技術を利用した物件評価システムで、物件のおすすめ度を示します。最高得点は100点で、スコアが高いほど、よりおすすめの物件と評価されています。
写真
現在写真が登録されていません契約条件
| 賃料 | 予想金額:81,000〜101,000円程度 | 管理費 | 予想金額:13,000〜17,000円程度 |
| 礼金 | 非公開(アーカイブ) | 敷金 | 非公開(アーカイブ) |
| フリーレント | なし | 平米数 | 20.13㎡ |
| 間取り | 1K | 大型収納 | なし |
| 契約期間 | 2年 | 方角 | 北西 |
| 更新料 | 1ヶ月 | 契約形態 | 普通賃貸借契約 |
| 取引態様 | 媒介 | 内見状況 | 入居中 |
| 入居時期 | 入居中 | SOHO・事務所 | 不可 |
| ペット | 可 | 間取り内訳 | 洋室5.3帖 |
| キャンペーン情報・備考 | 本情報は賃料改定交渉の資料作成、収益物件の利回り試算、周辺エリアや最寄り駅の坪単価分析、次回募集開始時期の予測などにご活用いただけます。 | ||
※「どの不動産に頼めばいいのか分からない」「信頼できる営業マンの話を聞きたい」「一番親切な会社と契約したい」とお悩みの方におすすめなのが「高級賃貸バイブル」です。
高級賃貸バイブルは業界10年以上の熟練スタッフ群がお客様ファーストで対応します。
下記ボタンから、まずは無料でご相談下さい。
※内覧をご希望の際には、どうぞ物件のエントランス前にてお待ち合わせくださいませ。ご内覧後は、同じ場所でお別れとさせていただきます。お客様のご都合に合わせたスムーズなご案内を心がけておりますので、ご質問等がございましたら何なりとお申し付けください。 物件概要
| 物件名 |
| 築年月 |
|
|---|---|---|---|
| 所在地 | |||
| 交通 | |||
| 総戸数 |
| 総階数 |
|
| 構造 |
| ||
地図
物件までの道のりは、「拡大地図を表示」をクリックしてナビ機能をご利用ください。
部屋設備








建物設備

TVモニターホン

エレベーター

オートロック

宅配ボックス

敷地内ゴミ置場

管理人

駐輪場
プレミアムキューブ新中野の現在募集中のお部屋
- No rooms found for this property.
