
| 賃料 | 予想金額:144,000〜164,000円程度 | 管理費 | 予想金額:10,000〜14,000円程度 |
| 礼金/敷金 | 非公開(アーカイブ) | 平米数 | 40.04㎡ |
| 初期費用概算(参考) | 目安:461,000〜561,000 円 | みなし賃料(月額・参考) | 163,438〜183,438 円 |
| 備考 | 本ページは過去募集のアーカイブです。表示の金額は周辺相場・過去募集を踏まえた参考レンジであり、実際の契約金額・条件ではありません。 | ||
※上記みなし賃料(月額)は仲介手数料割引・無料&キャッシュバックを加味した高級賃貸バイブル限定の金額です。一般的なみなし賃料とは異なります。
【建物ページ】グリーンパーク東日本橋レジデンス2の詳細・最新空室はこちら▶▶選ばれる理由
仲介手数料無料・キャンペーン情報(毎月15名様限定)
〇仲介手数料割引キャンペーン
グリーンパーク東日本橋レジデンス2 803の口コミ・レビュー
グリーンパーク東日本橋レジデンス2 803。この名前が、まるで無限の可能性を秘めた宝石のように耳に心地よく響きます。また、この803号室は、あなたを迎えるための優雅な舞台であり、心の奥深くに焼き付くようなストーリーを紡ぎ出します。
南東の窓から差し込む光は、まるで朝の光があなたを優しく包み込むよう。美しい光のカーテンが、リビングダイニングキッチン9.5帖の広々とした空間に織りなすシルエットは、日…グリーンパーク東日本橋レジデンス2 803。この名前が、まるで無限の可能性を秘めた宝石のように耳に心地よく響きます。また、この803号室は、あなたを迎えるための優雅な舞台であり、心の奥深くに焼き付くようなストーリーを紡ぎ出します。
南東の窓から差し込む光は、まるで朝の光があなたを優しく包み込むよう。美しい光のカーテンが、リビングダイニングキッチン9.5帖の広々とした空間に織りなすシルエットは、日々の暮らしを一段と華やかに彩ります。あなたがここに身を置くと、朝焼けの柔らかな色合いが、心に希望を与え、リズミカルな一日を予感させてくれることでしょう。
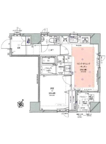
間取りは1LDKで、洋室5.8帖はあなたのプライベートな隠れ家。そこは、穏やかな音楽に包まれながら、心の平安を見つけるための場所です。お気に入りの本を片手に、窓辺で流れる風を感じながら、無邪気に過ぎ去る時間を味わう贅沢。熱いコーヒーの香りが、まるで心の中にパラダイスを描き出します。
このグリーンパーク東日本橋レジデンス2 803では、あなたの生活が映画のワンシーンのように展開します。友人を招いてのディナーも、ここでは一層特別なものになるでしょう。デザイナーズの洗練された内装が、会話を弾ませ、味わい深い料理に華を添えます。そして、宅配ボックスがあなたの生活をさらに便利にしてくれる、まるで忠実な助手のような存在です。忙しい日々でも、新鮮な食材や贈り物が、この場所で待っていてくれるのです。
また、エレベーターやオートロックといった設備は、あなたの大切な時間を無駄にすることなく、安心感を与えてくれます。優れた管理人が見守るこの空間は、あなたに安全を感じさせるオアシスとなるでしょう。
東日本橋という地名には、歴史と文化が息づいています。かつて商人たちが集い、活気に満ちた街が広がっていたその場所に、このグリーンパーク東日本橋レジデンス2 803は存在します。周囲には、隠れ家的なカフェやアートギャラリーが点在し、心豊かなひとときを過ごすことができるのです。文化の香りが漂うこの街で、あなたもまた新しい人生の一ページを刻むことができるでしょう。
私たちが日々体験する生活の一瞬一瞬は、まるで絵画のように色彩豊かで、息を呑む美しさを持っています。そして、このグリーンパーク東日本橋レジデンス2 803は、その瞬間をより美しいものに演出します。ここでの生活は、あなたを新しい自分へと導いてくれる、特別な魔法をかけることでしょう。さあ、この不思議な住まいに足を踏み入れ、あなたの物語を始めてみませんか。
南東の窓から差し込む光は、まるで朝の光があなたを優しく包み込むよう。美しい光のカーテンが、リビングダイニングキッチン9.5帖の広々とした空間に織りなすシルエットは、日…グリーンパーク東日本橋レジデンス2 803。この名前が、まるで無限の可能性を秘めた宝石のように耳に心地よく響きます。また、この803号室は、あなたを迎えるための優雅な舞台であり、心の奥深くに焼き付くようなストーリーを紡ぎ出します。
南東の窓から差し込む光は、まるで朝の光があなたを優しく包み込むよう。美しい光のカーテンが、リビングダイニングキッチン9.5帖の広々とした空間に織りなすシルエットは、日々の暮らしを一段と華やかに彩ります。あなたがここに身を置くと、朝焼けの柔らかな色合いが、心に希望を与え、リズミカルな一日を予感させてくれることでしょう。
間取りは1LDKで、洋室5.8帖はあなたのプライベートな隠れ家。そこは、穏やかな音楽に包まれながら、心の平安を見つけるための場所です。お気に入りの本を片手に、窓辺で流れる風を感じながら、無邪気に過ぎ去る時間を味わう贅沢。熱いコーヒーの香りが、まるで心の中にパラダイスを描き出します。
このグリーンパーク東日本橋レジデンス2 803では、あなたの生活が映画のワンシーンのように展開します。友人を招いてのディナーも、ここでは一層特別なものになるでしょう。デザイナーズの洗練された内装が、会話を弾ませ、味わい深い料理に華を添えます。そして、宅配ボックスがあなたの生活をさらに便利にしてくれる、まるで忠実な助手のような存在です。忙しい日々でも、新鮮な食材や贈り物が、この場所で待っていてくれるのです。
また、エレベーターやオートロックといった設備は、あなたの大切な時間を無駄にすることなく、安心感を与えてくれます。優れた管理人が見守るこの空間は、あなたに安全を感じさせるオアシスとなるでしょう。
東日本橋という地名には、歴史と文化が息づいています。かつて商人たちが集い、活気に満ちた街が広がっていたその場所に、このグリーンパーク東日本橋レジデンス2 803は存在します。周囲には、隠れ家的なカフェやアートギャラリーが点在し、心豊かなひとときを過ごすことができるのです。文化の香りが漂うこの街で、あなたもまた新しい人生の一ページを刻むことができるでしょう。
私たちが日々体験する生活の一瞬一瞬は、まるで絵画のように色彩豊かで、息を呑む美しさを持っています。そして、このグリーンパーク東日本橋レジデンス2 803は、その瞬間をより美しいものに演出します。ここでの生活は、あなたを新しい自分へと導いてくれる、特別な魔法をかけることでしょう。さあ、この不思議な住まいに足を踏み入れ、あなたの物語を始めてみませんか。
バイブルスコア
バイブルスコア: 33.1
平均的なスコアです。
※バイブルスコア詳細はこちら
バイブルスコアとは独自のAI機械学習技術を利用した物件評価システムで、物件のおすすめ度を示します。最高得点は100点で、スコアが高いほど、よりおすすめの物件と評価されています。
写真
契約条件
| 賃料 | 予想金額:144,000〜164,000円程度 | 管理費 | 予想金額:10,000〜14,000円程度 |
| 礼金 | 非公開(アーカイブ) | 敷金 | 非公開(アーカイブ) |
| フリーレント | なし | 平米数 | 40.04㎡ |
| 間取り | 1LDK | 大型収納 | なし |
| 契約期間 | 2年 | 方角 | 南東 |
| 更新料 | 1ヶ月 | 契約形態 | 普通賃貸借契約 |
| 取引態様 | 媒介 | 内見状況 | 入居中 |
| 入居時期 | 入居中 | SOHO・事務所 | 不可 |
| ペット | 不可 | 間取り内訳 | 洋:5.8 LDK:9.5 |
| キャンペーン情報・備考 | 本情報は賃料改定交渉の資料作成、収益物件の利回り試算、周辺エリアや最寄り駅の坪単価分析、次回募集開始時期の予測などにご活用いただけます。 | ||
※「どの不動産に頼めばいいのか分からない」「信頼できる営業マンの話を聞きたい」「一番親切な会社と契約したい」とお悩みの方におすすめなのが「高級賃貸バイブル」です。
高級賃貸バイブルは業界10年以上の熟練スタッフ群がお客様ファーストで対応します。
下記ボタンから、まずは無料でご相談下さい。
※内覧をご希望の際には、どうぞ物件のエントランス前にてお待ち合わせくださいませ。ご内覧後は、同じ場所でお別れとさせていただきます。お客様のご都合に合わせたスムーズなご案内を心がけておりますので、ご質問等がございましたら何なりとお申し付けください。 物件概要
| 物件名 |
| 築年月 |
|
|---|---|---|---|
| 所在地 | |||
| 交通 | |||
| 総戸数 |
| 総階数 |
|
| 構造 |
| ||
地図
物件までの道のりは、「拡大地図を表示」をクリックしてナビ機能をご利用ください。
部屋設備














建物設備

TVモニターホン

エレベーター

オートロック

宅配ボックス

敷地内ゴミ置場

管理人

駐輪場
グリーンパーク東日本橋レジデンス2の現在募集中のお部屋
- No rooms found for this property.



























