
| 賃料 | 予想金額:167,000〜187,000円程度 | 管理費 | 予想金額:13,000〜17,000円程度 |
| 礼金/敷金 | 非公開(アーカイブ) | 平米数 | 52.66㎡ |
| 初期費用概算(参考) | 目安:506,500〜606,500 円 | みなし賃料(月額・参考) | 189,906〜209,906 円 |
| 備考 | 本ページは過去募集のアーカイブです。表示の金額は周辺相場・過去募集を踏まえた参考レンジであり、実際の契約金額・条件ではありません。 | ||
※上記みなし賃料(月額)は仲介手数料割引・無料&キャッシュバックを加味した高級賃貸バイブル限定の金額です。一般的なみなし賃料とは異なります。
【建物ページ】ベラカーサ南池袋の詳細・最新空室はこちら▶▶選ばれる理由
仲介手数料無料・キャンペーン情報(毎月15名様限定)
〇仲介手数料割引キャンペーン
ベラカーサ南池袋 1604の口コミ・レビュー
ベラカーサ南池袋 1604、あなたの新たな生活の舞台がここにあります。静かな朝の光が東の窓からふんわりと差し込み、心地よい風がカーテンを軽やかに揺らします。この物件は、ただの住まいではありません。まるで心の拠り所が一つの存在としてあなたを迎え入れるかのように、温かく包み込んでくれます。
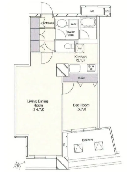
この美しい1LDKは、専有面積52.66㎡の中に、実用的な空間と居心地の良さを見事に収めています。洋室5.7帖…ベラカーサ南池袋 1604、あなたの新たな生活の舞台がここにあります。静かな朝の光が東の窓からふんわりと差し込み、心地よい風がカーテンを軽やかに揺らします。この物件は、ただの住まいではありません。まるで心の拠り所が一つの存在としてあなたを迎え入れるかのように、温かく包み込んでくれます。
この美しい1LDKは、専有面積52.66㎡の中に、実用的な空間と居心地の良さを見事に収めています。洋室5.7帖は、柔らかな色合いの壁と天然素材のフローリングが、まるで絵画のキャンバスのようにあなたの生活を彩ります。そこには、ゆったりとした時間が流れ、朝のコーヒーを楽しむひとときや、読書にふける贅沢な午後が待っています。
リビングダイニングは14.7帖の広さを誇り、開放感にあふれ、様々なアートの展示や、心を響かせる音楽を楽しむことができます。お気に入りのソファに身を沈め、窓からは緑豊かな風景が望めるこの空間は、日常を特別なものに変えてくれることでしょう。キッチンは3.1帖の コンパクトなスペースながら、あなたの創造力を引き出す機能的なデザインが施されています。大切な人との夕食の準備も、まるで高級レストランのシェフのような気分で楽しむことができるのです。
ベラカーサ南池袋 1604は、その立地も魅力的です。東京メトロ副都心線の雑司が谷駅から徒歩6分というアクセスの良さは、忙しい毎日を少しでも軽やかにしてくれます。周囲には、歴史ある神社や美術館が点在し、散歩をするたびに心が豊かになります。季節の移り変わりを感じながら、文化の香りを嗅ぎ取ることができるこの場所は、まるであなたの生活をアートの一部にしてくれるようです。
セキュリティ面でも非常に安心。オートロック、防犯カメラ、管理人の見守りが整ったこの住まいは、あなたのプライベートな世界をしっかりと守ってくれます。宅配ボックスや駐輪場、駐車場も完備されており、何かと便利な毎日のサポートをしてくれます。おしゃれなエレベーターも、あなたの新たな日常への第一歩を優雅に運んでくれることでしょう。
夜には、柔らかな灯りの中で、家族や友人とともに過ごすひとときが待っています。外の世界の喧騒を忘れ、心からくつろげるこの空間は、まるで映画のワンシーンのように、思い出のシーンを生み出す特別な場所になることでしょう。あなたの人生という物語を、ベラカーサ南池袋 1604で紡いでみませんか。優雅な日常が、あなたを待っています。
この美しい1LDKは、専有面積52.66㎡の中に、実用的な空間と居心地の良さを見事に収めています。洋室5.7帖…ベラカーサ南池袋 1604、あなたの新たな生活の舞台がここにあります。静かな朝の光が東の窓からふんわりと差し込み、心地よい風がカーテンを軽やかに揺らします。この物件は、ただの住まいではありません。まるで心の拠り所が一つの存在としてあなたを迎え入れるかのように、温かく包み込んでくれます。
この美しい1LDKは、専有面積52.66㎡の中に、実用的な空間と居心地の良さを見事に収めています。洋室5.7帖は、柔らかな色合いの壁と天然素材のフローリングが、まるで絵画のキャンバスのようにあなたの生活を彩ります。そこには、ゆったりとした時間が流れ、朝のコーヒーを楽しむひとときや、読書にふける贅沢な午後が待っています。
リビングダイニングは14.7帖の広さを誇り、開放感にあふれ、様々なアートの展示や、心を響かせる音楽を楽しむことができます。お気に入りのソファに身を沈め、窓からは緑豊かな風景が望めるこの空間は、日常を特別なものに変えてくれることでしょう。キッチンは3.1帖の コンパクトなスペースながら、あなたの創造力を引き出す機能的なデザインが施されています。大切な人との夕食の準備も、まるで高級レストランのシェフのような気分で楽しむことができるのです。
ベラカーサ南池袋 1604は、その立地も魅力的です。東京メトロ副都心線の雑司が谷駅から徒歩6分というアクセスの良さは、忙しい毎日を少しでも軽やかにしてくれます。周囲には、歴史ある神社や美術館が点在し、散歩をするたびに心が豊かになります。季節の移り変わりを感じながら、文化の香りを嗅ぎ取ることができるこの場所は、まるであなたの生活をアートの一部にしてくれるようです。
セキュリティ面でも非常に安心。オートロック、防犯カメラ、管理人の見守りが整ったこの住まいは、あなたのプライベートな世界をしっかりと守ってくれます。宅配ボックスや駐輪場、駐車場も完備されており、何かと便利な毎日のサポートをしてくれます。おしゃれなエレベーターも、あなたの新たな日常への第一歩を優雅に運んでくれることでしょう。
夜には、柔らかな灯りの中で、家族や友人とともに過ごすひとときが待っています。外の世界の喧騒を忘れ、心からくつろげるこの空間は、まるで映画のワンシーンのように、思い出のシーンを生み出す特別な場所になることでしょう。あなたの人生という物語を、ベラカーサ南池袋 1604で紡いでみませんか。優雅な日常が、あなたを待っています。
バイブルスコア
バイブルスコア: 26.1
平均的なスコアです。
※バイブルスコア詳細はこちら
バイブルスコアとは独自のAI機械学習技術を利用した物件評価システムで、物件のおすすめ度を示します。最高得点は100点で、スコアが高いほど、よりおすすめの物件と評価されています。
写真
契約条件
| 賃料 | 予想金額:167,000〜187,000円程度 | 管理費 | 予想金額:13,000〜17,000円程度 |
| 礼金 | 非公開(アーカイブ) | 敷金 | 非公開(アーカイブ) |
| フリーレント | なし | 平米数 | 52.66㎡ |
| 間取り | 1LDK | 大型収納 | |
| 契約期間 |
| 方角 | 東 |
| 更新料 | 契約形態 | 普通賃貸借契約 | |
| 取引態様 | 媒介 | 内見状況 | 入居中 |
| 入居時期 | 入居中 | SOHO・事務所 | |
| ペット | 間取り内訳 | 洋:5.7 LD:14.7 K:3.1 | |
| キャンペーン情報・備考 | 本情報は賃料改定交渉の資料作成、収益物件の利回り試算、周辺エリアや最寄り駅の坪単価分析、次回募集開始時期の予測などにご活用いただけます。 | ||
※「どの不動産に頼めばいいのか分からない」「信頼できる営業マンの話を聞きたい」「一番親切な会社と契約したい」とお悩みの方におすすめなのが「高級賃貸バイブル」です。
高級賃貸バイブルは業界10年以上の熟練スタッフ群がお客様ファーストで対応します。
下記ボタンから、まずは無料でご相談下さい。
※内覧をご希望の際には、どうぞ物件のエントランス前にてお待ち合わせくださいませ。ご内覧後は、同じ場所でお別れとさせていただきます。お客様のご都合に合わせたスムーズなご案内を心がけておりますので、ご質問等がございましたら何なりとお申し付けください。 物件概要
| 物件名 |
| 築年月 |
|
|---|---|---|---|
| 所在地 | |||
| 交通 | |||
| 総戸数 |
| 総階数 |
|
| 構造 |
| ||
地図
物件までの道のりは、「拡大地図を表示」をクリックしてナビ機能をご利用ください。
部屋設備















建物設備

TVモニターホン

エレベーター

オートロック

宅配ボックス

敷地内ゴミ置場

管理人

駐車場平置き

駐車場機械式

駐輪場
ベラカーサ南池袋の現在募集中のお部屋
- No rooms found for this property.


















