
| 賃料 | 予想金額:117,000〜137,000円程度 | 管理費 | 予想金額:8,000〜12,000円程度 |
| 礼金/敷金 | 非公開(アーカイブ) | 平米数 | 28.79㎡ |
| 初期費用概算(参考) | 目安:501,000〜601,000 円 | みなし賃料(月額・参考) | 135,833〜155,833 円 |
| 備考 | 本ページは過去募集のアーカイブです。表示の金額は周辺相場・過去募集を踏まえた参考レンジであり、実際の契約金額・条件ではありません。 | ||
※上記みなし賃料(月額)は仲介手数料割引・無料&キャッシュバックを加味した高級賃貸バイブル限定の金額です。一般的なみなし賃料とは異なります。
【建物ページ】Park Liturin Sangubashiの詳細・最新空室はこちら▶▶選ばれる理由
仲介手数料無料・キャンペーン情報(毎月15名様限定)
〇仲介手数料割引キャンペーン
Park Liturin Sangubashi 204の口コミ・レビュー
Park Liturin Sangubashi 204は、都市の喧騒を背にしながらも、日常の中に小さな非日常を感じることができる贅沢な1DKです。この素晴らしい住まいは、東京都渋谷区代々木5-55-12に位置し、南向きの窓からは心躍る陽光が優しく差し込み、まるで毎日が新しい冒険の始まりのようです。専有面積28.79㎡の枠の中に、無限の可能性が広がっています。
想像してみてください。家のドアを開け…Park Liturin Sangubashi 204は、都市の喧騒を背にしながらも、日常の中に小さな非日常を感じることができる贅沢な1DKです。この素晴らしい住まいは、東京都渋谷区代々木5-55-12に位置し、南向きの窓からは心躍る陽光が優しく差し込み、まるで毎日が新しい冒険の始まりのようです。専有面積28.79㎡の枠の中に、無限の可能性が広がっています。
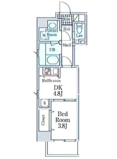
想像してみてください。家のドアを開けた瞬間、心地よい空間があなたを包み込みます。洋室は3.8帖、DKは4.8帖の広さを誇り、どちらも洗練されたデザインが施されています。冷たい冬の日、ふわりとしたカーペットの感触を足の裏で感じながら、目の前に広がる空間で温かい飲み物を味わう瞬間。あなたの美しい生活が、すでに始まっていることを実感することでしょう。
この素敵な物件には、現代的な設備も整っています。TVモニターホンは、あなたの大切なプライバシーを守る守護者のように、静かに見守ってくれます。オートロックのエントランスは、まるであなたの人生における特別な秘密の入り口のように、安心感をもたらしてくれるのです。エレベーターでの短い上昇は、まるで空に飛び立つような感覚をもたらし、心躍る期待を高めます。
そして、近くには小田急電鉄小田原線の参宮橋駅があり、たった2分の徒歩でアクセス可能。都会の中心地でありながら、日常生活の便利さと、穏やかな自然環境が絶妙に調和しています。周囲には歴史的な街並みが広がり、それに息づく文化や芸術が、暮らしに彩りを添えるのです。散歩をしながら四季の移ろいを感じ、響き渡る風の音に耳を澄ませば、心が豊かに膨らむことでしょう。
また、駐車場が平置きや機械式で整備されているため、車での移動もスムーズです。バイク置場や駐輪場も完備されており、あらゆる移動手段に対応する心遣いが感じられます。宅配ボックスと敷地内のゴミ置場も、忙しい現代人にとっての心強い味方です。
Park Liturin Sangubashi 204は、ただの住まいではなく、あなた自身の人生に色を添える舞台です。日常の中に映画のワンシーンのような美しさを見出しながら、心豊かに、そして幸福に暮らすことができる場所。心の奥深くに響くその魅力は、住む人の手の中でいかようにも演出されることでしょう。この空間で過ごす時間は、まるで今まで味わったことのない特別な物語の始まりとなるのです。あなたの新しい物語が、ここから始まります。
想像してみてください。家のドアを開け…Park Liturin Sangubashi 204は、都市の喧騒を背にしながらも、日常の中に小さな非日常を感じることができる贅沢な1DKです。この素晴らしい住まいは、東京都渋谷区代々木5-55-12に位置し、南向きの窓からは心躍る陽光が優しく差し込み、まるで毎日が新しい冒険の始まりのようです。専有面積28.79㎡の枠の中に、無限の可能性が広がっています。
想像してみてください。家のドアを開けた瞬間、心地よい空間があなたを包み込みます。洋室は3.8帖、DKは4.8帖の広さを誇り、どちらも洗練されたデザインが施されています。冷たい冬の日、ふわりとしたカーペットの感触を足の裏で感じながら、目の前に広がる空間で温かい飲み物を味わう瞬間。あなたの美しい生活が、すでに始まっていることを実感することでしょう。
この素敵な物件には、現代的な設備も整っています。TVモニターホンは、あなたの大切なプライバシーを守る守護者のように、静かに見守ってくれます。オートロックのエントランスは、まるであなたの人生における特別な秘密の入り口のように、安心感をもたらしてくれるのです。エレベーターでの短い上昇は、まるで空に飛び立つような感覚をもたらし、心躍る期待を高めます。
そして、近くには小田急電鉄小田原線の参宮橋駅があり、たった2分の徒歩でアクセス可能。都会の中心地でありながら、日常生活の便利さと、穏やかな自然環境が絶妙に調和しています。周囲には歴史的な街並みが広がり、それに息づく文化や芸術が、暮らしに彩りを添えるのです。散歩をしながら四季の移ろいを感じ、響き渡る風の音に耳を澄ませば、心が豊かに膨らむことでしょう。
また、駐車場が平置きや機械式で整備されているため、車での移動もスムーズです。バイク置場や駐輪場も完備されており、あらゆる移動手段に対応する心遣いが感じられます。宅配ボックスと敷地内のゴミ置場も、忙しい現代人にとっての心強い味方です。
Park Liturin Sangubashi 204は、ただの住まいではなく、あなた自身の人生に色を添える舞台です。日常の中に映画のワンシーンのような美しさを見出しながら、心豊かに、そして幸福に暮らすことができる場所。心の奥深くに響くその魅力は、住む人の手の中でいかようにも演出されることでしょう。この空間で過ごす時間は、まるで今まで味わったことのない特別な物語の始まりとなるのです。あなたの新しい物語が、ここから始まります。
バイブルスコア
バイブルスコア: 38.2
平均的なスコアです。
※バイブルスコア詳細はこちら
バイブルスコアとは独自のAI機械学習技術を利用した物件評価システムで、物件のおすすめ度を示します。最高得点は100点で、スコアが高いほど、よりおすすめの物件と評価されています。
写真
契約条件
| 賃料 | 予想金額:117,000〜137,000円程度 | 管理費 | 予想金額:8,000〜12,000円程度 |
| 礼金 | 非公開(アーカイブ) | 敷金 | 非公開(アーカイブ) |
| フリーレント | なし | 平米数 | 28.79㎡ |
| 間取り | 1DK | 大型収納 | |
| 契約期間 |
| 方角 | 南 |
| 更新料 | 契約形態 | 普通賃貸借契約 | |
| 取引態様 | 媒介 | 内見状況 | 入居中 |
| 入居時期 | 入居中 | SOHO・事務所 | |
| ペット | ペット可 | 間取り内訳 | 洋:3.8 DK:4.8 |
| キャンペーン情報・備考 | 本情報は賃料改定交渉の資料作成、収益物件の利回り試算、周辺エリアや最寄り駅の坪単価分析、次回募集開始時期の予測などにご活用いただけます。 | ||
※「どの不動産に頼めばいいのか分からない」「信頼できる営業マンの話を聞きたい」「一番親切な会社と契約したい」とお悩みの方におすすめなのが「高級賃貸バイブル」です。
高級賃貸バイブルは業界10年以上の熟練スタッフ群がお客様ファーストで対応します。
下記ボタンから、まずは無料でご相談下さい。
※内覧をご希望の際には、どうぞ物件のエントランス前にてお待ち合わせくださいませ。ご内覧後は、同じ場所でお別れとさせていただきます。お客様のご都合に合わせたスムーズなご案内を心がけておりますので、ご質問等がございましたら何なりとお申し付けください。 物件概要
| 物件名 |
| 築年月 |
|
|---|---|---|---|
| 所在地 | |||
| 交通 | |||
| 総戸数 |
| 総階数 |
|
| 構造 |
| ||
地図
物件までの道のりは、「拡大地図を表示」をクリックしてナビ機能をご利用ください。
部屋設備















建物設備

TVモニターホン

エレベーター

オートロック

バイク置場

宅配ボックス

敷地内ゴミ置場

管理人

駐車場平置き

駐車場機械式

駐輪場
Park Liturin Sangubashiの現在募集中のお部屋
- No rooms found for this property.

