
| 賃料 | 予想金額:250,000〜270,000円程度 | 管理費 | 予想金額:8,000〜12,000円程度 |
| 礼金/敷金 | 非公開(アーカイブ) | 平米数 | 49.03㎡ |
| 初期費用概算(参考) | 目安:1,118,080〜1,218,080 円 | みなし賃料(月額・参考) | 278,918〜298,918 円 |
| 備考 | 本ページは過去募集のアーカイブです。表示の金額は周辺相場・過去募集を踏まえた参考レンジであり、実際の契約金額・条件ではありません。 | ||
※上記みなし賃料(月額)は仲介手数料割引・無料&キャッシュバックを加味した高級賃貸バイブル限定の金額です。一般的なみなし賃料とは異なります。
【建物ページ】オープンレジデンシア恵比寿の詳細・最新空室はこちら▶▶選ばれる理由
仲介手数料無料・キャンペーン情報(毎月15名様限定)
〇仲介手数料割引キャンペーン
オープンレジデンシア恵比寿 4階 49.03㎡の口コミ・レビュー
オープンレジデンシア恵比寿 4階 49.03㎡。この美しい物件は、まるで都会のダイヤモンドのように、あなたを待ち侘びています。新たな住み処を探しているあなたに、オープンレジデンシア恵比寿が物語の舞台を提供します。この空間は、時代を超えたエレガンスと現代的な利便性が融合した極上のアトリエです。
まず、4階に位置するこの住まいは、下界の喧騒から少し離れ、心を癒してくれる高度を有しています。窓から差し…オープンレジデンシア恵比寿 4階 49.03㎡。この美しい物件は、まるで都会のダイヤモンドのように、あなたを待ち侘びています。新たな住み処を探しているあなたに、オープンレジデンシア恵比寿が物語の舞台を提供します。この空間は、時代を超えたエレガンスと現代的な利便性が融合した極上のアトリエです。
まず、4階に位置するこの住まいは、下界の喧騒から少し離れ、心を癒してくれる高度を有しています。窓から差し込む柔らかな光は、朝の一杯のコーヒーをより一層美味しくしてくれるでしょう。日差しが絡みつくように入る中、洋室6.3帖のスペースは、あなたの情熱を育む場所となります。心地よい風を感じながら、日々の生活を映画のワンシーンのように彩りましょう。
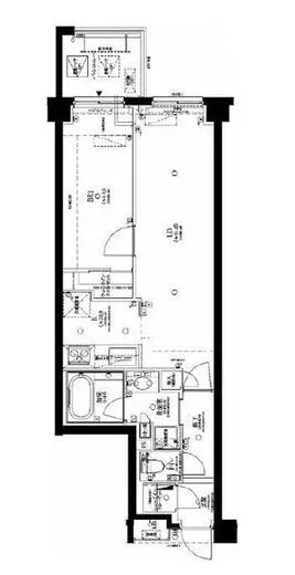
この部屋の間取りは、1LDK+WIC+SICという贅沢な設計が施されています。広がる空間には、生活のすべてが直感的に配置され、まるで画家がキャンバスに描くように、あなたのライフスタイルを象徴する場所となることでしょう。ウィークエンドには、おしゃれなディナーを楽しむために、心を込めた料理ができるキッチンがあなたを待っています。目の前に並ぶ新鮮な食材の香りが、食欲をそそります。
周囲の恵比寿は、文化と歴史の豊かさが息づく場所です。美術館やギャラリーを散策していると、心の奥底を揺さぶるようなアートと出会うことができるでしょう。この地で過ごす時間が、あなたの感性をさらに豊かにしてくれます。また、近隣には洗練されたカフェやレストランが立ち並び、毎日の食事が特別な体験に変わります。あなたの五感を刺激するこのエリアで、生活を楽しみながら、心の栄養を吸収していくことができるのです。
オープンレジデンシア恵比寿の存在は、あなたを包み込む優雅なシェルターのようです。24時間管理の安心感や、オートロック、宅配ボックスといった充実した設備が、日常をサポートし、暮らしにさらなる彩りを添えます。それはまるで、贅沢な宝石を身にまといたいという願望を叶えてくれるかのよう。エレベーターでの上昇は、まるで人生の中での新しいステージへ向かう瞬間のように心躍る体験です。
オープンレジデンシア恵比寿 4階 49.03㎡での生活に身を委ねることで、あなたのストーリーが始まります。息をのむような美しい景色に包まれ、日常の中に非日常を見つけながら、贅沢な生活を手に入れてください。あなたの新しい家が、あなたの人生をより豊かにしてくれることでしょう。
まず、4階に位置するこの住まいは、下界の喧騒から少し離れ、心を癒してくれる高度を有しています。窓から差し…オープンレジデンシア恵比寿 4階 49.03㎡。この美しい物件は、まるで都会のダイヤモンドのように、あなたを待ち侘びています。新たな住み処を探しているあなたに、オープンレジデンシア恵比寿が物語の舞台を提供します。この空間は、時代を超えたエレガンスと現代的な利便性が融合した極上のアトリエです。
まず、4階に位置するこの住まいは、下界の喧騒から少し離れ、心を癒してくれる高度を有しています。窓から差し込む柔らかな光は、朝の一杯のコーヒーをより一層美味しくしてくれるでしょう。日差しが絡みつくように入る中、洋室6.3帖のスペースは、あなたの情熱を育む場所となります。心地よい風を感じながら、日々の生活を映画のワンシーンのように彩りましょう。
この部屋の間取りは、1LDK+WIC+SICという贅沢な設計が施されています。広がる空間には、生活のすべてが直感的に配置され、まるで画家がキャンバスに描くように、あなたのライフスタイルを象徴する場所となることでしょう。ウィークエンドには、おしゃれなディナーを楽しむために、心を込めた料理ができるキッチンがあなたを待っています。目の前に並ぶ新鮮な食材の香りが、食欲をそそります。
周囲の恵比寿は、文化と歴史の豊かさが息づく場所です。美術館やギャラリーを散策していると、心の奥底を揺さぶるようなアートと出会うことができるでしょう。この地で過ごす時間が、あなたの感性をさらに豊かにしてくれます。また、近隣には洗練されたカフェやレストランが立ち並び、毎日の食事が特別な体験に変わります。あなたの五感を刺激するこのエリアで、生活を楽しみながら、心の栄養を吸収していくことができるのです。
オープンレジデンシア恵比寿の存在は、あなたを包み込む優雅なシェルターのようです。24時間管理の安心感や、オートロック、宅配ボックスといった充実した設備が、日常をサポートし、暮らしにさらなる彩りを添えます。それはまるで、贅沢な宝石を身にまといたいという願望を叶えてくれるかのよう。エレベーターでの上昇は、まるで人生の中での新しいステージへ向かう瞬間のように心躍る体験です。
オープンレジデンシア恵比寿 4階 49.03㎡での生活に身を委ねることで、あなたのストーリーが始まります。息をのむような美しい景色に包まれ、日常の中に非日常を見つけながら、贅沢な生活を手に入れてください。あなたの新しい家が、あなたの人生をより豊かにしてくれることでしょう。
バイブルスコア
バイブルスコア: 45.1
条件のいい物件です、引っ越しが2か月以内の場合は仮申し込みを検討すべき物件です。
※バイブルスコア詳細はこちら
バイブルスコアとは独自のAI機械学習技術を利用した物件評価システムで、物件のおすすめ度を示します。最高得点は100点で、スコアが高いほど、よりおすすめの物件と評価されています。
写真
現在写真が登録されていません契約条件
| 賃料 | 予想金額:250,000〜270,000円程度 | 管理費 | 予想金額:8,000〜12,000円程度 |
| 礼金 | 非公開(アーカイブ) | 敷金 | 非公開(アーカイブ) |
| フリーレント | なし | 平米数 | 49.03㎡ |
| 間取り | 1LDK+WIC+SIC | 大型収納 | SIC・WIC |
| 契約期間 | 2年 | 方角 | |
| 更新料 | 1ヶ月 | 契約形態 | 普通賃貸借契約 |
| 取引態様 | 媒介 | 内見状況 | 入居中 |
| 入居時期 | 入居中 | SOHO・事務所 | 不可 |
| ペット | 不可 | 間取り内訳 | 洋室6.3帖 |
| キャンペーン情報・備考 | 本情報は賃料改定交渉の資料作成、収益物件の利回り試算、周辺エリアや最寄り駅の坪単価分析、次回募集開始時期の予測などにご活用いただけます。 | ||
※「どの不動産に頼めばいいのか分からない」「信頼できる営業マンの話を聞きたい」「一番親切な会社と契約したい」とお悩みの方におすすめなのが「高級賃貸バイブル」です。
高級賃貸バイブルは業界10年以上の熟練スタッフ群がお客様ファーストで対応します。
下記ボタンから、まずは無料でご相談下さい。
※内覧をご希望の際には、どうぞ物件のエントランス前にてお待ち合わせくださいませ。ご内覧後は、同じ場所でお別れとさせていただきます。お客様のご都合に合わせたスムーズなご案内を心がけておりますので、ご質問等がございましたら何なりとお申し付けください。 物件概要
| 物件名 |
| 築年月 |
|
|---|---|---|---|
| 所在地 | |||
| 交通 | |||
| 総戸数 |
| 総階数 |
|
| 構造 |
| ||
地図
物件までの道のりは、「拡大地図を表示」をクリックしてナビ機能をご利用ください。
部屋設備










建物設備

24時間管理

TVモニターホン

エレベーター

オートロック

宅配ボックス

敷地内ゴミ置場

管理人

駐輪場
オープンレジデンシア恵比寿の現在募集中のお部屋
- オープンレジデンシア恵比寿 地下1階 57.01㎡ - 間取り: 2LDK - 賃料: 32万円
- オープンレジデンシア恵比寿 3階 59.59㎡ - 間取り: 2LDK - 賃料: 30.8万円
