
| 賃料 | 予想金額:250,000〜270,000円程度 | 管理費 | 予想金額:13,000〜17,000円程度 |
| 礼金/敷金 | 非公開(アーカイブ) | 平米数 | 63.29㎡ |
| 初期費用概算(参考) | 目安:730,500〜830,500 円 | みなし賃料(月額・参考) | 275,844〜295,844 円 |
| 備考 | 本ページは過去募集のアーカイブです。表示の金額は周辺相場・過去募集を踏まえた参考レンジであり、実際の契約金額・条件ではありません。 | ||
※上記みなし賃料(月額)は仲介手数料割引・無料&キャッシュバックを加味した高級賃貸バイブル限定の金額です。一般的なみなし賃料とは異なります。
【建物ページ】プレミスト西池袋の詳細・最新空室はこちら▶▶選ばれる理由
仲介手数料無料・キャンペーン情報(毎月15名様限定)
〇仲介手数料割引キャンペーン
プレミスト西池袋 4階 63.29㎡の口コミ・レビュー
プレミスト西池袋 4階 63.29㎡、その名はまるで気高い貴族のように、あなたを迎え入れる特別な場所です。東京都豊島区西池袋5-17-3という、歴史と文化が交差する街の中心に佇むこの物件は、まるで周囲の喧騒をやんわりと包み込む優雅な王国。南向きの明るい光が優しく差し込み、あなたの心を和ませることでしょう。
4階に位置するプレミスト西池袋は、あなたの毎日を華やかに彩る場面を提供します。エレガントな…プレミスト西池袋 4階 63.29㎡、その名はまるで気高い貴族のように、あなたを迎え入れる特別な場所です。東京都豊島区西池袋5-17-3という、歴史と文化が交差する街の中心に佇むこの物件は、まるで周囲の喧騒をやんわりと包み込む優雅な王国。南向きの明るい光が優しく差し込み、あなたの心を和ませることでしょう。
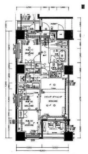
4階に位置するプレミスト西池袋は、あなたの毎日を華やかに彩る場面を提供します。エレガントな空間の中に広がるのは、LDK12.7帖の広々としたリビングダイニング。そこには、家族や友人と共にシェアする瞬間にぴったりの、温かいカフェの香りが漂うことでしょう。朝の静けさの中、焼きたてのパンが食卓を彩り、おしゃべりの声が響く中で、コーヒーの香気がふんわりと漂います。
洋室6帖、洋室5帖、洋室4帖の各部屋は、それぞれの個性を持ちながらも、ひとつの調和を生み出す空間が広がっています。扉を開けるたびに感じる木の温もりと、ふんわりとしたカーテン越しの陽射しが心地よいリズムを奏で、まるでお気に入りの音楽に身を委ねるかのようです。あなたはその居心地の良さに包まれ、思わずホッと深い息をつくことでしょう。
プレミスト西池袋には、最新の設備が整っています。TVモニターホンが優しくあなたを見守り、オートロックのセキュリティが安心を届けます。宅配ボックスは、あなたの大切な荷物をいつでも受け取ることができ、あなたのライフスタイルをより豊かにしてくれるでしょう。駐輪場も完備されており、周囲の街並みを自転車でスムーズに巡る楽しさを与えてくれます。
周辺には歴史が息づいています。西池袋は、昔から文化や芸術の香りが漂う街であり、古書店やアートギャラリーが点在しています。夕暮れ時、アートの世界に浸りながら散歩するひとときは、まるで映画のワンシーンのように心に残ることでしょう。プレミスト西池袋から徒歩3分の地点には東京メトロ副都心線要町駅があり、都心へのアクセスも抜群です。この便利さは、あなたのクリエイティブなインスピレーションを刺激することでしょう。
プレミスト西池袋 4階 63.29㎡、この特別な空間で過ごす毎日は、ただの生活を超え、芸術的な日々に変わるはずです。ぜひとも、この場所があなたの新しい舞台となることを、心よりお待ちしております。あなたの物語がここから始まるのです。
4階に位置するプレミスト西池袋は、あなたの毎日を華やかに彩る場面を提供します。エレガントな…プレミスト西池袋 4階 63.29㎡、その名はまるで気高い貴族のように、あなたを迎え入れる特別な場所です。東京都豊島区西池袋5-17-3という、歴史と文化が交差する街の中心に佇むこの物件は、まるで周囲の喧騒をやんわりと包み込む優雅な王国。南向きの明るい光が優しく差し込み、あなたの心を和ませることでしょう。
4階に位置するプレミスト西池袋は、あなたの毎日を華やかに彩る場面を提供します。エレガントな空間の中に広がるのは、LDK12.7帖の広々としたリビングダイニング。そこには、家族や友人と共にシェアする瞬間にぴったりの、温かいカフェの香りが漂うことでしょう。朝の静けさの中、焼きたてのパンが食卓を彩り、おしゃべりの声が響く中で、コーヒーの香気がふんわりと漂います。
洋室6帖、洋室5帖、洋室4帖の各部屋は、それぞれの個性を持ちながらも、ひとつの調和を生み出す空間が広がっています。扉を開けるたびに感じる木の温もりと、ふんわりとしたカーテン越しの陽射しが心地よいリズムを奏で、まるでお気に入りの音楽に身を委ねるかのようです。あなたはその居心地の良さに包まれ、思わずホッと深い息をつくことでしょう。
プレミスト西池袋には、最新の設備が整っています。TVモニターホンが優しくあなたを見守り、オートロックのセキュリティが安心を届けます。宅配ボックスは、あなたの大切な荷物をいつでも受け取ることができ、あなたのライフスタイルをより豊かにしてくれるでしょう。駐輪場も完備されており、周囲の街並みを自転車でスムーズに巡る楽しさを与えてくれます。
周辺には歴史が息づいています。西池袋は、昔から文化や芸術の香りが漂う街であり、古書店やアートギャラリーが点在しています。夕暮れ時、アートの世界に浸りながら散歩するひとときは、まるで映画のワンシーンのように心に残ることでしょう。プレミスト西池袋から徒歩3分の地点には東京メトロ副都心線要町駅があり、都心へのアクセスも抜群です。この便利さは、あなたのクリエイティブなインスピレーションを刺激することでしょう。
プレミスト西池袋 4階 63.29㎡、この特別な空間で過ごす毎日は、ただの生活を超え、芸術的な日々に変わるはずです。ぜひとも、この場所があなたの新しい舞台となることを、心よりお待ちしております。あなたの物語がここから始まるのです。
バイブルスコア
バイブルスコア: 40.3
条件のいい物件です、引っ越しが2か月以内の場合は仮申し込みを検討すべき物件です。
※バイブルスコア詳細はこちら
バイブルスコアとは独自のAI機械学習技術を利用した物件評価システムで、物件のおすすめ度を示します。最高得点は100点で、スコアが高いほど、よりおすすめの物件と評価されています。
写真
契約条件
| 賃料 | 予想金額:250,000〜270,000円程度 | 管理費 | 予想金額:13,000〜17,000円程度 |
| 礼金 | 非公開(アーカイブ) | 敷金 | 非公開(アーカイブ) |
| フリーレント | なし | 平米数 | 63.29㎡ |
| 間取り | 3LDK | 大型収納 | なし |
| 契約期間 | 2年 | 方角 | 南 |
| 更新料 | 1ヶ月 | 契約形態 | 普通賃貸借契約 |
| 取引態様 | 媒介 | 内見状況 | 入居中 |
| 入居時期 | 入居中 | SOHO・事務所 | 不可 |
| ペット | 可 敷金1ヶ月積み増し | 間取り内訳 | LDK12.7帖 洋室6帖 洋室5帖 洋室4帖 |
| キャンペーン情報・備考 | 本情報は賃料改定交渉の資料作成、収益物件の利回り試算、周辺エリアや最寄り駅の坪単価分析、次回募集開始時期の予測などにご活用いただけます。 | ||
※「どの不動産に頼めばいいのか分からない」「信頼できる営業マンの話を聞きたい」「一番親切な会社と契約したい」とお悩みの方におすすめなのが「高級賃貸バイブル」です。
高級賃貸バイブルは業界10年以上の熟練スタッフ群がお客様ファーストで対応します。
下記ボタンから、まずは無料でご相談下さい。
※内覧をご希望の際には、どうぞ物件のエントランス前にてお待ち合わせくださいませ。ご内覧後は、同じ場所でお別れとさせていただきます。お客様のご都合に合わせたスムーズなご案内を心がけておりますので、ご質問等がございましたら何なりとお申し付けください。 物件概要
| 物件名 |
| 築年月 |
|
|---|---|---|---|
| 所在地 | |||
| 交通 | |||
| 総戸数 | 総階数 |
| |
| 構造 |
| ||
地図
物件までの道のりは、「拡大地図を表示」をクリックしてナビ機能をご利用ください。
部屋設備










建物設備

TVモニターホン

エレベーター

オートロック

宅配ボックス

敷地内ゴミ置場

管理人

駐輪場
プレミスト西池袋の現在募集中のお部屋
- No rooms found for this property.




















