
| 賃料 | 予想金額:180,000〜200,000円程度 | 管理費 | 予想金額:18,000〜22,000円程度 |
| 礼金/敷金 | 非公開(アーカイブ) | 平米数 | 41.11㎡ |
| 初期費用概算(参考) | 目安:563,000〜663,000 円 | みなし賃料(月額・参考) | 208,813〜228,813 円 |
| 備考 | 本ページは過去募集のアーカイブです。表示の金額は周辺相場・過去募集を踏まえた参考レンジであり、実際の契約金額・条件ではありません。 | ||
※上記みなし賃料(月額)は仲介手数料割引・無料&キャッシュバックを加味した高級賃貸バイブル限定の金額です。一般的なみなし賃料とは異なります。
【建物ページ】メインステージ若松河田の詳細・最新空室はこちら▶▶選ばれる理由
仲介手数料無料・キャンペーン情報(毎月15名様限定)
〇仲介手数料割引キャンペーン
メインステージ若松河田 1301の口コミ・レビュー
メインステージ若松河田 1301は、まるで都会の喧騒から解き放たれた隠れ家のように、あなたを待っています。新宿区若松町34-8に位置するこの洗練された空間は、南西の方角から日々の光を浴び、心地よい陽だまりの中で居心地の良い時間を提供します。
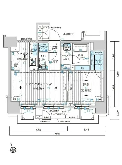
1301というこの特別な部屋は、41.11㎡の広がりを持つ1LDKです。あなたが足を踏み入れると、すぐに感じるのは空気の柔らかさ。贅沢な洋室5.5帖は、自然…メインステージ若松河田 1301は、まるで都会の喧騒から解き放たれた隠れ家のように、あなたを待っています。新宿区若松町34-8に位置するこの洗練された空間は、南西の方角から日々の光を浴び、心地よい陽だまりの中で居心地の良い時間を提供します。
1301というこの特別な部屋は、41.11㎡の広がりを持つ1LDKです。あなたが足を踏み入れると、すぐに感じるのは空気の柔らかさ。贅沢な洋室5.5帖は、自然光が差し込み、心を和ませるイエローの壁に囲まれています。そこは、まるで朝日の中で目を覚ます鳥たちの巣のように、温かく、安心感に包まれています。窓からは、静かな街の景色を望むことができ、時折、風に乗って聞こえてくるのは、葉が擦れ合う優しい音。あなたは、この瞬間が永遠に続いてほしいと願うことでしょう。
リビングダイニング8.5帖は、家族や友人との大切なひとときを生むための舞台です。ここで味わう自家製の料理は、香ばしさと共に広がる食材の香りとともに、心を満たしてくれます。そして、キッチン2.8帖では、あなたのクリエイティブな料理が生まれる瞬間を体験できます。料理の音が弦楽器の調べのように響き、あなたの手元で織り成す味と香りが見事に調和します。
メインステージ若松河田 1301には、上品な生活をサポートするための設備も整っています。TVモニターホンが迎えるその瞬間、安心感に包まれ、エレベーターでの移動はまるで昇竜のように軽やか。オートロックが施されたこの空間は、まるであなたの大切な宝物を守る城のようです。バイク置場や宅配ボックス、さらには敷地内のゴミ置場もあり、日常の利便性も高まります。
ここでは、あなたの生活が映画のワンシーンのように情緒溢れるものになることでしょう。近隣には歴史ある街並みが広がり、古き良き文化に触れることができます。地元の人々と交わす挨拶や、気軽に立ち寄れるカフェの香りが、心に豊かさをもたらします。新宿の喧騒から一歩離れたこのエリアで、あなたの生活はただの毎日ではなく、特別な“ストーリー”となります。
このメインステージ若松河田 1301で、新しい物語を描き始めませんか?豊かな気持ちに包まれた暮らしが、あなたをお待ちしております。あなたの人生の新しい章が、ここから始まります。
1301というこの特別な部屋は、41.11㎡の広がりを持つ1LDKです。あなたが足を踏み入れると、すぐに感じるのは空気の柔らかさ。贅沢な洋室5.5帖は、自然…メインステージ若松河田 1301は、まるで都会の喧騒から解き放たれた隠れ家のように、あなたを待っています。新宿区若松町34-8に位置するこの洗練された空間は、南西の方角から日々の光を浴び、心地よい陽だまりの中で居心地の良い時間を提供します。
1301というこの特別な部屋は、41.11㎡の広がりを持つ1LDKです。あなたが足を踏み入れると、すぐに感じるのは空気の柔らかさ。贅沢な洋室5.5帖は、自然光が差し込み、心を和ませるイエローの壁に囲まれています。そこは、まるで朝日の中で目を覚ます鳥たちの巣のように、温かく、安心感に包まれています。窓からは、静かな街の景色を望むことができ、時折、風に乗って聞こえてくるのは、葉が擦れ合う優しい音。あなたは、この瞬間が永遠に続いてほしいと願うことでしょう。
リビングダイニング8.5帖は、家族や友人との大切なひとときを生むための舞台です。ここで味わう自家製の料理は、香ばしさと共に広がる食材の香りとともに、心を満たしてくれます。そして、キッチン2.8帖では、あなたのクリエイティブな料理が生まれる瞬間を体験できます。料理の音が弦楽器の調べのように響き、あなたの手元で織り成す味と香りが見事に調和します。
メインステージ若松河田 1301には、上品な生活をサポートするための設備も整っています。TVモニターホンが迎えるその瞬間、安心感に包まれ、エレベーターでの移動はまるで昇竜のように軽やか。オートロックが施されたこの空間は、まるであなたの大切な宝物を守る城のようです。バイク置場や宅配ボックス、さらには敷地内のゴミ置場もあり、日常の利便性も高まります。
ここでは、あなたの生活が映画のワンシーンのように情緒溢れるものになることでしょう。近隣には歴史ある街並みが広がり、古き良き文化に触れることができます。地元の人々と交わす挨拶や、気軽に立ち寄れるカフェの香りが、心に豊かさをもたらします。新宿の喧騒から一歩離れたこのエリアで、あなたの生活はただの毎日ではなく、特別な“ストーリー”となります。
このメインステージ若松河田 1301で、新しい物語を描き始めませんか?豊かな気持ちに包まれた暮らしが、あなたをお待ちしております。あなたの人生の新しい章が、ここから始まります。
バイブルスコア
バイブルスコア: 95.1
レア物件です、すぐ仮押さえしましょう!
このお部屋は、現在ご入居中のため空室情報はございません。ただし、将来的に募集が開始される際、バイブルスコアにおいて非常に高い評価が期待されます。特にご興味をお持ちの方は、今のうちにブックマークやお気に入りに登録していただくと、募集開始のお知らせをすぐに受け取ることができます。是非ともご検討くださいませ。
※バイブルスコア詳細はこちら
バイブルスコアとは独自のAI機械学習技術を利用した物件評価システムで、物件のおすすめ度を示します。最高得点は100点で、スコアが高いほど、よりおすすめの物件と評価されています。
写真
現在写真が登録されていません契約条件
| 賃料 | 予想金額:180,000〜200,000円程度 | 管理費 | 予想金額:18,000〜22,000円程度 |
| 礼金 | 非公開(アーカイブ) | 敷金 | 非公開(アーカイブ) |
| フリーレント | なし | 平米数 | 41.11㎡ |
| 間取り | 1LDK | 大型収納 | WIC |
| 契約期間 | 2年 | 方角 | 南西 |
| 更新料 | 1ヶ月 | 契約形態 | 普通賃貸借契約 |
| 取引態様 | 媒介 | 内見状況 | 入居中 |
| 入居時期 | 入居中 | SOHO・事務所 | |
| ペット | ペット可 | 間取り内訳 | 洋:5.5 LD:8.5 K:2.8 |
| キャンペーン情報・備考 | 本情報は賃料改定交渉の資料作成、収益物件の利回り試算、周辺エリアや最寄り駅の坪単価分析、次回募集開始時期の予測などにご活用いただけます。 | ||
※「どの不動産に頼めばいいのか分からない」「信頼できる営業マンの話を聞きたい」「一番親切な会社と契約したい」とお悩みの方におすすめなのが「高級賃貸バイブル」です。
高級賃貸バイブルは業界10年以上の熟練スタッフ群がお客様ファーストで対応します。
下記ボタンから、まずは無料でご相談下さい。
※内覧をご希望の際には、どうぞ物件のエントランス前にてお待ち合わせくださいませ。ご内覧後は、同じ場所でお別れとさせていただきます。お客様のご都合に合わせたスムーズなご案内を心がけておりますので、ご質問等がございましたら何なりとお申し付けください。 物件概要
| 物件名 |
| 築年月 |
|
|---|---|---|---|
| 所在地 | |||
| 交通 | |||
| 総戸数 |
| 総階数 |
|
| 構造 |
| ||
地図
物件までの道のりは、「拡大地図を表示」をクリックしてナビ機能をご利用ください。
部屋設備














建物設備

TVモニターホン

エレベーター

オートロック

バイク置場

宅配ボックス

敷地内ゴミ置場

管理人

駐輪場
メインステージ若松河田の現在募集中のお部屋
- No rooms found for this property.
