
| 賃料 | 予想金額:308,000〜328,000円程度 | 管理費 | 予想金額:18,000〜22,000円程度 |
| 礼金/敷金 | 非公開(アーカイブ) | 平米数 | 43.0㎡ |
| 初期費用概算(参考) | 目安:1,502,500〜1,602,500 円 | みなし賃料(月額・参考) | 353,719〜373,719 円 |
| 備考 | 本ページは過去募集のアーカイブです。表示の金額は周辺相場・過去募集を踏まえた参考レンジであり、実際の契約金額・条件ではありません。 | ||
※上記みなし賃料(月額)は仲介手数料割引・無料&キャッシュバックを加味した高級賃貸バイブル限定の金額です。一般的なみなし賃料とは異なります。
【建物ページ】グランドヒルズ恵比寿の詳細・最新空室はこちら▶▶選ばれる理由
仲介手数料無料・キャンペーン情報(毎月15名様限定)
〇仲介手数料割引キャンペーン
グランドヒルズ恵比寿 1307の口コミ・レビュー
グランドヒルズ恵比寿 1307は、まるで都会の喧騒を忘れさせるために創り出された、時間を超えたオアシスのような存在です。南西に広がる大空に包まれるこのお部屋は、43㎡の空間の中に、あなたの生活を彩る新たな物語の舞台が用意されています。最上階からの眺望は、まるで絵画のように、美しい景色を描き出します。柔らかな日差しが、ロマンチックな時間を作り出し、どこか懐かしい香りとともに、至福の気分を呼び起こしま…グランドヒルズ恵比寿 1307は、まるで都会の喧騒を忘れさせるために創り出された、時間を超えたオアシスのような存在です。南西に広がる大空に包まれるこのお部屋は、43㎡の空間の中に、あなたの生活を彩る新たな物語の舞台が用意されています。最上階からの眺望は、まるで絵画のように、美しい景色を描き出します。柔らかな日差しが、ロマンチックな時間を作り出し、どこか懐かしい香りとともに、至福の気分を呼び起こします。
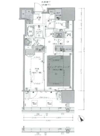
この1LDKの間取りは、LD=8.7帖、K=2.6帖、BR=5.1帖という絶妙なバランスで配され、日常の生活を特別なものに変えてくれます。心地よい光が差し込むリビングでは、朝のコーヒーを味わいながら、窓からの風が優しく頬を撫でる瞬間に、あなたは心の平和を感じることでしょう。そして、夕方には、華やかに灯された街の景色が魔法のように広がり、生活を映画のワンシーンに変えてしまいます。
グランドヒルズ恵比寿 1307のキッチンでは、料理をしたいという衝動をかき立てる香ばしい香りが漂います。自ら手掛けた料理を、大切な人と共に楽しむ食卓は、まるで特別なディナーのように華やかです。心地よい音楽が流れる中で、会話が弾む様子は、まさに人生の喜びそのものです。隣接する寝室には、穏やかな夜の安らぎを与えてくれるインテリアが整い、あなたを夢の世界へと誘います。
この物件には、あなたの日常をサポートするための設備も充実しており、24時間管理やオートロック、宅配ボックスなど、安心感を与えるサービスが数多く揃っています。フロントサービスや管理人が、日々の生活をより一層心地よいものにし、まるで心強い仲間が常にそばにいるかのようです。自転車置場や駐車場も完備されているため、季節ごとの散策も快適に楽しめることでしょう。
恵比寿という土地柄は、歴史と文化が根付く場所であり、近くにはアートギャラリーやお洒落なカフェ、レストランが点在しています。週末には、アートの香りを感じながらの散策や、友人たちとの賑やかな食事会も楽しむことができ、あなたのライフスタイルは、ますます豊かになることでしょう。
グランドヒルズ恵比寿 1307は、ただの住まいではなく、あなたの人生に新たな彩りを加えるための場所です。ここでの生活は、まるで映画の1シーンのように、心を豊かに、感情に訴える体験へと導いてくれるでしょう。この空間で、あなた自身の特別な物語を描いてみませんか?新たな日常への扉が、ここには待っています。
この1LDKの間取りは、LD=8.7帖、K=2.6帖、BR=5.1帖という絶妙なバランスで配され、日常の生活を特別なものに変えてくれます。心地よい光が差し込むリビングでは、朝のコーヒーを味わいながら、窓からの風が優しく頬を撫でる瞬間に、あなたは心の平和を感じることでしょう。そして、夕方には、華やかに灯された街の景色が魔法のように広がり、生活を映画のワンシーンに変えてしまいます。
グランドヒルズ恵比寿 1307のキッチンでは、料理をしたいという衝動をかき立てる香ばしい香りが漂います。自ら手掛けた料理を、大切な人と共に楽しむ食卓は、まるで特別なディナーのように華やかです。心地よい音楽が流れる中で、会話が弾む様子は、まさに人生の喜びそのものです。隣接する寝室には、穏やかな夜の安らぎを与えてくれるインテリアが整い、あなたを夢の世界へと誘います。
この物件には、あなたの日常をサポートするための設備も充実しており、24時間管理やオートロック、宅配ボックスなど、安心感を与えるサービスが数多く揃っています。フロントサービスや管理人が、日々の生活をより一層心地よいものにし、まるで心強い仲間が常にそばにいるかのようです。自転車置場や駐車場も完備されているため、季節ごとの散策も快適に楽しめることでしょう。
恵比寿という土地柄は、歴史と文化が根付く場所であり、近くにはアートギャラリーやお洒落なカフェ、レストランが点在しています。週末には、アートの香りを感じながらの散策や、友人たちとの賑やかな食事会も楽しむことができ、あなたのライフスタイルは、ますます豊かになることでしょう。
グランドヒルズ恵比寿 1307は、ただの住まいではなく、あなたの人生に新たな彩りを加えるための場所です。ここでの生活は、まるで映画の1シーンのように、心を豊かに、感情に訴える体験へと導いてくれるでしょう。この空間で、あなた自身の特別な物語を描いてみませんか?新たな日常への扉が、ここには待っています。
バイブルスコア
バイブルスコア: 37.3
平均的なスコアです。
※バイブルスコア詳細はこちら
バイブルスコアとは独自のAI機械学習技術を利用した物件評価システムで、物件のおすすめ度を示します。最高得点は100点で、スコアが高いほど、よりおすすめの物件と評価されています。
写真
契約条件
| 賃料 | 予想金額:308,000〜328,000円程度 | 管理費 | 予想金額:18,000〜22,000円程度 |
| 礼金 | 非公開(アーカイブ) | 敷金 | 非公開(アーカイブ) |
| フリーレント | なし | 平米数 | 43.0㎡ |
| 間取り | 1LDK | 大型収納 | SIC+N |
| 契約期間 | 方角 | 南西 | |
| 更新料 | 契約形態 | 定期借家契約 | |
| 取引態様 | 媒介 | 内見状況 | 入居中 |
| 入居時期 | 入居中 | SOHO・事務所 | |
| ペット | 間取り内訳 | LD=8.7J / K=2.6J / BR=5.1J | |
| キャンペーン情報・備考 | 本情報は賃料改定交渉の資料作成、収益物件の利回り試算、周辺エリアや最寄り駅の坪単価分析、次回募集開始時期の予測などにご活用いただけます。 | ||
※「どの不動産に頼めばいいのか分からない」「信頼できる営業マンの話を聞きたい」「一番親切な会社と契約したい」とお悩みの方におすすめなのが「高級賃貸バイブル」です。
高級賃貸バイブルは業界10年以上の熟練スタッフ群がお客様ファーストで対応します。
下記ボタンから、まずは無料でご相談下さい。
※内覧をご希望の際には、どうぞ物件のエントランス前にてお待ち合わせくださいませ。ご内覧後は、同じ場所でお別れとさせていただきます。お客様のご都合に合わせたスムーズなご案内を心がけておりますので、ご質問等がございましたら何なりとお申し付けください。 物件概要
| 物件名 |
| 築年月 |
|
|---|---|---|---|
| 所在地 | |||
| 交通 | |||
| 総戸数 |
| 総階数 |
|
| 構造 |
| ||
地図
物件までの道のりは、「拡大地図を表示」をクリックしてナビ機能をご利用ください。
部屋設備


















建物設備

24時間管理

TVモニターホン

エレベーター

オートロック

バイク置場

フロントサービス

宅配ボックス

敷地内ゴミ置場

管理人

駐車場平置き

駐車場機械式

駐輪場
グランドヒルズ恵比寿の現在募集中のお部屋
- グランドヒルズ恵比寿 8階 65.12㎡ - 間取り: 2LDK+WIC+SIC - 賃料: 52万円
- グランドヒルズ恵比寿 12階 62.7㎡ - 間取り: 2LDK+WIC+SIC - 賃料: 53万円
- グランドヒルズ恵比寿 11階 43㎡ - 間取り: 1LDK+SIC - 賃料: 33万円

























