
| 賃料 | 予想金額:194,000〜214,000円程度 | 管理費 | 予想金額:8,000〜12,000円程度 |
| 礼金/敷金 | 非公開(アーカイブ) | 平米数 | 45.25㎡ |
| 初期費用概算(参考) | 目安:770,500〜870,500 円 | みなし賃料(月額・参考) | 216,844〜236,844 円 |
| 備考 | 本ページは過去募集のアーカイブです。表示の金額は周辺相場・過去募集を踏まえた参考レンジであり、実際の契約金額・条件ではありません。 | ||
※上記みなし賃料(月額)は仲介手数料割引・無料&キャッシュバックを加味した高級賃貸バイブル限定の金額です。一般的なみなし賃料とは異なります。
【建物ページ】JP noie 三田の詳細・最新空室はこちら▶▶選ばれる理由
仲介手数料無料・キャンペーン情報(毎月15名様限定)
〇仲介手数料割引キャンペーン
JP noie 三田 701の口コミ・レビュー
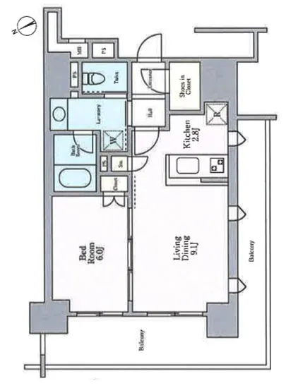
JP noie 三田 701。これが貴方の新たな住処となる場所。南西と西から注ぎ込む柔らかな日差しが、毎日の暮らしに優しさを添えてくれることを、私は知っています。この701号室は、まるで静かな町の真ん中に佇む、優雅な隠れ家のようです。専有面積45.25㎡の1LDKは、一つの物語を紡ぐキャンバスとなり、きっと貴方の五感を心地よく刺激してくれるでしょう。
玄関を開けた瞬間、心地よい空気が包み込み、優…JP noie 三田 701。これが貴方の新たな住処となる場所。南西と西から注ぎ込む柔らかな日差しが、毎日の暮らしに優しさを添えてくれることを、私は知っています。この701号室は、まるで静かな町の真ん中に佇む、優雅な隠れ家のようです。専有面積45.25㎡の1LDKは、一つの物語を紡ぐキャンバスとなり、きっと貴方の五感を心地よく刺激してくれるでしょう。
玄関を開けた瞬間、心地よい空気が包み込み、優雅な生活が待っていることを予感させます。LDKは9.1帖の広さを持ち、ソファに身をゆだねると、静けさの中に耳を澄ませば、外から聞こえてくるのは都会の喧騒ではなく、心を落ち着ける風のささやき。隣接する2.8帖のキッチンでは、食材を切る音が、まるで音色を奏でる楽器のように響き、料理の過程がひとつのアートになります。貴方が手がける料理の香りが、家中に広がり、訪れた人々をも魅了することでしょう。
6帖の寝室には、極上の夜を願って選んだベッドが待っています。ゆったりとしたスペースが、心地よい眠りを誘い、目を閉じれば、まるで夢の中で舞踏会に参加しているかのように、艶やかな音楽に包まれるでしょう。
JP noie 三田のデザインは、まさに都市の芸術。オートロック付きのエントランスが貴方のプライバシーを守り、エレベーターで昇った先には、洗練された空間が広がります。宅配ボックスの存在は、ライフスタイルに便利さを添える、知的なパートナーのようです。洗練されたデザインは、まるで高級ブランドのアイテムが並んでいるかのように、日常を特別なものに変えてくれます。
周囲は文化が息づく港区三田。歴史的な建物や、緑豊かな公園、地元のアートシーンが貴方を迎え入れてくれます。美術館やギャラリーを訪れ、心を豊かにするひとときを過ごすことができ、帰り道には、お洒落なカフェで香ばしいコーヒーの香りに包まれながら、日常の疲れを癒すことができるのです。
JP noie 三田 701は、ただの住まいではなく、貴方の人生を彩る舞台です。この場所で紡がれる物語は、どんな色を持つのでしょうか。貴方がこの空間の主人公となり、新たな日々を思い描いてください。さあ、扉を開け、貴方だけの物語を始めましょう。JP noie 三田 701は、貴方の想像力をかきたてる、素晴らしい住まいです。
玄関を開けた瞬間、心地よい空気が包み込み、優…JP noie 三田 701。これが貴方の新たな住処となる場所。南西と西から注ぎ込む柔らかな日差しが、毎日の暮らしに優しさを添えてくれることを、私は知っています。この701号室は、まるで静かな町の真ん中に佇む、優雅な隠れ家のようです。専有面積45.25㎡の1LDKは、一つの物語を紡ぐキャンバスとなり、きっと貴方の五感を心地よく刺激してくれるでしょう。
玄関を開けた瞬間、心地よい空気が包み込み、優雅な生活が待っていることを予感させます。LDKは9.1帖の広さを持ち、ソファに身をゆだねると、静けさの中に耳を澄ませば、外から聞こえてくるのは都会の喧騒ではなく、心を落ち着ける風のささやき。隣接する2.8帖のキッチンでは、食材を切る音が、まるで音色を奏でる楽器のように響き、料理の過程がひとつのアートになります。貴方が手がける料理の香りが、家中に広がり、訪れた人々をも魅了することでしょう。
6帖の寝室には、極上の夜を願って選んだベッドが待っています。ゆったりとしたスペースが、心地よい眠りを誘い、目を閉じれば、まるで夢の中で舞踏会に参加しているかのように、艶やかな音楽に包まれるでしょう。
JP noie 三田のデザインは、まさに都市の芸術。オートロック付きのエントランスが貴方のプライバシーを守り、エレベーターで昇った先には、洗練された空間が広がります。宅配ボックスの存在は、ライフスタイルに便利さを添える、知的なパートナーのようです。洗練されたデザインは、まるで高級ブランドのアイテムが並んでいるかのように、日常を特別なものに変えてくれます。
周囲は文化が息づく港区三田。歴史的な建物や、緑豊かな公園、地元のアートシーンが貴方を迎え入れてくれます。美術館やギャラリーを訪れ、心を豊かにするひとときを過ごすことができ、帰り道には、お洒落なカフェで香ばしいコーヒーの香りに包まれながら、日常の疲れを癒すことができるのです。
JP noie 三田 701は、ただの住まいではなく、貴方の人生を彩る舞台です。この場所で紡がれる物語は、どんな色を持つのでしょうか。貴方がこの空間の主人公となり、新たな日々を思い描いてください。さあ、扉を開け、貴方だけの物語を始めましょう。JP noie 三田 701は、貴方の想像力をかきたてる、素晴らしい住まいです。
バイブルスコア
バイブルスコア: 18.8
高級な物件でない場合は割高な物件です。。
※バイブルスコア詳細はこちら
バイブルスコアとは独自のAI機械学習技術を利用した物件評価システムで、物件のおすすめ度を示します。最高得点は100点で、スコアが高いほど、よりおすすめの物件と評価されています。
写真
契約条件
| 賃料 | 予想金額:194,000〜214,000円程度 | 管理費 | 予想金額:8,000〜12,000円程度 |
| 礼金 | 非公開(アーカイブ) | 敷金 | 非公開(アーカイブ) |
| フリーレント | なし | 平米数 | 45.25㎡ |
| 間取り | 1LDK | 大型収納 | SIC |
| 契約期間 |
| 方角 | 南西 / 西 |
| 更新料 | 契約形態 | 普通賃貸借契約 | |
| 取引態様 | 媒介 | 内見状況 | 入居中 |
| 入居時期 | 入居中 | SOHO・事務所 | |
| ペット | 間取り内訳 | LD=9.1J / K=2.8J / BR=6J | |
| キャンペーン情報・備考 | 本情報は賃料改定交渉の資料作成、収益物件の利回り試算、周辺エリアや最寄り駅の坪単価分析、次回募集開始時期の予測などにご活用いただけます。 | ||
※「どの不動産に頼めばいいのか分からない」「信頼できる営業マンの話を聞きたい」「一番親切な会社と契約したい」とお悩みの方におすすめなのが「高級賃貸バイブル」です。
高級賃貸バイブルは業界10年以上の熟練スタッフ群がお客様ファーストで対応します。
下記ボタンから、まずは無料でご相談下さい。
※内覧をご希望の際には、どうぞ物件のエントランス前にてお待ち合わせくださいませ。ご内覧後は、同じ場所でお別れとさせていただきます。お客様のご都合に合わせたスムーズなご案内を心がけておりますので、ご質問等がございましたら何なりとお申し付けください。 物件概要
| 物件名 |
| 築年月 |
|
|---|---|---|---|
| 所在地 | |||
| 交通 | |||
| 総戸数 |
| 総階数 |
|
| 構造 |
| ||
地図
物件までの道のりは、「拡大地図を表示」をクリックしてナビ機能をご利用ください。
部屋設備

















建物設備

TVモニターホン

エレベーター

オートロック

宅配ボックス

敷地内ゴミ置場

駐輪場
JP noie 三田の現在募集中のお部屋
- No rooms found for this property.




























