
| 賃料 | 予想金額:139,000〜159,000円程度 | 管理費 | 予想金額:0〜2,000円程度 |
| 礼金/敷金 | 非公開(アーカイブ) | 平米数 | 38.79㎡ |
| 初期費用概算(参考) | 目安:563,000〜663,000 円 | みなし賃料(月額・参考) | 148,667〜168,667 円 |
| 備考 | 本ページは過去募集のアーカイブです。表示の金額は周辺相場・過去募集を踏まえた参考レンジであり、実際の契約金額・条件ではありません。 | ||
※上記みなし賃料(月額)は仲介手数料割引・無料&キャッシュバックを加味した高級賃貸バイブル限定の金額です。一般的なみなし賃料とは異なります。
【建物ページ】ザ・パークハウス渋谷笹塚の詳細・最新空室はこちら▶▶選ばれる理由
仲介手数料無料・キャンペーン情報(毎月15名様限定)
〇仲介手数料割引キャンペーン
ザ・パークハウス渋谷笹塚 201の口コミ・レビュー
ザ・パークハウス渋谷笹塚 201は、まるで一篇の詩のように、あなたの生活を彩る洗練された住まいです。東京都渋谷区幡ヶ谷3-37-18という地に佇むこの美しい住居は、西と北に向かって開かれた窓から、潤いのある自然光が差し込み、あなたを包み込むようにして、訪れるたびにさまざまな表情を見せてくれます。
想像してください。まず、玄関を開けると、ふんわりとした温かい空気が流れ込み、目に映るのは間取り詳細に…ザ・パークハウス渋谷笹塚 201は、まるで一篇の詩のように、あなたの生活を彩る洗練された住まいです。東京都渋谷区幡ヶ谷3-37-18という地に佇むこの美しい住居は、西と北に向かって開かれた窓から、潤いのある自然光が差し込み、あなたを包み込むようにして、訪れるたびにさまざまな表情を見せてくれます。
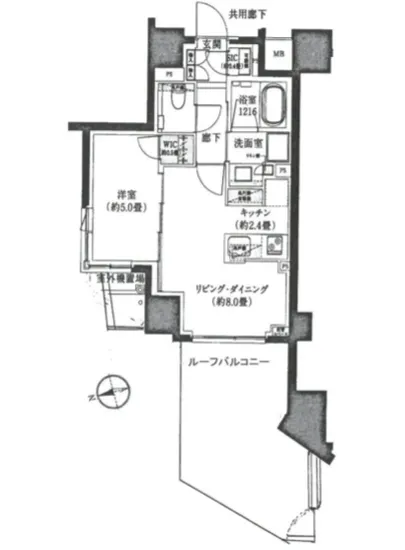
想像してください。まず、玄関を開けると、ふんわりとした温かい空気が流れ込み、目に映るのは間取り詳細にある洋室5帖とLD8帖が織りなす空間です。柔らかな光に照らされた壁は、あなたの心を温め、リラックスしたひとときを提供します。LD8帖の広々としたリビングでは、家族や友人と共に笑い合う声が、まるで音楽のように心に響き渡ります。料理が得意なあなたなら、2.4帖のキッチンで奏でる美味しい料理の香りが、まるで甘美なメロディのように周囲を包み込み、食卓を囲む時間をさらに特別なものにしてくれることでしょう。
ザ・パークハウス渋谷笹塚 201は、暮らしの中に芸術を感じさせる特別な空間を提供します。エレガントなTVモニターホンや、安心を提供するオートロックは、まるであなたの目の前で守護者のように、その存在感を誇示します。また、宅配ボックスや駐輪場、敷地内ゴミ置場といった利便性は、日常の喧騒からあなたを守り、快適な暮らしを約束する鍵となります。管理人の温かな眼差しが、この住まいをさらに特別な場所にしてくれることは言うまでもありません。
このザ・パークハウス渋谷笹塚 201に住む日々は、まるで映画のワンシーンのように、情景が目に浮かんできます。朝、窓を開けると新鮮な風が頬を撫で、コーヒーの香りが立ち込める中、あなたは一日を始めます。午後のひととき、リビングでお気に入りの本を手に取り、心地よい日差しに包まれながらページをめくる瞬間は、まるで時が止まったかのようです。そして、夜には、暖かい灯りの中で愛する人と共に食卓を囲み、味わい深い料理を楽しむ時間が待っているのです。
この地の歴史や文化は、ザ・パークハウス渋谷笹塚 201に住む人々に、豊かな背景を与えます。周囲にはアートや音楽、食文化が息づいており、多彩な楽しみが日常を彩ります。笹塚駅から徒歩9分という好立地は、あなたがこの活気あふれる街を自由に楽しむための道しるべとなります。
ザ・パークハウス渋谷笹塚 201は、ただの住まいではなく、あなたの心の拠り所となり、日々の生活を上質に演出する舞台なのです。この場所での生活は、まるで一枚の美しい絵画のように、あなたにとって特別なストーリーを描き出していくことでしょう。選ばれた方だけが知る、秘密の宝箱に足を踏み入れてみませんか。あなたの新しい物語が、ここから始まります。
想像してください。まず、玄関を開けると、ふんわりとした温かい空気が流れ込み、目に映るのは間取り詳細に…ザ・パークハウス渋谷笹塚 201は、まるで一篇の詩のように、あなたの生活を彩る洗練された住まいです。東京都渋谷区幡ヶ谷3-37-18という地に佇むこの美しい住居は、西と北に向かって開かれた窓から、潤いのある自然光が差し込み、あなたを包み込むようにして、訪れるたびにさまざまな表情を見せてくれます。
想像してください。まず、玄関を開けると、ふんわりとした温かい空気が流れ込み、目に映るのは間取り詳細にある洋室5帖とLD8帖が織りなす空間です。柔らかな光に照らされた壁は、あなたの心を温め、リラックスしたひとときを提供します。LD8帖の広々としたリビングでは、家族や友人と共に笑い合う声が、まるで音楽のように心に響き渡ります。料理が得意なあなたなら、2.4帖のキッチンで奏でる美味しい料理の香りが、まるで甘美なメロディのように周囲を包み込み、食卓を囲む時間をさらに特別なものにしてくれることでしょう。
ザ・パークハウス渋谷笹塚 201は、暮らしの中に芸術を感じさせる特別な空間を提供します。エレガントなTVモニターホンや、安心を提供するオートロックは、まるであなたの目の前で守護者のように、その存在感を誇示します。また、宅配ボックスや駐輪場、敷地内ゴミ置場といった利便性は、日常の喧騒からあなたを守り、快適な暮らしを約束する鍵となります。管理人の温かな眼差しが、この住まいをさらに特別な場所にしてくれることは言うまでもありません。
このザ・パークハウス渋谷笹塚 201に住む日々は、まるで映画のワンシーンのように、情景が目に浮かんできます。朝、窓を開けると新鮮な風が頬を撫で、コーヒーの香りが立ち込める中、あなたは一日を始めます。午後のひととき、リビングでお気に入りの本を手に取り、心地よい日差しに包まれながらページをめくる瞬間は、まるで時が止まったかのようです。そして、夜には、暖かい灯りの中で愛する人と共に食卓を囲み、味わい深い料理を楽しむ時間が待っているのです。
この地の歴史や文化は、ザ・パークハウス渋谷笹塚 201に住む人々に、豊かな背景を与えます。周囲にはアートや音楽、食文化が息づいており、多彩な楽しみが日常を彩ります。笹塚駅から徒歩9分という好立地は、あなたがこの活気あふれる街を自由に楽しむための道しるべとなります。
ザ・パークハウス渋谷笹塚 201は、ただの住まいではなく、あなたの心の拠り所となり、日々の生活を上質に演出する舞台なのです。この場所での生活は、まるで一枚の美しい絵画のように、あなたにとって特別なストーリーを描き出していくことでしょう。選ばれた方だけが知る、秘密の宝箱に足を踏み入れてみませんか。あなたの新しい物語が、ここから始まります。
バイブルスコア
バイブルスコア: 30.2
平均的なスコアです。
※バイブルスコア詳細はこちら
バイブルスコアとは独自のAI機械学習技術を利用した物件評価システムで、物件のおすすめ度を示します。最高得点は100点で、スコアが高いほど、よりおすすめの物件と評価されています。
写真
現在写真が登録されていません契約条件
| 賃料 | 予想金額:139,000〜159,000円程度 | 管理費 | 予想金額:0〜2,000円程度 |
| 礼金 | 非公開(アーカイブ) | 敷金 | 非公開(アーカイブ) |
| フリーレント | なし | 平米数 | 38.79㎡ |
| 間取り | 1LDK | 大型収納 | WIC+SIC |
| 契約期間 |
| 方角 | 西 / 北 |
| 更新料 | 契約形態 | 普通賃貸借契約 | |
| 取引態様 | 媒介 | 内見状況 | 入居中 |
| 入居時期 | 入居中 | SOHO・事務所 | |
| ペット | 間取り内訳 | 洋:5 LD:8 K:2.4 | |
| キャンペーン情報・備考 | 本情報は賃料改定交渉の資料作成、収益物件の利回り試算、周辺エリアや最寄り駅の坪単価分析、次回募集開始時期の予測などにご活用いただけます。 | ||
※「どの不動産に頼めばいいのか分からない」「信頼できる営業マンの話を聞きたい」「一番親切な会社と契約したい」とお悩みの方におすすめなのが「高級賃貸バイブル」です。
高級賃貸バイブルは業界10年以上の熟練スタッフ群がお客様ファーストで対応します。
下記ボタンから、まずは無料でご相談下さい。
※内覧をご希望の際には、どうぞ物件のエントランス前にてお待ち合わせくださいませ。ご内覧後は、同じ場所でお別れとさせていただきます。お客様のご都合に合わせたスムーズなご案内を心がけておりますので、ご質問等がございましたら何なりとお申し付けください。 物件概要
| 物件名 |
| 築年月 |
|
|---|---|---|---|
| 所在地 | |||
| 交通 | |||
| 総戸数 |
| 総階数 |
|
| 構造 |
| ||
地図
物件までの道のりは、「拡大地図を表示」をクリックしてナビ機能をご利用ください。
部屋設備

















建物設備

TVモニターホン

エレベーター

オートロック

宅配ボックス

敷地内ゴミ置場

管理人

駐輪場
ザ・パークハウス渋谷笹塚の現在募集中のお部屋
- No rooms found for this property.
